
City
of hobart
AGENDA
Planning Committee Meeting
Open Portion
Wednesday, 5 June 2024
at 5.00 pm
Council Chamber, Town Hall
Working together to make Hobart a better place for the community.
THE VALUES
The Council is:
|
People |
We care about people – our community, our customers and colleagues. |
|
Teamwork |
We collaborate both within the organisation and with external stakeholders drawing on skills and expertise for the benefit of our community. |
|
Focus and Direction |
We have clear goals and plans to achieve sustainable social, environmental and economic outcomes for the Hobart community. |
|
Creativity and Innovation |
We embrace new approaches and continuously improve to achieve better outcomes for our community. |
|
Accountability |
We are transparent, work to high ethical and professional standards and are accountable for delivering outcomes for our community. |
|
|
Agenda (Open Portion) Planning Committee Meeting |
Page 3 |
|
|
5/6/2024 |
|
Business listed on the agenda is to be conducted in the order in which it is set out, unless the committee by simple majority determines otherwise.
APOLOGIES AND LEAVE OF ABSENCE
2. Consideration of Supplementary Items
3. Indications of Pecuniary and Conflicts of Interest
5. Planning Authority Items - Consideration of Items With Deputations
6. Committee Acting as Planning Authority
6.1 Applications under the Hobart Interim Planning Scheme 2015
6.1.1 65 Bay Road New Town - Demolition and Multiple Dwellings (Three New)
6.1.4 15 Gourlay Street, 19 Landsdowne Crescent, West Hobart - Alterations
7.1 Delegated Decision Report (Planning)
7.2 Planning - Advertised Applications Report
8. Responses to Questions Without Notice
8.1 Median cost of dwelling - Approvals not commenced
8.4 Local Provisions Schedule - Bicycle Parking
10. Closed Portion Of The Meeting
|
|
Agenda (Open Portion) Planning Committee Meeting |
Page 5 |
|
|
5/6/2024 |
|
Planning Committee Meeting (Open Portion) held Wednesday, 5 June 2024 at 5.00 pm in the Council Chamber, Town Hall.
The title Chief Executive Officer is a term of reference for the General Manager as appointed by Council pursuant s.61 of the Local Government Act 1993 (Tas).
|
COMMITTEE MEMBERS Councillor M Dutta (Chairperson) Lord Mayor Councillor A M Reynolds Deputy Lord Mayor Cr Dr Z Sherlock Alderman M Zucco Councillor W F Harvey Councillor Dr Z Sherlock Councillor J Kelly Councillor L Elliot Alderman L Bloomfield Councillor R Posselt Councillor B Lohberger Councillor W Coats Councillor G Kitsos |
Apologies:
Leave of Absence: Nil.
|
|
The minutes of the Open Portion of the Planning Committee meeting held on Wednesday, 22 May 2024, are submitted for confirming as an accurate record.
|
Ref: Part 2, Regulation 8(6) of the Local Government (Meeting Procedures) Regulations 2015.
|
That the Committee resolve to deal with any supplementary items not appearing on the agenda, as reported by the Chief Executive Officer.
|
Ref: Part 2, Regulation 8(7) of the Local Government (Meeting Procedures) Regulations 2015.
Members of the Committee are requested to indicate where they may have any pecuniary or conflict of interest in respect to any matter appearing on the agenda, or any supplementary item to the agenda, which the Committee has resolved to deal with.
Regulation 15 of the Local Government (Meeting Procedures) Regulations 2015.
A Committee may close a part of a meeting to the public where a matter to be discussed falls within 15(2) of the above regulations.
In the event that the Committee transfer an item to the closed portion, the reasons for doing so should be stated.
Are there any items which should be transferred from this agenda to the closed portion of the agenda, or from the closed to the open portion of the agenda?
In accordance with the requirements of Part 2 Regulation 8(3) of the Local Government (Meeting Procedures) Regulations 2015, the Chief Executive Officer is to arrange the agenda so that the planning authority items are sequential.
In accordance with Part 2 Regulation 8(4) of the Local Government (Meeting Procedures) Regulations 2015, the Committee by simple majority may change the order of any of the items listed on the agenda, but in the case of planning items they must still be considered sequentially – in other words they still have to be dealt with as a single group on the agenda.
Where deputations are to be received in respect to planning items, past practice has been to move consideration of these items to the beginning of the meeting.
RECOMMENDATION
That in accordance with Regulation 8(4) of the Local Government (Meeting Procedures) Regulations 2015, the Committee resolve to deal with any items which have deputations by members of the public regarding any planning matter listed on the agenda, to be taken out of sequence in order to deal with deputations at the beginning of the meeting.
In accordance with the provisions of Part 2 Regulation 25 of the Local Government (Meeting Procedures) Regulations 2015, the intention of the Committee to act as a planning authority pursuant to the Land Use Planning and Approvals Act 1993 is to be noted.
In accordance with Regulation 25, the Committee will act as a planning authority in respect to those matters appearing under this heading on the agenda, inclusive of any supplementary items.
The Committee is reminded that in order to comply with Regulation 25(2), the Chief Executive Officer is to ensure that the reasons for a decision by a Council or Council Committee acting as a planning authority are recorded in the minutes.
|
Agenda (Open Portion) Planning Committee Meeting |
Page 7 |
|
|
|
5/6/2024 |
|
6.1 Applications under the Hobart Interim Planning Scheme 2015
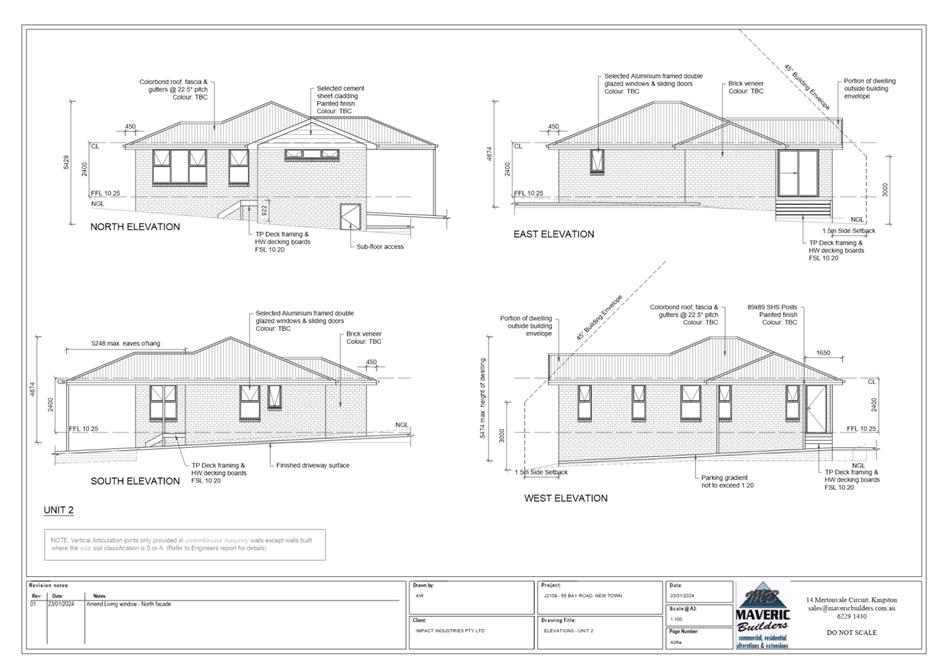
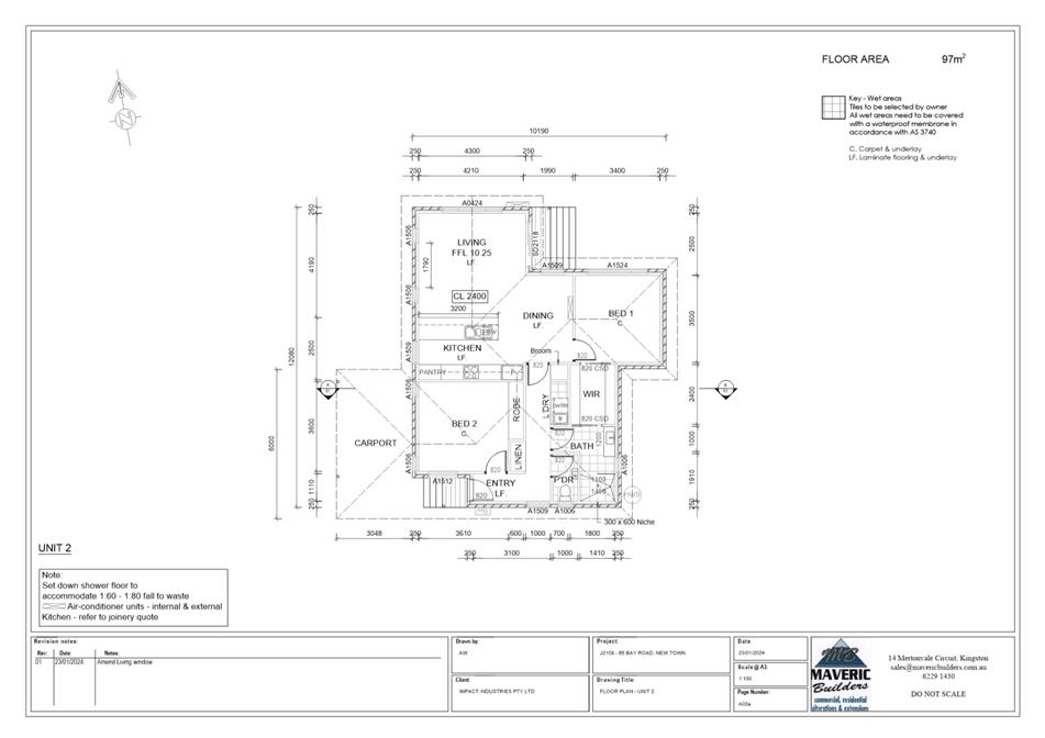
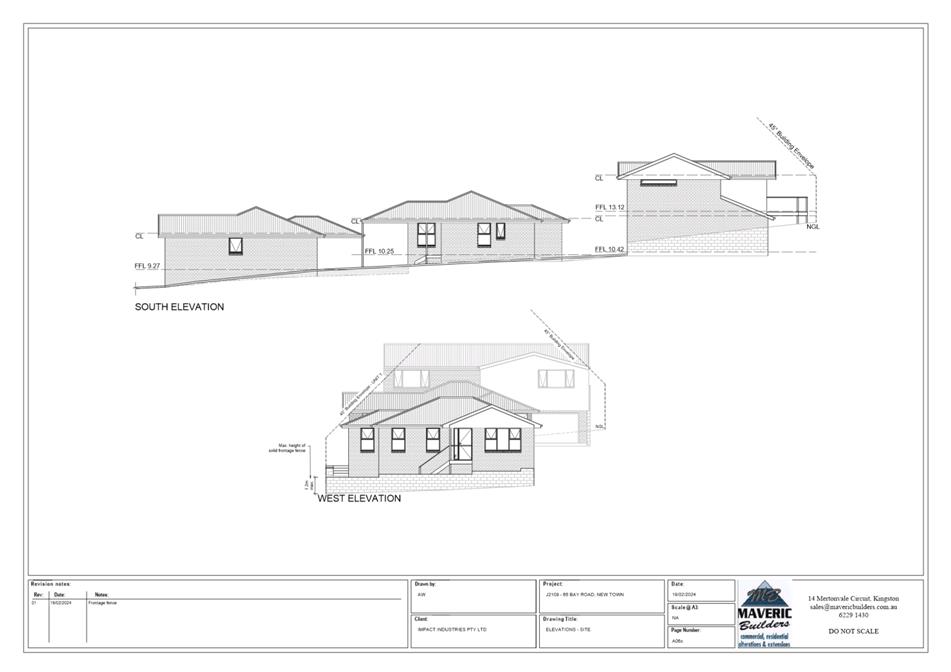
6.1.1 65 Bay Road New Town - Demolition and Multiple Dwellings (Three New)
Address: 65 Bay Road, New Town
Proposal: Demolition and Multiple Dwellings (Three New)
Expiry Date: 16 June 2024
Extension of Time: Not applicable
Author: Adam Smee
|
REcommendation That pursuant to the Hobart Interim Planning Scheme 2015, the Planning Committee, in accordance with the delegations contained in its terms of reference, approves the application for demolition and multiple dwellings (three new) at 65 Bay Road, New Town, for the reasons outlined in the officer’s report and a permit containing the following conditions be issued:
GEN
The use and/or development must be substantially in accordance with the documents and drawings that comprise PLN23734 65 BAY ROAD NEW TOWN TAS 7008 Final Planning Documents except where modified below.
Reason for condition To clarify the scope of the permit. TW
The use and/or development must comply with the requirements of TasWater as detailed in the form Submission to Planning Authority Notice, Reference No. TWDA 2024/00002HCC dated 3/1/2024 as attached to the permit.
Reason for condition
To clarify the scope of the permit.
PLN s1
The developer must take all reasonable steps to protect the roots of any trees on 61 Bay Rd during construction.
Prior to the issue of any approval under the Building Act 2016 (excluding for demolition), a tree protection plan must be submitted and approved as a Condition Endorsement. The tree protection plan must:
1. Be prepared by a suitably qualified arboriculturist;
2. Identify all reasonable steps which can be taken to protect the roots of any trees on 61 Bay Road.
Once approved, the tree protection plan must be implemented and complied with.
Advice:
This condition requires further information to be submitted as a Condition Endorsement. Refer to the Condition Endorsement advice at the end of this permit. Trees of particular note in proximity to the rear boundary are the Italian Cypress and Almond.
PLN s2
Prior to the issue of any approval under the Building Act 2016 (excluding for demolition), a landscaping plan for the soft landscaping of the area adjacent to the rear boundary of the site prepared by a suitably qualified landscape expert must be submitted and approved. The landscaping plan must show the area adjacent to the rear boundary of the site suitably landscaped to provide privacy for the users of both 65 and 61 Bay Road.
All work required by this condition must be undertaken in accordance with the approved landscaping plan.
Prior to occupancy or the commencement of the use (whichever occurs first), confirmation from a suitably qualified landscape expert that all landscaping works required by this condition have been implemented, must be submitted.
The vegetation which is planted on the site pursuant to the landscaping plan must be maintained and must not be disturbed. If any vegetation dies or is destroyed, replacement vegetation of a similar size must be planted within 30 days of the death or destruction.
Advice:
This condition requires further information to be submitted as a Condition Endorsement. Refer to the Condition Endorsement advice at the end of this permit. Note also the requirements of conditions PLN s2 and SW9.
ENG sw1
All stormwater from the proposed development (including but not limited to: roofed areas, ag drains, and impervious surfaces such as driveways and paved areas) must be drained via gravity to the Council’s stormwater infrastructure prior to first occupation or commencement of use (whichever occurs first).
Advice:
Under section 23 of the Urban Drainage Act 2013 it is an offence for a property owner to direct stormwater onto a neighbouring property.
Reason for condition
To ensure that stormwater from the site will be discharged to a suitable Council approved outlet. SW 7
Prior to occupancy or the commencement of the use (whichever occurs first), any new or upgraded stormwater connection required must be constructed and existing redundant connection(s) be abandoned and removed at the owner’s expense.
Prior to the issuing of any approval under the Building Act 2016 or commencement of works (whichever occurs first), detailed engineering drawings must be submitted and approved as a Condition Endorsement. The detailed engineering drawings must include:
1. The location of the proposed connection and all existing connections;
2. The size, levels, slope and design of the connection such that it is appropriate to safely service the entire development via gravity for 20yr ARI events;
3. Plan and long sections of the proposed connection clearly showing clearances from any nearby services, cover, size, material and delineation of public and private infrastructure (i.e. private boundary transition pit);
4. Connections which are free flowing gravity driven;
Should the 5min 20yr ARI flows to the connection exceed 12L/s, calculations and full engineering design demonstrating how the flows will be maintained within the capacity of the gutter must be submitted and approved. Should this include private detention, the plans must include long sections and a brief maintenance plan.
All work required by this condition must be undertaken and maintained in accordance with the approved detailed engineering drawings.
Advice The approved stormwater connection documents must be included in your plumbing permit application document set and listed in accompanying forms.
SW 9A revised landscaping plan must be submitted and approved as a Condition Endorsement, prior to the issue of any approval under the Building Act 2016 or the commencement of work on the site (whichever occurs first). The plan must clearly distinguish between surface types and roof overhang and state areas in m².
Should the total area of impervious surfaces (including gravel) being constructed exceed 600m², prior to occupancy or the commencement of the approved use (whichever occurs first), stormwater pretreatment for stormwater discharges from the development must be installed.
A stormwater management report and design must be submitted and approved as a Condition Endorsement, prior to the issue of any approval under the Building Act 2016 or the commencement of work on the site (whichever occurs first). The stormwater management report and design must be prepared by a suitably qualified engineer and must:
1. Include detailed design of the proposed treatment train, including final estimations of contaminant removal;
2. Include a supporting maintenance plan, which specifies the required maintenance measures to check and ensure the ongoing effective operation of all systems, such as: inspection frequency; cleanout procedures; descriptions and diagrams of how the installed systems operate; details of the life of assets and replacement requirements.
All work required by this condition must be undertaken and maintained in accordance with the approved stormwater management report and design.
Advice:
This condition requires further information to be submitted as a Condition Endorsement. Refer to the Condition Endorsement advice at the end of this permit. Note also the requirement of condition PLN s2, for a landscaping plan for the area adjacent to the site's rear boundary.
ENG 2a
Prior to first occupation or commencement of use (whichever occurs first), vehicular barriers compliant with the Australian Standard AS/NZS 1170.1:2002 must be installed to prevent vehicles running off the edge of an access driveway or parking module (parking spaces, aisles and manoeuvring area) where the drop from the edge of the trafficable area to a lower level is 600mm or greater, and wheel stops (kerb) must be installed for drops between 150mm and 600mm. Barriers must not limit the width of the driveway access or parking and turning areas approved under the permit.
Advice:
The Council does not consider a slope greater than 1 in 4 to constitute a lower level as described in AS/NZS 2890.1:2004 Section 2.4.5.3. Slopes greater than 1 in 4 will require a vehicular barrier or wheel stop.
Designers are advised to consult the National Construction Code 2016 to determine if pedestrian handrails or safety barriers compliant with the Code are also required in the parking module this area may be considered as a path of access to a building.
Reason for condition
To ensure the safety of users of the access driveway and parking module and compliance with the standard.
ENG 3b
The following aspects of the access driveway and parking area require further detailed designs:
1. Vehicular passing bay;
2. Access, circulation roadway, and parking areas.
This documentation must be submitted and approved as a condition endorsement, prior to the issuing of any approval under the Building Act 2016.
The detailed designs must:
1. Be prepared and certified by a suitably qualified engineer;
2. Be in accordance with the Australian Standard AS/NZS 2890.1:2004, if possible;
3. Where the design deviates from AS/NZS 2890.1:2004 the designer must demonstrate that the design will provide a safe and efficient access, and enable safe, easy and efficient use; and
4. Show dimensions, levels, gradients and transitions, and other details as Council deem necessary to satisfy the above requirement.
The access driveway and parking area must be constructed in accordance with the approved detailed designs prior to first occupation.
Reason for condition
To ensure the safety of users of the access and parking module, and compliance with the relevant Australian Standard.
ENG 3c
Prior to the first occupation, a suitably qualified engineer must certify that the access driveway and parking area has been constructed in accordance with design drawings approved by Condition ENG 3a.
Advice: We strongly encourage you to speak to your engineer before works begin so that you can discuss the number and nature of the inspections they will need to do during the works in order to provide this certification. It may be necessary for a surveyor to also be engaged to ensure that the driveway will be constructed as approved.
The reason this condition has been imposed as part of your planning permit is that the driveway is outside the Australian Standard gradients or design parameters. If the driveway is not constructed as it has been approved then this may mean that the driveway will either be unsafe or will not function properly.
An example certificate is available on our website.
Reason for condition
To ensure the safety of users of the access and parking module, and compliance with the relevant Australian Standard.
ENG 4
The access driveway and parking module (car parking spaces, aisles and manoeuvring area) approved by this permit must be constructed to a sealed standard (spray seal, asphalt, concrete, pavers or equivalent Council approved) and surface drained to the Council's stormwater infrastructure prior to the first occupation or commencement of use.
Reason for condition
To ensure the safety of users of the access driveway and parking module, and that it does not detract from the amenity of users, adjoining occupiers or the environment by preventing dust, mud and sediment transport.
ENG 1
Any damage to council infrastructure resulting from the implementation of this permit, must, at the discretion of the Council:
1. Be met by the owner by way of reimbursement (cost of repair and reinstatement to be paid by the owner to the Council); or
2. Be repaired and reinstated by the owner to the satisfaction of the Council.
A photographic record of the Council's infrastructure adjacent to the subject site must be provided to the Council prior to any commencement of works.
A photographic record of the Council’s infrastructure (e.g. existing property service connection points, roads, buildings, stormwater, footpaths, driveway crossovers and nature strips, including if any, preexisting damage) will be relied upon to establish the extent of damage caused to the Council’s infrastructure during construction. In the event that the owner/developer fails to provide to the Council a photographic record of the Council’s infrastructure, then any damage to the Council's infrastructure found on completion of works will be deemed to be the responsibility of the owner.
Reason for condition To ensure that any of the Council's infrastructure and/or site related service connections affected by the proposal will be altered and/or reinstated at the owner’s full cost.
ENG r3
Prior to the commencement of use, the proposed driveway crossover on the Bay Road highway reservation must be designed and constructed in general accordance with:
· Urban – TSD-R09-v3 – Urban Roads Driveways and TSD R14-v3 Type KC vehicular crossing;
· Footpath – Urban Roads Footpaths TSD-R11-v3;
Design drawings must be submitted and approved as a Condition Endorsement prior to any approval under the Building Act 2016. The design drawings must:
· Show the cross and long section of the driveway crossover within the highway reservation and onto the property;
· Detail any services or infrastructure (i.e., light poles, pits, awnings) at or near the proposed driveway crossover;
· Show swept path templates in accordance with AS/NZS2890.1 2004 (B85 or B99 depending on use, design template);
· If the design deviates from the requirements of the TSD, then demonstrate that a B85 vehicle or a B99 depending on use (AS/NZS 2890.1 2004, section 2.6.2), can access the driveway from the road pavement into the property without scraping the vehicle’s underside;
· Show that vehicular and pedestrian sight lines are met as per AS/NZS 2890.1 2004;
· Be prepared and certified by a suitably qualified person, to satisfy the above requirements.
All work required by this condition must be undertaken in accordance with the approved drawings.
Advice:
This condition requires further information to be submitted as a Condition Endorsement. Refer to the Condition Endorsement advice at the end of this permit.
Please note that your proposal does not include adjustment of footpath levels. Any adjustment to footpath levels necessary to suit the design of proposed floor, parking module or driveway levels will require separate agreement from Council's Program Leader Road Services and may require further planning approvals. It is advised to place a note to this effect on construction drawings for the site and/or other relevant engineering drawings to ensure that contractors are made aware of this requirement.
Reason for condition
To ensure that works will comply with the Council’s standard requirements.
ENV 2Sediment and erosion control measures, sufficient to prevent sediment from leaving the site and in accordance with an approved soil and water management plan (SWMP), must be installed prior to the commencement of work and maintained until such time as all disturbed areas have been stabilised and/or restored or sealed to the Council’s satisfaction.
A SWMP must be submitted and approved as a Condition Endorsement prior to the issue of any approval under the Building Act 2016 or the commencement of work, whichever occurs first. The SWMP must be prepared in accordance with the Erosion and Sediment Control, The Fundamentals for Development in Tasmania and associated guideline documents (TEER &DEP, 2023), available from the Derwent Estuary Program’s website.
All work required by this condition must be undertaken in accordance with the approved SWMP.
Advice:
This condition requires further information to be submitted as a Condition Endorsement. Refer to the Condition Endorsement advice at the end of this permit.
Reason for condition
To avoid the pollution and sedimentation of roads, drains and natural watercourses that could be caused by erosion and runoff from the development. ADVICEThe following advice is provided to you to assist in the implementation of the planning permit that has been issued subject to the conditions above. The advice is not exhaustive and you must inform yourself of any other legislation, bylaws, regulations, codes or standards that will apply to your development under which you may need to obtain an approval. Visit the Council's website for further information.
Prior to any commencement of work on the site or commencement of use the following additional permits/approval may be required from the Hobart City Council. CONDITION ENDORSEMENT
If any condition requires that further documents are submitted and approved, you will need to submit the relevant documentation to satisfy the condition via the Condition Endorsement Submission on Council's online services eplanning portal. Detailed instructions can be found here.
Once approved, the Council will respond to you via email that the condition has been endorsed (satisfied).
Where building approval is also required, it is recommended that documentation for condition endorsement be submitted well before submitting documentation for building approval. Failure to address condition endorsement requirements prior to submitting for building approval may result in unexpected delays.
BUILDING PERMIT You may need building approval in accordance with the Building Act 2016. Click here for more information.
This is a Discretionary Planning Permit issued in accordance with section 57 of the Land Use Planning and Approvals Act 1993. PLUMBING PERMITYou may need plumbing approval in accordance with the Building Act 2016, Building Regulations 2016 and the National Construction Code. Click here for more information.
OCCUPATION OF THE PUBLIC HIGHWAYYou may require a permit for the occupation of the public highway for construction or special event (e.g., placement of skip bin, crane, scissor lift etc). Click here for more information.
You may require a Permit to Open Up and Temporarily Occupy a Highway (for work in the road reserve). Click here for more information.
PERMIT TO CONSTRUCT PUBLIC INFRASTRUCTURE
You may require a permit to construct public infrastructure, with a 12-month maintenance period and bond (please contact the Hobart City Council's City Life Division to initiate the permit process).
NEW SERVICE CONNECTION
Please contact the Hobart City Council's City Life Division to initiate the application process for your new stormwater connection.
STORMWATER
Please note that in addition to a building and/or plumbing permit, development must be in accordance with the Hobart City Council’s Infrastructure By law. Click here for more information.
WORK WITHIN THE HIGHWAY RESERVATIONPlease note development must be in accordance with the Hobart City Council’s Infrastructure by law. Click here for more information.
DRIVEWAY SURFACING OVER HIGHWAY RESERVATION
If a coloured or textured surface is used for the driveway access within the Highway Reservation, the Council or other service provider will not match this on any reinstatement of the driveway access within the Highway Reservation required in the future. WASTE DISPOSALIt is recommended that the developer liaise with the Council’s City Resilience Unit regarding reducing, reusing and recycling materials associated with demolition on the site to minimise solid waste being directed to landfill.
Further information regarding waste disposal can also be found on the Council’s website. FEES AND CHARGESClick here for information on the Council's fees and charges. DIAL BEFORE YOU DIG
Click here for dial before you dig information.
|
Attachment a: PLN-23-734
- 65 BAY ROAD NEW TOWN TAS 7008 - Planning Committee or Delegated Report ⇩ ![]()
Attachment
b: PLN-23-734
- 65 BAY ROAD NEW TOWN TAS 7008 - Planning Committee Agenda Documents ⇩
|
Agenda (Open Portion) Planning Committee Meeting |
Page 1 |
|
|
|
5/6/2024 |
|
6.1.2 31 Parliament Street, 1 Crisp Street, Adjacent Road Reserve and 29 Parliament Street, Sandy Bay
Address: 31 Parliament Street, 1 Crisp Street, Adjacent Road Reserve and 29 Parliament Street, Sandy Bay
Proposal: Partial Demolition, Two Multiple Dwellings (One Existing, One New) and Associated Works
Expiry Date: 13 June 2024
Extension of Time: Not applicable
Author: Richard Bacon
|
REcommendation That pursuant to the Hobart Interim Planning Scheme 2015, the Planning Committee, in accordance with the delegations contained in its terms of reference, approves the application for partial demolition and two multiple dwellings (one existing, one new) and associated works at 31 Parliament Street, 29 Parliament Street, 1 Crisp Street and Road Reservation, Sandy Bay for the reasons outlined in the officer’s report and a permit containing the following conditions be issued:
GEN
The use and/or development must be substantially in accordance with the documents and drawings that comprise PLN-23-323 - 31 PARLIAMENT STREET SANDY BAY TAS 7005 - Final Planning Documents except where modified below.
Reason for condition To clarify the scope of the permit.
TW
The use and/or development must comply with the requirements of TasWater as detailed in the form Submission to Planning Authority Notice, Reference No. TWDA 2023/00760-HCC dated 22/01/2024 as attached to the permit.
Reason for condition To clarify the scope of the permit.
PLN s2
A waste storage area must be provided for the existing dwelling and for the proposed dwelling.
The waste storage areas must be:
1. capable of storing the number of buns required for each dwelling.
2. screened from the frontage to Parliament Street.
Reason for condition
To provide for the storage of waste and recycling bins for multiple dwellings.
ENG sw6
All stormwater from the proposed development (including but not limited to: roofed areas, ag drains, and impervious surfaces such as driveways and paved areas) must be drained to the Council’s stormwater infrastructure with sufficient receiving capacity prior to first occupation or commencement of use (whichever occurs first). All costs associated with works required by this condition are to be met by the owner.
Detailed engineering drawings prepared and certified by a suitable qualified and experienced civil engineer must be submitted and approved as a Condition Endorsement, prior to commencement of work or issue of consent under the Building Act 2016 (whichever occurs first). The drawings must include but not be limited to:
1. all easements required to cover all private pipelines outside the Lot serviced to a legal point of discharge. 2. Show private plumbing entirely separate to each lot. 3. All existing private drainage servicing 31A Parliament Street via third-party land must have adequate capacity for any additional flows directed to it.
4. Detailed design of the proposed pump system and supporting calculations demonstrating the system can drain all 20yr ARI rainfall events, and is in general accordance with Australian Standard AS/NZS 3500.3:2015 Part 3: Stormwater Drainage Systems.
5. All stormwater which is practicable to drain to Council infrastructure via gravity (including suspended or charged systems) must do so.
6. Any pumped or charged flows must be converted into free-flowing gravity within a suitably sized private transition pit inside the property.
7. Pumped system must be designed and located to minimise consequence of failure and nuisance (e.g., obvious failure, adequate setbacks to allow dispersal of surcharge prior to third-party land, protection of rising main, separate power circuit and noise minimisation).
8. A brief list of maintenance / inspection actions.
All work required by this condition must be undertaken and maintained in accordance with the approved detailed engineering drawings.
Advice:
Under section 23 of the Urban Drainage Act 2013 it is an offence for a property owner to direct stormwater onto a neighbouring property.
Separate consent for the new private stormwater infrastructure servicing 31B within31A Parliament Street is required under s20 of the Urban Drainage Act 2013.
This condition requires further information to be submitted as a Condition Endorsement. Refer to the Condition Endorsement advice at the end of this permit.
Reason for condition
To ensure that stormwater from the site will be discharged to a suitable Council approved outlet.
SW 7
Prior to occupancy or the commencement of the use (whichever occurs first), any new or upgraded stormwater connection required must be constructed and existing redundant connection(s) be abandoned and sealed at the owner’s expense.
Prior to the issuing of any approval under the Building Act 2016 or commencement of works (whichever occurs first), detailed engineering drawings must be submitted and approved as a Condition Endorsement. The detailed engineering drawings must include:
1. the location of the proposed connections and all existing connections;
2 the size and design of the connection such that it is appropriate to safely service the development;
3. clearances from any nearby obstacles (e.g., services, crossovers, trees, poles, walls);
4. long-sections of the proposed connection clearly showing cover, size, grade, material and delineation of public and private infrastructure;
5. connections which are free-flowing gravity driven; and
6. be in general accordance with Council's departures from the LGAT Tasmanian Standard Drawings, available from our website.
All work required by this condition must be undertaken in accordance with the approved detailed engineering drawings.
Advice:
The proposed discharge to Council's gutter within the driveway crossover is not accepted. A revised design is required.
The approved stormwater connection documents must be included in your plumbing permit application document set and listed in accompanying forms.
A single connection for the property is required under the Urban Drainage Act 2013.
ENG 3a
The access driveway and parking area must be constructed in accordance with the following documentation which forms part of this permit: Design East - Drawing reference 5605-A03-A07 - revision E 21st - November 2023 (received by the Council on 29th February 2024).
Any departure from that documentation and any works which are not detailed in the documentation must be either:
(a) approved by the Director City Life, via a condition endorsement application; or
(b) designed and constructed in accordance with Australian Standard AS/NZ 2890.1:2004.
The works required by this condition must be completed prior to first occupation.
Reason for condition
To ensure the safety of users of the access and parking module, and compliance with the relevant Australian Standard.
ENG 4
The access driveway and parking module (car parking spaces, aisles and manoeuvring area) approved by this permit must be constructed to a sealed standard (spray seal, asphalt, concrete, pavers or equivalent Council approved) and surface drained to the Council's stormwater infrastructure prior to the commencement of use.
Reason for condition
To ensure the safety of users of the access driveway and parking module, and that it does not detract from the amenity of users, adjoining occupiers or the environment by preventing dust, mud and sediment transport.
ENG 5
The number of car parking spaces approved to be used on the site is four (4).
All parking spaces must be delineated by means of white or yellow lines 80mm to 100mm wide, or white or yellow pavement markers in accordance with Australian Standards AS/NZS 2890.1 2004, prior to commencement of use.
Reason for condition
To ensure the provision of parking for the use is safe and efficient.
ENG 1
Any damage to council infrastructure resulting from the implementation of this permit, must, at the discretion of the Council:
1. Be met by the owner by way of reimbursement (cost of repair and reinstatement to be paid by the owner to the Council); or
2. Be repaired and reinstated by the owner to the satisfaction of the Council.
A photographic record of the Council's infrastructure adjacent to the subject site must be provided to the Council prior to any commencement of works.
A photographic record of the Council’s infrastructure (e.g., existing property service connection points, roads, buildings, stormwater, footpaths, driveway crossovers and nature strips, including if any, pre-existing damage) will be relied upon to establish the extent of damage caused to the Council’s infrastructure during construction. In the event that the owner/developer fails to provide to the Council a photographic record of the Council’s infrastructure, then any damage to the Council's infrastructure found on completion of works will be deemed to be the responsibility of the owner.
Reason for condition
To ensure that any of the Council's infrastructure and/or site-related service connections affected by the proposal will be altered and/or reinstated at the owner’s full cost.
ENG r3
Prior to the commencement of use, the proposed driveway crossover on the Parliament Street highway reservation must be designed and constructed in general accordance with:
· Urban - TSD-R09-v3 - Urban Roads Driveways and TSD R14-v3 Type KC vehicular crossing;
Design drawings must be submitted and approved as a Condition Endorsement prior to any approval under the Building Act 2016. The design drawings must:
1. Show the cross and long section of the driveway crossover within the highway reservation and onto the property;
2. Detail any services or infrastructure (i.e., light poles, pits, awnings) at or near the proposed driveway crossover;
3. If the design deviates from the requirements of the TSD, then demonstrate that a B85 vehicle or a B99 depending on use (AS/NZS 2890.1 2004, section 2.6.2), can access the driveway from the road pavement into the property without scraping the vehicle's underside;
4. Show that vehicular and pedestrian sight lines are met as per AS/NZS 2890.1 2004.
5. Be prepared and certified by a suitable qualified person, to satisfy the above requirements.
All work required by this condition must be undertaken in accordance with the approved drawings.
Note:
Minimum width for asphalt to be excavated and reinstated is 300mm.
Advice:
This condition requires further information to be submitted as a Condition Endorsement. Refer to the Condition Endorsement advice at the end of this permit.
Please note that your proposal does not include adjustment of footpath levels. Any adjustment to footpath levels necessary to suit the design of proposed floor, parking module or driveway levels will require separate agreement from Council's Program Leader Road Services and may require further planning approvals. It is advised to place a note to this effect on construction drawings for the site and/or other relevant engineering drawings to ensure that contractors are made aware of this requirement.
Reason for condition
To ensure that works will comply with the Council’s standard requirements.
ENV 1
Sediment and erosion control measures sufficient to prevent sediment from leaving the site must be installed prior to any disturbance of the site and maintained until all areas of disturbance have been stabilized or re-vegetated.
Advice:
For further guidance in preparing a Soil and Water Management Plan - in accordance with Fact sheet 3 Derwent Estuary Program click here.
Reason for condition
To avoid the sedimentation of roads, drains, natural watercourses, Council land that could be caused by erosion and runoff from the development, and to comply with relevant State legislation.
HER 17b
The use of the colour and material Colorbond 'Monument' on the roof of the new dwelling is not approved. An alternative colour must be selected and used that is equivalent to the BASIX classification for Colorbond in the light to medium solar absorptance range and is more sympathetic to and reflect the exterior colours within the local streetscape and precinct.
Prior to the issue of any approval under the Building Act 2016, revised plans must be submitted and approved which shows an alternative roof cladding in accordance with the above requirements.
All work required by this condition must be undertaken in accordance with the approved revised plans.
Advice:
This condition requires further information to be submitted as a Condition Endorsement. Refer to the Condition Endorsement advice at the end of this permit.
The applicant is to note that the solar absorptance of the colour 'Monument' is classified as a 'dark' colour under the BASIX. The following link identifies colours that offer a better thermal efficiency and colours within the light to medium range.
http://www.steel.com.au/products/coatedsteel/colorbondsteel/basixandbcaclassification
Reason for condition
To ensure that development in a heritage precinct is undertaken in a sympathetic manner which does not cause loss of historic cultural heritage significance.
HER s1
A revised fenestration plan for the west facing return elevation of the new dwelling showing traditionally proportioned windows that do not provide direct views to the private open space of the cottage must be submitted and approved as a Condition Endorsement prior to the issue of any approval under the Building Act 2016.
All work required by this condition must be undertaken in accordance with the approved revised plans.
Advice:
This condition requires further information to be submitted as a Condition Endorsement. Refer to the Condition Endorsement advice at the end of this permit.
Reason for condition
To ensure the size, design and siting of windows within the elevation forming the context of the cottage complements and does not impact on the cultural heritage significance of this place listed in the Historic Heritage Code, and to provide a reasonable opportunity for privacy for the dwelling at 31 Parliament Street.
HER s2
The street boundary to the parking and driveway must be amended to re-enforce the enclosure of the street boundary and the integrity of the cottage and its parking prior to the commencement of work.
Plans must be submitted and approved as a Condition Endorsement, prior to the commencement of works. In accordance with the above requirement, the plans must:
1. Show the fence separating the cottage from its designated parking spaces removed and these spaces reincorporated into a single rear yard of the cottage.
2. A continuous street boundary treatment enclosing both the rear yard of the cottage and the new driveway of the approved new dwelling in the form of fencing and vehicular gates to a design and height to the satisfaction of the Council.
All work required by this condition must be undertaken in accordance with the approved plans.
Advice:
This condition requires further information to be submitted as a Condition Endorsement. Refer to the Condition Endorsement advice at the end of this permit.
Reason for condition
To ensure that development at a heritage place and precinct is undertaken in a sympathetic manner which does not cause loss of historic cultural heritage significance.
Part 5 1
The owner(s) of the property must enter into an agreement with the Council pursuant to Part 5 of the Land Use Planning and Approvals Act 1993 with respect to creation of the right of carriageway, services easement and drainage easement benefitting 31B Parliament Street (CT 214433/1) and burdening 31A Parliament Street (CT 248224/1) to be created by Transfer in accordance with section 58 of the Land Titles Act 1980 prior to commencement of use or occupancy (whichever occurs first). The owners must agree to create all easements required prior to transfer of ownership of either Lot.
All costs for the preparation and registration of the Part 5 Agreement must be met by the owner.
The owner must comply with the Part 5 Agreement which will be placed on the property title.
Note: For further information with respect to the preparation of a Part 5 agreement please contact the Council Development Engineering Unit on 62 382 711.
Reason for condition
To ensure that the proposed development at 31B Parliament Street can be legally serviced and accessed.
SUB s1
A right of carriageway, services easement and drainage easement benefitting 31B Parliament Street (CT 214433/1) and burdening 31A Parliament Street (CT 248224/1) is to be created by Transfer in accordance with section 58 of the Land Titles Act 1980, prior to the issue of an Occupancy Permit for the proposed development on 31B Parliament Street.
Reason for condition
To ensure that 31B Parliament Street has legal access over the proposed driveway through 31A Parliament Street and easements are created for the private services and drainage for 31B Parliament Street that will be located on 31A Parliament Street.
Advice:
The two titles involved must be in different ownership to enable the easements to be created.
SUB s2
A Pipeline and Services easement in favour of TasWater over the proposed sewer main extension through 29 Parliament Street is to be created by Transfer in accordance with section 58 of the Land Titles Act 1980 prior to the issue of an Occupancy Permit for the proposed development on 31B Parliament Street.
Reason for condition
To ensure that an easement in favour of TasWater is created over the sewer main extension through 29 Parliament Street.
ADVICE The following advice is provided to you to assist in the implementation of the planning permit that has been issued subject to the conditions above. The advice is not exhaustive, and you must inform yourself of any other legislation, by-laws, regulations, codes or standards that will apply to your development under which you may need to obtain an approval. Visit the Council's website for further information.
Prior to any commencement of work on the site or commencement of use the following additional permits/approval may be required from the Hobart City Council.
CONDITION ENDORSEMENT
If any condition requires that further documents are submitted and approved, you will need to submit the relevant documentation to satisfy the condition via the Condition Endorsement Submission on Council's online services e-planning portal. Detailed instructions can be found here.
Once approved, the Council will respond to you via email that the condition has been endorsed (satisfied).
Where building approval is also required, it is recommended that documentation for condition endorsement be submitted well before submitting documentation for building approval. Failure to address condition endorsement requirements prior to submitting for building approval may result in unexpected delays.
BUILDING PERMIT
You may need building approval in accordance with the Building Act 2016. Click here for more information.
This is a Discretionary Planning Permit issued in accordance with section 57 of the Land Use Planning and Approvals Act 1993.
PLUMBING PERMIT
You may need plumbing approval in accordance with the Building Act 2016, Building Regulations 2016 and the National Construction Code. Click here for more information.
FEES AND CHARGES
Click here for information on the Council's fees and charges.
DIAL BEFORE YOU DIG
Click here for dial before you dig information.
|
Attachment a: PLN-23-323
- 31 PARLIAMENT STREET SANDY BAY TAS 7005 - Planning Committee or Delegated
Report ⇩ ![]()
Attachment
b: PLN-23-323
- 31 PARLIAMENT STREET SANDY BAY TAS 7005 - Planning Committee Agenda Documents ⇩ ![]()
Attachment
c: PLN-23-323
- 31 PARLIAMENT STREET SANDY BAY TAS 7005 - Planning Referral Officer Cultural
Heritage Report ⇩ ![]()
Attachment
d: PLN-23-323
- 31 PARLIAMENT STREET SANDY BAY TAS 7005 - Planning Referral Officer
Development Engineering Report ⇩
|
Agenda (Open Portion) Planning Committee Meeting |
Page 1 |
|
|
|
5/6/2024 |
|
6.1.3 42 Newdegate Street, North Hobart - Partial Change of Use to Business and Professional Services
Address: 42 Newdegate Street, North Hobart
Proposal: Partial Change of Use to Business and Professional Services
Expiry Date: 6 June 2024
Extension of Time: Not applicable
Author: Helen Ayers
|
REcommendation That pursuant to the Hobart Interim Planning Scheme 2015, the Planning Committee, in accordance with the delegations contained in its terms of reference, refuses the application for Partial Change of Use to Business and Professional Services at 42 Newdegate Street, North Hobart for the following reason:
1 The proposal does not meet the acceptable solution or the performance criterion with respect to clause 11.2 of the Hobart Interim Planning Scheme 2015 because the proposed business and professional services use fails to meet the qualification of the use table and as such is a prohibited use for the zone.
|
Attachment a: PLN-24-58
- 42 NEWDEGATE STREET NORTH HOBART TAS 7000 - Planning Committee or Delegated
Report ⇩ ![]()
Attachment
b: PLN-24-58
- 42 NEWDEGATE STREET NORTH HOBART TAS 7000 - PC Agenda Documents ⇩
|
Agenda (Open Portion) Planning Committee Meeting |
Page 1 |
|
|
|
5/6/2024 |
|
6.1.4 15 Gourlay Street, 19 Landsdowne Crescent, West Hobart - Alterations
Address: 15 Gourlay Street, 19 Lansdowne Crescent, West Hobart
Proposal: Alterations
Expiry Date: 10 June 2024
Extension of Time: Not applicable
Author: Victoria Maxwell
|
REcommendation That pursuant to the Hobart Interim Planning Scheme 2015, the Planning Committee, in accordance with the delegations contained in its terms of reference, approves the application for alterations at 15 Gourlay Street and 19 Lansdowne Crescent West Hobart TAS 7000 for the reasons outlined in the officer’s report and a permit containing the following conditions be issued:
GEN
The use and/or development must be substantially in accordance with the documents and drawings that comprise PLN24172 15 GOURLAY STREET AND 19 LANSDOWNE CRESCENT WEST HOBART TAS 7000 Final Planning Documents except where modified below.
Reason for condition
To clarify the scope of the permit.
ENG sw1
All stormwater from the proposed development (including but not limited to: roofed areas, ag drains, retaining wall ag drains and impervious surfaces such as driveways and paved areas) must be drained to the Council’s stormwater infrastructure prior to first occupation or commencement of use (whichever occurs first).
All private stormwater infrastructure including ag drain for retaining wall must be contained within the property boundary.
Advice:
Under section 23 of the Urban Drainage Act 2013 it is an offence for a property owner to direct stormwater onto a neighbouring property.
Council notes the site has been modelled as subject to shallow floodwaters, and recommends the structure's footings are designed accordingly.
Reason for condition
To ensure that stormwater from the site will be discharged to a suitable Council approved outlet.
ENG 1
Any damage to council infrastructure resulting from the implementation of this permit, must, at the discretion of the Council:
1. Be met by the owner by way of reimbursement (cost of repair and reinstatement to be paid by the owner to the Council); or 2. Be repaired and reinstated by the owner to the satisfaction of the Council.
A photographic record of the Council's infrastructure adjacent to the subject site must be provided to the Council prior to any commencement of works.
A photographic record of the Council’s infrastructure (e.g. existing property service connection points, roads, buildings, stormwater, footpaths, driveway crossovers and nature strips, including if any, preexisting damage) will be relied upon to establish the extent of damage caused to the Council’s infrastructure during construction. In the event that the owner/developer fails to provide to the Council a photographic record of the Council’s infrastructure, then any damage to the Council's infrastructure found on completion of works will be deemed to be the responsibility of the owner.
Reason for condition
To ensure that any of the Council's infrastructure and/or siterelated service connections affected by the proposal will be altered and/or reinstated at the owner’s full cost.
ENV 1
Sediment and erosion control measures sufficient to prevent sediment from leaving the site must be installed prior to any disturbance of the site, and maintained until all areas of disturbance have been stabilized or revegetated.
Advice:
For guidance, please see the TEER & DEP (2023) Erosion and Sediment Control guideline documents available from the Derwent Estuary Program’s website.
Reason for condition
To avoid the sedimentation of roads, drains, natural watercourses, Council land that could be caused by erosion and runoff from the development, and to comply with relevant State legislation.
ADVICE
The following advice is provided to you to assist in the implementation of the planning permit that has been issued subject to the conditions above. The advice is not exhaustive and you must inform yourself of any other legislation, bylaws, regulations, codes or standards that will apply to your development under which you may need to obtain an approval. Visit the Council's website for further information.
Prior to any commencement of work on the site or commencement of use the following additional permits/approval may be required from the Hobart City Council.
BUILDING PERMIT
You may need building approval in accordance with the Building Act 2016. Click here for more information.
This is a Discretionary Planning Permit issued in accordance with section 57 of the Land Use Planning and Approvals Act 1993.
PLUMBING PERMIT
You may need plumbing approval in accordance with the Building Act 2016, Building Regulations 2016 and the National Construction Code. Click here for more information.
PLANNING
The applicant is advised that the existing Licence granted on 25 January 2014 must be updated to include the plans showing the proposed verandah that extends into Council's CT 137671/1. This permit is to be read as statutory compliance with Clause 1(h) of the licence agreement.
FEES AND CHARGES
Click here for information on the Council's fees and charges.
DIAL BEFORE YOU DIG
Click here for dial before you dig information.
|
Attachment
a: PLN-24-172
- 15 GOURLAY STREET WEST HOBART TAS 7000 - Planning Committee or Delegated
Report ⇩ ![]()
Attachment
b: PLN-24-172
- 15 GOURLAY STREET WEST HOBART TAS 7000 - PC Agenda Documents ⇩ ![]()
Attachment
c: PLN-24-172
- 15 GOURLAY STREET WEST HOBART TAS 7000 - Planning Referral Officer Cultural
Heritage Report ⇩ ![]()
Attachment
d: PLN-24-172
- 15 GOURLAY STREET WEST HOBART TAS 7000 - Planning Referral Officer Road and
Environmental Engineering - Enviro Report ⇩ ![]()
Attachment
e: PLN-24-172
- 15 GOURLAY STREET WEST HOBART TAS 7000 - Planning Referral Officer Open Space
and Recreation Report ⇩ ![]()
Attachment
f: PLN-24-172
- 15 GOURLAY STREET WEST HOBART TAS 7000 - Planning Referral Officer
Development Engineering Report ⇩ ![]()
Attachment
g: PLN-24-172
- 15 GOURLAY STREET WEST HOBART TAS 7000 - Planning Referral Officer
Environmental Development Planner Report ⇩
|
Agenda (Open Portion) Planning Committee Meeting |
Page 1 |
|
|
|
5/6/2024 |
|
7. Reports
7.1 Delegated Decision Report (Planning)
Memorandum of the Acting Director City Life of 28 May 2024 and attachment.
Delegation: Committee
|
Item No. 7.1 |
Agenda (Open Portion) Planning Committee Meeting |
Page 1 |
|
|
5/6/2024 |
|
Memorandum: Planning Committee
Delegated Decision Report (Planning)
Attached is the delegated planning decisions report for the period 30 April 2024 to 27 May 2024.
|
That: 1. That the information contained in the ‘Delegated Decision Report (Planning)’ be received and noted.
|
As signatory to this report, I certify that, pursuant to Section 55(1) of the Local Government Act 1993, I hold no interest, as referred to in Section 49 of the Local Government Act 1993, in matters contained in this report.
|
Karen Abey Acting Director City Life |
|
Date: 28 May 2024
File Reference: F24/49670
Attachment a: Delegated
Decision Report (Planning) ⇩
|
Agenda (Open Portion) Planning Committee Meeting |
Page 1 |
|
|
|
5/6/2024 |
|
7.2 Planning - Advertised Applications Report
Memorandum of the Acting Director City Life of 29 May 2024 and attachment.
Delegation: Committee
|
Item No. 7.2 |
Agenda (Open Portion) Planning Committee Meeting |
Page 1 |
|
|
5/6/2024 |
|

Memorandum: Planning Committee
Planning - Advertised Applications Report
Attached is the advertised applications list for the period 30 April 2024 to 27 May 2024.
|
That: 1. That the information contained in the ‘Planning – Advertised Applications Report’ be received and noted.
|
As signatory to this report, I certify that, pursuant to Section 55(1) of the Local Government Act 1993, I hold no interest, as referred to in Section 49 of the Local Government Act 1993, in matters contained in this report.
|
Karen Abey Acting Director City Life |
|
Date: 29 May 2024
File Reference: F24/50116
Attachment a: Planning
- Advertised Applications Report ⇩
|
Agenda (Open Portion) Planning Committee Meeting |
Page 1 |
|
|
|
5/6/2024 |
|
Regulation 29(3) Local Government
(Meeting Procedures) Regulations 2015.
File Ref: 13-1-10
The Chief Executive Officer reports:-
“In accordance with the procedures approved in respect to Questions Without Notice, the following responses to questions taken on notice are provided to the Committee for information.
The Committee is reminded that in accordance with Regulation 29(3) of the Local Government (Meeting Procedures) Regulations 2015, the Chairman is not to allow discussion or debate on either the question or the response.”
8.1 Median cost of dwelling - Approvals not commenced
File Ref: F23/94609; 13-1-10
Memorandum of the Acting Director City Life of 23 May 2024.
8.2 Density Clause
File Ref: F24/28747; 13-1-10
Memorandum of the Director City Futures of 23 May 2024.
8.3 Density Provisions
File Ref: F24/28749; 13-1-10
Memorandum of the Acting Director City Life of 23 May 2024.
8.4 Local Provisions Schedule - Bicycle Parking
File Ref: F24/32665; 13-1-10
Memorandum of the Director City Futures of 23 May 2024.
|
That the information be received and noted.
|
Delegation: Committee
|
Item No. 8.1 |
Agenda (Open Portion) Planning Committee Meeting |
Page 1 |
|
|
5/6/2024 |
|
memorandum: Lord
Mayor
Deputy lord Mayor
Elected members
Median cost of dwelling - Approvals not commenced
|
Meeting: Planning Committee
|
Meeting date: 23 August 2023
|
|
Raised by: Councillor Kelly |
|
Question:
Response:
For the purpose of providing a meaningful response, the median price dwelling range is taken to mean the interquartile range of estimated costs for new dwelling approvals. It is also noted that development costs have shifted significantly across the 6 year period, as shown by the median values for such applications ranging from $358,000 in 2018 to $600,000 in 2022; to account for this variation, applications have been considered based on the IQR for the calendar year in which they were approved.
Within the development applications which meet these criteria, there have been 248 approvals for 269 dwellings. Of these, 195 have progressed to building approval, for 209 dwellings; this leaves 53 approvals for 60 dwellings which have not yet progressed to building approval. The table below shows the proportion of approvals which have progressed to building approval by year.
|
Applications |
Dwellings |
|
|
2017 |
83% |
84% |
|
2018 |
84% |
82% |
|
2019 |
85% |
86% |
|
2020 |
88% |
88% |
|
2021 |
84% |
79% |
|
2022 |
55% |
52% |
|
2023 |
53% |
53% |
|
2024 |
50% |
50% |
As signatory to this report, I certify that, pursuant to Section 55(1) of the Local Government Act 1993, I hold no interest, as referred to in Section 49 of the Local Government Act 1993, in matters contained in this report.
|
Karen Abey Acting Director City Life |
|
Date: 23 May 2024
File Reference: F23/94609; 13-1-10
|
Item No. 8.2 |
Agenda (Open Portion) Planning Committee Meeting |
Page 1 |
|
|
5/6/2024 |
|
memorandum: Lord
Mayor
Deputy lord Mayor
Elected members
Density Clause
|
Meeting: Planning Committee
|
Meeting date: 27 March 2024
|
|
Raised by: Councillor Harvey |
|
Question:
Can the Acting Director advice if a response to amending the density clause in the planning scheme can be provided so more certainty to applications / decisions such as 60 Lansdowne Crescent be assessed?
Response:
The assessment of dwelling density in the General Residential Zone, as detailed in the Development Appraisal Officer’s report on 60 Lansdowne Crescent, has been impacted by the required rigid application of the term ‘compatible’ in the following performance criteria as a result of the former Resource Management and Planning Appeal Tribunal’s decision of Clarence City Council v Drury 2021:
(a) is compatible with the density of existing development on established properties in the area; or
The area for consideration was further defined in the J Collier v Launceston City Council and Ors decision. This has resulted in a required assessment that is largely quantitative with very limited flexibility to consider dwelling density greater than that established in the surrounding area.
The density Acceptable Solution and Performance Criteria for the General Residential Zone under the State Planning Provision(SPP) of the Tasmanian Planning Scheme(TPS) is consistent with the standard in the Interim Planning Schemes therefore the rigid approach to the assessment of density will still be apply when the City of Hobart moves to the TPS.
The State Planning Office is currently undertaking major planning reform through the project Improving Residential Standards in Tasmania. The project is well under way with the recommendations being circulated for public consultation in the coming months. From Council’s involvement in the working group on the project, it has been suggested that there will be revision of the density standards with a possible approach considering spatial factors such as the proximity to public transport, services and centres.
For Council to undertake their own planning scheme amendment to amend the density performance criteria of the General Residential Zone would require the application of a Specific Area Plan to the entire zone, and the amendment would require adequate justification to demonstrate the following:
(a) a use or development to which the provision relates is of significant social, economic or environmental benefit to the State, a region or a municipal area; or
(b) the area of land has particular environmental, economic, social or spatial qualities that require provisions, that are unique to the area of land, to apply to the land in substitution for, or in addition to, or modification of, the provisions of the SPPs.
Considering the current progression of the Improving Residential Standards in Tasmania project it is suggested that best course of action would be to first review the recommendations put forward from that project to see if they will provide the opportunity for greater consideration of appropriate density within General Residential Zone area.
As signatory to this report, I certify that, pursuant to Section 55(1) of the Local Government Act 1993, I hold no interest, as referred to in Section 49 of the Local Government Act 1993, in matters contained in this report.
|
Neil Noye Director City Futures |
|
Date: 23 May 2024
File Reference: F24/28747; 13-1-10
|
Item No. 8.3 |
Agenda (Open Portion) Planning Committee Meeting |
Page 1 |
|
|
5/6/2024 |
|
memorandum: Lord
Mayor
Deputy lord Mayor
Elected members
Density Provisions
|
Meeting: Planning Committee
|
Meeting date: 27 March 2024
|
|
Raised by: Councillor Kelly |
|
Question:
Can the Acting Director provide an expanded description to the application of the density provisions within the planning scheme?
Response:
The planning scheme provides a definition of ‘net density’ as ‘the density of development excluding areas set aside for roads or public open space’. This broad-brush definition is not particularly helpful when trying to understand what density is, or what the planning scheme is trying to achieve by regulating it.
In the context of the question without notice, density in the planning scheme is a control on the number of dwellings allowable on a site, which is achieved by linking the existing/proposed number of dwellings on a site with that site’s land area. The planning scheme calls this ‘site area per dwelling’, but it is also referred to as residential density.
Residential density is only a consideration in the residential zones (General, Inner, and Low Density), and the objective of the residential density standards gives an insight into why the planning scheme seeks to control it.
For the General and Inner Residential Zones the purpose of controlling residential density is:
To: (a) make efficient use of land for housing; and (b) optimise the use of infrastructure and community services.
In the Low Density Residential Zone, the purpose is:
To provide for densities for multiple dwellings that are compatible with the existing built and natural environment of the area and do not exceed the capacity of infrastructure services.
In other words, the reason why residential density is controlled by the planning scheme is to ensure that: land is used efficiently; that the capacity of services and infrastructure is not exceeded; and in the case of the Low Density Residential Zone, that the number of dwellings on a site is in keeping with the character of the area both built and natural.
The residential density standards give effect to these objectives by providing an acceptable solution and a performance criteria, either of which can be met by a proposal to satisfy the standard. The acceptable solution sets out an allowable ‘site area per dwelling’, which is a calculation of the site area divided by the number of dwellings existing and/or proposed on a site. If a proposal’s ‘site area per dwelling’ is equal to or less than the acceptable solution ‘site area per dwelling’, then in the view of the planning scheme, the proposal’s residential density is acceptable without any further assessment required. In other words, it is permitted as of right. If the proposal’s ‘site area per dwelling’ exceeds that of the acceptable solution, it gets assessed against the matters set out in the performance criteria, and it is at the discretion of the Planning Authority to determine if the proposed residential density is allowable or not.
The performance criteria for each of the three residential zones are set out below.
General Residential Zone
Multiple dwellings must only have a site area per dwelling that is less than 325m2, if the development will not exceed the capacity of infrastructure services and:
(a) is compatible with the density of existing development on established properties in the area; or
(b) provides for a significant social or community benefit and is: (i) wholly or partly within 400m walking distance of a public transport stop; or (ii) wholly or partly within 400m walking distance of an Inner Residential Zone, Village Zone, Urban Mixed Use Zone, Local Business Zone, General Business Zone, Central Business Zone or Commercial Zone.
Inner Residential Zone
Multiple dwellings must only have a site area per dwelling less than 200m2 if:
(a) the development contributes to a range of dwelling types and sizes appropriate to the surrounding area; or
(b) the development provides for a specific accommodation need with significant social or community benefit.
Low Density Residential Zone
Multiple dwellings may only have a site area per dwelling of less than 1500m2 if the number of dwellings:
(a) is not out of character with the pattern of development in the surrounding area; and
(b) does not result in an unreasonable loss of natural or landscape values; and
(c) does not exceed the capacity of the current or intended infrastructure services in the area.
Given these performance criteria are intended to give achieve the objectives of the residential density standards, it follows that these performance criteria are aimed at ensuring any proposed residential density that is not in accordance with the acceptable solution: doesn’t exceed the capacity of services and infrastructure; and is in keeping with the character of the built and natural environment in the surrounding area. Notably, there is a further relaxation allowed for in the General and Inner Residential Zones if a specific accommodation need is being met, like social or affordable housing.
It is worth noting that the ability of the Council (as Planning Authority) to exercise its discretion in assessing a proposal’s compliance with the above performance criteria has been limited by the way the words in those clauses have been interpreted by the Appeals Tribunal and the Supreme Court. While this is an evolving area, it is currently very difficult, particularly in the General Residential Zone, to approve a proposal that has a residential density that is not similar to that found in the surrounding area.
It is also worth noting that the residential density standards are limited to the extent that they focus on dwelling numbers only, rather than number of bedrooms in a dwelling, or even the likely occupancy numbers (i.e. the likely number of people on the site). As such, the residential density standard is somewhat of a crude assessment tool which focusses on development, while ignoring the intensity of a residential use that might be present on any given site.
In summary:
1. The residential density standards in the planning scheme seek to regulate the number of dwellings on a lot, by linking dwelling numbers to the land area of a site.
2. The reason why residential density is controlled is so that land is used efficiently, the capacity of services and infrastructure is not exceeded, and the natural and built character of the surrounding area is reasonably protected.
3. The residential density standards can be met either by satisfying a quantitative acceptable solution, or a qualitative performance criteria.
4. Limitations on the residential density standards include the way they have been interpreted by the Appeals Tribunal and Supreme Court, as well as their focus on dwelling numbers, as opposed to a different metric that would also address the intensity of a residential use on a site.
As signatory to this report, I certify that, pursuant to Section 55(1) of the Local Government Act 1993, I hold no interest, as referred to in Section 49 of the Local Government Act 1993, in matters contained in this report.
|
Karen Abey Acting Director City Life |
|
Date: 23 May 2024
File Reference: F24/28749; 13-1-10
|
Item No. 8.4 |
Agenda (Open Portion) Planning Committee Meeting |
Page 1 |
|
|
5/6/2024 |
|
memorandum: Lord
Mayor
Deputy lord Mayor
Elected members
Local Provisions Schedule - Bicycle Parking
|
Meeting: Planning Committee
|
Meeting date: 10 April 2024
|
|
Raised by: Councillor Posselt |
|
Question:
Can the Acting Director advise on bicycle parking within the LPS and if it is in fact absent can advice be provided to Elected Members on how to modify for minimums to be applied for residential applications?
Response:
The matter of bicycle parking is contained within the C2.0 Parking and Sustainable Transport Code of the State Planning Provision (SPP) of the Tasmanian Planning Scheme (TPS) and is not contained within the Local Provision Schedule (LPS) of the Planning Schemes. Although there are bicycle parking requirements for the majority of use types within the Code, for residential uses there is no requirement. The Council, acting as a corporation, raised the issue of including bicycle parking for residential uses and implementing it through a Specific Area Plan within its representation on the Hobart Draft LPS. However, the planning consultant engaged to respond to the representations on the Council’s behalf, and acting as the Planning Authority, provided the following response:
In recognition of the increasing usage of bicycles, and in particular electric bikes, the Council is of the view that bicycle parking for medium density should be regulated through the planning scheme as an SAP. Similar to the other suggestions of SAPs, compliance with Section 32(4) of the Act is necessary, and this is considered to be problematic given that this is not an issue specifically relevant to Hobart. Council should instead advocate for an update to the SPPs and specifically the Parking and Sustainable Transport Code.
Although Council will continue to advocate for bicycle parking at the appropriate opportunities, the State Planning Office is currently undertaking major planning reform through the project Improving Residential Standards in Tasmania. The project is well underway, with the recommendations being circulated for public consultation in the coming months. The Improving Residential Standards in Tasmania Discussion Paper highlighted that there was to be a review of vehicle and bicycle parking numbers in respect of residential use. In the coming months, when Council officers have the opportunity to review and provide comment on the recommendations of the project, the matter of how bicycle parking has been addressed can be considered.
As signatory to this report, I certify that, pursuant to Section 55(1) of the Local Government Act 1993, I hold no interest, as referred to in Section 49 of the Local Government Act 1993, in matters contained in this report.
|
Neil Noye Director City Futures |
|
Date: 23 May 2024
File Reference: F24/32665; 13-1-10
|
|
Agenda (Open Portion) Planning Committee Meeting |
Page 1 |
|
|
5/6/2024 |
|
Regulation 29 of the Local Government (Meeting Procedures) Regulations 2015.
File Ref: 13-1-10
(1) A councillor at a meeting may ask a question without notice –
(a) of the chairperson; or
(b) through the chairperson, of –
(i) another councillor; or
(ii) the general manager.
(2) In putting a question without notice at a meeting, a councillor must not –
(a) offer an argument or opinion; or
(b) draw any inferences or make any imputations – except so far as may be necessary to explain the question.
(3) The chairperson of a meeting must not permit any debate of a question without notice or its answer.
(4) The chairperson, councillor or general manager who is asked a question without notice at a meeting may decline to answer the question.
(5) The chairperson of a meeting may refuse to accept a question without notice if it does not relate to the activities of the council.
(6) Questions without notice, and any answers to those questions, are not required to be recorded in the minutes of the meeting.
(7) The chairperson of a meeting may require a councillor to put a question without notice in writing.
|
|
Agenda (Open Portion) Planning Committee Meeting |
Page 1 |
|
|
5/6/2024 |
|