
City
of hobart
AGENDA
Special Planning Authority Committee Meeting
Open Portion
Wednesday, 8 January 2025
at 4:00pm
Council Chamber, Town Hall
Working together to make Hobart a better place for the community.
THE VALUES
The Council is:
|
People |
We care about people – our community, our customers and colleagues. |
|
Teamwork |
We collaborate both within the organisation and with external stakeholders drawing on skills and expertise for the benefit of our community. |
|
Focus and Direction |
We have clear goals and plans to achieve sustainable social, environmental and economic outcomes for the Hobart community. |
|
Creativity and Innovation |
We embrace new approaches and continuously improve to achieve better outcomes for our community. |
|
Accountability |
We are transparent, work to high ethical and professional standards and are accountable for delivering outcomes for our community. |
|
|
Agenda (Open Portion) Special Planning Authority Committee Meeting |
Page 3 |
|
|
8/1/2025 |
|
Business listed on the agenda is to be conducted in the order in which it is set out, unless the committee by simple majority determines otherwise.
APOLOGIES AND LEAVE OF ABSENCE
2. Indications of Pecuniary and Conflicts of Interest
3. Planning Authority Items - Consideration of Items With Deputations
4. Committee Acting as Planning Authority
4.1 Applications under the City of Hobart Planning Scheme
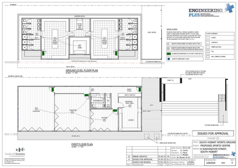
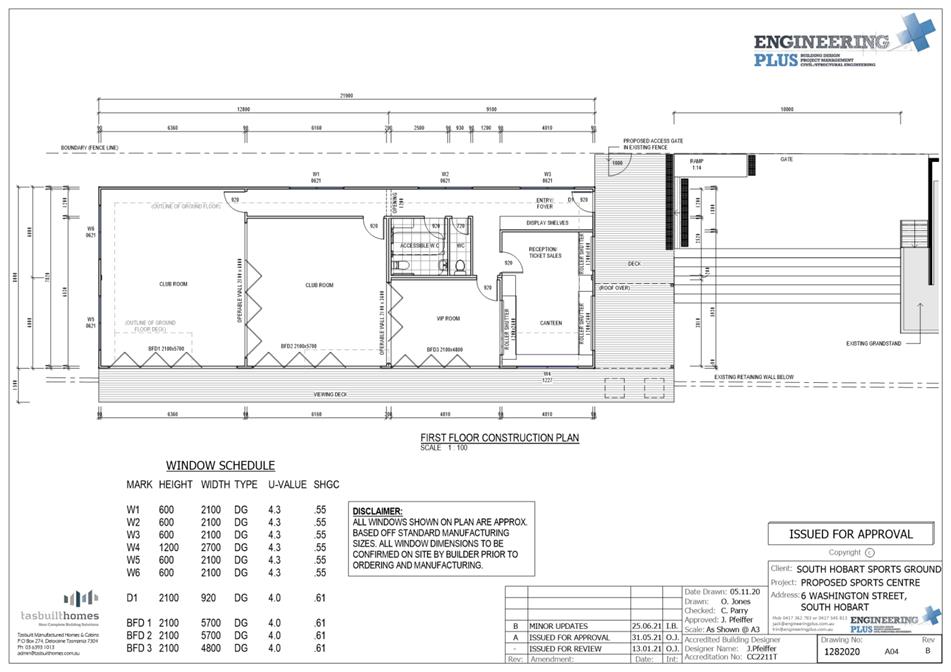
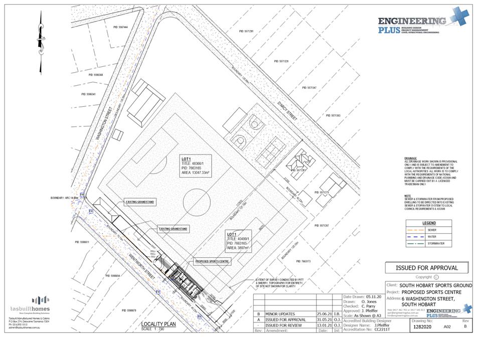
4.1.1 6 Washington Street, Sourth Hobart - New Building for Sport and Recreation
|
|
Agenda (Open Portion) Special Planning Authority Committee Meeting |
Page 5 |
|
|
8/1/2025 |
|
Special Planning Authority Committee Meeting (Open Portion) held Wednesday, 8 January 2025 at 4:00pm in the Council Chamber, Town Hall.
The title Chief Executive Officer is a term of reference for the General Manager as appointed by Council pursuant s.61 of the Local Government Act 1993 (Tas).
|
APPOINTED MEMBERS Councillor M Dutta (Chairperson) Lord Mayor Councillor A M Reynolds Deputy Lord Mayor Cr Dr Sherlock Councillor W F Harvey Councillor R Posselt Councillor B Lohberger Councillor G Kitsos
NOMINEE MEMBERS Alderman M Zucco Councillor J Kelly Councillor L Elliot Alderman L Bloomfield Councillor W Coats
|
Apologies:
Leave of Absence: Nil.
|
Ref: Part 2, Regulation 8(7) of the Local Government (Meeting Procedures) Regulations 2015.
Members of the Committee are requested to indicate where they may have any pecuniary or conflict of interest in respect to any matter appearing on the agenda, or any supplementary item to the agenda, which the Committee has resolved to deal with.
In accordance with the requirements of Part 2 Regulation 8(3) of the Local Government (Meeting Procedures) Regulations 2015, the Chief Executive Officer is to arrange the agenda so that the planning authority items are sequential.
In accordance with Part 2 Regulation 8(4) of the Local Government (Meeting Procedures) Regulations 2015, the Committee by simple majority may change the order of any of the items listed on the agenda, but in the case of planning items they must still be considered sequentially – in other words they still have to be dealt with as a single group on the agenda.
Where deputations are to be received in respect to planning items, past practice has been to move consideration of these items to the beginning of the meeting.
RECOMMENDATION
That in accordance with Regulation 8(4) of the Local Government (Meeting Procedures) Regulations 2015, the Committee resolve to deal with any items which have deputations by members of the public regarding any planning matter listed on the agenda, to be taken out of sequence in order to deal with deputations at the beginning of the meeting.
In accordance with the provisions of Part 2 Regulation 25 of the Local Government (Meeting Procedures) Regulations 2015, the intention of the Committee to act as a planning authority pursuant to the Land Use Planning and Approvals Act 1993 is to be noted.
In accordance with Regulation 25, the Committee will act as a planning authority in respect to those matters appearing under this heading on the agenda, inclusive of any supplementary items.
The Committee is reminded that in order to comply with Regulation 25(2), the Chief Executive Officer is to ensure that the reasons for a decision by a Council or Council Committee acting as a planning authority are recorded in the minutes.
|
Agenda (Open Portion) Special Planning Authority Committee Meeting |
Page 7 |
|
|
|
8/1/2025 |
|
4.1 Applications under the City of Hobart Planning Scheme
4.1.1 6 Washington Street, Sourth Hobart - New Building for Sport and Recreation
Address: 6 Washington Street, South Hobart
Proposal: New Building for Sport and Recreation
Expiry Date: 10 January 2025
Extension of Time:
Author: Adam Smee
|
REcommendation That Pursuant to the Hobart Interim Planning Scheme 2015, the Council approve the application for New Building for Sport and Recreation at 6 Washington St, South Hobart for the reasons outlined in the officer’s report and a permit containing the following conditions be issued:
GEN – General
The use and/or development must be substantially in accordance with the documents and drawings that comprise PLN-HOB-2024-0583 - Final Planning Documents except where modified below.
TW – General
The use and/or development must comply with the requirements of TasWater as detailed in the form Submission to Planning Authority Notice, Reference No. TASWASPAN-HOB-2024-0073 dated 22/11/2024 as attached to the permit.
ENG 1 - Development Engineering - Protection of Council Assets
Any damage to council infrastructure resulting from the implementation of this permit, must, at the discretion of the Council:
1. Be met by the owner by way of reimbursement (cost of repair and reinstatement to be paid by the owner to the Council); or 2. Be repaired and reinstated by the owner to the satisfaction of the Council.
A photographic record of the Council's infrastructure adjacent to the subject site must be provided to the Council prior to any commencement of works.
A photographic record of the Council’s infrastructure (e.g. existing property service connection points, roads, buildings, stormwater, footpaths, driveway crossovers and nature strips, including if any, pre-existing damage) will be relied upon to establish the extent of damage caused to the Council’s infrastructure during construction. In the event that the owner/developer fails to provide to the Council a photographic record of the Council’s infrastructure, then any damage to the Council's infrastructure found on completion of works will be deemed to be the responsibility of the owner.
Advice:
The public main passing near the proposed works is considered critical infrastructure and must be protected during construction. A separate consent would be required for any works within 1m of the public stormwater mains under Urban Drainage Act 2013.
ENG sw1 - Development Engineering – Stormwater
All stormwater from the proposed development (including but not limited to: roofed areas, ag drains, retaining wall ag drains and impervious surfaces such as driveways and paved areas) must be drained to the Council’s stormwater infrastructure prior to first occupation or commencement of use (whichever occurs first).
Advice:
Under section 23 of the Urban Drainage Act 2013 it is an offence for a property owner to direct stormwater onto a neighbouring property.
SW 7 - Stormwater – Design
Prior to occupancy or the commencement of the use (whichever occurs first), any new or upgraded stormwater connection required must be constructed and existing redundant connection(s) be abandoned and sealed at the owner’s expense. Should a new connection be proposed, prior to the issuing of any approval under the Building Act 2016 or commencement of works (whichever occurs first), detailed engineering drawings must be submitted and approved. The detailed engineering drawings must include:
1. The location of the proposed connections and all existing connections;
2. The size and design of the connection such that it is appropriate to safely service the development; 3. Clearances from any nearby obstacles (e.g. services, crossovers, trees, poles, walls); 4. Long-sections of the proposed connection clearly showing cover, size, grade, material and delineation of public and private infrastructure; 5. Connections which are free-flowing gravity driven; and 6. Be in general accordance with Council's departures from the LGAT Tasmanian Standard Drawings, available from our website. All work required by this condition must be undertaken in accordance with the approved detailed engineering drawings.
Advice:
Upgraded or new connections can be approved either via the CEP process or via the Application for New Connection form available from here. The approved stormwater connection documents must be included in your plumbing permit application document set and listed in accompanying forms.
A single connection for each property is generally permitted under the Urban Drainage Act 2013. Any proposal for multiple connections must include a clear justification demonstrating that a single connection cannot adequately drain the property.
SW 9 - Stormwater – Design
Prior to occupancy or the commencement of the approved use (whichever occurs first), detention for stormwater discharges from the development must be installed.
A stormwater management report and design must be submitted and approved as a Condition Endorsement, prior to the issue of any approval under the Building Act 2016 or the commencement of work on the site (whichever occurs first). The stormwater management report and design must be prepared by a suitably qualified engineer and must:
1. include detailed design and supporting calculations of the detention tank showing: a) detention tank sizing such that there is no increase in flows from the developed site up to 5% AEP event and no worsening of flooding; b) the layout, the inlet and outlet (including long section), outlet size, overflow mechanism and invert level; c) the discharge rates and emptying times; and d) all assumptions must be clearly stated;
2. include a supporting maintenance plan, which specifies the required maintenance measures to check and ensure the ongoing effective operation of all systems, such as: inspection frequency; cleanout procedures; descriptions and diagrams of how the installed systems operate; details of the life of assets and replacement requirements. All work required by this condition must be undertaken and maintained in accordance with the approved stormwater management report and design.
Advice:
This condition requires further information to be submitted as a Condition Endorsement. Refer to the Condition Endorsement advice at the end of this permit. Council notes that the capacity of the existing downstream public stormwater system has not been adequately demonstrated. Council recommends Water Sensitive Urban Design and the use of dual purpose (harvesting and detention) tanks.
ENV 1 - Environmental Planning - Soil Water Management Plan
Sediment and erosion control measures sufficient to prevent sediment from leaving the site must be installed prior to any disturbance of the site, and maintained until all areas of disturbance have been stabilized or re-vegetated.
Advice:
For guidance, please see the TEER & DEP (2023) Erosion and Sediment Control guideline documents available from the Derwent Estuary Program’s website.
Approved Use
The development is approved for use that is directly associated with and subservient to sports and recreation use of the site. The development is not approved as a function centre and must not be used for a use that is not directly associated with and subservient to sports and recreation use of the site.
PLN 8 - Hours of Operation
The approved hours of operation are:
1. 7.00 am to 8.00 pm Mondays to Fridays inclusive; 2. 8.00 am to 6.00 pm Saturdays; 3. 10.00 am to 5.00 pm Sundays and Public Holidays;
except for office and administrative tasks.
PLN s1 - Commercial and Patron Vehicle Movements
Unless further approval is obtained, commercial and patron vehicle movements (including loading and unloading and garbage removal) to or from the site must be within the hours of:
1. 7.00 am to 9.00 pm Mondays to Fridays inclusive; 2. 8.00 am to 7.00 pm Saturdays; 3. 10.00 am to 6.00 pm Sundays and Public Holidays.
Unless further approval is obtained, loading and unloading of commercial and patron vehicles (including garbage removal) must be contained within the subject property.
PLN s2 - Removal of Trees
The removal of trees within the Wentworth Street road reservation is not approved. Any street trees adjacent to the development must be protected during construction of the development in accordance with AS 4970-2009 Protection of trees on development sites. Any trimming or other modification of adjacent street trees requires further approval from Council.
PLN s3 - Pedestrian Gate and Rubbish Bin
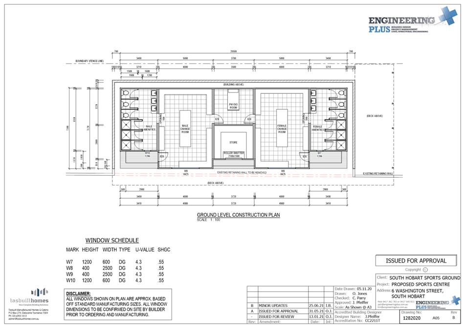
The pedestrian gate and rubbish bin shown at the south-eastern end of the site's Wentworth Street frontage on the site plan (drawing no. 1282020, A03, Rev B) are not approved. Any existing vehicular access at this point on the frontage must be maintained.
PLN s 4 - External Lighting
External lighting must be provided for new pathways, including between the revised pedestrian entrance to the site from Wentworth Street and the approved building.
Any external lighting provided for the development must be turned off between 9:00 pm and 6:00 am, except for security lighting which must be baffled to ensure it does not cause emission of light beyond the site.
PLN s5 - External Amplified Loud Speakers and Music
The use of external amplified loud speakers or music on the site is not approved.
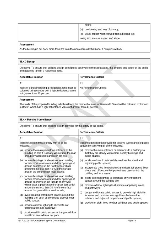
HER 12 - Heritage - Colour and Finish
The palette of exterior colours, materials and finishes must reflect the palette of colours, materials and finishes within the local streetscape and precinct. A separate materials board must be submitted. The palette of exterior colours must not include colours with a light reflectance value greater than 40 percent. The proposed external colour "Surfmist" is not approved as it has a light reflectance value greater than 40 percent.
Prior to the issue of any approval under the Building Act 2016 or the commencement of work on the site (whichever occurs first), a materials board must be submitted and approved as a condition endorsement showing exterior colours, materials and finishes in accordance with the above requirement.
All work required by this condition must be undertaken in accordance with the approved plans.
Advice:
This condition requires further information to be submitted as a Condition Endorsement. Refer to the Condition Endorsement advice at the end of this permit.
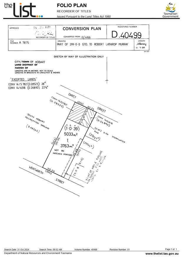
SURV 1 - Title Adhesion
Prior to the issue of any approval pursuant to the Building Act 2016, the titles comprising the development site (CT 48366/1 and CT 40499/1) must be adhered in accordance with the provisions of Section 110 of the Local Government (Building and Miscellaneous Provisions) Act 1993, to the satisfaction of the Council.
Advice:
The application for an adhesion order to the Council has a fee of $315. Evidence will be required that the owners and mortgagees do not object to the adhesion and the condition is considered completed when a copy of the receipt for the Land Titles Office lodgement slip for the adhesion order has been received by the Council.
ADVICE
The following advice is provided to you to assist in the implementation of the planning permit that has been issued subject to the conditions above. The advice is not exhaustive and you must inform yourself of any other legislation, bylaws, regulations, codes or standards that will apply to your development under which you may need to obtain an approval. Visit the Council's website for further information. Prior to any commencement of work on the site or commencement of use the following additional permits/approval may be required from the Hobart City Council.
CONDITION ENDORSEMENT
If any condition requires that further documents are submitted and approved, you will need to submit the relevant documentation to satisfy the condition via the Condition Endorsement Submission through PlanBuild. Detailed instructions can be found here.
Once approved, the Council will respond to you via PlanBuild that the condition has been endorsed (satisfied).
Where building approval is also required, it is recommended that documentation for condition endorsement be submitted well before submitting documentation for building approval. Failure to address condition endorsement requirements prior to submitting for building approval may result in unexpected delays.
Fees for Condition Endorsement are set out in Council’s Fees and Charges.
BUILDING APPROVAL
You may need building approval in accordance with the Building Act 2016. Click here for more information.
This is a Discretionary Planning Permit issued in accordance with section 57 of the Land Use Planning and Approvals Act 1993.
PLUMBING APPROVAL
You may need plumbing approval in accordance with the Building Act 2016, Building Regulations 2016, and the National Construction Code. Click here for more information.
OCCUPATION OF THE PUBLIC HIGHWAY
You may require a permit for the occupation of the public highway for construction or special event (e.g. placement of skip bin, crane, scissor lift etc.). Click here for more information.
NEW SERVICE CONNECTION
Please contact the Hobart City Council's Infrastructure and Assets Network to initiate the application process for your new stormwater connection.
STORMWATER
Please note that in addition to a building and/or plumbing permit, development must be in accordance with the Hobart City Council’s Infrastructure By law. Click here for more information.
STRUCTURES CLOSE TO COUNCIL'S STORMWATER MAIN
The design of structures (including footings) must provide protection for the Council’s infrastructure. For information regarding appropriate designs please contact the Council's Infrastructure and Assets Network. You may need the General Manager's consent under section 13 of the Urban Drainage Act 2013 and consent under section 73 or 74 of the Building Act 2016.
RIGHT OF WAY
The private right of way must not be reduced, restricted or impeded in any way, and all beneficiaries must have complete and unrestricted access at all times.
You should inform yourself as to your rights and responsibilities in respect to the private right of way particularly reducing, restricting or impeding the right during and after construction.
FEES AND CHARGES
Click here for information on the Council's fees and charges.
BEFORE YOU DIG
Click here for before you dig information.
WHEELCHAIR ACCESSIBILITY
The proponent is encouraged to seek advice from Council's Design Services Team regarding the maintenance and provision of wheelchair access to the site.
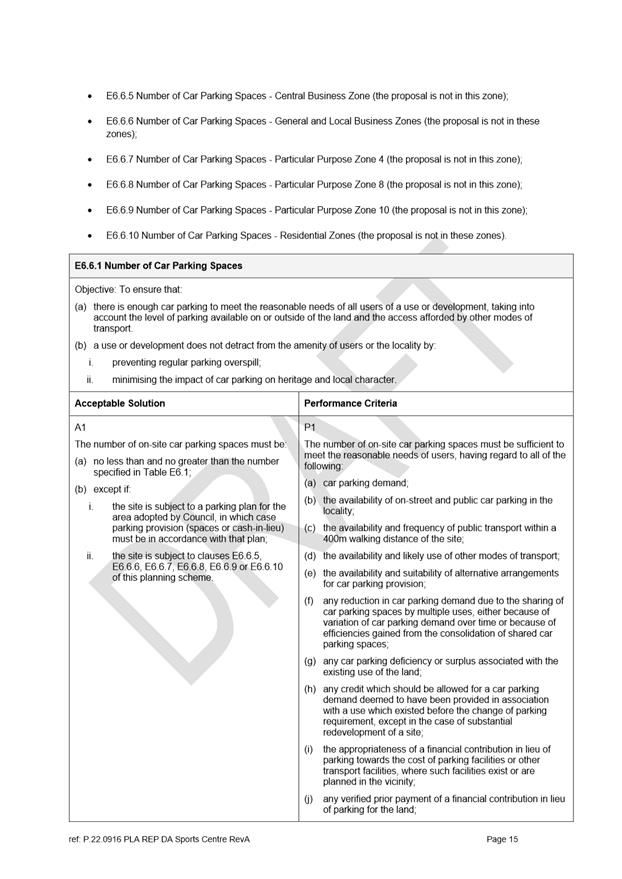
TRAFFIC AND PARKING MANAGEMENT PLAN
The proponent is encouraged to development and implement a Traffic and Parking Management Plan for days when matches are held at the ground. The plan should address issues such as visiting team bus parking and include measures to reduce demand for on-street car parking in the area surrounding the site. The proponent is encouraged to seek advice from Council's City Transport Unit regarding developing the plan.
|
Attachment a: PLN-HOB-2024-0583
- 6 WASHINGTON STREET SOUTH HOBART -PLANNING ASSESSMENT REPORT ⇩
![]()
Attachment
b: PLN-HOB-2024-0583
- 6 WASHINGTON ST SOUTH HOBART TAS 7004 - PAC Agenda Documents ⇩
|
Item No. 4.1.1 |
Agenda (Open Portion) Special Planning Authority Committee Meeting - 8/1/2025 |
Page 1 ATTACHMENT a |
























|
Agenda (Open Portion) Special Planning Authority Committee Meeting - 8/1/2025 |
Page 1 ATTACHMENT b |








































