
City
of hobart
AGENDA
Planning Committee Meeting
Open Portion
Wednesday, 19 June 2024
at 5.00 pm
Council Chamber, Town Hall
Working together to make Hobart a better place for the community.
THE VALUES
The Council is:
|
People |
We care about people – our community, our customers and colleagues. |
|
Teamwork |
We collaborate both within the organisation and with external stakeholders drawing on skills and expertise for the benefit of our community. |
|
Focus and Direction |
We have clear goals and plans to achieve sustainable social, environmental and economic outcomes for the Hobart community. |
|
Creativity and Innovation |
We embrace new approaches and continuously improve to achieve better outcomes for our community. |
|
Accountability |
We are transparent, work to high ethical and professional standards and are accountable for delivering outcomes for our community. |
|
|
Agenda (Open Portion) Planning Committee Meeting |
Page 3 |
|
|
19/6/2024 |
|
Business listed on the agenda is to be conducted in the order in which it is set out, unless the committee by simple majority determines otherwise.
APOLOGIES AND LEAVE OF ABSENCE
2. Consideration of Supplementary Items
3. Indications of Pecuniary and Conflicts of Interest
5. Planning Authority Items - Consideration of Items With Deputations
6. Committee Acting as Planning Authority
6.1 Applications under the Hobart Interim Planning Scheme 2015
6.1.1 132a Melville Street, Hobart - Common Land of Parent Title - Three Multiple Dwellings
7.1 Delegated Decision Report (Planning)
7.2 Planning - Advertised Applications Report
8. Responses to Questions Without Notice
8.1 Planning Reform Around Short Stay Accommodation
8.3 Compliance Monitoring Gambling
8.4 Boarding Houses - Planning Scheme
10. Closed Portion Of The Meeting
|
|
Agenda (Open Portion) Planning Committee Meeting |
Page 5 |
|
|
19/6/2024 |
|
Planning Committee Meeting (Open Portion) held Wednesday, 19 June 2024 at 5.00 pm in the Council Chamber, Town Hall.
The title Chief Executive Officer is a term of reference for the General Manager as appointed by Council pursuant s.61 of the Local Government Act 1993 (Tas).
|
COMMITTEE MEMBERS Councillor M Dutta (Chairperson) Lord Mayor Councillor A M Reynolds Deputy Lord Mayor Cr Dr Z Sherlock Alderman M Zucco Councillor W F Harvey Councillor J Kelly Councillor L Elliot Alderman L Bloomfield Councillor R Posselt Councillor B Lohberger Councillor W Coats Councillor G Kitsos
|
Apologies:
Leave of Absence: Nil.
|
|
The minutes of the Open Portion of the Planning Committee meeting held on Wednesday, 5 June 2024, are submitted for confirming as an accurate record.
|
Ref: Part 2, Regulation 8(6) of the Local Government (Meeting Procedures) Regulations 2015.
|
That the Committee resolve to deal with any supplementary items not appearing on the agenda, as reported by the Chief Executive Officer.
|
Ref: Part 2, Regulation 8(7) of the Local Government (Meeting Procedures) Regulations 2015.
Members of the Committee are requested to indicate where they may have any pecuniary or conflict of interest in respect to any matter appearing on the agenda, or any supplementary item to the agenda, which the Committee has resolved to deal with.
Regulation 15 of the Local Government (Meeting Procedures) Regulations 2015.
A Committee may close a part of a meeting to the public where a matter to be discussed falls within 15(2) of the above regulations.
In the event that the Committee transfer an item to the closed portion, the reasons for doing so should be stated.
Are there any items which should be transferred from this agenda to the closed portion of the agenda, or from the closed to the open portion of the agenda?
In accordance with the requirements of Part 2 Regulation 8(3) of the Local Government (Meeting Procedures) Regulations 2015, the Chief Executive Officer is to arrange the agenda so that the planning authority items are sequential.
In accordance with Part 2 Regulation 8(4) of the Local Government (Meeting Procedures) Regulations 2015, the Committee by simple majority may change the order of any of the items listed on the agenda, but in the case of planning items they must still be considered sequentially – in other words they still have to be dealt with as a single group on the agenda.
Where deputations are to be received in respect to planning items, past practice has been to move consideration of these items to the beginning of the meeting.
RECOMMENDATION
That in accordance with Regulation 8(4) of the Local Government (Meeting Procedures) Regulations 2015, the Committee resolve to deal with any items which have deputations by members of the public regarding any planning matter listed on the agenda, to be taken out of sequence in order to deal with deputations at the beginning of the meeting.
In accordance with the provisions of Part 2 Regulation 25 of the Local Government (Meeting Procedures) Regulations 2015, the intention of the Committee to act as a planning authority pursuant to the Land Use Planning and Approvals Act 1993 is to be noted.
In accordance with Regulation 25, the Committee will act as a planning authority in respect to those matters appearing under this heading on the agenda, inclusive of any supplementary items.
The Committee is reminded that in order to comply with Regulation 25(2), the Chief Executive Officer is to ensure that the reasons for a decision by a Council or Council Committee acting as a planning authority are recorded in the minutes.
|
Agenda (Open Portion) Planning Committee Meeting |
Page 7 |
|
|
|
19/6/2024 |
|
6.1 Applications under the Hobart Interim Planning Scheme 2015
6.1.1 132a Melville Street, Hobart - Common Land of Parent Title - Three Multiple Dwellings
Address: 132A Melville Street, Hobart and Common Land of Parent Title
Proposal: Three Multiple Dwellings
Expiry Date: 29 July 2024
Extension of Time: Not applicable
Author: Daniel Burke
|
REcommendation That pursuant to the Hobart Interim Planning Scheme 2015, the Planning Committee, in accordance with the delegations contained in its terms of reference, refuses the application for Three Multiple Dwellings, at 132A Melville Street, Hobart for the following reasons:
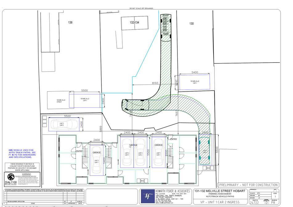
1 The proposal does not meet the acceptable solution or the performance criterion with respect to clause E5.5.1 (A3 and P3) of the Hobart Interim Planning Scheme 2015 because proposed ingress and egress is not to Council's standards and provides limited ease of access and would not allow adequate level of service to all beneficiaries of the Right of Way. 2 The proposal does not meet the acceptable solution or the performance criterion with respect to clause E6.6.1 (A1 and P1) of the Hobart Interim Planning Scheme 2015 as six (6) onsite car parking spaces are unlikely to meet the demands associated with the development considering the limited supply of onstreet parking, much of which is timerestricted. 3 The proposal does not meet the acceptable solution or the performance criterion with respect to clause E6.7.2 (A1 and P1) of the Hobart Interim Planning Scheme 2015 because the only access point is via an access width which is not compliant with the Australian Standard 2890.1, impacting flow of traffic to adjoining road, safety and usability.
4 The proposal does not meet the acceptable solution or the performance criterion with respect to clause E6.7.3 (A1 and P1) of the Hobart Interim Planning Scheme 2015 because the lack of passing area, compounded with an access width which is noncomplaint with Australian Standard 2890.1, will likely discourage users from accessing the onsite parking and unreasonably interfere with traffic flow and operate at an inadequate level of service.
5 The proposal does not meet the acceptable solution or the performance criterion with respect to clause E6.7.5 (A1 and P1) of the Hobart Interim Planning Scheme 2015 because the access width which is noncomplaint with Australian Standard 2890.1, it does not promote ease of access, and turnpaths for a B99 vehicle would validate the likelihood of conflict with adjacent objects given the access width of only 2.6 metres.
|
Attachment a: PLN-23-203
- 132A MELVILLE STREET HOBART TAS 7000 - Planning Committee or Delegated Report ⇩ ![]()
Attachment
b: PLN-23-203
- 132A MELVILLE STREET HOBART TAS 7000 - Planning Committee Agenda Documents ⇩ ![]()
Attachment
c: PLN-23-203
- 132A MELVILLE STREET HOBART TAS 7000 - Planning Referral Officer Development
Engineer Report ⇩ ![]()
Attachment
d: PLN-23-203
- 132A MELVILLE STREET HOBART TAS 7000 - Planning Referral Officer Cultural
Heritage Report ⇩
|
Agenda (Open Portion) Planning Committee Meeting |
Page 1 |
|
|
|
19/6/2024 |
|
7. Reports
7.1 Delegated Decision Report (Planning)
Memorandum of the Acting Director City Life of 13 June 2024 and attachment.
Delegation: Committee
|
Item No. 7.1 |
Agenda (Open Portion) Planning Committee Meeting |
Page 1 |
|
|
19/6/2024 |
|
Memorandum: Planning Committee
Delegated Decision Report (Planning)
Attached is the delegated planning decisions report for the period 28 May 2024 to 12 June 2024.
|
That: 1. That the information contained in the ‘Delegated Decision Report (Planning)’ be received and noted.
|
As signatory to this report, I certify that, pursuant to Section 55(1) of the Local Government Act 1993, I hold no interest, as referred to in Section 49 of the Local Government Act 1993, in matters contained in this report.
|
Karen Abey Acting Director City Life |
|
Date: 13 June 2024
File Reference: F24/56258
Attachment a: Delegated
Decision Report (Planning) ⇩
|
Item No. 7.2 |
Agenda (Open Portion) Planning Committee Meeting |
Page 1 |
|
|
19/6/2024 |
|
7.2 Planning - Advertised Applications Report
Memorandum of the Acting Director City Life of 13 June 2024 and attachment.
Delegation: Committee
|
Item No. 7.2 |
Agenda (Open Portion) Planning Committee Meeting |
Page 1 |
|
|
19/6/2024 |
|

Memorandum: Planning Committee
Planning - Advertised Applications Report
Attached is the advertised applications list for the period 28 May 2024 to12 June 2024.
|
That: 1. That the information contained in the ‘Planning – Advertised Applications Report’ be received and noted.
|
As signatory to this report, I certify that, pursuant to Section 55(1) of the Local Government Act 1993, I hold no interest, as referred to in Section 49 of the Local Government Act 1993, in matters contained in this report.
|
Karen Abey Acting Director City Life |
|
Date: 13 June 2024
File Reference: F24/56265
Attachment a: Planning
- Advertised Applications Report ⇩
|
Agenda (Open Portion) Planning Committee Meeting |
Page 1 |
|
|
|
19/6/2024 |
|
Regulation 29(3) Local Government
(Meeting Procedures) Regulations 2015.
File Ref: 13-1-10
The Chief Executive Officer reports:-
“In accordance with the procedures approved in respect to Questions Without Notice, the following responses to questions taken on notice are provided to the Committee for information.
The Committee is reminded that in accordance with Regulation 29(3) of the Local Government (Meeting Procedures) Regulations 2015, the Chairman is not to allow discussion or debate on either the question or the response.”
8.1 Planning Reform Around Short Stay Accommodation
File Ref: F23/124235; 13-1-10
Memorandum of the Acting Director City Life of 13 June 2024.
8.2 Public Land - Gambling
File Ref: F24/7691
Memorandum of the Acting Director City Life of 13 June 2024.
8.3 Compliance Monitoring Gambling
File Ref: F24/7692
Memorandum of the Acting Director City Life of 13 June 2024.
8.4 Boarding Houses - Planning Scheme
File Ref: F24/38507; 13-1-10
Memorandum of the Director City Futures of 13 June 2024.
|
That the information be received and noted.
|
Delegation: Committee
|
Item No. 8.1 |
Agenda (Open Portion) Planning Committee Meeting |
Page 1 |
|
|
19/6/2024 |
|
memorandum: Lord
Mayor
Deputy lord Mayor
Elected members
Planning Reform Around Short Stay Accommodation
|
Meeting: Planning Committee
|
Meeting date: 8 November 2023
|
|
Raised by: Lord Mayor Councillor Reynolds |
|
Question:
Can an update be provided on what is happening with planning reform around short stay accommodation, are there any other pathways that are being pursued?
Response:
Amendments to the short stay accommodation provisions will be pursued through the LPS process.
As signatory to this report, I certify that, pursuant to Section 55(1) of the Local Government Act 1993, I hold no interest, as referred to in Section 49 of the Local Government Act 1993, in matters contained in this report.
|
Karen Abey Acting Director City Life |
|
Date: 13 June 2024
File Reference: F23/124235; 13-1-10
|
Item No. 8.2 |
Agenda (Open Portion) Planning Committee Meeting |
Page 1 |
|
|
19/6/2024 |
|
memorandum: Lord
Mayor
Deputy lord Mayor
Elected members
Public Land - Gambling
|
Meeting: Planning Committee
|
Meeting date: 17 January 2024
|
|
Raised by: Lord Mayor Reynolds |
|
Question:
Can the Acting Director seek advice from the Licencing Branch regarding any issues around allowing gambling on public land?
Response:
The Gaming Control Act 1993 which primarily controls gaming in the following manner:
5A. Gaming and related activities prohibited in certain circumstances
(1) Except as authorised by or under this Act or another Act, a person must not –
(a) open, keep or use a place, or allow a place of which the person is the occupier to be opened, kept or used, for the purpose of conducting gaming in that place; or
(b) conduct gaming as a business; or
(c) assist a person who is conducting gaming as a business in contravention of paragraph (b) .
Where gaming is defined to mean:
gaming means wagering in a contingency relating to a game, whether by means of a gaming machine, FATG machine or otherwise;
If a venue wished to allow gaming as defined above in an occupation licensed area, approval would be required to be obtained from Liquor and Gaming and Council would need to grant permission to allow that activity under the terms of the permit to occupy. The display of Keno draws or similar is not permitted. If the concern relates to a public broadcast of a sporting event that contains gambling advertising, or is otherwise capable of being the subject matter of the placement of wagers (by say a third-party app on a phone), this activity is not regulated by the Gaming Control Act 1993.
As signatory to this report, I certify that, pursuant to Section 55(1) of the Local Government Act 1993, I hold no interest, as referred to in Section 49 of the Local Government Act 1993, in matters contained in this report.
|
Karen Abey Acting Director City Life |
|
Date: 13 June 2024
File Reference: F24/7691
|
Item No. 8.3 |
Agenda (Open Portion) Planning Committee Meeting |
Page 1 |
|
|
19/6/2024 |
|
memorandum: Lord
Mayor
Deputy lord Mayor
Elected members
Compliance Monitoring Gambling
|
Meeting: Planning Committee
|
Meeting date: 17 January 2024
|
|
Raised by: Lord Mayor Reynolds |
|
Question:
Can the Acting Director advice that if gambling is not allowed in our occupation licence areas what steps will be taken to monitor compliance with the occupation licence?
Response:
In accordance with Council’s endorsed Compliance Investigation Procedure Policy and having regard to resource limitations, officers’ compliance monitoring approach prioritises public safety by promptly responding to complaints rather than pro-actively monitoring. This means that we prioritise investigating and taking action on reported concerns ensuring our resources are directed to areas with the highest priority for safeguarding the public.
As signatory to this report, I certify that, pursuant to Section 55(1) of the Local Government Act 1993, I hold no interest, as referred to in Section 49 of the Local Government Act 1993, in matters contained in this report.
|
Karen Abey Acting Director City Life |
|
Date: 13 June 2024
File Reference: F24/7692
|
Item No. 8.4 |
Agenda (Open Portion) Planning Committee Meeting |
Page 1 |
|
|
19/6/2024 |
|
memorandum: Lord
Mayor
Deputy lord Mayor
Elected members
Boarding Houses - Planning Scheme
|
Meeting: Planning Committee
|
Meeting date: 24 April 2024
|
|
Raised by: Councillor Dutta |
|
Question:
Can the Acting Director provide advise if it is possible to seek amendments to the planning scheme to expand the provisions pertaining to Boarding Houses?
Response:
The ‘boarding house’ definition as well as the Use and Development Standards for residential uses are determined by the State Government in the residential zones, with the relevant standards for a ‘dwelling’ also applying to the ‘boarding house’ use. Although the Committee did not specify what amendments they would like to make to the provisions for boarding houses, for Council to undertake their own planning scheme amendment to amend the standards it would require the application of a Specific Area Plan to apply to the ‘boarding house’ use specifically, and the amendment would require adequate justification to demonstrate the following:
(a) a use or development to which the provision relates is of significant social, economic or environmental benefit to the State, a region or a municipal area; or
(b) the area of land has particular environmental, economic, social or spatial qualities that require provisions, that are unique to the area of land, to apply to the land in substitution for, or in addition to, or modification of, the provisions of the SPPs.
It is unlikely that the Tasmanian Planning Commission would view the boarding house use within the context of the Hobart municipality as distinctly different to other municipalities. The State Planning Office is currently undertaking major planning reform through the project Improving Residential Standards in Tasmania. The project is well under way with the recommendations being circulated for public consultation in the coming months with the classification of residential use types and the relevant amenity standards being considered.
Considering the current progression of the Improving Residential Standards in Tasmania project it is suggested that best course of action would be to first review the recommendations put forward from that project and then to consider what changes if any the Council would like to pursue concerning the standards for boarding houses.
As signatory to this report, I certify that, pursuant to Section 55(1) of the Local Government Act 1993, I hold no interest, as referred to in Section 49 of the Local Government Act 1993, in matters contained in this report.
|
Neil Noye Director City Futures |
|
Date: 13 June 2024
File Reference: F24/38507; 13-1-10
|
|
Agenda (Open Portion) Planning Committee Meeting |
Page 1 |
|
|
19/6/2024 |
|
Regulation 29 of the Local Government (Meeting Procedures) Regulations 2015.
File Ref: 13-1-10
(1) A councillor at a meeting may ask a question without notice –
(a) of the chairperson; or
(b) through the chairperson, of –
(i) another councillor; or
(ii) the general manager.
(2) In putting a question without notice at a meeting, a councillor must not –
(a) offer an argument or opinion; or
(b) draw any inferences or make any imputations – except so far as may be necessary to explain the question.
(3) The chairperson of a meeting must not permit any debate of a question without notice or its answer.
(4) The chairperson, councillor or general manager who is asked a question without notice at a meeting may decline to answer the question.
(5) The chairperson of a meeting may refuse to accept a question without notice if it does not relate to the activities of the council.
(6) Questions without notice, and any answers to those questions, are not required to be recorded in the minutes of the meeting.
(7) The chairperson of a meeting may require a councillor to put a question without notice in writing.
|
|
Agenda (Open Portion) Planning Committee Meeting |
Page 1 |
|
|
19/6/2024 |
|