
City
of hobart
AGENDA
Planning Committee Meeting
Open Portion
Wednesday, 17 May 2023
at 5:00 pm
Council Chamber, Town Hall
Working together to make Hobart a better place for the community.
THE VALUES
The Council is:
|
People |
We care about people – our community, our customers and colleagues. |
|
Teamwork |
We collaborate both within the organisation and with external stakeholders drawing on skills and expertise for the benefit of our community. |
|
Focus and Direction |
We have clear goals and plans to achieve sustainable social, environmental and economic outcomes for the Hobart community. |
|
Creativity and Innovation |
We embrace new approaches and continuously improve to achieve better outcomes for our community. |
|
Accountability |
We are transparent, work to high ethical and professional standards and are accountable for delivering outcomes for our community. |
|
|
Agenda (Open Portion) Planning Committee Meeting |
Page 1 |
|
|
17/5/2023 |
|
Business listed on the agenda is to be conducted in the order in which it is set out, unless the committee by simple majority determines otherwise.
APOLOGIES AND LEAVE OF ABSENCE
2. Consideration of Supplementary Items
3. Indications of Pecuniary and Conflicts of Interest
5. Planning Authority Items - Consideration of Items With Deputations
6. Committee Acting as Planning Authority
6.1 Applications under the Hobart Interim Planning Scheme 2015
7.1 Planning - Advertised Applications Report
7.2 Delegated Decision Report (Planning)
8. Responses to Questions Without Notice
8.1 Strata Dwellings - Short Stay Accommodation
10. Closed Portion Of The Meeting
|
|
Agenda (Open Portion) Planning Committee Meeting |
Page 1 |
|
|
17/5/2023 |
|
Planning Committee Meeting (Open Portion) held Wednesday, 17 May 2023 at 5:00 pm in the Council Chamber, Town Hall.
The title Chief Executive Officer is a term of reference for the General Manager as appointed by Council pursuant s.61 of the Local Government Act 1993 (Tas).
|
COMMITTEE MEMBERS Alderman S Behrakis (Chairman) Lord Mayor Councillor A M Reynolds Deputy Lord Mayor Councillor H Burnet Alderman M Zucco Councillor W F Harvey Councillor M Dutta Councillor Dr Z Sherlock Councillor J Kelly Councillor L Elliot Alderman L Bloomfield Councillor R Posselt Councillor B Lohberger
|
Apologies:
Leave of Absence: Nil
|
|
The minutes of the Open Portion of the Planning Committee meeting held on Wednesday, 3 May 2023, are submitted for confirming as an accurate record.
|
Ref: Part 2, Regulation 8(6) of the Local Government (Meeting Procedures) Regulations 2015.
|
That the Committee resolve to deal with any supplementary items not appearing on the agenda, as reported by the Chief Executive Officer.
|
Ref: Part 2, Regulation 8(7) of the Local Government (Meeting Procedures) Regulations 2015.
Members of the Committee are requested to indicate where they may have any pecuniary or conflict of interest in respect to any matter appearing on the agenda, or any supplementary item to the agenda, which the Committee has resolved to deal with.
Regulation 15 of the Local Government (Meeting Procedures) Regulations 2015.
A Committee may close a part of a meeting to the public where a matter to be discussed falls within 15(2) of the above regulations.
In the event that the Committee transfer an item to the closed portion, the reasons for doing so should be stated.
Are there any items which should be transferred from this agenda to the closed portion of the agenda, or from the closed to the open portion of the agenda?
In accordance with the requirements of Part 2 Regulation 8(3) of the Local Government (Meeting Procedures) Regulations 2015, the Chief Executive Officer is to arrange the agenda so that the planning authority items are sequential.
In accordance with Part 2 Regulation 8(4) of the Local Government (Meeting Procedures) Regulations 2015, the Committee by simple majority may change the order of any of the items listed on the agenda, but in the case of planning items they must still be considered sequentially – in other words they still have to be dealt with as a single group on the agenda.
Where deputations are to be received in respect to planning items, past practice has been to move consideration of these items to the beginning of the meeting.
RECOMMENDATION
That in accordance with Regulation 8(4) of the Local Government (Meeting Procedures) Regulations 2015, the Committee resolve to deal with any items which have deputations by members of the public regarding any planning matter listed on the agenda, to be taken out of sequence in order to deal with deputations at the beginning of the meeting.
In accordance with the provisions of Part 2 Regulation 25 of the Local Government (Meeting Procedures) Regulations 2015, the intention of the Committee to act as a planning authority pursuant to the Land Use Planning and Approvals Act 1993 is to be noted.
In accordance with Regulation 25, the Committee will act as a planning authority in respect to those matters appearing under this heading on the agenda, inclusive of any supplementary items.
The Committee is reminded that in order to comply with Regulation 25(2), the Chief Executive Officer is to ensure that the reasons for a decision by a Council or Council Committee acting as a planning authority are recorded in the minutes.
|
Agenda (Open Portion) Planning Committee Meeting |
Page 1 |
|
|
|
17/5/2023 |
|
6.1 Applications under the Hobart Interim Planning Scheme 2015
6.1.1 8/12 Wilmot Street, Hobart, Common Land of Parent Title - Change of Use to Visitor Accommodation
Address: 8/12 Wilmot Street, Hobart and Common Land of Parent Title
Proposal: Change of Use to Visitor Accommodation
Expiry Date: 26 June 2023
Extension of Time: Not Applicable
Author: Victoria Maxwell
|
REcommendation That pursuant to the Hobart Interim Planning Scheme 2015, the Planning Committee, in accordance with the delegations contained in its terms of reference, approves the application for a Change of Use to Visitor Accommodation at 8/12 WILMOT STREET HOBART TAS 7000 for the reasons outlined in the officer’s report and a permit containing the following conditions be issued:
GEN
The use and/or development must be substantially in accordance with the documents and drawings that comprise PLN23158 8/12 WILMOT STREET HOBART TAS 7000 Final Planning Documents except where modified below.
Reason for condition
To clarify the scope of the permit.
PLN 18
Prior to the commencement of the approved use, a management plan for the operation of the visitor accommodation must be submitted and approved as a Condition Endorsement, to the satisfaction of the Council's Director City Life. The management plan must include measures to limit, manage and mitigate unreasonable impacts upon the amenity of long term residents. These measures must include, but are not limited to, the following requirements:
1. To limit, manage, and mitigate noise generated as a result of the visitor accommodation. 2. To limit, manage, and mitigate behaviour issues caused as a result of the visitor accommodation. 3. To maintain the security of the building where the visitor accommodation would be located, including managing and/or limiting access to shared areas and facilities. 4. To specify the maximum permitted occupancy of the visitor accommodation. 5. To specify that guests must utilise the site for the parking of vehicles, that the maximum number of vehicles to be parked on the site (one (1) vehicle), and detail where the parking spaces are located and how the spaces are to be accessed. Additionally, at the booking stage, guests should be discouraged from bringing more than one (1) vehicle and the parking of any additional vehicles in nearby streets should also be discouraged. 6. To provide a name and contact phone number of a person who will respond to any complaints regarding behaviour of guests. If the property is sold the Visitor Accommodation Management Plan (VAMP) must be updated with new contact details.
Once approved, the management plan must be implemented prior to the commencement of the approved use and must be maintained for as long as the visitor accommodation is in operation. The VAMP must be provided to adjacent property owners and occupiers within 14 days of being approved. If the property is sold, the updated VAMP (in accordance with 6. above) must be provided to adjacent property owners and occupiers within 10 business days of settlement.
Advice:
This condition requires further information to be submitted as a Condition Endorsement. Refer to the Condition Endorsement advice at the end of this permit.
Reason for condition
To ensure that visitor accommodation does not cause an unreasonable loss of residential amenity.
PLN 14
The noise generated by the Visitor Accommodation must not cause environmental harm.
Reason for the condition
To ensure noise emissions do not cause environmental harm in accordance with EMPCA 1994 and the Environmental Management and Pollution Control (Noise) Regulations 2016 so as to avoid unreasonable impact on residential amenity.
ADVICE
The following advice is provided to you to assist in the implementation of the planning permit that has been issued subject to the conditions above. The advice is not exhaustive and you must inform yourself of any other legislation, bylaws, regulations, codes or standards that will apply to your development under which you may need to obtain an approval. Visit the Council's website for further information.
Prior to any commencement of work on the site or commencement of use the following additional permits/approval may be required from the Hobart City Council.
CONDITION ENDORSEMENT
If any condition requires that further documents are submitted and approved, you will need to submit the relevant documentation to satisfy the condition via the Condition Endorsement Submission on Council's online services eplanning portal. Detailed instructions can be found here.
Once approved, the Council will respond to you via email that the condition has been endorsed (satisfied).
Where building approval is also required, it is recommended that documentation for condition endorsement be submitted well before submitting documentation for building approval. Failure to address condition endorsement requirements prior to submitting for building approval may result in unexpected delays.
BUILDING PERMIT
You may need building approval in accordance with the Building Act 2016. Click here for more information.
This is a Discretionary Planning Permit issued in accordance with section 57 of the Land Use Planning and Approvals Act 1993.
NOISE REGULATIONS
Click here for information with respect to noise nuisances in residential areas.
FEES AND CHARGES
Click here for information on the Council's fees and charges.
VISITOR ACCOMMODATION
More information on visitor accommodation, including when building approval is required, can be found here.
In all cases, check with your insurance company that you have adequate cover.
If you are in a bushfire prone area there may be a need to create/review the Bushfire Management Hazard Plan for your property.
If you have a spa or a pool at your property then you are required to test for microbiological quality and chemical parameters on a monthly basis, under the Public Health Act 1997. If you have any questions about this then please call our Environmental Health team on 6238 2711.
If you are providing food for consumption on the property, you may require a food business registration in accordance with the Food Act 2003. Click here for more information, or call our Environmental Health team on 6238 2711.
Visitor accommodation is also considered to be a commercial use and also not eligible to residential parking permits. Under the current policy for the issuing of residential parking permits, the proposed change of use to visitor accommodation would not entitle the property to a residential parking permit, or a transferable “bed and breakfast” parking permit.
|
Attachment a: PLN-23-158
- 8/12 WILMOT STREET HOBART TAS 7000 - Planning Committee or Delegated Report ⇩ ![]()
Attachment
b: DA-23-19472
PLN-23-158 8 12 WILMOT STREET HOBART TAS 7000 - Attachment B - PC Planning
Documents ⇩ ![]()
Attachment
c: PLN-23-158
- 8_12 WILMOT STREET SANDY BAY - Attachment C - Supplementary Documents -
Applicant Response to Representation Summary ⇩
|
Agenda (Open Portion) Planning Committee Meeting |
Page 1 |
|
|
|
17/5/2023 |
|
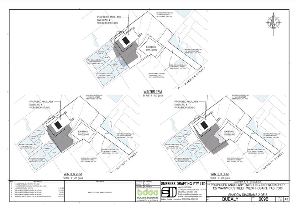
6.1.2 127 Warwick Street, West Hobart - Partial Demolition, Extension to Driveway, Carport, Ancillary Dwelling and Studio
Address: 127 Warwick Street, West Hobart
Proposal: Partial Demolition, Extension to Driveway, Carport, Ancillary Dwelling and Studio
Expiry Date: 17 May 2023
Extension of Time: Not Applicable
Author: Michaela Nolan
|
REcommendation That pursuant to the Hobart Interim Planning Scheme 2015, the Planning Committee, in accordance with the delegations contained in its terms of reference, approves the application for Partial Demolition, Extension to Driveway, Carport, Ancillary Dwelling and Studio at 127 Warwick Street, West Hobart for the reasons outlined in the officer’s report and a permit containing the following conditions be issued:
GEN
The use and/or development must be substantially in accordance with the documents and drawings that comprise PLN21796 127 WARWICK STREET WEST HOBART TAS 7000 Planning Committee Agenda Documents except where modified below.
Reason for condition
To clarify the scope of the permit.
PLN s1
The permit grants approval for the Ancillary Dwelling and Studio.
The Partial Demolition, Extension to Driveway and Carport are not approved.
Reason for condition
To clarify the scope of the permit
ENG sw1
All stormwater from the proposed development (including but not limited to: roofed areas, ag drains, retaining wall ag drains and impervious surfaces such as driveways and paved areas) must be drained via gravity to the Council’s stormwater infrastructure prior to first occupation or commencement of use (whichever occurs first).
Any private or private shared stormwater system passing through thirdparty land must have sufficient receiving capacity.
Advice:
Under section 23 of the Urban Drainage Act 2013 it is an offence for a property owner to direct stormwater onto a neighbouring property. A property can only have a single connection under the Urban Drainage Act 2013 unless demonstrated to be impractical. Existing connection needs to be located and the stormwater from the proposed works be connected to the existing connection.
Reason for condition
To ensure that stormwater from the site will be discharged to a suitable Council approved outlet.
SW 9
Prior to occupancy or the commencement of the approved use (whichever occurs first), stormwater detention for stormwater discharges from the development must be installed.
The stormwater management report and design must be prepared by a suitably qualified engineer and must:
1. include detailed design and supporting calculations of the detention tank showing: 1. detention tank sizing such that there is no increase in flows from the developed site up to 5% AEP event and no worsening of flooding; 2. the layout, the inlet and outlet (including long section), outlet size, overflow mechanism and invert level; 3. the discharge rates and emptying times; and 4. all assumptions must be clearly stated;
2. include a supporting maintenance plan, which specifies the required maintenance measures to check and ensure the ongoing effective operation of all systems, such as: inspection frequency; cleanout procedures; descriptions and diagrams of how the installed systems operate; details of the life of assets and replacement requirements.
All work required by this condition must be undertaken and maintained in accordance with the approved stormwater management report and design.
Advice:
This condition requires further information to be submitted as a Condition Endorsement. Refer to the Condition Endorsement advice at the end of this permit.
ENG 1
Any damage to council infrastructure resulting from the implementation of this permit, must, at the discretion of the Council:
1. Be met by the owner by way of reimbursement (cost of repair and reinstatement to be paid by the owner to the Council); or 2. Be repaired and reinstated by the owner to the satisfaction of the Council.
A photographic record of the Council's infrastructure adjacent to the subject site must be provided to the Council prior to any commencement of works.
A photographic record of the Council’s infrastructure (e.g. existing property service connection points, roads, buildings, stormwater, footpaths, driveway crossovers and nature strips, including if any, preexisting damage) will be relied upon to establish the extent of damage caused to the Council’s infrastructure during construction. In the event that the owner/developer fails to provide to the Council a photographic record of the Council’s infrastructure, then any damage to the Council's infrastructure found on completion of works will be deemed to be the responsibility of the owner.
Reason for condition
To ensure that any of the Council's infrastructure and/or siterelated service connections affected by the proposal will be altered and/or reinstated at the owner’s full cost.
ENV 1
Sediment and erosion control measures sufficient to prevent sediment from leaving the site must be installed prior to any disturbance of the site, and maintained until all areas of disturbance have been stabilized or revegetated.
Advice:
For further guidance in preparing a Soil and Water Management Plan – in accordance with Fact sheet 3 Derwent Estuary Program click here.
Reason for condition
To avoid the sedimentation of roads, drains, natural watercourses, Council land that could be caused by erosion and runoff from the development, and to comply with relevant State legislation.
HER 17b
The use of the colours Monument and Night Sky on the roof of the new dwelling is not approved. An alternative colour in mid to light grey must be selected that is more sympathetic to and reflects the exterior colours within the local streetscape and precinct.
Prior to the issue of any approval under the Building Act 2016, revised plans must be submitted and approved which shows an alternative roof cladding colours in accordance with the above requirements.
All work required by this condition must be undertaken in accordance with the approved revised plans.
Advice:
This condition requires further information to be submitted as a Condition Endorsement. Refer to the Condition Endorsement advice at the end of this permit.
Reason for condition
To ensure that development in a heritage precinct is undertaken in a sympathetic manner which does not cause loss of historic cultural heritage significance.
ADVICE
The following advice is provided to you to assist in the implementation of the planning permit that has been issued subject to the conditions above. The advice is not exhaustive and you must inform yourself of any other legislation, bylaws, regulations, codes or standards that will apply to your development under which you may need to obtain an approval. Visit the Council's website for further information.
Prior to any commencement of work on the site or commencement of use the following additional permits/approval may be required from the Hobart City Council.
CONDITION ENDORSEMENT
If any condition requires that further documents are submitted and approved, you will need to submit the relevant documentation to satisfy the condition via the Condition Endorsement Submission on Council's online services eplanning portal. Detailed instructions can be found here.
Once approved, the Council will respond to you via email that the condition has been endorsed (satisfied).
Where building approval is also required, it is recommended that documentation for condition endorsement be submitted well before submitting documentation for building approval. Failure to address condition endorsement requirements prior to submitting for building approval may result in unexpected delays.
BUILDING PERMIT
You may need building approval in accordance with the Building Act 2016. Click here for more information.
This is a Discretionary Planning Permit issued in accordance with section 57 of the Land Use Planning and Approvals Act 1993.
PLUMBING PERMIT
You may need plumbing approval in accordance with the Building Act 2016, Building Regulations 2016 and the National Construction Code. Click here for more information.
OCCUPATION OF THE PUBLIC HIGHWAY
You may require a permit for the occupation of the public highway for construction (e.g. placement of skip bin, crane, scissor lift etc). Click here for more information.
GENERAL EXEMPTION (TEMPORARY) PARKING PERMITS
You may qualify for a General Exemption permit for construction vehicles i.e. residential or meter parking/loading zones. Click here for more information.
STORMWATER
It is recommended that the existing internal fence beside the clothesline should be changed to a floodwayfriendly fence to allow water flow.
RIGHT OF WAY
The private right of way must not be reduced, restricted or impeded in any way, and all beneficiaries must have complete and unrestricted access at all times.
You should inform yourself as to your rights and responsibilities in respect to the private right of way particularly reducing, restricting or impeding the right during and after construction.
FEES AND CHARGES
Click here for information on the Council's fees and charges.
DIAL BEFORE YOU DIG
Click here for dial before you dig information.
|
Attachment a: PLN-21-796
- 127 WARWICK STREET WEST HOBART TAS 7000 - Planning Committee or Delegated
Report ⇩ ![]()
Attachment
b: PLN-21-796
- 127 WARWICK STREET WEST HOBART TAS 7000 - Planning Committee Agenda Documents ⇩ ![]()
Attachment
c: PLN-21-796
- 127 WARWICK STREET WEST HOBART TAS 7000 - Planning Referral Officer Cultural
Heritage Report ⇩
|
Agenda (Open Portion) Planning Committee Meeting |
Page 1 |
|
|
|
17/5/2023 |
|
6.1.3 44 Nicholas Drive, 38A Nicholas Drive, 40C Nicholas Drive, 42 Nicholas Drive, 46 Nicholas Drive, 40A Nicholas Drive, 40B Nicholas Drive, Sandy Bay - Dwelling and Front Fencing
Address: 44 Nicholas Drive, 38A Nicholas Drive, 40C Nicholas Drive, 42 Nicholas Drive, 46 Nicholas Drive, 40A Nicholas Drive, 40B Nicholas Drive, Sandy Bay
Proposal: Dwelling and Front Fencing
Expiry Date: 31 May 2023
Extension of Time: Not Applicable
Author: Victoria Maxwell
|
REcommendation That pursuant to the Hobart Interim Planning Scheme 2015, the Planning Committee, in accordance with the delegations contained in its terms of reference, approves the application for a Dwelling and Front Fencing at 44 NICHOLAS DRIVE SANDY BAY TAS 7005 for the reasons outlined in the officer’s report and a permit containing the following conditions be issued:
GEN
The use and/or development must be substantially in accordance with the documents and drawings that comprise PLN22818 44 NICHOLAS DRIVE SANDY BAY TAS 7005 Final Planning Documents except where modified below.
Reason for condition
To clarify the scope of the permit.
TW
The use and/or development must comply with the requirements of TasWater as detailed in the form Submission to Planning Authority Notice, Reference No. TWDA 2022/01997HCC dated 21/02/2023 as attached to the permit.
Reason for condition
To clarify the scope of the permit.
PLN s1
Approval is for one (1) single dwelling only. The guest bedroom, study and main bedroom are not approved for separate occupation from the dwelling.
Reason for condition
To ensure compliance with the definition for Single Dwelling under the Hobart Interim Planning Scheme 20215.
PLN s2
The study is not approved for any commercial or non residential use.
Reason for condition
The floor area of the study is too big to be used as a Home Based Business without application for and granting of an additional planning permit.
PLN s3
The owners of the subject site must provide the owners of 42 Nicholas Dr with opening devices for the proposed sliding gate on the access driveway and Right of Way to ensure that 42 Nicholas Dr has unimpeded access along the shared Right of Way at all times.
Reason for condition
To ensure that the Right of Way is not blocked at any time for all parties with Rights of Way over the shared access.
ENG sw1
All stormwater from the proposed development (including but not limited to: roofed areas, ag drains, retaining wall ag drains and impervious surfaces such as driveways and paved areas) must be drained to the Council’s stormwater infrastructure prior to first occupation or commencement of use (whichever occurs first).
Advice:
Under section 23 of the Urban Drainage Act 2013 it is an offence for a property owner to direct stormwater onto a neighbouring property.
Reason for condition
To ensure that stormwater from the site will be discharged to a suitable Council approved outlet.
SW 9
A stormwater management report and design must be submitted. The stormwater management report and design must be prepared by a suitably qualified engineer and must:
1. include detailed design and supporting calculations of the detention tank showing:
1. detention tank sizing such that there is no increase in flows from the developed site up to 5% AEP event and no worsening of flooding; 2. the layout, the inlet and outlet (including long section), outlet size, overflow mechanism and invert level; 3. the discharge rates and emptying times; and 4. all assumptions must be clearly stated;
2. include a supporting maintenance plan, which specifies the required maintenance measures to check and ensure the ongoing effective operation of all systems, such as: inspection frequency; cleanout procedures; descriptions and diagrams of how the installed systems operate; details of the life of assets and replacement requirements.
All work required by this condition must be undertaken and maintained in accordance with the approved stormwater management report and design.
Advice:
This condition requires further information to be submitted as a Condition Endorsement. Refer to the Condition Endorsement advice at the end of this permit.
ENG 2b
Further detailed designs are required for the proposed vehicle barriers shown on INARDI PTY LTD 44 Nicholas Drive, Sandy Bay, Job No. 2194, Drawing DA22 Amendment 7 dated 08/02/23 (received by Council on the 15th of February 2023).
This documentation must be submitted and approved as a condition endorsement, prior to the issuing of any approval under the Building Act 2016.
The detailed designs must:
1. be prepared and certified by a suitably qualified engineer; 2. be in accordance with the Australian Standard AS/NZS 1170.1:2002, if possible; and 3. show [dimensions, levels, gradients and transitions], and other details as Council deem necessary to satisfy the above requirement.
The vehicle barriers must be installed in accordance with the approved detailed designs prior to first occupation.
Advice:
This condition requires further information to be submitted as a Condition Endorsement. Refer to the Condition Endorsement advice at the end of this permit.
Reason for condition
To ensure the safety of users of the access driveway and parking module and compliance with the standard.
ENG 2c
Prior to the first occupation, a suitably qualified engineer must certify that the vehicle barriers have been installed in accordance design drawings approved by Condition ENG 2b.
Advice:
An example certificate is available on our website.
Reason for condition
To ensure the safety of users of the access driveway and parking module and compliance with the relevant standards.
ENG 3a
The access driveway and parking area must be constructed in accordance with the following documentation which forms part of this permit: INARDI PTY LTD, 44 Nicholas Drive, Sandy Bay, Job No. 2194, Drawing DA22 Amendment 7 dated 08/02/23 (received by Council on the 15th of February 2023).
Any departure from that documentation and any works which are not detailed in the documentation must be either:
a) approved by the Director City Life, via a condition endorsement application; or b) designed and constructed in accordance with Australian Standard AS/NZ 2890.1:2004.
The works required by this condition must be completed prior to first occupation.
Reason for condition
To ensure the safety of users of the access and parking module, and compliance with the relevant Australian Standard.
ENG 1
Any damage to council infrastructure resulting from the implementation of this permit, must, at the discretion of the Council:
1. Be met by the owner by way of reimbursement (cost of repair and reinstatement to be paid by the owner to the Council); or 2. Be repaired and reinstated by the owner to the satisfaction of the Council.
A photographic record of the Council's infrastructure adjacent to the subject site must be provided to the Council prior to any commencement of works.
A photographic record of the Council’s infrastructure (e.g. existing property service connection points, roads, buildings, stormwater, footpaths, driveway crossovers and nature strips, including if any, preexisting damage) will be relied upon to establish the extent of damage caused to the Council’s infrastructure during construction. In the event that the owner/developer fails to provide to the Council a photographic record of the Council’s infrastructure, then any damage to the Council's infrastructure found on completion of works will be deemed to be the responsibility of the owner.
Reason for condition
To ensure that any of the Council's infrastructure and/or siterelated service connections affected by the proposal will be altered and/or reinstated at the owner’s full cost.
ENV 2
Sediment and erosion control measures, in accordance with an approved soil and water management plan (SWMP), must be installed prior to the commencement of work and maintained until such time as all disturbed areas have been stabilised and/or restored or sealed to the Council’s satisfaction.
A SWMP must be submitted as a Condition Endorsement prior to the issue of any approval under the Building Act 2016 or the commencement of work, whichever occurs first. The SWMP must be prepared in accordance with the Soil and Water Management on Building and Construction Sites fact sheets (Derwent Estuary Program, 2008), available here.
All work required by this condition must be undertaken in accordance with the approved SWMP.
Advice:
This condition requires further information to be submitted as a Condition Endorsement. Refer to the Condition Endorsement advice at the end of this permit.
Reason for condition
To avoid the pollution and sedimentation of roads, drains and natural watercourses that could be caused by erosion and runoff from the development.
OPS 1
Use of the City of Hobart’s land at 38B Nicholas Drive, for access into 44 Nicholas Drive, is approved on the condition that vehicle access to the reserve is not restricted or impeded.
Reason for condition
To ensure access to Council’s neighbouring reserve Bicentennial Park (PID 7713353).
ADVICE
The following advice is provided to you to assist in the implementation of the planning permit that has been issued subject to the conditions above. The advice is not exhaustive and you must inform yourself of any other legislation, bylaws, regulations, codes or standards that will apply to your development under which you may need to obtain an approval. Visit the Council's website for further information.
Prior to any commencement of work on the site or commencement of use the following additional permits/approval may be required from the Hobart City Council.
CONDITION ENDORSEMENT
If any condition requires that further documents are submitted and approved, you will need to submit the relevant documentation to satisfy the condition via the Condition Endorsement Submission on Council's online services eplanning portal. Detailed instructions can be found here.
Once approved, the Council will respond to you via email that the condition has been endorsed (satisfied).
Where building approval is also required, it is recommended that documentation for condition endorsement be submitted well before submitting documentation for building approval. Failure to address condition endorsement requirements prior to submitting for building approval may result in unexpected delays.
BUILDING PERMIT
You may need building approval in accordance with the Building Act 2016. Click here for more information.
This is a Discretionary Planning Permit issued in accordance with section 57 of the Land Use Planning and Approvals Act 1993.
PLUMBING PERMIT
You may need plumbing approval in accordance with the Building Act 2016, Building Regulations 2016 and the National Construction Code. Click here for more information.
BUILDING OVER AN EASEMENT
In order to build over the service easement, you will require the written consent of the person on whose behalf the easement was created, in accordance with section 74 of the Building Act 2016.
FEES AND CHARGES
Click here for information on the Council's fees and charges.
DIAL BEFORE YOU DIG
Click here for dial before you dig information.
|
Attachment a: PLN-22-818
- 44 NICHOLAS DRIVE SANDY BAY TAS 7005 - Planning Committee or Delegated Report ⇩ ![]()
Attachment
b: PLN-22-818
44 NICHOLAS DRIVE SANDY BAY TAS 7005 - Attachment B - Planning Committee Agenda
Documents ⇩
|
Agenda (Open Portion) Planning Committee Meeting |
Page 1 |
|
|
|
17/5/2023 |
|
6.1.4 12/10 Waterworks Road, Dynnyrne and Common Land of Parent Title - Change of Use to Visitor Accommodation
Address: 12/10 Waterworks Road, Dynnyrne and Common Land of Parent Title
Proposal: Change of Use to Visitor Accommodation
Expiry Date: 25 May 2023
Extension of Time: Not Applicable
Author: Deanne Lang
|
REcommendation That pursuant to the Hobart Interim Planning Scheme 2015, the Planning Committee, in accordance with the delegations contained in its terms of reference, approves the application for Change of Use to Visitor Accommodation at 12/10 Waterworks Road, Dynnyrne and Common Land of Parent Title for the reasons outlined in the officer’s report and a permit containing the following conditions be issued:
GEN
The use and/or development must be substantially in accordance with the documents and drawings that comprise PLN23171 12/10 WATERWORKS ROAD DYNNYRNE TAS 7005 and Common Land of Parent Title Final Planning Documents except where modified below.
Reason for condition
To clarify the scope of the permit.
PLN 18
Prior to the commencement of the approved use, a management plan for the operation of the visitor accommodation must be submitted and approved as a Condition Endorsement, to the satisfaction of the Council's Director City Life. The management plan must include measures to limit, manage and mitigate unreasonable impacts upon the amenity of long term residents. These measures must include, but are not limited to, the following requirements:
1. To limit, manage, and mitigate noise generated as a result of the visitor accommodation. 2. To limit, manage, and mitigate behaviour issues caused as a result of the visitor accommodation. 3. To maintain the security of the building where the visitor accommodation would be located, including managing and/or limiting access to shared areas and facilities. 4. To specify the maximum permitted occupancy of the visitor accommodation. 5. To specify that guests must utilise the site for the parking of vehicles, that the maximum number of vehicles to be parked on the site (2), and detail where the parking spaces are located and how the spaces are to be accessed. Additionally, at discouraged from bringing more than 2 vehicles and the parking of any additional vehicles in nearby streets should also be discouraged. 6. To provide a name and contact phone number of a person who will respond to any complaints regarding behaviour of guests. If the property is sold the Visitor Accommodation Management Plan (VAMP) must be updated with new contact details.
Once approved, the management plan must be implemented prior to the commencement of the approved use and must be maintained for as long as the visitor accommodation is in operation. The VAMP must be provided to adjacent property owners and occupiers within 14 days of being approved, including all other dwellings in the strata complex. If the property is sold, the updated VAMP (in accordance with 6. above) must be provided to adjacent property owners and occupiers within 10 business days of settlement.
Advice:
This condition requires further information to be submitted as a Condition Endorsement. Refer to the Condition Endorsement advice at the end of this permit.
Reason for condition
To ensure that visitor accommodation does not cause an unreasonable loss of residential amenity.
PLN 1
Screening to a height of 1.7m above the deck floor level, with no more than 25% uniform transparency must be installed and maintained for the life of the use along the south western edge of the deck (facing 13/10 Waterworks Rd), prior to first use.
Reason for condition
To provide reasonable opportunity for privacy for 13/10 Waterworks Road.
ENG 5
The number of car parking spaces approved to be used on the site is two (2).
Reason for condition
To ensure the provision of parking for the use is safe and efficient.
ENV 8
Prior to commencement of the use, an Emergency Plan must be submitted and approved.
The Emergency Plan must:
1. Indicate that the site is located within: · a floodprone area; and · an area susceptible to landslide.
2. Include measures to be followed in the event of an emergency, including housefire, landslide or flood.
3. Include evacuation measures and routes in plan form, including assembly points, for housefire or landslide emergencies. In the event of a landslide or housefire emergency, guests should evacuate and assemble on the shared access driveway, away from buildings. In the event of a flood emergency, guests should remain on the upper level, and not try to leave the premises by the shared access driveway if affected by floodwaters.
4. Provide emergency contact details, and details of emergency services and emergency broadcasters.
5. Specify that any directions given by emergency services must be followed.
6. Provide a plan showing the location of any fire extinguishers or medical kits located in the building.
7. Specify that vehicles should not be driven through floodwaters, fire or smoke.
8. Specify that following an emergency evacuation, if the building has been damaged, reentry into the building is not permitted unless permitted by emergency services or the property manager.
The approved Emergency Plan must be provided to guests with a copy kept on the premises.
Advice:
This condition requires further information to be submitted as a Condition Endorsement. Refer to the Condition Endorsement advice at the end of this permit.
Reason for condition
To reduce the risk to life and property, and the cost to the community, caused by landslides
ADVICE
The following advice is provided to you to assist in the implementation of the planning permit that has been issued subject to the conditions above. The advice is not exhaustive and you must inform yourself of any other legislation, bylaws, regulations, codes or standards that will apply to your development under which you may need to obtain an approval. Visit the Council's website for further information.
Prior to any commencement of work on the site or commencement of use the following additional permits/approval may be required from the Hobart City Council.
CONDITION ENDORSEMENT
If any condition requires that further documents are submitted and approved, you will need to submit the relevant documentation to satisfy the condition via the Condition Endorsement Submission on Council's online services eplanning portal. Detailed instructions can be found here.
Once approved, the Council will respond to you via email that the condition has been endorsed (satisfied).
Where building approval is also required, it is recommended that documentation for condition endorsement be submitted well before submitting documentation for building approval. Failure to address condition endorsement requirements prior to submitting for building approval may result in unexpected delays.
BUILDING PERMIT
You may need building approval in accordance with the Building Act 2016. Click here for more information.
This is a Discretionary Planning Permit issued in accordance with section 57 of the Land Use Planning and Approvals Act 1993.
NOISE REGULATIONS
Click here for information with respect to noise nuisances in residential areas.
FEES AND CHARGES
Click here for information on the Council's fees and charges.
VISITOR ACCOMMODATION
More information on visitor accommodation, including when building approval is required, can be found here.
In all cases, check with your insurance company that you have adequate cover.
If you are in a bushfire prone area there may be a need to create/review the Bushfire Management Hazard Plan for your property.
If you have a spa or a pool at your property then you are required to test for microbiological quality and chemical parameters on a monthly basis, under the Public Health Act 1997. If you have any questions about this then please call our Environmental Health team on 6238 2711.
If you are providing food for consumption on the property, you may require a food business registration in accordance with the Food Act 2003. Click here for more information, or call our Environmental Health team on 6238 2711.
Visitor accommodation is also considered to be a commercial use and also not eligible to residential parking permits. Under the current policy for the issuing of residential parking permits, the proposed change of use to visitor accommodation would not entitle the property to a residential parking permit, or a transferable “bed and breakfast” parking permit.
|
Attachment a: PLN-23-171
- 12/10 WATERWORKS ROAD DYNNYRNE TAS 7005 - Planning Committee or Delegated
Report ⇩ ![]()
Attachment
b: PLN-23-171
- 12 10 WATERWORKS ROAD DYNNYRNE TAS 7005 -Attachment B - Planning Committee
Agenda Documents ⇩
|
Agenda (Open Portion) Planning Committee Meeting |
Page 1 |
|
|
|
17/5/2023 |
|
6.1.5 33/10 Waterworks Road, Dynnyrne and Common Land of Parent Title - Change of Use to Visitor Accommodation
Address: 33/10 Waterworks Road, Dynnyrne and Common Land of Parent Title
Proposal: Change of Use to Visitor Accommodation
Expiry Date: 21 May 2023
Extension of Time: Not Applicable
Author: Helen Ayers
|
REcommendation That pursuant to the Hobart Interim Planning Scheme 2015, the Planning Committee, in accordance with the delegations contained in its terms of reference, approves the application for Change of Use to Visitor Accommodation, at 33/10 Waterworks Road, Dynnyrne for the reasons outlined in the officer’s report and a permit containing the following conditions be issued:
GEN
The use and/or development must be substantially in accordance with the documents and drawings that comprise PLN23146 33/10 WATERWORKS ROAD DYNNYRNE TAS 7005 Final Planning Documents, except where modified below.
Reason for condition
To clarify the scope of the permit.
PLN 18
Prior to the commencement of the approved use, a management plan for the operation of the visitor accommodation must be submitted and approved as a Condition Endorsement, to the satisfaction of the Council's Director City Life. The management plan must include measures to limit, manage and mitigate unreasonable impacts upon the amenity of long term residents. These measures must include, but are not limited to, the following requirements:
1. To limit, manage, and mitigate noise generated as a result of the visitor accommodation. 2. To limit, manage, and mitigate behaviour issues caused as a result of the visitor accommodation. 3. To maintain the security of the building where the visitor accommodation would be located, including managing and/or limiting access to shared areas and facilities. 4. To specify the maximum permitted occupancy of the visitor accommodation. 5. To specify that guests must utilise the site for the parking of vehicles, that the maximum number of vehicles to be parked on the site (1), and detail where the parking spaces are located and how the spaces are to be accessed. Additionally, at the booking stage, guests should be discouraged from bringing more than 1 vehicle and the parking of any additional vehicles in nearby streets should also be discouraged. 6. To provide a name and contact phone number of a person who will respond to any complaints regarding behaviour of guests. If the property is sold the Visitor Accommodation Management Plan (VAMP) must be updated with new contact details.
Once approved, the management plan must be implemented prior to the commencement of the approved use and must be maintained for as long as the visitor accommodation is in operation. The VAMP must be provided to adjacent property owners and occupiers within 14 days of being approved, including all other dwellings in the strata complex. If the property is sold, the updated VAMP (in accordance with 6. above) must be provided to adjacent property owners and occupiers within 10 business days of settlement.
Advice:
This condition requires further information to be submitted as a Condition Endorsement. Refer to the Condition Endorsement advice at the end of this permit.
Reason for condition
To ensure that visitor accommodation does not cause an unreasonable loss of residential amenity.
ENV 8
Prior to commencement of the use, an Emergency Plan must be submitted and approved.
The Emergency Plan must:
1. Indicate that the site is located within: · a floodprone area; and · an area susceptible to landslide. 2. Include measures to be followed in the event of an emergency, including housefire, landslide or flood.
3. Include evacuation measures and routes in plan form, including assembly points, for each type of emergency. In the event of a landslide or housefire emergency, guests should evacuate and assemble on the large grass area to the east of the building. In the event of a flood emergency, guests should evacuate and assemble upslope of the building.
4. Provide emergency contact details, and details of emergency services and emergency broadcasters.
5. Specify that any directions given by emergency services must be followed.
6. Provide a plan showing the location of any fire extinguishers or medical kits located in the building.
7. Specify that vehicles should not be driven through floodwaters, fire or smoke.
8. Specify that following an emergency evacuation, if the building has been damaged, reentry into the building is not permitted unless permitted by emergency services or the property manager.
The approved Emergency Plan must be provided to guests with a copy kept on the premises.
Advice:
This condition requires further information to be submitted as a Condition Endorsement. Refer to the Condition Endorsement advice at the end of this permit.
Reason for condition
To reduce the risk to life and property, and the cost to the community, caused by landslides
ADVICE
The following advice is provided to you to assist in the implementation of the planning permit that has been issued subject to the conditions above. The advice is not exhaustive and you must inform yourself of any other legislation, bylaws, regulations, codes or standards that will apply to your development under which you may need to obtain an approval. Visit the Council's website for further information.
Prior to any commencement of work on the site or commencement of use the following additional permits/approval may be required from the Hobart City Council.
CONDITION ENDORSEMENT
If any condition requires that further documents are submitted and approved, you will need to submit the relevant documentation to satisfy the condition via the Condition Endorsement Submission on Council's online services eplanning portal. Detailed instructions can be found here.
Once approved, the Council will respond to you via email that the condition has been endorsed (satisfied).
Where building approval is also required, it is recommended that documentation for condition endorsement be submitted well before submitting documentation for building approval. Failure to address condition endorsement requirements prior to submitting for building approval may result in unexpected delays.
BUILDING PERMIT
You may need building approval in accordance with the Building Act 2016. Click here for more information.
This is a Discretionary Planning Permit issued in accordance with section 57 of the Land Use Planning and Approvals Act 1993.
NOISE REGULATIONS
Click here for information with respect to noise nuisances in residential areas.
FEES AND CHARGES
Click here for information on the Council's fees and charges.
VISITOR ACCOMMODATION
More information on visitor accommodation, including when building approval is required, can be found here.
In all cases, check with your insurance company that you have adequate cover.
If you are in a bushfire prone area there may be a need to create/review the Bushfire Management Hazard Plan for your property.
If you have a spa or a pool at your property then you are required to test for microbiological quality and chemical parameters on a monthly basis, under the Public Health Act 1997. If you have any questions about this then please call our Environmental Health team on 6238 2711.
If you are providing food for consumption on the property, you may require a food business registration in accordance with the Food Act 2003. Click here for more information, or call our Environmental Health team on 6238 2711.
Visitor accommodation is also considered to be a commercial use and also not eligible to residential parking permits. Under the current policy for the issuing of residential parking permits, the proposed change of use to visitor accommodation would not entitle the property to a residential parking permit, or a transferable “bed and breakfast” parking permit.
|
Attachment
a: PLN-23-146
- 33/10 WATERWORKS ROAD DYNNYRNE TAS 7005 - Planning Committee or Delegated
Report ⇩ ![]()
Attachment
b: PLN-23-146
- 33/10 WATERWORKS ROAD DYNNYRNE TAS 7005 - PC Agenda Documents ⇩
|
Agenda (Open Portion) Planning Committee Meeting |
Page 1 |
|
|
|
17/5/2023 |
|
7. Reports
7.1 Planning - Advertised Applications Report
Report of the Director City Life of 12 May 2023 and attachment.
Delegation: Committee
|
Item No. 7.1 |
Agenda (Open Portion) Planning Committee Meeting |
Page 1 |
|
|
17/5/2023 |
|
Memorandum: Planning Committee
Planning - Advertised Applications Report
Attached is the advertised applications list for the period 19 April 2023 to 2 May 2023.
|
That the ‘Planning – Advertised Applications Report’ be received and noted.
|
As signatory to this report, I certify that, pursuant to Section 55(1) of the Local Government Act 1993, I hold no interest, as referred to in Section 49 of the Local Government Act 1993, in matters contained in this report.
|
Neil Noye Director City Life |
|
Date: 12 May 2023
File Reference: F23/44848
Attachment a: Planning
- Advertised Applications Report ⇩
|
Agenda (Open Portion) Planning Committee Meeting |
Page 1 |
|
|
|
17/5/2023 |
|
7.2 Delegated Decision Report (Planning)
Report of the Director City Life of 12 May 2023 and attachment.
Delegation: Committee
|
Item No. 7.2 |
Agenda (Open Portion) Planning Committee Meeting |
Page 1 |
|
|
17/5/2023 |
|

Memorandum: Planning Committee
Delegated Decision Report (Planning)
Attached is the delegated planning decisions report for the period 27 April 2023 to 10 May 2023.
|
That the ‘Delegated Decision Report (Planning)’report be received and noted.
|
As signatory to this report, I certify that, pursuant to Section 55(1) of the Local Government Act 1993, I hold no interest, as referred to in Section 49 of the Local Government Act 1993, in matters contained in this report.
|
Neil Noye Director City Life |
|
Date: 12 May 2023
File Reference: F23/47856
Attachment a: Delegated
Decision Report (Planning) ⇩
|
Agenda (Open Portion) Planning Committee Meeting |
Page 1 |
|
|
|
17/5/2023 |
|
Regulation 29(3) Local Government
(Meeting Procedures) Regulations 2015.
File Ref: 13-1-10
The Chief Executive Officer reports:-
“In accordance with the procedures approved in respect to Questions Without Notice, the following responses to questions taken on notice are provided to the Committee for information.
The Committee is reminded that in accordance with Regulation 29(3) of the Local Government (Meeting Procedures) Regulations 2015, the Chairman is not to allow discussion or debate on either the question or the response.”
8.1 Strata Dwellings - Short Stay Accommodation
File Ref: F23/34091; 13-1-10
Report of the Director City Life of 17 May 2023.
8.2 Right of Way
File Ref: F23/31245; 13-1-10
Report of the Director City Life of 17 May 2023.
|
That the information be received and noted.
|
Delegation: Committee
|
Item No. 8.1 |
Agenda (Open Portion) Planning Committee Meeting |
Page 1 |
|
|
17/5/2023 |
|
memorandum: Lord
Mayor
Deputy lord Mayor
Elected members
Strata Dwellings - Short Stay Accommodation
|
Meeting: Planning Committee
|
Meeting date: 29 March 2023
|
|
Raised by: Councillor Posselt |
|
Question:
Can the Director advise if there is anything in the planning scheme that prohibits or prevents entire strata dwellings from being converted to short stay accommodation?
Response:
No, there is nothing in the planning scheme that prohibits or prevents entire strata schemes from being converted from residential use to visitor accommodation use.
The requirements which would need to be satisfied from clause 3.1(e) of Planning Directive No. 6 Exemption and Standards for Visitor Accommodation in Planning Schemes, are extracted below.
It is worth noting:
· A1 / P1: There is a Supreme Court decision where the Court determined that a reference to “lot” as it appears in planning controls applying to strata titled land is not a reference to a strata title lot, but a parent title. This means that the floor area of each strata unit which has been approved for visitor accommodation is added to subsequent applications. So if each unit is 150m2 then the first application will meet A1 but all subsequent applications would need to be assessed under P1.
· A2 / P2: If all strata units have been converted to visitor accommodation except for one, and an application is made for the final unit to be converted to visitor accommodation, it will meet the acceptable solution in A1.

As signatory to this report, I certify that, pursuant to Section 55(1) of the Local Government Act 1993, I hold no interest, as referred to in Section 49 of the Local Government Act 1993, in matters contained in this report.
|
Neil Noye Director City Life |
|
Date: 8 May 2023
File Reference: F23/34091; 13-1-10
|
Item No. 8.2 |
Agenda (Open Portion) Planning Committee Meeting |
Page 1 |
|
|
17/5/2023 |
|
memorandum: Lord
Mayor
Deputy lord Mayor
Elected members
Right of Way
|
Meeting: Planning Committee
|
Meeting date: 1 March 2023
|
|
Raised by: Lord Mayor Reynolds |
|
Question:
Can the Director advise what rules and laws are attached to “right of ways” in the City of Hobart? Is there a single law that governs them?
Response:
A right of way is usually established by an easement which is registered on the certificate of title for a property, which sets out what may be done by a third party on that land. The scope of easements will vary depending on what was considered necessary in each situation.
The law which governs easements is the Land Titles Act 1980 but, depending on the circumstances, there may be common law rights which could establish an easement which has not been registered on a title.
As signatory to this report, I certify that, pursuant to Section 55(1) of the Local Government Act 1993, I hold no interest, as referred to in Section 49 of the Local Government Act 1993, in matters contained in this report.
|
Neil Noye Director City Life |
|
Date: 8 May 2023
File Reference: F23/31245; 13-1-10
|
|
Agenda (Open Portion) Planning Committee Meeting |
Page 1 |
|
|
17/5/2023 |
|
Regulation 29 of the Local Government (Meeting Procedures) Regulations 2015.
File Ref: 13-1-10
(1) A councillor at a meeting may ask a question without notice –
(a) of the chairperson; or
(b) through the chairperson, of –
(i) another councillor; or
(ii) the general manager.
(2) In putting a question without notice at a meeting, a councillor must not –
(a) offer an argument or opinion; or
(b) draw any inferences or make any imputations –
except so far as may be necessary to explain the question.
(3) The chairperson of a meeting must not permit any debate of a question without notice or its answer.
(4) The chairperson, councillor or general manager who is asked a question without notice at a meeting may decline to answer the question.
(5) The chairperson of a meeting may refuse to accept a question without notice if it does not relate to the activities of the council.
(6) Questions without notice, and any answers to those questions, are not required to be recorded in the minutes of the meeting.
(7) The chairperson of a meeting may require a councillor to put a question without notice in writing.
|
|
Agenda (Open Portion) Planning Committee Meeting |
Page 1 |
|
|
17/5/2023 |
|