
City
of hobart
AGENDA
City Planning Committee Meeting
Open Portion
Monday, 13 September 2021
at 5:00 pm
Council Chamber, Town Hall
Working together to make Hobart a better place for the community.
THE VALUES
The Council is:
|
People |
We care about people – our community, our customers and colleagues. |
|
Teamwork |
We collaborate both within the organisation and with external stakeholders drawing on skills and expertise for the benefit of our community. |
|
Focus and Direction |
We have clear goals and plans to achieve sustainable social, environmental and economic outcomes for the Hobart community. |
|
Creativity and Innovation |
We embrace new approaches and continuously improve to achieve better outcomes for our community. |
|
Accountability |
We are transparent, work to high ethical and professional standards and are accountable for delivering outcomes for our community. |
|
|
Agenda (Open Portion) City Planning Committee Meeting |
Page 3 |
|
|
13/9/2021 |
|
Business listed on the agenda is to be conducted in the order in which it is set out, unless the committee by simple majority determines otherwise.
APOLOGIES AND LEAVE OF ABSENCE
1. Co-Option of a Committee Member in the event of a vacancy
3. Consideration of Supplementary Items
4. Indications of Pecuniary and Conflicts of Interest
6. Planning Authority Items - Consideration of Items With Deputations
7. Committee Acting as Planning Authority
7.1 Applications under the Sullivans Cove Planning Scheme 1997
7.2 Applications under the Hobart Interim Planning Scheme 2015
7.2.3 43-47 Grosvenor Street, Sandy Bay - Partial Change of Use to Food Services
7.2.4 10 Selfs Point Road, New Town - Partial Demolition, Alterations and Extension
8.1 Delegated Decision Report (Planning)
8.2 City Planning - Advertising Report
8.3 Monthly Planning Statistics - 1 August 2021 - 31 August 2021
8.4 Monthly Building Statistics - 1 August 2021 - 31 August 2021
9. Motions of which Notice has been Given
9.1 Development Applications - Equal Accessibility
10. Responses To Questions Without Notice
10.1 Light Aircraft Noise - Hobart
12. Closed Portion Of The Meeting
|
|
Agenda (Open Portion) City Planning Committee Meeting |
Page 5 |
|
|
13/9/2021 |
|
City Planning Committee Meeting (Open Portion) held Monday, 13 September 2021 at 5:00 pm in the Council Chamber, Town Hall.
This meeting of the City Planning Committee is held in accordance with a Notice issued by the Premier on 3 April 2020 under section 18 of the COVID-19 Disease Emergency (Miscellaneous Provisions) Act 2020.
The title Chief Executive Officer is a term of reference for the General Manager as appointed by Council pursuant s.61 of the Local Government Act 1993 (Tas).
|
COMMITTEE MEMBERS Deputy Lord Mayor Burnet (Chairman) Briscoe Harvey Behrakis Dutta Coats
NON-MEMBERS Lord Mayor Reynolds Zucco Sexton Thomas Ewin Sherlock |
Apologies:
Leave of Absence: Nil.
|
|
The minutes of the Open Portion of the City Planning Committee meeting held on Monday, 30 August 2021, are submitted for confirming as an accurate record.
|
Ref: Part 2, Regulation 8(6) of the Local Government (Meeting Procedures) Regulations 2015.
|
That the Committee resolve to deal with any supplementary items not appearing on the agenda, as reported by the Chief Executive Officer.
|
Ref: Part 2, Regulation 8(7) of the Local Government (Meeting Procedures) Regulations 2015.
Members of the Committee are requested to indicate where they may have any pecuniary or conflict of interest in respect to any matter appearing on the agenda, or any supplementary item to the agenda, which the Committee has resolved to deal with.
Regulation 15 of the Local Government (Meeting Procedures) Regulations 2015.
A Committee may close a part of a meeting to the public where a matter to be discussed falls within 15(2) of the above regulations.
In the event that the Committee transfer an item to the closed portion, the reasons for doing so should be stated.
Are there any items which should be transferred from this agenda to the closed portion of the agenda, or from the closed to the open portion of the agenda?
In accordance with the requirements of Part 2 Regulation 8(3) of the Local Government (Meeting Procedures) Regulations 2015, the Chief Executive Officer is to arrange the agenda so that the planning authority items are sequential.
In accordance with Part 2 Regulation 8(4) of the Local Government (Meeting Procedures) Regulations 2015, the Committee by simple majority may change the order of any of the items listed on the agenda, but in the case of planning items they must still be considered sequentially – in other words they still have to be dealt with as a single group on the agenda.
Where deputations are to be received in respect to planning items, past practice has been to move consideration of these items to the beginning of the meeting.
RECOMMENDATION
That in accordance with Regulation 8(4) of the Local Government (Meeting Procedures) Regulations 2015, the Committee resolve to deal with any items which have deputations by members of the public regarding any planning matter listed on the agenda, to be taken out of sequence in order to deal with deputations at the beginning of the meeting.
|
|
Agenda (Open Portion) City Planning Committee Meeting |
Page 7 |
|
|
13/9/2021 |
|
In accordance with the provisions of Part 2 Regulation 25 of the Local Government (Meeting Procedures) Regulations 2015, the intention of the Committee to act as a planning authority pursuant to the Land Use Planning and Approvals Act 1993 is to be noted.
In accordance with Regulation 25, the Committee will act as a planning authority in respect to those matters appearing under this heading on the agenda, inclusive of any supplementary items.
The Committee is reminded that in order to comply with Regulation 25(2), the Chief Executive Officer is to ensure that the reasons for a decision by a Council or Council Committee acting as a planning authority are recorded in the minutes.
|
Agenda (Open Portion) City Planning Committee Meeting |
Page 11 |
|
|
|
13/9/2021 |
|
7.1 Applications under the Sullivans Cove Planning Scheme 1997
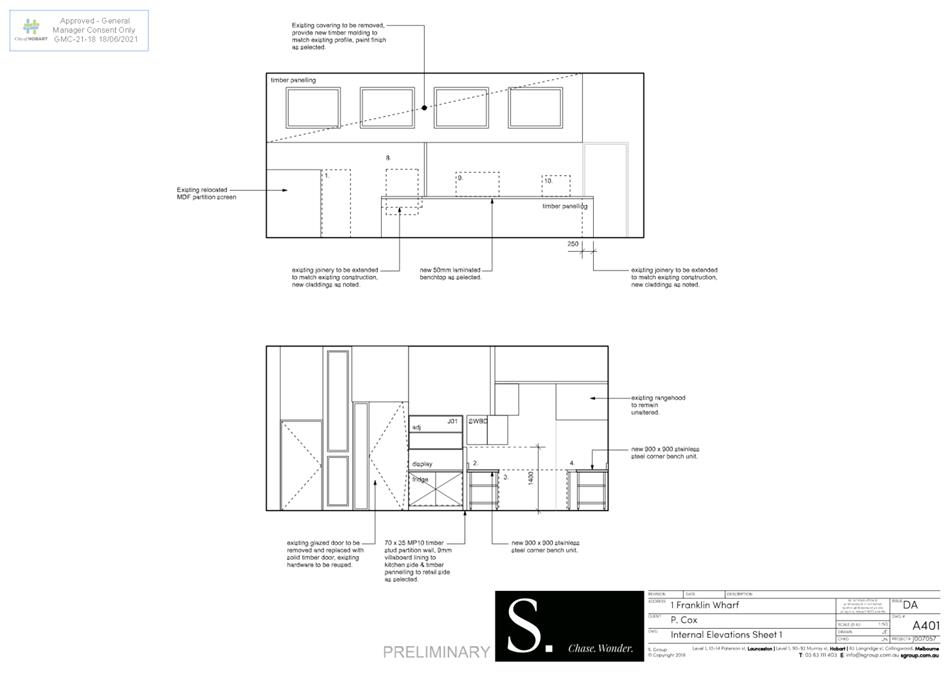
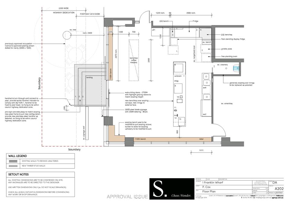
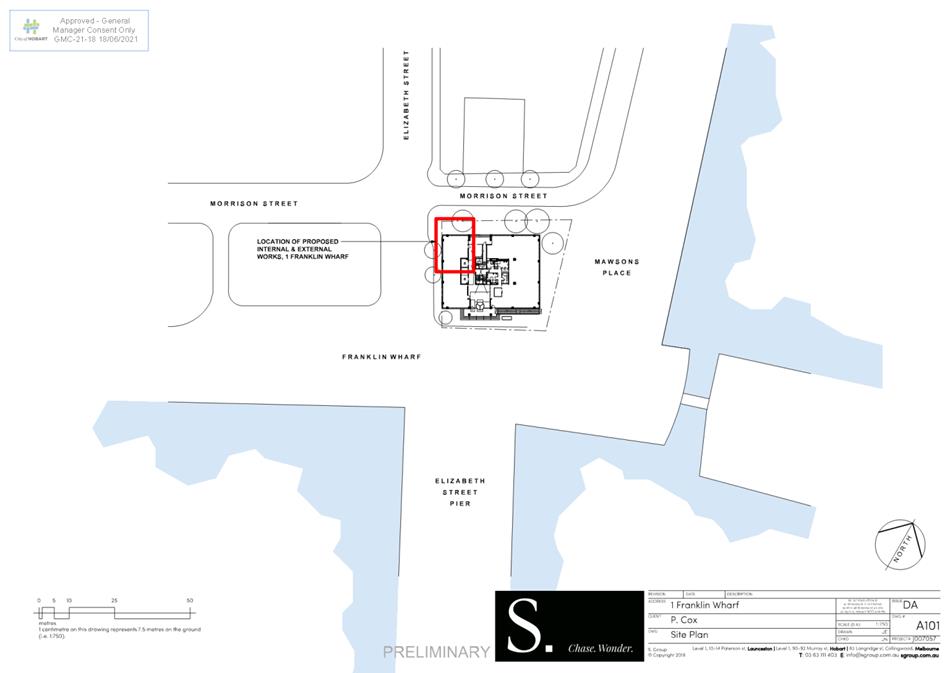
7.1.1 1 Franklin Wharf, Hobart and Adjacent Road Reserve - Partial Demolition, Alterations and Signage
Address: 1 Franklin Wharf, Hobart and Adjacent Road Reserve
Proposal: Partial Demolition, Alterations and Signage
Expiry Date: 15 September 2021
Extension of Time: Not applicable
Author: Tristan Widdowson
|
REcommendation That pursuant to the Sullivans Cove Planning Scheme 1997, the City Planning Committee, in accordance with the delegations contained in its terms of reference, approve the application for partial demolition, alterations, and signage at 1 Franklin Wharf, Hobart 7000 for the reasons outlined in the officer’s report and a permit containing the following conditions be issued:
GEN
The use and/or development must be substantially in accordance with the documents and drawings that comprise PLN21430 1 FRANKLIN WHARF HOBART TAS 7000 Final Planning Documents except where modified below.
Reason for condition
To clarify the scope of the permit.
ENG 1
Any damage to council infrastructure resulting from the implementation of this permit, must, at the discretion of the Council:
1. Be met by the owner
by way of reimbursement (cost of repair and
reinstatement to be
paid by the
owner to the
Council); or 2. Be repaired and reinstated by the owner to the satisfaction of the Council.
A photographic record of the Council's infrastructure adjacent to the subject site must be provided to the Council prior to any commencement of works.
A photographic record of the Council’s infrastructure (e.g. existing property service connection points, roads, buildings, stormwater, footpaths, driveway crossovers and nature strips, including if any, preexisting damage) will be relied upon to establish the extent of damage caused to the Council’s infrastructure during construction. In the event that the owner/developer fails to provide to the Council a photographic record of the Council’s infrastructure, then any damage to the Council's infrastructure found on completion of works will be deemed to be the responsibility of the owner.
Reason for condition
To ensure that any of the Council's infrastructure and/or siterelated service connections affected by the proposal will be altered and/or reinstated at the owner’s full cost.
ENV 1
Sediment and erosion control measures sufficient to prevent sediment from leaving the site must be installed prior to any disturbance of the site, and maintained until all areas of disturbance have been stabilized or revegetated.
Advice:
For further guidance in preparing a Soil and Water Management Plan – in accordance with Fact sheet 3 Derwent Estuary Program click here.
Reason for condition
To avoid the sedimentation of roads, drains, natural watercourses, Council land that could be caused by erosion and runoff from the development, and to comply with relevant State legislation.
ADVICE
The following advice is provided to you to assist in the implementation of the planning permit that has been issued subject to the conditions above. The advice is not exhaustive and you must inform yourself of any other legislation, bylaws, regulations, codes or standards that will apply to your development under which you may need to obtain an approval. Visit the Council's website for further information.
Prior to any commencement of work on the site or commencement of use the following additional permits/approval may be required from the Hobart City Council.
BUILDING PERMIT
You may need building approval in accordance with the Building Act 2016. Click here for more information.
This is a Discretionary Planning Permit issued in accordance with section 57 of the Land Use Planning and Approvals Act 1993.
OCCUPATION OF THE PUBLIC HIGHWAY
You may require an occupational license for structures in the Hobart City Council highway reservation, in accordance with conditions to be established by the Council.
Click here for more information.
PLANNING
The Applicant is advised that in the view of the Council, where signage is composed of individual letters (including business logo) and where a wall or window is utilised as background, the overall dimensions of the signage shall be calculated by measuring the perimeter enclosing the letters and/or logo with the encompassed area being considered the total sign area. As such, those areas of wall or window beyond those perimeters do not constitute the ‘sign’.
WORK WITHIN THE HIGHWAY RESERVATION
Please note development must be in accordance with the Hobart City Council’s Infrastructure By law. Click here for more information.
FEES AND CHARGES
Click here for information on the Council's fees and charges.
DIAL BEFORE YOU DIG
Click here for dial before you dig information.
|
Attachment a: PLN-21-430
- 1 FRANKLIN WHARF HOBART TAS 7000 - Planning Committee or Delegated Report ⇩ ![]()
Attachment
b: PLN-21-430
- 1 FRANKLIN WHARF HOBART TAS 7000 - CPC Agenda Documents ⇩
|
Item No. 7.1.1 |
Agenda (Open Portion) City Planning Committee Meeting - 13/9/2021 |
Page 21 ATTACHMENT a |













|
Agenda (Open Portion) City Planning Committee Meeting - 13/9/2021 |
Page 29 ATTACHMENT b |



|
Agenda (Open Portion) City Planning Committee Meeting |
Page 59 |
|
|
|
13/9/2021 |
|
7.2 Applications under the Hobart Interim Planning Scheme 2015
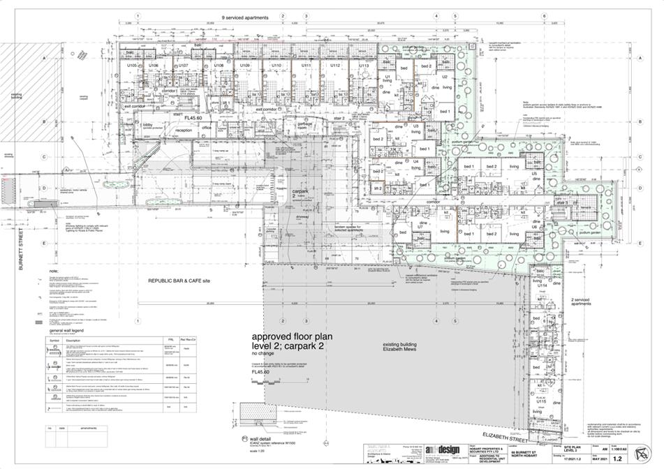
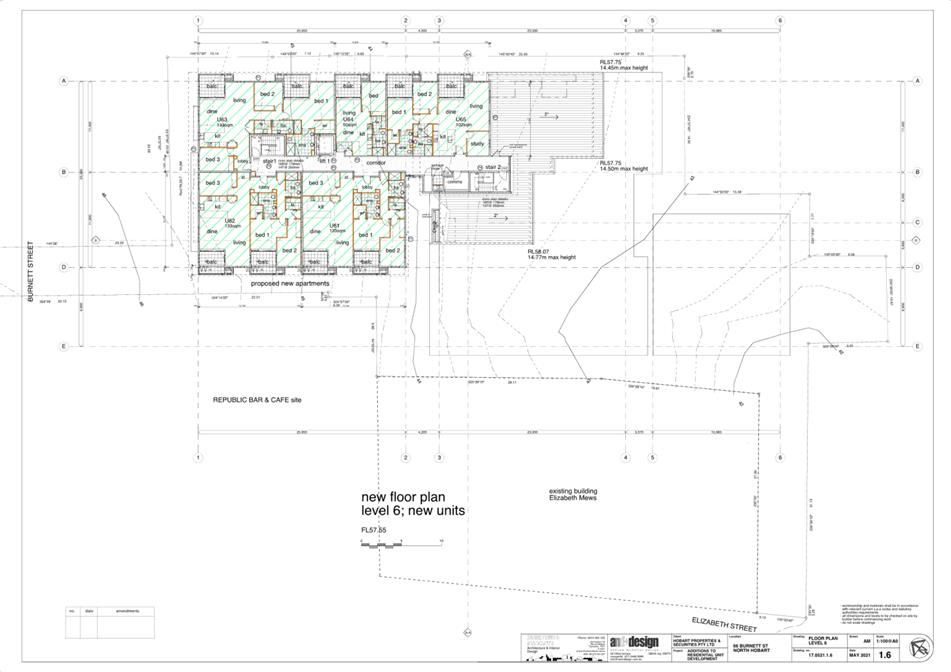
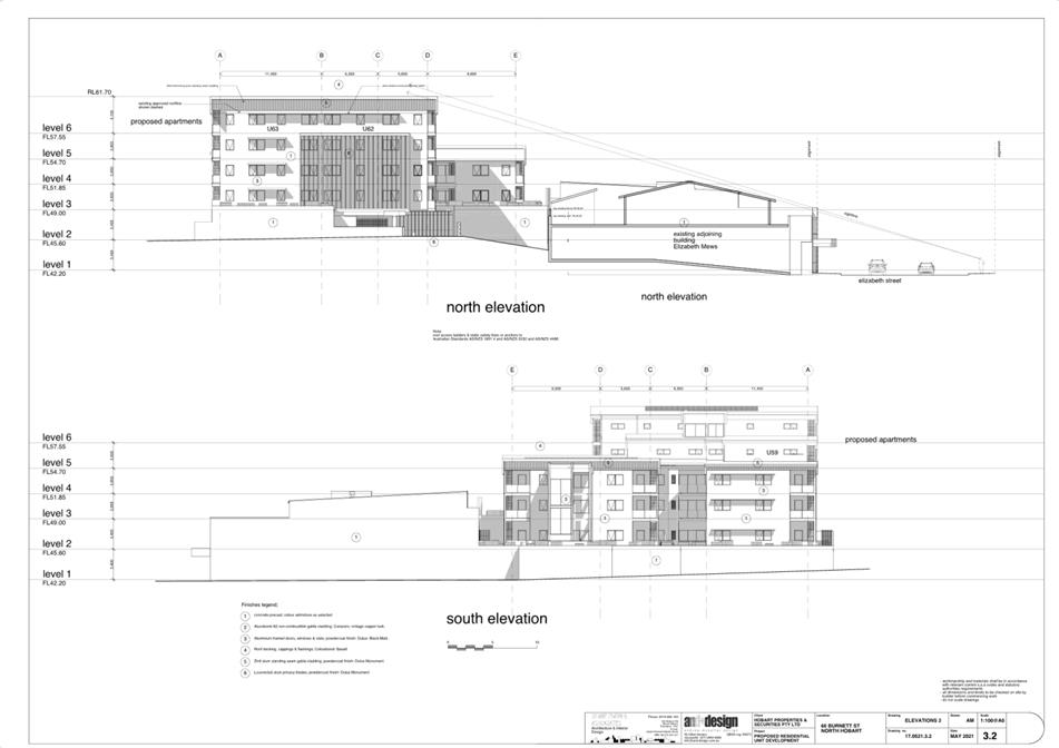
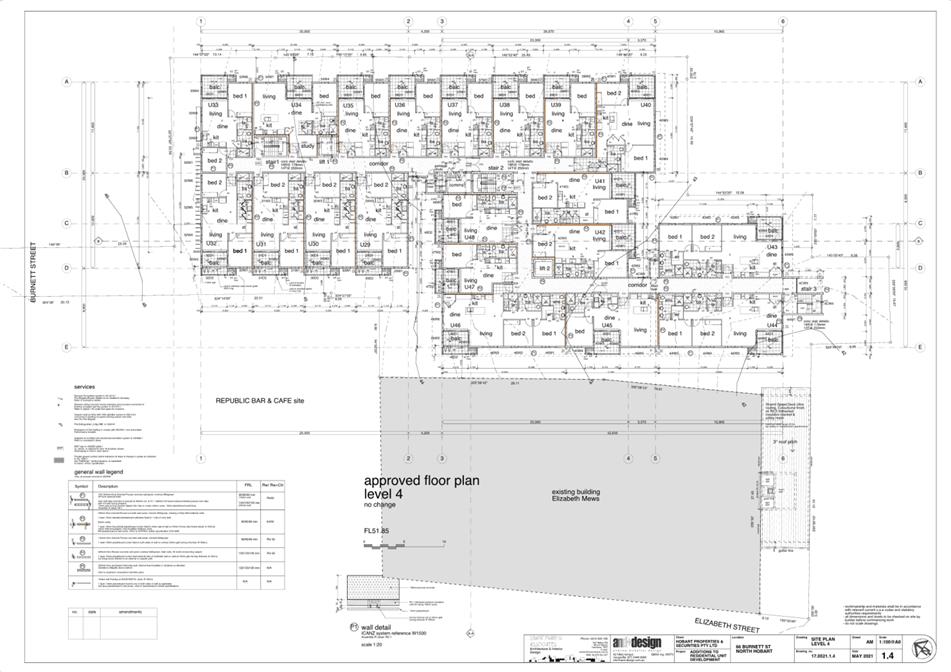
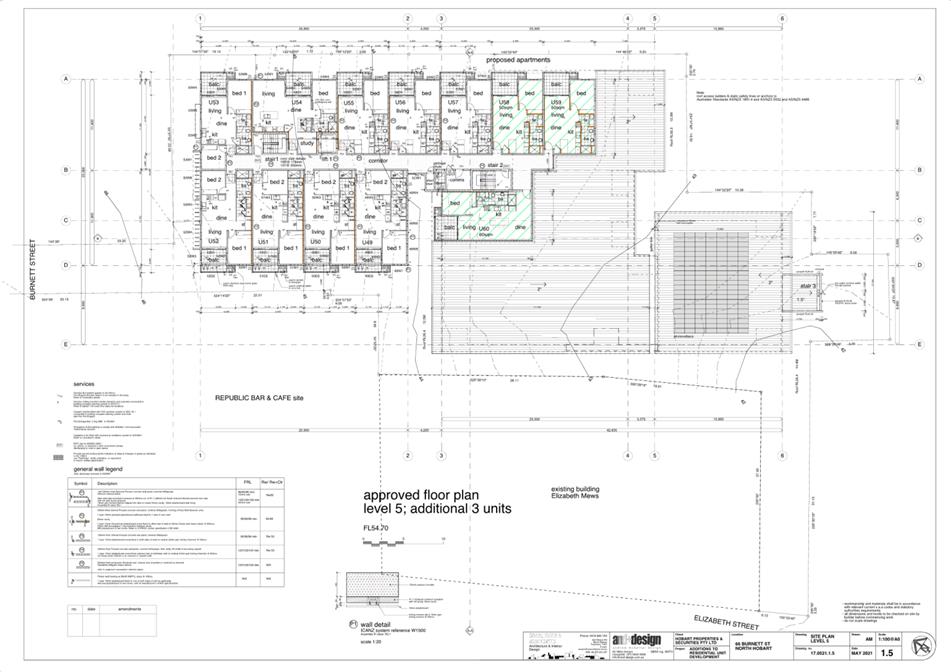
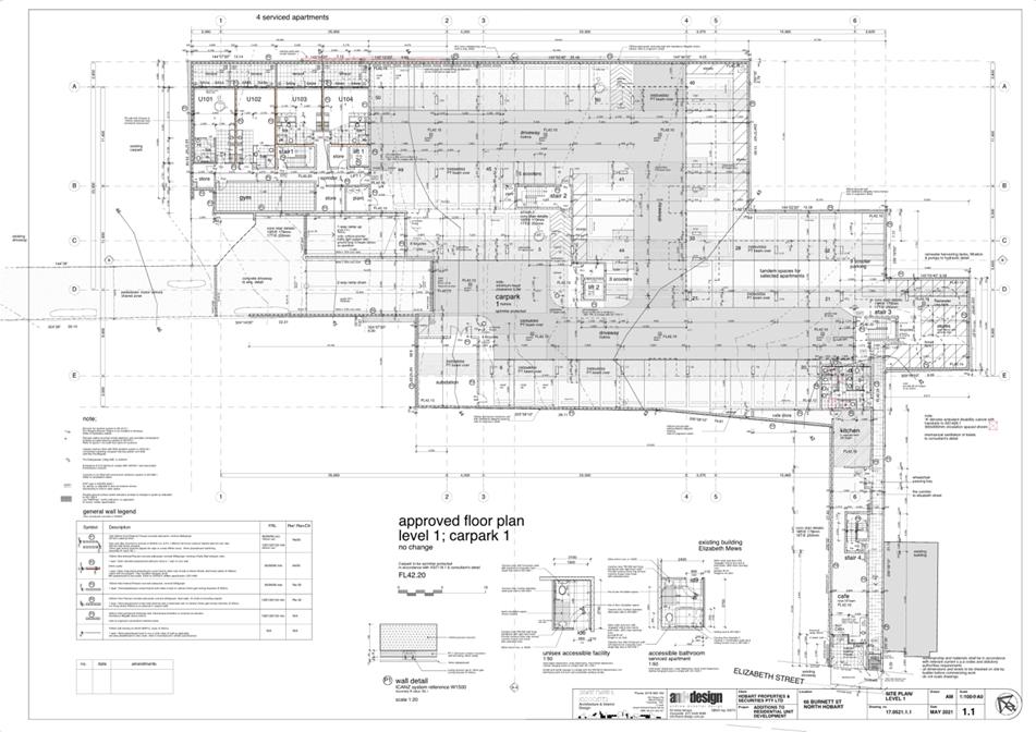
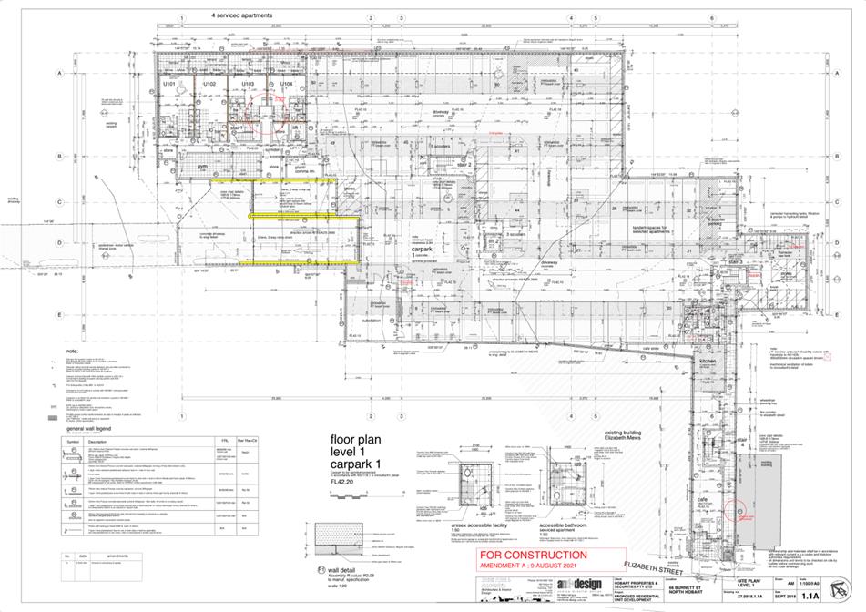
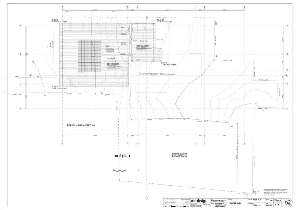
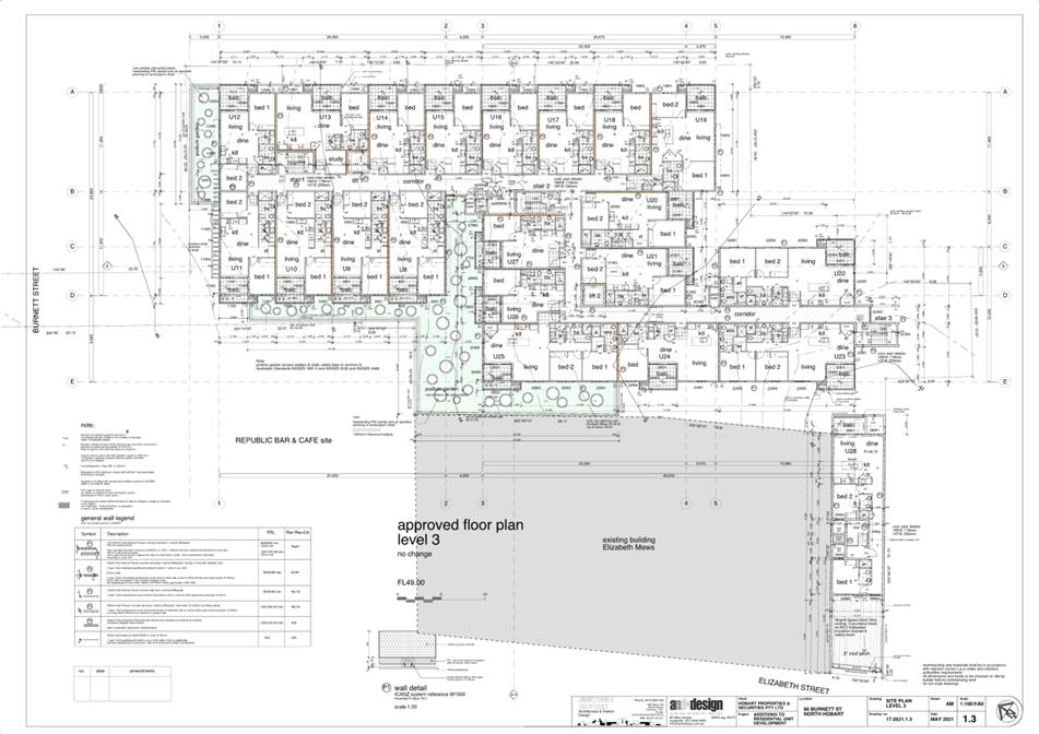
7.2.1 66 Burnett Street, North Hobart - Extension to Previously Approved Development including Eight Additional Multiple Dwellings
Address: 66 Burnett Street, North Hobart
Proposal: Extension to Previously Approved Development including Eight Additional Multiple Dwellings
Expiry Date: 22 September 2021
Extension of Time: Not applicable
Author: Adam Smee
|
REcommendation That pursuant to the Hobart Interim
Planning Scheme 2015, the Council refuse the application for an extension to a previously approved development including eight
additional multiple
dwellings at 66 Burnett Street, North Hobart, for the following reason: 1. The proposal does not meet the acceptable solution or the performance criterion with respect to clause E6.6.1 of the Hobart Interim Planning Scheme 2015 because the number of onsite car parking spaces would not be sufficient to meet the reasonable needs of users, having regard to car parking demand and the availability of on street and public car parking in the locality.
|
Attachment a: PLN-21-475
- 66 BURNETT STREET NORTH HOBART TAS 7000 - Planning Committee or Delegated
Report ⇩ ![]()
Attachment
b: PLN-21-475
- 66 BURNETT STREET NORTH HOBART TAS 7000 - CPC Agenda Documents ⇩ ![]()
Attachment
c: PLN-21-475
- 66 BURNETT STREET NORTH HOBART TAS 7000 - Referral Officer Report - Development
Engineering ⇩ ![]()
Attachment
d: PLN-21-475
- 66 BURNETT STREET NORTH HOBART TAS 7000 - Applicant Submission Regarding Car
Parking ⇩
|
Item No. 7.2.1 |
Agenda (Open Portion) City Planning Committee Meeting - 13/9/2021 |
Page 90 ATTACHMENT a |






























|
Agenda (Open Portion) City Planning Committee Meeting - 13/9/2021 |
Page 127 ATTACHMENT b |



































|
Agenda (Open Portion) City Planning Committee Meeting - 13/9/2021 |
Page 171 ATTACHMENT c |


















|
Agenda (Open Portion) City Planning Committee Meeting - 13/9/2021 |
Page 174 ATTACHMENT d |


|
Agenda (Open Portion) City Planning Committee Meeting |
Page 177 |
|
|
|
13/9/2021 |
|
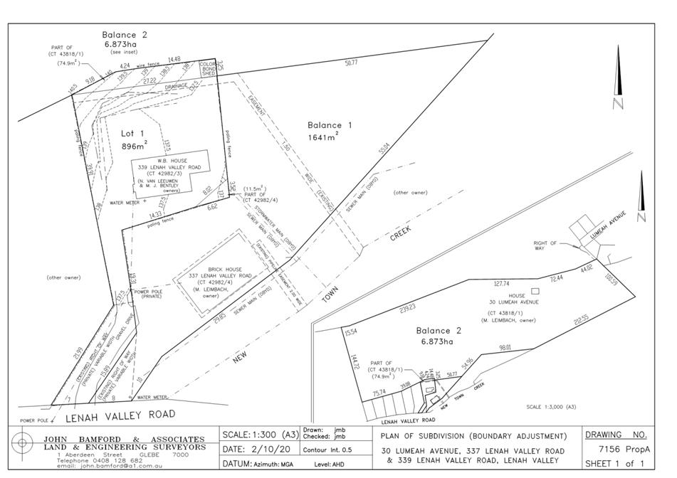
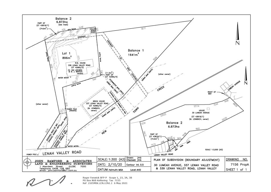
7.2.2 339 Lenah Valley Road, 30 Lumeah Avenue and 337 Lenah Valley Road, Lenah Valley - Subdivision (Boundary Adjustment)
Address: 339 Lenah Valley Road, 30 Lumeah Avenue and 337 Lenah Valley Road, Lenah Valley
Proposal: Subdivision (Boundary Adjustment)
Expiry Date: 21 October 2021
Extension of Time: Not applicable
Author: Victoria Maxwell
|
REcommendation That pursuant to the Hobart Interim
Planning Scheme 2015, the Council refuse the application for subdivision (boundary adjustment)
339 Lenah Valley
Road Lenah
Valley TAS 7008 for the following reason: 1. The proposal does not meet the acceptable solution or the performance criterion with respect to clause 10.6.1.P4 (i) of the Hobart Interim Planning Scheme 2015 because the driveway access strip will not be sealed prior to the sealing of the final plan.
|
Attachment a: PLN-21-367
- 339 LENAH VALLEY ROAD LENAH VALLEY TAS 7008 - Planning Committee or Delegated
Report ⇩ ![]()
Attachment
b: PLN-21-367
- 339 LENAH VALLEY ROAD LENAH VALLEY TAS 7008 - CPC Agenda Documents ⇩ ![]()
Attachment
c: PLN-21-367
- 339 LENAH VALLEY ROAD LENAH VALLEY TAS 7008 - Planning Referral Officer
Surveying Services Report ⇩ ![]()
Attachment
d: PLN-21-367
- 339 LENAH VALLEY ROAD LENAH VALLEY TAS 7008 - Planning Referral Officer
Development Engineering Report ⇩ ![]()
Attachment
e: PLN-21-367
- 339 LENAH VALLEY ROAD LENAH VALLEY TAS 7008 - Planning Referral Officer
Environmental Development Planner Report ⇩
|
Item No. 7.2.2 |
Agenda (Open Portion) City Planning Committee Meeting - 13/9/2021 |
Page 198 ATTACHMENT a |




















|
Agenda (Open Portion) City Planning Committee Meeting - 13/9/2021 |
Page 219 ATTACHMENT b |




















|
Agenda (Open Portion) City Planning Committee Meeting - 13/9/2021 |
Page 232 ATTACHMENT c |
|
Item No. 7.2.2 |
Agenda (Open Portion) City Planning Committee Meeting - 13/9/2021 |
Page 234 ATTACHMENT d |

|
Agenda (Open Portion) City Planning Committee Meeting - 13/9/2021 |
Page 237 ATTACHMENT e |


|
Agenda (Open Portion) City Planning Committee Meeting |
Page 240 |
|
|
|
13/9/2021 |
|
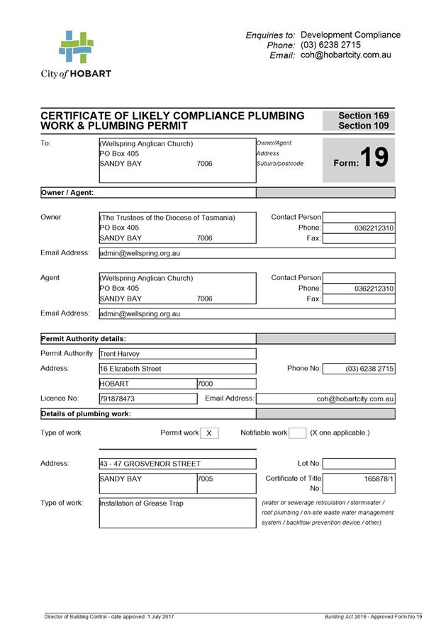
7.2.3 43-47 Grosvenor Street, Sandy Bay - Partial Change of Use to Food Services
Address: 43-47 Grosvenor Street, Sandy Bay
Proposal: Partial Change of Use to Food Services
Expiry Date: 13 September 2021
Extension of Time: Not applicable
Author: Victoria Maxwell
|
REcommendation That pursuant to the Hobart Interim Planning Scheme 2015, the City Planning Committee, in accordance with the delegations contained in its terms of reference, approve the application for a partial change of use to food services at 4347 Grosvenor Street Sandy Bay TAS 7005 for the reasons outlined in the officer’s report and a permit containing the following conditions be issued:
GEN
The use and/or development must be substantially in accordance with the documents and drawings that comprise PLN21487 4347 GROSVENOR STREET SANDY BAY TAS 7005 Final Planning Documents except where modified below.
Reason for condition
To clarify the scope of the permit.
TW
The use and/or development must comply with the requirements of TasWater as detailed in the form Submission to Planning Authority Notice, Reference No. TWDA 2021/01261HCC dated 05/08/2021 as attached to the permit.
Reason for condition
To clarify the scope of the permit.
PLN s1
The use is approved with the employment of two (2) workers on site only.
Reason for condition
To ensure that the non-residential use does not unreasonably impact on residential amenity.
PLN s2
The on-site serving of customers is not approved in this permit. All sales must be online or via direct delivery by the applicants.
Reason for this condition
To ensure that the non-residential use does not unreasonably impact on residential amenity.
PLN s3
The use is approved as Food Services (Commercial Kitchen) for the preparation of food only. No approval is granted in this permit to sell or serve food or products on site.
Reason for condition
To ensure that the non-residential use does not unreasonably impact on residential amenity.
ADVICE
The following advice is provided to you to assist in the implementation of the planning permit that has been issued subject to the conditions above. The advice is not exhaustive and you must inform yourself of any other legislation, bylaws, regulations, codes or standards that will apply to your development under which you may need to obtain an approval. Visit the Council's website for further information.
Prior to any commencement of work on the site or commencement of use the following additional permits/approval may be required from the Hobart City Council.
BUILDING PERMIT
You may need building approval in accordance with the Building Act 2016. Click here for more information.
PLUMBING PERMIT
You may need plumbing approval in accordance with the Building Act 2016, Building Regulations 2016 and the National Construction Code. Click here for more information.
PUBLIC HEALTH
You may be required to provide approved/endorsed plans for a food business fit out, in accordance with the National Construction Code Building Code of Australia including Tas Part H102 for food premises which must have regard to the FSANZ Food Safety Standards. Click here for more information.
FOOD BUSINESS REGISTRATION
Food business registration in accordance with the Food Act 2003. Click here for more information.
PLANNING
The applicant is advised that any expansion in the scale of this use will require application for and the granting of an additional planning permit.
FEES AND CHARGES
Click here for information on the Council's fees and charges.
|
Attachment a: PLN-21-487
- 43-47 GROSVENOR STREET SANDY BAY TAS 7005 - Planning Committee or Delegated
Report ⇩ ![]()
Attachment
b: PLN-21-487
- 43-47 GROSVENOR STREET SANDY BAY TAS 7005 - CPC Agenda Documents ⇩
|
Item No. 7.2.3 |
Agenda (Open Portion) City Planning Committee Meeting - 13/9/2021 |
Page 259 ATTACHMENT a |


















|
Agenda (Open Portion) City Planning Committee Meeting - 13/9/2021 |
Page 270 ATTACHMENT b |










|
Agenda (Open Portion) City Planning Committee Meeting |
Page 291 |
|
|
|
13/9/2021 |
|
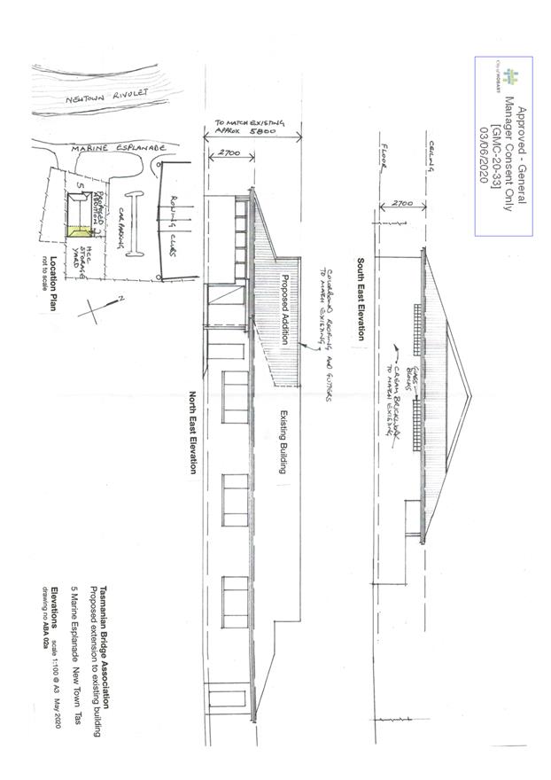
7.2.4 10 Selfs Point Road, New Town - Partial Demolition, Alterations and Extension
Address: 10 Selfs Point Road, New Town
Proposal: Partial Demolition, Alterations and Extension
Expiry Date: 21 September 2021
Extension of Time: Not applicable
Author: Cameron Sherriff
|
REcommendation That pursuant to the Hobart Interim Planning Scheme 2015, the City Planning Committee, in accordance with the delegations contained in its terms of reference, approve the application for partial demolition, alterations and extension, at 10 Selfs Point Road, New Town 7008 for the reasons outlined in the officer’s report and a permit containing the following conditions be issued:
GEN
The use and/or development must be substantially in accordance with the documents and drawings that comprise PLN20268 10 SELFS POINT ROAD NEW TOWN TAS 7008 Final Planning Documents except where modified below.
Reason for condition
To clarify the scope of the permit.
ENG sw1
All stormwater from the proposed development (including but not limited to: roofed areas, ag drains, retaining wall ag drains and impervious surfaces such as driveways and paved areas) must be drained to the Council’s stormwater infrastructure prior to first occupation or commencement of use (whichever occurs first).
Advice:
Under section 23 of the Urban Drainage Act 2013 it is an offence for a property owner to direct stormwater onto a neighbouring property.
Reason for condition
To ensure that stormwater from the site will be discharged to a suitable Council approved outlet.
ENG 1
Any damage to council infrastructure resulting from the implementation of this permit, must, at the discretion of the Council:
1. Be met by the owner by way of reimbursement (cost of repair and reinstatement to be paid by the owner to the Council); or
2. Be repaired and reinstated by the owner to the satisfaction of the Council.
A photographic record of the Council's infrastructure adjacent to the subject site must be provided to the Council prior to any commencement of works.
A photographic record of the Council’s infrastructure (e.g. existing property service connection points, roads, buildings, stormwater, footpaths, driveway crossovers and nature strips, including if any, preexisting damage) will be relied upon to establish the extent of damage caused to the Council’s infrastructure during construction. In the event that the owner/developer fails to provide to the Council a photographic record of the Council’s infrastructure, then any damage to the Council's infrastructure found on completion of works will be deemed to be the responsibility of the owner.
Reason for condition
To ensure that any of the Council's infrastructure and/or site related service connections affected by the proposal will be altered and/or reinstated at the owner’s full cost.
ENV 1
Sediment and erosion control measures sufficient to prevent sediment from leaving the site must be installed prior to any disturbance of the site, and maintained until all areas of disturbance have been stabilized or revegetated.
Advice:
For further guidance in preparing a Soil and Water Management Plan – in accordance with Fact sheet 3 Derwent Estuary Program click here.
Reason for condition
To avoid the sedimentation of roads, drains, natural watercourses, Council land that could be caused by erosion and runoff from the development, and to comply with relevant State legislation.
ENV s1
All works associated with the Bridge Club alterations and extension are to be undertaken in accordance with an Environmental Management and Communications Plan, prepared by the club, to the satisfaction of the Director City Amenity.
Advice:
A template for the Environmental Management and Communications Plan can be provided by the Open Space Planning Team, call 03 6238 2488. This plan must be made specific for the works that will occur on the site.
Reason for condition
The alterations and extension must be done in a manner that minimises impact to the Council land, is safe for the public and minimises inconvenience for the public.
ENVHE 4
As identified in the Preliminary Site Investigation Report 10 Selfs Point Road New Town, Revision 00 dated 29 June 2021 prepared by Pitt & Sherry, a Construction Environmental Management Plan must be implemented throughout the construction works.
A CEMP must be submitted and approved as a Condition Endorsement prior to the issuing of any approval under the Building Act 2016. The plan must;
· detail
the proposed construction methodology (particularly where works may
have environmental and
health impacts) · identify all potential environmental and health impacts associated with
the works including noise, odour, air pollution, water pollution, land
contamination, erosion
and land instability. · include measures to manage identified contamination and associated waste management in order to mitigate and control potential human health impacts during works.
All work required by this condition must be undertaken in accordance with the approved construction environmental management plan which forms part of this permit and must be complied with.
Advice:
This condition requires further information to be submitted as a Condition Endorsement. Refer to the Condition Endorsement advice at the end of this permit.
Reason for condition
To minimise the potential for environmental and health impacts from the construction activity on identified contaminated land.
ADVICE
The following advice is provided to you to assist in the implementation of the planning permit that has been issued subject to the conditions above. The advice is not exhaustive and you must inform yourself of any other legislation, bylaws, regulations, codes or standards that will apply to your development under which you may need to obtain an approval. Visit the Council's website for further information.
Prior to any commencement of work on the site or commencement of use the following additional permits/approval may be required from the Hobart City Council.
CONDITION ENDORSEMENT
If any condition requires that further documents are submitted and approved, you will need to submit the relevant documentation to satisfy the condition via the Condition Endorsement Submission on Council's online services eplanning portal. Detailed instructions can be found here.
A fee of 2% of the value of the works for new public assets (stormwater infrastructure, roads and related assets) will apply for the condition endorsement application.
Once approved, the Council will respond to you via email that the condition has been endorsed (satisfied).
Where building approval is also required, it is recommended that documentation for condition endorsement be submitted well before submitting documentation for building approval. Failure to address condition endorsement requirements prior to submitting for building approval may result in unexpected delays.
BUILDING PERMIT
You may need building approval in accordance with the Building Act 2016. Click here for more information.
This is a Discretionary Planning Permit issued in accordance with section 57 of the Land Use Planning and Approvals Act 1993.
PLUMBING PERMIT
You may need plumbing approval in accordance with the Building Act 2016, Building Regulations 2016 and the National Construction Code. Click here for more information.
WEED CONTROL
Effective measures are detailed in the Tasmanian Washdown Guidelines for Weed and Disease Control: Machinery, Vehicles and Equipment (Edition 1, 2004). The guidelines can be obtained from the Department of Primary Industries, Parks, Water and Environment website.
FEES AND CHARGES
Click here for information on the Council's fees and charges.
DIAL BEFORE YOU DIG
Click here for dial before you dig information.
|
Attachment
a: PLN-20-268
- 10 SELFS POINT ROAD NEW TOWN TAS 7008 - Planning Committee or Delegated
Report ⇩ ![]()
Attachment
b: PLN-20-268
- 10 SELFS POINT ROAD NEW TOWN TAS 7008 - CPC Agenda Documents ⇩
|
Item No. 7.2.4 |
Agenda (Open Portion) City Planning Committee Meeting - 13/9/2021 |
Page 308 ATTACHMENT a |
















|
Agenda (Open Portion) City Planning Committee Meeting - 13/9/2021 |
Page 318 ATTACHMENT b |









|
Agenda (Open Portion) City Planning Committee Meeting |
Page 566 |
|
|
|
13/9/2021 |
|
8. Reports
8.1 Delegated Decision Report (Planning)
Memorandum of the Director City Planning of 8 September 2021 and attachment.
Delegation: Committee
|
Item No. 8.1 |
Agenda (Open Portion) City Planning Committee Meeting |
Page 567 |
|
|
13/9/2021 |
|
Memorandum: City Planning Committee
Delegated Decision Report (Planning)
Attached is the delegated planning decisions report for the period 23 August 2021 to 3 September 2021.
|
That: 1. That the information be received and noted.
|
As signatory to this report, I certify that, pursuant to Section 55(1) of the Local Government Act 1993, I hold no interest, as referred to in Section 49 of the Local Government Act 1993, in matters contained in this report.
|
Neil Noye Director City Planning |
|
Date: 8 September 2021
File Reference: F21/90280
Attachment a: Delegated
Decision Report (Planning) ⇩
|
Item No. 8.1 |
Agenda (Open Portion) City Planning Committee Meeting - 13/9/2021 |
Page 568 ATTACHMENT a |
|
Item No. 8.2 |
Agenda (Open Portion) City Planning Committee Meeting |
Page 569 |
|
|
13/9/2021 |
|
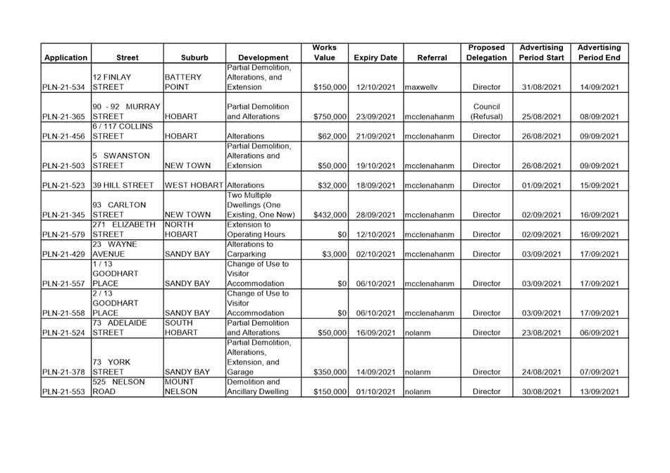
8.2 City Planning - Advertising Report
Memorandum of the Director City Planning of 8 September 2021 and attachment.
Delegation: Committee
|
Item No. 8.2 |
Agenda (Open Portion) City Planning Committee Meeting |
Page 570 |
|
|
13/9/2021 |
|

Memorandum: City Planning Committee
City Planning - Advertising Report
Attached is the advertising list for the period 23 August 2021 to 3 September 2021.
|
That: 1. That the information be received and noted.
|
As signatory to this report, I certify that, pursuant to Section 55(1) of the Local Government Act 1993, I hold no interest, as referred to in Section 49 of the Local Government Act 1993, in matters contained in this report.
|
Neil Noye Director City Planning |
|
Date: 8 September 2021
File Reference: F21/90336
Attachment a: City
Planning - Advertising Report ⇩
|
Item No. 8.2 |
Agenda (Open Portion) City Planning Committee Meeting - 13/9/2021 |
Page 573 ATTACHMENT a |


|
Agenda (Open Portion) City Planning Committee Meeting |
Page 574 |
|
|
|
13/9/2021 |
|
8.3 Monthly Planning Statistics - 1 August 2021 - 31 August 2021
Memorandum of the Director City Planning of 8 September 2021 and attachments.
Delegation: Council
|
Item No. 8.3 |
Agenda (Open Portion) City Planning Committee Meeting |
Page 577 |
|
|
13/9/2021 |
|

Memorandum: City Planning Committee
Monthly Planning Statistics - 1 August 2021 - 31 August 2021
Attached is the Planning Permit statistics for the period 1 August 2021 - 31 August 2021
|
That:
The Director City Planning reports:
Planning Statistical Report:
During the period 1 August 2021 to 31 August 2021, 62 permits were issued to the value of $12,028,590 which included:
(i) 9 new single dwellings to the value of $1,334,775;
(ii) 17 multiple dwellings to the value of $5,759,000;
(iii) 26 extensions/alterations to dwellings to the value of $3,762,815;
(iv) 13 extensions/alterations to commercial properties to the value of $1,362,000;
(v) 1 major project:
(a) 43A Pirie Street, New Town - Demolition, Six Multiple Dwellings, Front Fencing, and Associated Works - $2,400,000;
During the period 1 August 2020 to 31 August 2020, 68 permits were issued to the value of $19,228,200 which included:
(i) 9 new single dwellings to the value of $4,163,790;
(ii) 26 multiple dwellings to the value of $9,585,000;
(iii) 29 extensions/alterations to dwellings to the value of $3,673,500;
(iv) 7 extensions/alterations to commercial properties to the value of $1,285,680;
(v) 3 major projects:
(a) 26 Lower Jordan Hill Road, West Hobart - Partial Demolition, Five Multiple Dwellings, Landscaping and Fencing - $3,000,000; (b) 27 Lefroy Street, North Hobart - New Development for Eight Multiple Dwellings, Business and Professional Services, Food Services and General Retail and Hire, Signage and Associated Works in the Road Reservation - $3,000,000; (c) 18-24 Letitia Street, North Hobart - Partial Demolition and New Development for Eight Multiple Dwellings - $2,200,000;
In the twelve months ending August 2021, 827 permits were issued to the value of $314,035,672; and
In the twelve months ending August 2020, 841 permits were issued to the value of $256,633,142.
# This report includes permits issued, exempt and no permit required decisions. |
As signatory to this report, I certify that, pursuant to Section 55(1) of the Local Government Act 1993, I hold no interest, as referred to in Section 49 of the Local Government Act 1993, in matters contained in this report.
|
Neil Noye Director City Planning |
|
Date: 8 September 2021
File Reference: F21/90355
Attachment a: Monthly
Comparison Number of Planning Permit Issued August 2021
⇩ ![]()
Attachment
b: Monthly
Comparison Planning Approvals Value August 2021 ⇩ ![]()
Attachment
c: Number
of Planning Permit Issued Accumulative Monthly Comparison August 2021 ⇩ ![]()
Attachment
d: Value
of Planning Permit Issued August 2021 ⇩
|
Item No. 8.3 |
Agenda (Open Portion) City Planning Committee Meeting - 13/9/2021 |
Page 578 ATTACHMENT a |
|
Item No. 8.3 |
Agenda (Open Portion) City Planning Committee Meeting - 13/9/2021 |
Page 579 ATTACHMENT b |
|
Item No. 8.3 |
Agenda (Open Portion) City Planning Committee Meeting - 13/9/2021 |
Page 580 ATTACHMENT c |
|
Item No. 8.3 |
Agenda (Open Portion) City Planning Committee Meeting - 13/9/2021 |
Page 581 ATTACHMENT d |
|
Item No. 8.4 |
Agenda (Open Portion) City Planning Committee Meeting |
Page 582 |
|
|
13/9/2021 |
|
8.4 Monthly Building Statistics - 1 August 2021 - 31 August 2021
Memorandum of the Director City Planning of 8 September 2021 and attachments.
Delegation: Council
|
Item No. 8.4 |
Agenda (Open Portion) City Planning Committee Meeting |
Page 584 |
|
|
13/9/2021 |
|

Memorandum: City Planning Committee
Monthly Building Statistics - 1 August 2021 - 31 August 2021
Attached is the Building Permit Statistics for the period 1 August 2021 – 31 August 2021.
|
That:
The Director City Planning reports:
Building Statistical Report:
During the period 1 August 2021 to 31 August 2021, 60 permits were issued to the value of $34,812,040 which included:
(i) 40 for extensions/alterations to dwellings to the value of $6,669,986;
(ii) 7 new dwellings to the value of $3,650,554;
(iii) 0 new multiple dwellings; and
(iv) 3 major projects:
(a) 48 Liverpool Street, Hobart - Commercial Internal Alterations - $13,510,000; (b) 16 Degraves Street, South Hobart - New Commercial Building - $5,268,500; (c) 66-80 Collins Street, Hobart - Commercial Internal Alterations - $3,500,000;
During the period 1 August 2020 to 31 August 2020, 44 permits were issued to the value of $5,892,275 which included:
(i) 28 for extensions/alterations to dwellings to the value of $4,257,786;
(ii) 3 new dwellings to the value of $790,000;
(iii) 0 new multiple dwellings; and
(iv) 0 major projects:
In the twelve months ending August 2021, 671 permits were issued to the value of $256,601,368; and
In the twelve months ending August 2020, 601 permits were issued to the value of $219,128,955 |
As signatory to this report, I certify that, pursuant to Section 55(1) of the Local Government Act 1993, I hold no interest, as referred to in Section 49 of the Local Government Act 1993, in matters contained in this report.
|
Neil Noye Director City Planning |
|
Date: 8 September 2021
File Reference: F21/90385
Attachment a: Building
Permits Issued Accumulative Monthly Totals Bar Graph ⇩ ![]()
Attachment
b: Building
Permits Value Accumulative Monthly Bar Graph ⇩ ![]()
Attachment
c: Monthly
Building Permits Issued Line Graph ⇩ ![]()
Attachment
d: Value
of Monthly Building Permits Issued Line Graph ⇩
|
Item No. 8.4 |
Agenda (Open Portion) City Planning Committee Meeting - 13/9/2021 |
Page 585 ATTACHMENT a |
|
Item No. 8.4 |
Agenda (Open Portion) City Planning Committee Meeting - 13/9/2021 |
Page 586 ATTACHMENT b |
|
Item No. 8.4 |
Agenda (Open Portion) City Planning Committee Meeting - 13/9/2021 |
Page 587 ATTACHMENT c |
|
Item No. 8.4 |
Agenda (Open Portion) City Planning Committee Meeting - 13/9/2021 |
Page 588 ATTACHMENT d |
|
Agenda (Open Portion) City Planning Committee Meeting |
Page 589 |
|
|
|
13/9/2021 |
|
9. Motions of which Notice has been Given
9.1 Development Applications - Equal Accessibility
Councillor Ewin
Motion
“That Council officers produce a report on potential mechanisms and issues for ensuring that development applications that propose improved access facilities to meet the equal access requirements of the National Building Code are not singularly refused because of breaches in the heritage code of Council’s planning schemes or the Historic Cultural Heritage Act 1995.”
Rationale:
“Nipaluna/Hobart has many buildings protected on heritage grounds, which is fantastic, but many of them are inaccessible for people with access requirements, which is not so fantastic. Of course we need to protect what makes our town special, but this should never be at the cost of excluding anyone in our community, especially people with disabilities. We are also all bound, at all times, by the Anti-Discrimination Act; and the Building Code also sets out specific requirements for equal access for very good reasons.
The fact that we have had DAs before us recommended for refusal because of applicants needing to meet access requirements set out in the Building Code and to meet their requirements under Anti-Discrimination legislation based on protecting heritage, is completely unacceptable. I understand that officers only assess DAs based on planning criteria, but I believe in 2021 this should be balanced by meeting our requirements under the Anti-Discrimination Act 1992, as well as our Community Vision and Social Inclusion Strategy documents, which demonstrate our clear commitment to upholding principles of equity.”
|
Agenda (Open Portion) City Planning Committee Meeting |
Page 590 |
|
|
|
13/9/2021 |
|
Regulation 29(3) Local Government
(Meeting Procedures) Regulations 2015.
File Ref: 13-1-10
The Chief Executive Officer reports:-
“In accordance with the procedures approved in respect to Questions Without Notice, the following responses to questions taken on notice are provided to the Committee for information.
The Committee is reminded that in accordance with Regulation 29(3) of the Local Government (Meeting Procedures) Regulations 2015, the Chairman is not to allow discussion or debate on either the question or the response.”
10.1 Light Aircraft Noise - Hobart
File Ref: F21/59114; 13-1-10
Memorandum of the Director City Planning of 30 August 2021.
10.2 Ancillary Dwellings
File Ref: F21/88560; 13-1-10
Memorandum of the Director City Planning of 8 September 2021.
|
That the information be received and noted.
|
Delegation: Committee
|
Item No. 10.1 |
Agenda (Open Portion) City Planning Committee Meeting |
Page 592 |
|
|
13/9/2021 |
|
Memorandum: Lord Mayor
Deputy Lord Mayor
Elected Members
Response to Question Without Notice
Light Aircraft Noise - Hobart
|
Meeting: City Planning Committee
|
Meeting date: 15 June 2021
|
|
Raised by: Deputy Lord Mayor Burnet |
|
Question:
In regard to the light aircraft flights over Hobart, could the Director please indicate the number and whether there is any exclusion (including floor and ceiling range) over the built up area of the city?
In regard to flights to the Royal Hobart Hospital helipad, could the Director please indicate:
How many flights there have been since the K Block was completed?
How many flights are for emergency and non-emergency transport?
Response:
The Civil Aviation Safety Authority regulations normally require that pilots of light aircraft fly no lower than 1000 feet (305 metres) over built up areas or 500 feet over any other area. Records were not available of flight numbers over Hobart.
A written request for the information pertaining to flights to and from the helipad at the Royal Hobart Hospital was requested and Ambulance Tasmania advised
that from May 2020 – End July 2021 there were 375 landings and
Aside from a small number of operational check flights (15 or so) all other flights are regarded as emergency flights.
In explanation, operational check flights predominately related to signing new pilots off to use the pad (only very occasionally needed now – only if a new pilot comes down to work with RotorLift)
Non-emergency cases (eg Search and Rescue evacuations of minimally/uninjured patients) are not taken to the RHH, instead we land at the airport.
As signatory to this report, I certify that, pursuant to Section 55(1) of the Local Government Act 1993, I hold no interest, as referred to in Section 49 of the Local Government Act 1993, in matters contained in this report.
|
Neil Noye Director City Planning |
|
Date: 30 August 2021
File Reference: F21/59114; 13-1-10
|
Item No. 10.2 |
Agenda (Open Portion) City Planning Committee Meeting |
Page 593 |
|
|
13/9/2021 |
|
memorandum: Lord
Mayor
Deputy lord Mayor
Elected members
Ancillary Dwellings
|
Meeting: City Planning Committee
|
Meeting date: 30 August 2021
|
|
Raised by: Councillor Harvey |
|
Question:
Can the Director advise how many ancillary dwellings have been approved in Hobart in the last 12 months?
Response:
From 1 September 2020 to 1 September 2021, ten planning approvals have been issued for ancillary dwellings.
As signatory to this report, I certify that, pursuant to Section 55(1) of the Local Government Act 1993, I hold no interest, as referred to in Section 49 of the Local Government Act 1993, in matters contained in this report.
|
Neil Noye Director City Planning |
|
Date: 8 September 2021
File Reference: F21/88560; 13-1-10
|
|
Agenda (Open Portion) City Planning Committee Meeting |
Page 594 |
|
|
13/9/2021 |
|
Section 29 of the Local Government (Meeting Procedures) Regulations 2015.
File Ref: 13-1-10
An Elected Member may ask a question without notice of the Chairman, another Elected Member, the Chief Executive Officer or the Chief Executive Officer’s representative, in line with the following procedures:
1. The Chairman will refuse to accept a question without notice if it does not relate to the Terms of Reference of the Council committee at which it is asked.
2. In putting a question without notice, an Elected Member must not:
(i) offer an argument or opinion; or
(ii) draw any inferences or make any imputations – except so far as may be necessary to explain the question.
3. The Chairman must not permit any debate of a question without notice or its answer.
4. The Chairman, Elected Members, Chief Executive Officer or Chief Executive Officer’s representative who is asked a question may decline to answer the question, if in the opinion of the respondent it is considered inappropriate due to its being unclear, insulting or improper.
5. The Chairman may require a question to be put in writing.
6. Where a question without notice is asked and answered at a meeting, both the question and the response will be recorded in the minutes of that meeting.
7. Where a response is not able to be provided at the meeting, the question will be taken on notice and
(i) the minutes of the meeting at which the question is asked will record the question and the fact that it has been taken on notice.
(ii) a written response will be provided to all Elected Members, at the appropriate time.
(iii) upon the answer to the question being circulated to Elected Members, both the question and the answer will be listed on the agenda for the next available ordinary meeting of the committee at which it was asked, where it will be listed for noting purposes only.
|
|
Agenda (Open Portion) City Planning Committee Meeting |
Page 595 |
|
|
13/9/2021 |
|