
City
of hobart
AGENDA
City Planning Committee Meeting
Open Portion
Monday, 1 February 2021
at 5:00 pm
Council Chamber, Town Hall
Working together to make Hobart a better place for the community.
THE VALUES
The Council is:
|
People |
We care about people – our community, our customers and colleagues. |
|
Teamwork |
We collaborate both within the organisation and with external stakeholders drawing on skills and expertise for the benefit of our community. |
|
Focus and Direction |
We have clear goals and plans to achieve sustainable social, environmental and economic outcomes for the Hobart community. |
|
Creativity and Innovation |
We embrace new approaches and continuously improve to achieve better outcomes for our community. |
|
Accountability |
We are transparent, work to high ethical and professional standards and are accountable for delivering outcomes for our community. |
|
|
Agenda (Open Portion) City Planning Committee Meeting |
Page 3 |
|
|
1/2/2021 |
|
Business listed on the agenda is to be conducted in the order in which it is set out, unless the committee by simple majority determines otherwise.
APOLOGIES AND LEAVE OF ABSENCE
1. Co-Option of a Committee Member in the event of a vacancy
3. Consideration of Supplementary Items
4. Indications of Pecuniary and Conflicts of Interest
6. Planning Authority Items - Consideration of Items With Deputations
7. Committee Acting as Planning Authority
7.1 Applications under the Sullivans Cove Planning Scheme 1997
7.2 Applications under the Hobart Interim Planning Scheme 2015
7.2.1 29 Hillcrest Road, Tolmans Hill and Adjacent Road Reserve - Dwelling
8.1 Tasmanian Planning Scheme - Draft Local Provisions Schedule - Additional Inclusions
8.2 Delegated Decision Report (Planning)
8.3 City Planning - Advertising Report
9. Motions of which Notice has been Given
9.1 Housing Supply Planning Provisions
11. Closed Portion Of The Meeting
|
|
Agenda (Open Portion) City Planning Committee Meeting |
Page 4 |
|
|
1/2/2021 |
|
City Planning Committee Meeting (Open Portion) held Monday, 1 February 2021 at 5:00 pm in the Council Chamber, Town Hall.
This meeting of the City Planning Committee is held in accordance with a Notice issued by the Premier on 3 April 2020 under section 18 of the COVID-19 Disease Emergency (Miscellaneous Provisions) Act 2020.
|
COMMITTEE MEMBERS Deputy Lord Mayor Burnet (Chairman) Briscoe Harvey Behrakis Dutta Coats
NON-MEMBERS Lord Mayor Reynolds Zucco Sexton Thomas Ewin Sherlock |
Apologies:
Leave of Absence: Nil.
|
|
The minutes of the Open Portion of the City Planning Committee meeting held on Monday, 18 January 2021, are submitted for confirming as an accurate record.
|
Ref: Part 2, Regulation 8(6) of the Local Government (Meeting Procedures) Regulations 2015.
|
That the Committee resolve to deal with any supplementary items not appearing on the agenda, as reported by the General Manager.
|
Ref: Part 2, Regulation 8(7) of the Local Government (Meeting Procedures) Regulations 2015.
Members of the committee are requested to indicate where they may have any pecuniary or conflict of interest in respect to any matter appearing on the agenda, or any supplementary item to the agenda, which the committee has resolved to deal with.
Regulation 15 of the Local Government (Meeting Procedures) Regulations 2015.
A committee may close a part of a meeting to the public where a matter to be discussed falls within 15(2) of the above regulations.
In the event that the committee transfer an item to the closed portion, the reasons for doing so should be stated.
Are there any items which should be transferred from this agenda to the closed portion of the agenda, or from the closed to the open portion of the agenda?
In accordance with the requirements of Part 2 Regulation 8(3) of the Local Government (Meeting Procedures) Regulations 2015, the General Manager is to arrange the agenda so that the planning authority items are sequential.
In accordance with Part 2 Regulation 8(4) of the Local Government (Meeting Procedures) Regulations 2015, the Committee by simple majority may change the order of any of the items listed on the agenda, but in the case of planning items they must still be considered sequentially – in other words they still have to be dealt with as a single group on the agenda.
Where deputations are to be received in respect to planning items, past practice has been to move consideration of these items to the beginning of the meeting.
RECOMMENDATION
That in accordance with Regulation 8(4) of the Local Government (Meeting Procedures) Regulations 2015, the Committee resolve to deal with any items which have deputations by members of the public regarding any planning matter listed on the agenda, to be taken out of sequence in order to deal with deputations at the beginning of the meeting.
|
|
Agenda (Open Portion) City Planning Committee Meeting |
Page 6 |
|
|
1/2/2021 |
|
In accordance with the provisions of Part 2 Regulation 25 of the Local Government (Meeting Procedures) Regulations 2015, the intention of the Committee to act as a planning authority pursuant to the Land Use Planning and Approvals Act 1993 is to be noted.
In accordance with Regulation 25, the Committee will act as a planning authority in respect to those matters appearing under this heading on the agenda, inclusive of any supplementary items.
The Committee is reminded that in order to comply with Regulation 25(2), the General Manager is to ensure that the reasons for a decision by a Council or Council Committee acting as a planning authority are recorded in the minutes.
|
Agenda (Open Portion) City Planning Committee Meeting |
Page 10 |
|
|
|
1/2/2021 |
|
7.1 Applications under the Sullivans Cove Planning Scheme 1997
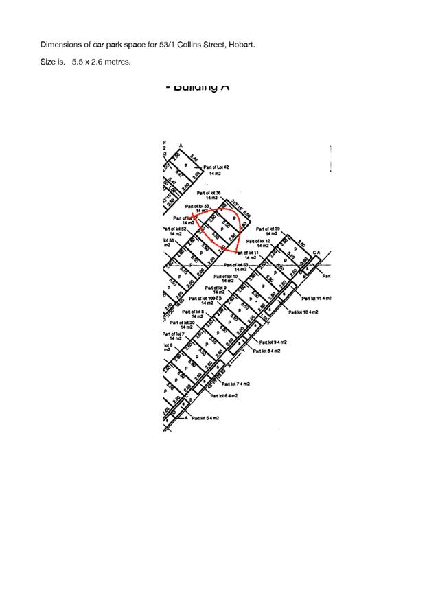
7.1.1 53/1 Collins Street, Hobart and Common Land of Parent Title - Change of Use to Visitor Accommodation
Address: 53/1 Collins Street, Hobart and Common Land of Parent Title
Proposal: Change of Use to Visitor Accommodation
Expiry Date: 25 February 2021
Extension of Time: Not applicable
Author: Helen Ayers
|
REcommendation That pursuant to the Hobart Interim Planning Scheme 2015, the City Planning Committee, in accordance with the delegations contained in its terms of reference, approve the application for change of use to visitor accommodation, at 53/1 Collins Street, Hobart for the reasons outlined in the officer’s report and a permit containing the following conditions be issued:
GEN
The use and/or development must be substantially in accordance with the documents and drawings that comprise PLN20762 53/1 COLLINS STREET HOBART TAS 7000 Final Planning Documents, except where modified below.
Reason for condition
To clarify the scope of the permit.
PLN 18
Prior to the commencement of the approved use, a management plan for the operation of the visitor accommodation must be submitted and approved, to the satisfaction of the Council's Director City Planning. The management plan must include measures to limit, manage and mitigate unreasonable impacts upon the amenity of long term residents. These measures must include, but are not limited to, the following requirements:
1. To limit, manage, and mitigate noise generated as a result of the visitor accommodation. 2. To limit, manage, and mitigate behavioural issues caused as a result of the visitor accommodation. 3. To maintain the security of the building where the visitor accommodation would be located, including managing and/or limiting access to shared areas and facilities. 4. To specify the maximum permitted occupancy of the visitor accommodation.
Once approved, the management plan must be implemented prior to the commencement of the approved use and must be maintained for as long as the visitor accommodation is in operation. In the event that the property is sold, the management plan must be updated within 14 days of the transfer of ownership.
Reason for condition
To ensure that visitor accommodation does not cause an unreasonable loss of residential amenity.
ADVICE
The following advice is provided to you to assist in the implementation of the planning permit that has been issued subject to the conditions above. The advice is not exhaustive and you must inform yourself of any other legislation, bylaws, regulations, codes or standards that will apply to your development under which you may need to obtain an approval. Visit the Council's website for further information.
Prior to any commencement of work on the site or commencement of use the following additional permits/approval may be required from the Hobart City Council.
BUILDING PERMIT
You may need building approval in accordance with the Building Act 2016. Click here for more information.
This is a Discretionary Planning Permit issued in accordance with section 57 of the Land Use Planning and Approvals Act 1993.
VISITOR ACCOMMODATION
More information on visitor accommodation, including when building approval is required, can be found here.
In all cases, check with your insurance company that you have adequate cover.
If you are in a bushfire prone area there may be a need to create/review the Bushfire Management Hazard Plan for your property.
If you have a spa or a pool at your property then you are required to test for microbiological quality and chemical parameters on a monthly basis, under the Public Health Act 1997. If you have any questions about this then please call our Environmental Health team on 6238 2715.
If you are providing food for consumption on the property, you may require a food business registration in accordance with the Food Act 2003. Click here for more information, or call our Environmental Health team on 6238 2715.
You are encouraged to have in place a management plan for the operation of the visitor accommodation. The management plan should include measures to limit, manage and mitigate unreasonable impacts upon the amenity of permanent residents, including addressing issues like noise, waste management, customer behaviour, security, and maximum occupancy.
Visitor accommodation is also considered to be a commercial use and also not eligible to residential parking permits. Under the current policy for the issuing of residential parking permits, the proposed change of use to visitor accommodation would not entitle the property to a residential parking permit, or a transferable “bed and breakfast” parking permit.
|
Attachment a: PLN-20-762
- 53/1 COLLINS STREET HOBART TAS 7000 - Planning Committee or Delegated Report ⇩ ![]()
Attachment
b: PLN-20-762
- 53/1 COLLINS STREET HOBART TAS 7000 - CPC Agenda Documents ⇩
|
Item No. 7.1.1 |
Agenda (Open Portion) City Planning Committee Meeting - 1/2/2021 |
Page 22 ATTACHMENT a |













|
Agenda (Open Portion) City Planning Committee Meeting - 1/2/2021 |
Page 26 ATTACHMENT b |

|
Agenda (Open Portion) City Planning Committee Meeting |
Page 69 |
|
|
|
1/2/2021 |
|
7.2 Applications under the Hobart Interim Planning Scheme 2015
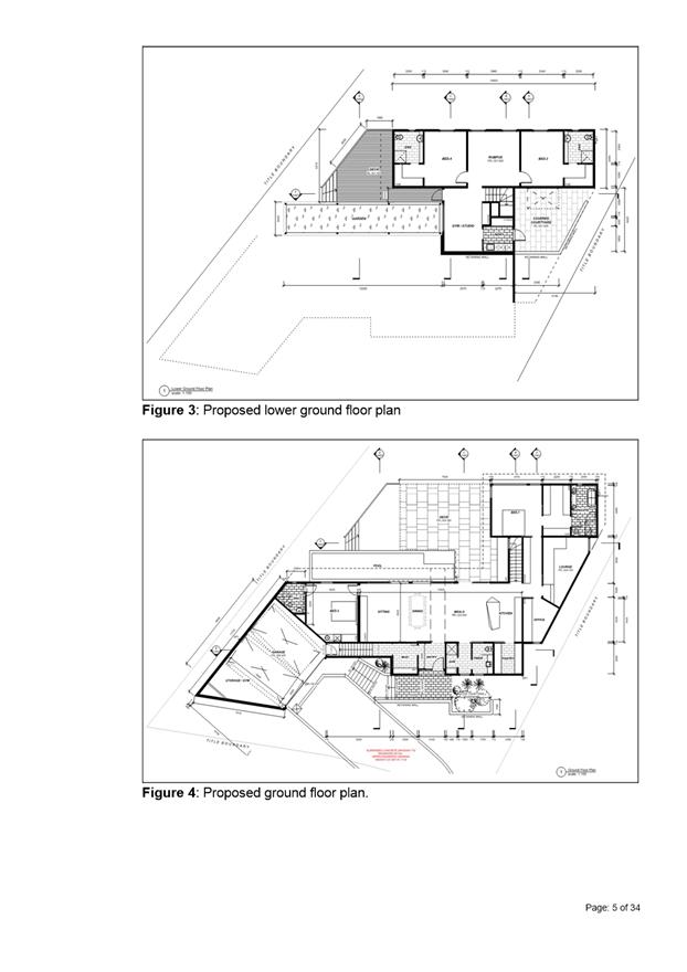
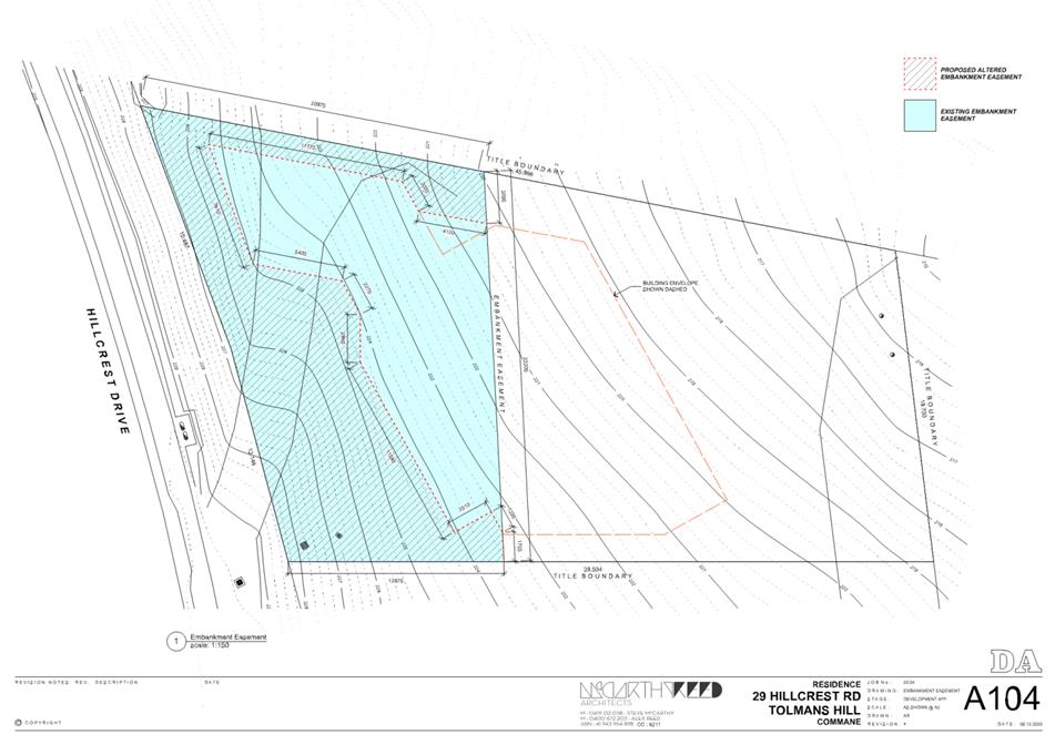
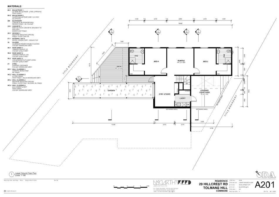
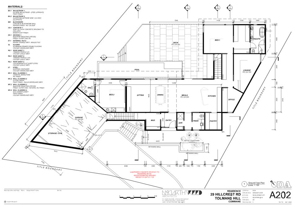
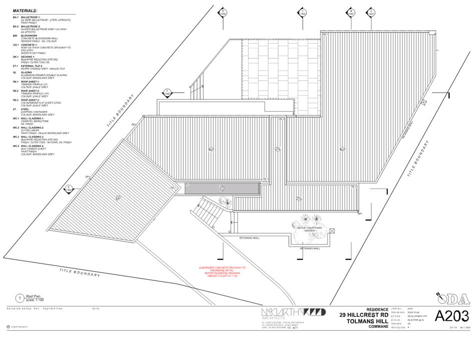
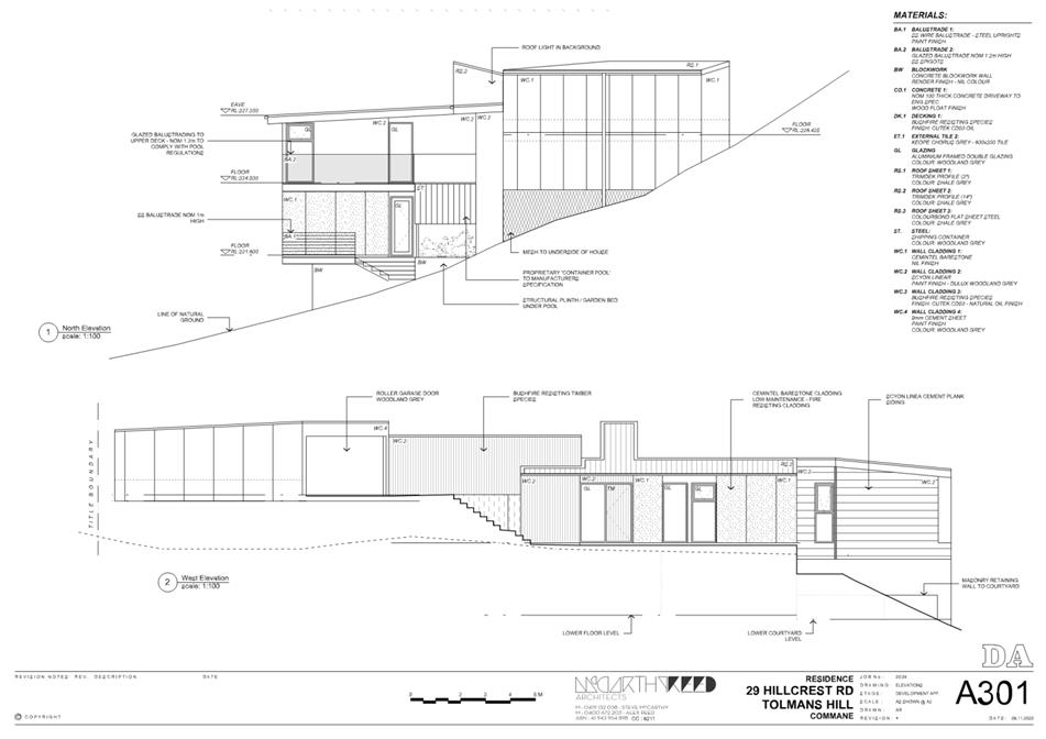
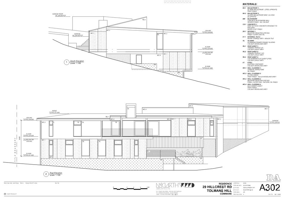
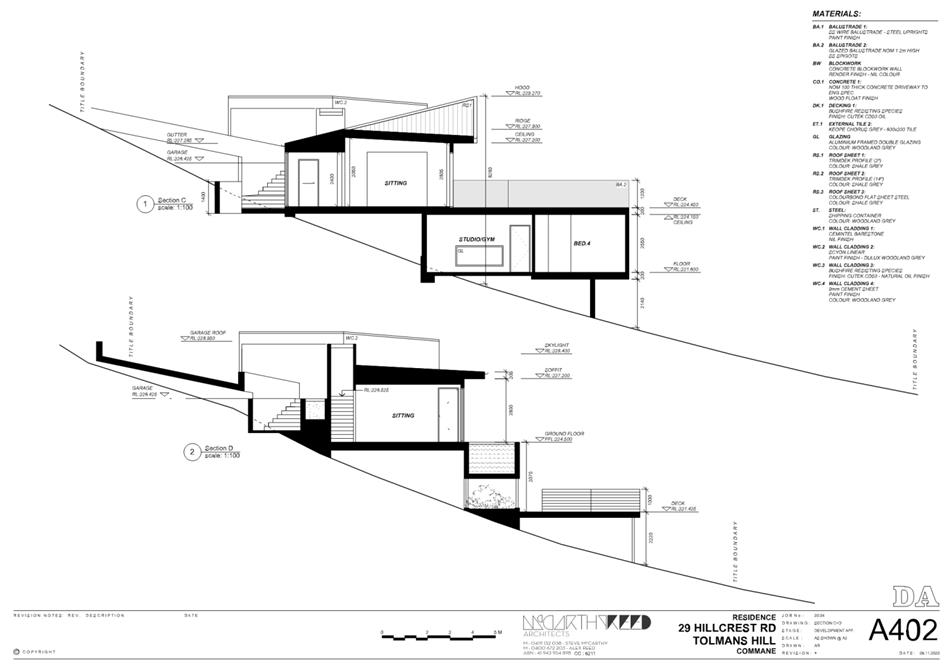
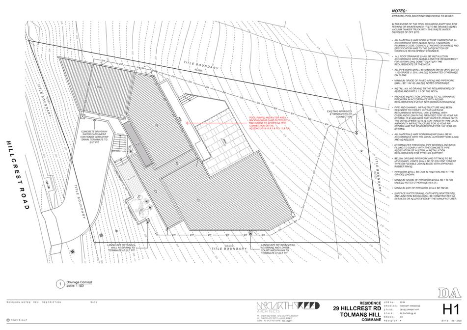
7.2.1 29 Hillcrest Road, Tolmans Hill and Adjacent Road Reserve - Dwelling
Address: 29 Hillcrest Road, Tolmans Hill and Adjacent Road Reserve
Proposal: Dwelling
Expiry Date: 4 February 2021
Extension of Time: Not applicable
Author: Michael McClenahan
|
REcommendation That pursuant to the Hobart Interim Planning Scheme 2015, the City Planning Committee, in accordance with the delegations contained in its terms of reference, approve the application for a dwelling at 29 Hillcrest Road, Tolmans Hill and adjacent road reserve for the reasons outlined in the officer’s report and a permit containing the following conditions be issued:
GEN
The use and/or development must be substantially in accordance with the documents and drawings that comprise PLN20498 29 HILLCREST ROAD TOLMANS HILL TAS 7007 Final Planning Documents except where modified below.
Reason for condition
To clarify the scope of the permit.
TLAP 2
Landscaping of the site must be completed within 12 months of first occupation and maintained for the life of the building.
Prior to the issue of amy consent under the Building Act 2016, a revised Landscaping Plan must be submitted and approved, to the satisfaction of the Directory City Planning. The revised Landscaping Plan must be generally in accordance with the Landscaping Plan in the Final Planning Documents, but also show additional landscaping on the northern side of the garage structure, to mitigate the visual impact of the proposal on the adjoining lot.
All work required by this condition must be undertaken in accordance with the approved revised Landscape Plan.
Reason for condition
In the interest of protection of the landscape value of the area, and to minimise the spread of weeds.
ENG sw1
All stormwater from the proposed development (including but not limited to: roofed areas, ag drains, retaining wall ag drains and impervious surfaces such as driveways and paved areas) must be drained to the Council’s stormwater infrastructure prior to first occupation or commencement of use (whichever occurs first).
Advice:
Under section 23 of the Urban Drainage Act 2013 it is an offence for a property owner to direct stormwater onto a neighbouring property.
Reason for condition
To ensure that stormwater from the site will be discharged to a suitable Council approved outlet.
ENG 2a
Prior to first occupation or commencement of use (whichever occurs first), vehicular barriers compliant with the Australian Standard AS/NZS 1170.1:2002 must be installed to prevent vehicles running off the edge of an access driveway or parking module (parking spaces, aisles and manoeuvring area) where the drop from the edge of the trafficable area to a lower level is 600mm or greater, and wheel stops (kerb) must be installed for drops between 150mm and 600mm. Barriers must not limit the width of the driveway access or parking and turning areas approved under the permit.
Advice:
The Council does not consider a slope greater than 1 in 4 to constitute a lower level as described in AS/NZS 2890.1:2004 Section 2.4.5.3. Slopes greater than 1 in 4 will require a vehicular barrier or wheel stop.
Designers are advised to consult the National Construction Code 2016 to determine if pedestrian handrails or safety barriers compliant with the NCC2016 are also required in the parking module this area may be considered as a path of access to a building.
Reason for condition
To ensure the safety of users of the access driveway and parking module and compliance with the standard.
ENG 2b
Prior to the issue of any approval under the Building Act 2016 or the commencement of works on site (whichever occurs first), a certified vehicle barrier design (including site plan with proposed location(s) of installation) prepared by a suitably qualified engineer, compliant with Australian Standard AS/NZS1170.1:2002, must be submitted to Council.
Advice:
If the development's building approval includes the need for a Building Permit from Council, the applicant is advised to submit detailed design of vehicular barrier as part of the Building Application.
If the development's building approval is covered under Notifiable Work the applicant is advised to submit detailed design of vehicular barrier as a condition endorsement of the planning permit condition. Once the certification has been accepted, the Council will issue a condition endorsement (see general advice on how to obtain condition endorsement).
Reason for condition
To ensure the safety of users of the access driveway and parking module and compliance with the standard.
ENG 2c
Prior to the first occupation, vehicular barriers must be inspected by a qualified engineer and certification submitted to the Council confirming that the installed vehicular barriers comply with the certified design and Australian Standard AS/NZS1170.1:2002.
Advice:
Certification may be submitted to the Council as part of the Building Act 2016 approval process or via condition endorsement (see general advice on how to obtain condition endorsement)
Reason for condition
To ensure the safety of users of the access driveway and parking module and compliance with the relevant standards.
ENG 3b
The access driveway, and parking module (parking spaces, aisles and manoeuvring area) design must be submitted and approved, prior to the issuing of any approval under the Building Act 2016.
The access driveway, and parking module (parking spaces, aisles and manoeuvring area) design must:
1. Be prepared and certified by a suitably qualified engineer, 2. Be generally in accordance with the Australian Standard AS/NZS2890.1:2004, 3. Where the design deviates from AS/NZS2890.1:2004 the designer must demonstrate that the design will provide a safe and efficient access, and enable safe, easy and efficient use, and 4. Show dimensions, levels, gradients and transitions, and other details as Council deem necessary to satisfy the above requirement.
Advice:
It is advised that designers consider the detailed design of the access and parking module prior to finalising the Finished Floor Level (FFL) of the parking spaces (especially if located within a garage incorporated into the dwelling), as failure to do so may result in difficulty complying with this condition.
Once the design has been approved, the Council will issue a condition endorsement (see general advice on how to obtain condition endorsement).
Where building approval is also required, it is recommended that documentation for condition endorsement be submitted well before submitting documentation for building approval. Failure to address condition endorsement requirements prior to submitting for building approval may result in unexpected delays.
Reason for condition
To ensure the safety of users of the access and parking module, and compliance with the relevant Australian Standard.
ENG 3c
The access driveway, and parking module (parking spaces, aisles and manoeuvring area) must be constructed in accordance with the design drawings approved by Condition
ENG 3b.
Prior to the first occupation, documentation by a suitably qualified engineer certifying that the access driveway and parking module has been constructed in accordance with the above drawings must be lodged with Council.
Advice:
Certification may be submitted to Council as part of the Building Act 2016 approval process or via condition endorsement (see general advice on how to obtain condition endorsement)
Reason for condition
To ensure the safety of users of the access and parking module, and compliance with the relevant Australian Standard.
ENG 4
The access driveway and parking module (car parking spaces, aisles and manoeuvring area) approved by this permit must be constructed to a sealed standard (spray seal, asphalt, concrete, pavers or equivalent Council approved) and surface drained to the Council's stormwater infrastructure prior to the first occupation.
Reason for condition
To ensure the safety of users of the access driveway and parking module, and that it does not detract from the amenity of users, adjoining occupiers or the environment by preventing dust, mud and sediment transport.
ENG 1
Any damage to council infrastructure resulting from the implementation of this permit, must, at the discretion of the Council:
1. Be met by the owner by way of reimbursement (cost of repair and reinstatement to be paid by the owner to the Council); or 2. Be repaired and reinstated by the owner to the satisfaction of the Council.
A photographic record of the Council's infrastructure adjacent to the subject site must be provided to the Council prior to any commencement of works.
A photographic record of the Council’s infrastructure (e.g. existing property service connection points, roads, buildings, stormwater, footpaths, driveway crossovers and nature strips, including if any, preexisting damage) will be relied upon to establish the extent of damage caused to the Council’s infrastructure during construction. In the event that the owner/developer fails to provide to the Council a photographic record of the Council’s infrastructure, then any damage to the Council's infrastructure found on completion of works will be deemed to be the responsibility of the owner.
Reason for condition
To ensure that any of the Council's infrastructure and/or siterelated service connections affected by the proposal will be altered and/or reinstated at the owner’s full cost.
ENG r1
The excavation, footings and suspended driveway within or supporting the highway reservation must not undermine the stability and integrity of the highway reservation and its infrastructure.
Detailed design drawings and design structural certificates of the suspended driveway supporting structure within the embankment easement must be submitted and approved, prior to issuing any approval under the Building Act 2016 and must:
1. Be prepared and certified by a suitable qualified person and experienced engineer; 2. Not undermine the stability of the embankment easement; 3. Be designed in accordance with AS4678, with a design life in accordance with table 3.1 typical application major public infrastructure works; 4. Take into account any additional surcharge loadings as required by relevant Australian Standards; 5. Take into account and reference accordingly any Geotechnical findings; and 6. Include a structure certificate which notes the suspended driveway and the footings will not affect the stability of the embankment easement. 7. The structure certificated and/or drawings should note accordingly the above. All work required by this condition must be undertaken in accordance with the approved select design drawing and structural certificates.
Advice:
The applicant is required submit detailed design documentation to satisfy this condition via Council's planning condition endorsement process (noting there is a fee associated with condition endorsement approval of engineering drawings [see general advice on how to obtain condition endorsement and for fees and charges]). This is a separate process to any building approval under the Building Act 2016.
Failure to address condition endorsement requirements prior to submitting for building approval may result in unexpected delays.
Reason for condition
To ensure that the stability and integrity of the Council’s highway reservation is not compromised by the development.
ENV 1
Sediment and erosion control measures sufficient to prevent sediment from leaving the site must be installed prior to any disturbance of the site, and maintained until all areas of disturbance have been stabilized or revegetated.
Advice:
For further guidance in preparing a Soil and Water Management Plan – in accordance with Fact sheet 3 Derwent Estuary Program click here.
Reason for condition
To avoid the sedimentation of roads, drains, natural watercourses, Council land that could be caused by erosion and runoff from the development, and to comply with relevant State legislation.
Part 5 r1
The owner(s) of the property must enter into an agreement with the Council pursuant to Part 5 of the Land Use Planning and Approvals Act 1993 with respect to the protection of retaining walls, buildings adjacent to the Hillcrest Road highway reservation prior to the commencement of work.
The owner must not undertake any works at any time (including excavation and building) that will have any effect on the integrity of the Hillcrest Road highway reservation or any retaining structure adjacent to Hillcrest Road highway reservation or the road formation themselves or undermine the structural integrity of the highway reservation.
All costs for the preparation and registration of the Part 5 Agreement must be met by the owner.
The owner must comply with the Part 5 Agreement which will be placed on the property title.
Advice:
For further information with respect to the preparation of a Part 5 agreement please contact Council Development Engineering Staff.
Reason for condition
To ensure the protection of Council are retained.
SUB s1
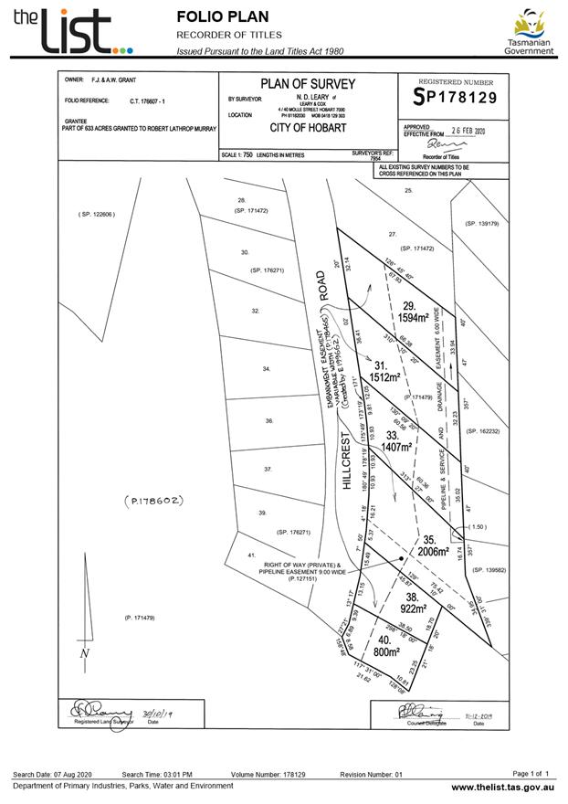
The existing Embankment Easement created by E199662 must be amended pursuant to section 108 of the Land Titles Act 1980 such that the Embankment Easement is clear of the proposed development, to the satisfaction of the Council's Manager Surveying Services, prior to the issue of any building consent under the Building Act 2016.
Reason for condition
To ensure that the proposed development does not encroach into the Embankment Easement over Lot 35 on Sealed Plan 178129
ADVICE
The following advice is provided to you to assist in the implementation of the planning permit that has been issued subject to the conditions above. The advice is not exhaustive and you must inform yourself of any other legislation, bylaws, regulations, codes or standards that will apply to your development under which you may need to obtain an approval. Visit the Council's website for further information.
Prior to any commencement of work on the site or commencement of use the following additional permits/approval may be required from the Hobart City Council.
CONDITION ENDORSEMENT ENGINEERING
All engineering drawings required to be submitted and approved by this planning permit must be submitted to the City of Hobart as a CEP (Condition Endorsement) via the City’s Online Service Development Portal. When lodging a CEP, please reference the PLN number of the associated Planning Application. Each CEP must also include an estimation of the cost of works shown on the submitted engineering drawings. Once that estimation has been confirmed by the City’s Engineer, the following fees are payable for each CEP submitted and must be paid prior to the City of Hobart commencing assessment of the engineering drawings in each CEP:
Value of Building Works Approved by Planning Permit Fee: Over $20,000: 2% of the value of the works as assessed by the City's Engineer per assessment.
These fees are additional to building and plumbing fees charged under the Building and Plumbing Regulations.
Once the CEP is lodged via the Online Service Development Portal, if the value of building works approved by your planning permit is over $20,000, please contact the City’s Development Engineer on 6238 2715 to confirm the estimation of the cost of works shown on the submitted engineering drawings has been accepted.
Once confirmed, pleased call one of the City’s Customer Service Officers on 6238 2190 to make payment, quoting the reference number (ie. CEP number) of the Condition Endorsement you have lodged. Once payment is made, your engineering drawings will be assessed.
BUILDING PERMIT
You may need building approval in accordance with the Building Act 2016. Click here for more information.
This is a Discretionary Planning Permit issued in accordance with section 57 of the Land Use Planning and Approvals Act 1993.
PLUMBING PERMIT
You may need plumbing approval in accordance with the Building Act 2016, Building Regulations 2016 and the National Construction Code. Click here for more information.
TOLMANS HILL LOCAL AREA PLAN
The Tolmans Hill Local Area Plan (Stage 17BC) is available here.
Front fences must not be erected on the property, and side boundary fences must be in accordance with the provisions of the relevant Tolmans Hill Local area Plan.
This approval and subsequent conditions are given in the knowledge that the Part 5 Agreement on the title (CT 178129/38) to the property is effective and binds the applicant to the restrictions and controls of the Local Area Plan.
Plant species listed in Council’s Restricted Plant List: Potentially Invasive Species Generally Unsuitable for Planting in or Adjacent Bushland, Riparian and Coastal Areas (June 2011) must not be planted on the lot (available here).
OCCUPATION OF THE PUBLIC HIGHWAY
You may require a Permit to Open Up and Temporarily Occupy a Highway (for work in the road reserve). Click here for more information.
BUILDING OVER AN EASEMENT
In order to build over the service easement, you will require the written consent of the person on whose behalf the easement was created, in accordance with section 74 of the Building Act 2016.
STORM WATER
Please note that in addition to a building and/or plumbing permit, development must be in accordance with the Hobart City Council’s Infrastructure By law. Click here for more information.
WORK WITHIN THE HIGHWAY RESERVATION
Please note development must be in accordance with the Hobart City Council’s Infrastructure By law. Click here for more information.
DRIVEWAY SURFACING OVER HIGHWAY RESERVATION
If a coloured or textured surface is used for the driveway access within the Highway Reservation, the Council or other service provider will not match this on any reinstatement of the driveway access within the Highway Reservation required in the future.
ACCESS
Designed in accordance with LGAT IPWEA – Tasmanian standard drawings. Click here for more information.
CROSS OVER CONSTRUCTION
The construction of the crossover can be undertaken by the Council or by a private contractor, subject to Council approval of the design. Click here for more information.
WEED CONTROL
Effective measures are detailed in the Tasmanian Washdown Guidelines for Weed and Disease Control: Machinery, Vehicles and Equipment (Edition 1, 2004). The guidelines can be obtained from the Department of Primary Industries, Parks, Water and Environment website.
NOISE REGULATIONS
Click here for information with respect to noise nuisances in residential areas.
FEES AND CHARGES
Click here for information on the Council's fees and charges.
DIAL BEFORE YOU DIG
Click here for dial before you dig information.
|
Attachment
a: PLN-20-498
- 29 HILLCREST ROAD TOLMANS HILL TAS 7007 - Planning Committee or Delegated
Report ⇩ ![]()
Attachment
b: PLN-20-498
- 29 HILLCREST ROAD TOLMANS HILL TAS 7007 - CPC Agenda Documents ⇩
|
Item No. 7.2.1 |
Agenda (Open Portion) City Planning Committee Meeting - 1/2/2021 |
Page 103 ATTACHMENT a |

































|
Agenda (Open Portion) City Planning Committee Meeting - 1/2/2021 |
Page 136 ATTACHMENT b |
































|
Agenda (Open Portion) City Planning Committee Meeting |
Page 289 |
|
|
|
1/2/2021 |
|
8. Reports
8.1 Tasmanian Planning Scheme - Draft Local Provisions Schedule - Additional Inclusions
Report of the Development Planner and the Director city Planning of 27 January 2021 and attachments.
Delegation: Council
|
Item No. 8.1 |
Agenda (Open Portion) City Planning Committee Meeting |
Page 303 |
|
|
1/2/2021 |
|
REPORT TITLE: Tasmanian Planning Scheme - Draft Local Provisions Schedule - Additional Inclusions
REPORT PROVIDED BY: Development Planner
Director City Planning
1. Report Purpose and Community Benefit
1.1. The purpose of this report is to seek Council’s endorsements of some changes to the draft Hobart Local Provisions Schedule (LPS), which was endorsed on 18 February 2019 and was submitted to the Tasmanian Planning Commission (TPC) for assessment in May 2019.
1.2. The proposal benefits the community by encouraging the fair and orderly use and development of land.
2. Report Summary
2.1. This report seeks the Council’s endorsement of some changes to the draft Hobart Local Provisions Schedule (LPS), which was endorsed on 18 February 2019 and submitted to the TPC for assessment in May 2019.
2.2. The TPC submitted a number of requests for clarification following a ‘Post-Lodgement Conference’ held between Council and TPC officers.
2.3. As per the resolution of Council on 18 February 2019, the Director City Planning has delegation to approve changes that arise from directions of the TPC.
2.4. The subject of this report are a number of changes that were not made in response to matters raised by the TPC. The changes include:
2.4.1. Updated flood mapping to inform the application of the Flood-Prone Areas Hazard Code;
2.4.2. Inclusion of additional significant trees that were approved for inclusion in the Hobart Interim Planning Scheme 2015 (HIPS) in March 2020;
2.4.3. An extension to the Golf Links Estate Heritage Precinct to include the Southern side of Alexander Street;
2.4.4. Minor zoning changes to better reflect the existing use or conditions of land at 24 Gregson Avenue, adjacent to 516 Sandy Bay Road, and along Sandy Bay Rivulet.
2.5. It is recommended that the proposed changes to the LPS are endorsed by Council.
|
That: 1. Council resolves that it is satisfied that the changes to the draft Hobart Local Provisions Schedule (Attachments A to G) meets the Local Provisions Schedule criteria prescribed in Section 34 of the Land Use Planning and Approvals Act 1993. 2. Council endorses the changes to the draft Hobart Local Provisions Schedule for submission to the Tasmanian Planning Commission under Section 35(1) of the Land Use Planning and Approvals Act 1993. 3. Council endorses the notification of individual property owners affected by the extent of the Flood Prone Areas Hazard Code overlay when the draft Hobart Local Provisions Schedule is exhibited.
|
4. Background
4.1. In 2015, the Tasmanian Government amended the Land Use Planning and Approvals Act 1993 (LUPAA) to introduce a single state-wide planning scheme. The Tasmanian Planning Scheme is made up of two parts: the State Planning Provisions (SPPs) and the Local Provisions Schedule (LPS), as shown in the figure below:

Figure 1: Components of the Tasmanian Planning Scheme
4.2. The SPPs were declared by the Minister for Planning on 22 February 2017 following public consultation. The SPPs are available here: https://planningreform.tas.gov.au/__data/assets/pdf_file/0004/559759/State-Planning-Provisions-last-updated-draft-amendment-01-2018-effective-19-February-2020.PDF
4.3. The draft Hobart Local Provisions Schedule was subsequently prepared and submitted to the TPC in May following endorsement at the Council meeting of 18 February 2019.
4.4. A ‘post-lodgement conference’ was held between Council and TPC officers on 14 November 2019. A number of queries and suggestions for amendments to the LPS was submitted to Council by the TPC following this conference.
4.5. As per the Council resolution of 18 February 2019, the Director City Planning has delegation to modify the draft LPS in relation to a direction received from the TPC under Section 35(5)(b) of LUPAA.
4.6. A number of changes have been made to the LPS in response to numerous issues raised by the TPC, and therefore it is considered that the Director City Planning has delegation to approve those modifications.
4.7. The changes that are the subject of this report were not made in response to issues raised by the TPC. As the Director City Planning does not expressly have delegation to approve these modifications, Council endorsement is sought.
5. Proposal and Implementation
5.1. It is proposed that Council endorse some additional inclusions into the draft LPS (see Attachments A to G), for submission to the TPC under Section 35(1) of LUPAA.
5.2. Section 34(2) of LUPAA requires an LPS to:
5.2.1. Contain all the provisions specified by the SPPs;
5.2.2. Be in accordance with section 32 of LUPAA (which outlines how the LPS is constructed);
5.2.3. Further the objectives set out in Schedule 1 of LUPAA;
5.2.4. Be consistent with each State policy;
5.2.5. Be consistent with the relevant Regional Land Use Strategy;
5.2.6. Be consistent with Council’s strategic plan;
5.2.7. Be consistent with, as far as practicable, the LPS provisions of neighbouring Councils, and
5.2.8. Have regard to the safety requirements set out in the standards prescribed under the Gas Pipelines Act 2000.
5.3. In preparing and submitting its LPS, Council must demonstrate that the LPS complies with the requirements of LUPAA. The Council must determine the most appropriate zones to apply to land from the list of available zones in the SPPs and where to apply relevant codes.
5.4. The additional inclusions into the endorsed LPS relate to the following:
5.4.1. Updated mapping for the Flood Prone Areas Code;
5.4.2. Insertion of the new Significant Trees that were included in the Hobart Interim Planning Scheme 2015 (HIPS) as part of Amendment PSA-19-3;
5.4.3. Extension of the Golf Links Estate Heritage Precinct (HOB-C6.2.9.9);
5.4.4. Rezoning of 24 Gregson Avenue
5.4.5. Rezoning of land adjacent to 516 Sandy Bay Road
5.4.6. Rezoning of a section of Sandy Bay Rivulet.
5.5. Each of these inclusions is considered in more detail as follows:
Flood mapping
5.6. New flood mapping, developed through hydrological modelling, has recently been produced to reflect ‘1 in 100 year’ flood risk of all its urban catchments, including modelling of the impact of overland flow during high rainfall events.
5.7. Previously, modelling has only included major rivulets (New Town, Sandy Bay and Hobart Rivulets), and this is what the application of the Flood Prone Areas Hazard Code under the previously endorsed LPS was based on.
5.8. At its meeting of 25 November 2020, the City Infrastructure Committee considered the updated flood mapping, and resolved that the information be made accessible to the public via the City’s website, and that the information be promoted and shared at local community meetings. As such, this mapping is now publicly available.
5.9. The updated mapping is proposed to be used as an overlay in the LPS representing flood-prone areas which will be subject to the Flood-Prone Areas Hazard Code under the Tasmanian Planning Scheme (see Attachment A for a representation of the overlay).
5.10. It is proposed that landowners affected by this overlay should be notified of the change when the draft LPS is publicly exhibited, as the extent of the overlay has changed significantly compared to the HIPS.
Significant trees
5.11. At its meeting of 5 August 2019, Council resolved to initiate an amendment to the HIPS to insert new trees and hedges into the Significant Tree Code. 77 new listings for trees or hedges were approved for listing by the Tasmanian Planning Commission on 25 March 2020.
5.12. The additional trees inserted into the Significant Tree List of the HIPS will not automatically ‘transition’ into the LPS Significant Tree List, as they do not meet the criteria of LUPAA in respect of amendments to an interim scheme that may transition into an LPS under Schedule 6 of the Savings and Transitional Provisions. Therefore, it is proposed that the additional listings be inserted into the draft LPS prior to exhibition of the LPS.
5.13. Extensive consultation took place during the amendment process to include the 77 new listings, which included both informal and statutory consultation with landowners and neighbours.
5.14. The final Council recommendation following statutory exhibition of the amendment was that trees should not be listed if the landowner objected. As such, none of the 77 finally approved listings were objected to by the landowner.
5.15. It is appropriate that these trees are included in the LPS given the extensive assessment and consultation that was undertaken through the amendment process. See Attachment B for the final full LPS Significant Tree list, highlighting the 77 inclusions.
5.16. The Significant Tree list in Attachment B also identifies 3 corrections in the Significant Tree list relating to:
5.16.1. Inclusion of additional title references in listing HOB-C6.5.27 (hedge in Cedar Court, Mawhera Avenue and Maning Avenue), and removal of a cross-reference relating to this listing;
5.16.2. Correction of species name in listing HOB-C6.5.185 (listed in the HIPS as a blue gum, but upon revision it has been identified as a white gum);
5.16.3. Correction of species name in listing HOB-C6.5.197 (one of the two trees listed in the HIPS as an English elm, but upon revision it has been identified as a white gum).
Heritage Precinct extension
5.17. Heritage Precinct HOB-C6.2.9.9 (Golf Links Estate – Sandy Bay) covers the section of Sandy Bay bounded by Proctors Road, Lord Street, Grace Street and Alexander Street (see Figure 2 below):

Figure 2: Extent of Heritage Precinct HOB-C6.2.9.9 (Golf Links Estate – Sandy Bay), as per the previously endorsed LPS. The colours represent whether or not a place contributes to the heritage values of the precinct (pink: heritage listed; yellow: contributory; green: neutral; purple: non-contributory).
5.18. The precinct includes properties on the Northern side of Alexander Street, but not the Southern side.
5.19. At its meeting of 16 September 2019, the City Planning Committee considered development application PLN-19-366, which proposed demolition and two multiple dwellings at 66 Alexander Street. The application was recommended to be refused by Committee and was subsequently refused at the Council meeting of 23 September 2019 (although it was later approved by the Resource Management and Planning Appeal Tribunal after agreement between the parties).
5.20. Part of the City Planning Committee resolution following consideration of this development application was as follows:
That a report be provided on the merits of undertaking a review of the southern side of Alexander Street, Sandy Bay for inclusion in the heritage precinct.
5.21. A response to this resolution has been prepared by Council’s Heritage Officer (see Attachment C)
5.22. In summary, this response concludes that:
5.22.1. The current boundary of the precinct aligns with the original Golf Links Estate subdivision (from around 1915);
5.22.2. Research indicates the Golf Links Estate was extended to the southern side of Alexander Street between 1923-1928;
5.22.3. Houses on both sides of Alexander Street were constructed within a similar time period (1923-1927);
5.22.4. While houses on the southern side appear to be of a more modest size on smaller blocks, both feature similar residential styles, are primarily single storey, and are positioned to face the street;
5.22.5. Housing styles are primarily Californian bungalows and simply detailed Inter-War domestic weatherboard residences on both sides of the street;
5.22.6. There is considerable merit to having the southern side of Alexander Street incorporated into the precinct, and this should occur as part of the LPS.
5.23. It is proposed that the Southern side of Alexander Street be included in Heritage Precinct HOB-C6.2.9.9 (Golf Links Estate), as per Figure 3 Below:

Figure 3: Proposed revised extent of Heritage Precinct HOB-C6.2.9.9 (Golf Links Estate – Sandy Bay). The colours represent whether or not a place contributes to the heritage values of the precinct (pink: heritage listed; yellow: contributory; green: neutral; purple: non-contributory).
5.24. Amendments have also been made to the Heritage Precinct datasheet description (Attachment D) to reflect the inclusion of the southern side of Alexander Street.
Zoning changes
5.25. There are 3 proposed changes to the zoning maps that have not been made in response to issues raised by the TPC. These zoning changes are each detailed below.
24 Gregson Avenue
5.26. The zoning of this site under the HIPS is General Residential. This zone was changed to Open Space under the endorsed LPS as the site is adjacent to a wider area of open space at the end of Gregson Avenue and is intended to be transferred to City ownership to connect the existing open space with the neighbouring Brick Works subdivision.
5.27. Taking into account its location, access to services and site conditions, this site is considered to be appropriate for potential residential use (while still maintaining linkages to open space) and therefore it is proposed that the zoning be reverted back to General Residential (see Attachment E).
Land adjacent to 516 Sandy Bay Road
5.28. 516 Sandy Bay Road is a City owned public reserve (Red Chapel Reserve). This area of open space includes a strip of land with no clear address that is used as part of the reserved.
5.29. Under the HIPS (and under the endorsed LPS), this area of land is zoned General Residential.
5.30. Given the use of the strip of land as part of a public reserve, it is proposed that it be zoned Open Space Zone (see Attachment F). The existing zoning appears to be an anomaly.
Sandy Bay Rivulet
5.31. The Sandy Bay Rivulet winds through a number of different zones, including residential zones. Currently, the rivulet is individually zoned Open Space, regardless of the surrounding zone.
5.32. An issue has been identified, specifically around 4 Regent Street, where the course of the rivulet has in fact changed, and therefore the open space zoning does not reflect the location of the waterway (see Figure 4 below):

Figure 4: 4 Regent Street (highlighted in light blue), showing original course of Sandy Bay rivulet in green, and current course of Sandy Bay Rivulet outlined in blue.
5.33. It is considered appropriate to zone the rivulet in line with the adjoining zone, ensuring that zone amendments are not required if the rivulet changes course again in the future (see Attachment G). In some cases, the rivulet is located on privately owned land, which is not available for public recreation, and therefore the Open Space Zone is not the most appropriate zone.
5.34. The values of the rivulet will still be protected by the Waterway and Coastal Protection Area under the Natural Assets Code.
6. Strategic Planning and Policy Considerations
6.1. The proposed changes to the LPS are consistent with the objectives of the Capital City Strategic Plan 2019-29, in particular the following outcomes:
6.1.1. Hobart keeps a strong sense of place and identity, even as the city changes;
6.1.2. Hobart’s cityscape reflects the heritage, culture and natural environment that make it special;
6.1.3. In City decision-making, we consider how different aspects of Hobart life connect and contribute to sense of place;
6.1.4. The natural environment is part of the city and biodiversity is preserved, secure and flourishing;
6.1.5. Development enhances Hobart’s unique identity, human scale and built heritage;
6.1.6. Community involvement and an understanding of future needs help guide changes to Hobart’s built environment.
7. Financial Implications
7.1. Funding Source and Impact on Current Year Operating Result
7.1.1. None.
7.2. Impact on Future Years’ Financial Result
7.2.1. None.
7.3. Asset Related Implications
7.3.1. None.
8. Legal, Risk and Legislative Considerations
8.1. The implementation of the SPPs and the LPS will be undertaken in accordance with the process set out under LUPAA.
8.2. It is considered that the LPS changes proposed in this report meet Section 34 of LUPAA (which sets out criteria for LPS assessment) as they:
8.2.1. Further the Schedule 1 objectives by:
· Not unreasonably compromising natural resources or ecological process, and encourages land to be zoned appropriately and be subject to appropriate overlays;
· Encouraging fair, orderly and sustainable use of land by recognising site characteristics;
· Assisting sound strategic planning by not prejudicing the achievement of STRLUS objectives;
· Consistency with the objective to establish a system of planning instruments to be the principal way of setting objectives, policies and controls for the use, development and protection of land;
· Providing greater responsiveness to address changes in local, environmental, social and economic circumstances;
· Allowing for efficient use of existing infrastructure and facilities;
· Considering the provision of a pleasant, efficient and safe environment for residents and visitors to Hobart;
· Considering the capability of zones and allowable uses that are likely to have minimal land use conflict with surrounding uses.
8.2.2. Do not prejudice the achievement of any State Policies. No Agricultural land is affected by the proposed changes. Some areas are covered by the application of the State Coastal Policy 1996, such as sites subject to the Flood-Prone Areas Hazard Code, and the land adjacent to 516 Sandy Bay Road which is to be rezoned. These changes reflect the current use or hazards on a site and do not promote further development and therefore they do not conflict with the policy. The objectives of the State Policy on Water Quality Management 1997 will be furthered through provisions of the Tasmanian Planning Scheme.
8.2.3. Are consistent with the Southern Tasmania Regional Land Use Strategy, particularly that the proposed changes:
· Help maintain biodiversity by recognising significant trees (as per Policy BNV 1)
· Minimise the risk of loss of life and property from flooding by appropriately applying the Flood-Prone Areas Hazard Code (as per Policy MRH 2);
· Recognise, retain and protect historic cultural heritage values by ensuring the boundaries of the Golf Links Estate Heritage Precinct are appropriate (as per Policy CV 2);
· Maintain open space that meets the need of the community, specifically in relation to zoning of land adjacent to 516 Sandy Bay Road (as per Policy ROS 1);
· Maximise the efficiency of existing physical infrastructure by ensuring land is appropriately zoned (as per Policy PI 1)
8.2.4. Are in line with the strategic plan, as detailed under section 6 of this report.
8.2.5. Are not inconsistent with any LPSs that apply to adjacent municipal areas.
8.2.6. Will not have any direct impact on the achievement of the safety requirements set out in the standards prescribed under the Gas Pipelines Act 2000.
9. Environmental Considerations
9.1. The updated flood mapping reflects new information on environmental hazards, including consideration of climate change impacts.
10. Social and Customer Considerations
10.1. The proposal is not considered to have any negative impact on social inclusion.
11. Marketing and Media
11.1. There are no marketing or branding implications of this amendment.
12. Community and Stakeholder Engagement
12.1. Following assessment by the TPC, the draft LPS will be placed on public exhibition for a 60 day period and members of the public will have the opportunity to make written representations.
12.2. The public exhibition process will include media advertising, media releases, a public briefing, drop-in session, dedicated web page and an article in Capital City News (if timing permits).
12.3. It is also proposed that individual property owners be notified in relation to the exhibition of the draft LPS where it is considered that the provisions are significantly different to the HIPS provisions. It is proposed that properties that are subject to the updated Flood-Prone Area Hazards Zone overlay will be notified of this change.
12.4. It is not considered necessary to conduct a separate consultation process in relation to these limited changes to the endorsed LPS. Each of the changes that are the subject of this report will be subject to public comment during the formal advertising process.
12.5. Council will have the ability to reconsider the draft LPS in light of any representations received through the formal advertising process, and make appropriate recommendations to the TPC.
13. Delegation
13.1. Delegation rests with Council. It is noted that in relation to editorial modifications to the LPS that are requested or proposed by the TPC under Section 35(5)(b) of LUPAA, the Director City Planning has been granted delegation.
As signatory to this report, I certify that, pursuant to Section 55(1) of the Local Government Act 1993, I hold no interest, as referred to in Section 49 of the Local Government Act 1993, in matters contained in this report.
|
Sarah Crawford Development Planner |
Neil Noye Director City Planning |
Date: 27 January 2021
File Reference: F20/134820
Attachment a: Flood
Prone Areas Hazard Code Overlay ⇩ ![]()
Attachment
b: Significant
Tree List ⇩ ![]()
Attachment
c: Review
of Golf Links Estate Heritage Precinct ⇩ ![]()
Attachment
d: Updated
Datasheet for Heritage Precinct HOB-C6.2.9.9 (Golf Links Estate) ⇩ ![]()
Attachment
e: Zoning
of 24 Gregson Avenue ⇩ ![]()
Attachment
f: Zoning
of Land Adjacent to 516 Sandy Bay Road ⇩ ![]()
Attachment
g: Zoning
of Sandy Bay Rivulet ⇩
|
Item No. 8.2 |
Agenda (Open Portion) City Planning Committee Meeting |
Page 346 |
|
|
1/2/2021 |
|
8.2 Delegated Decision Report (Planning)
Memorandum of the Director City Planning of 25 January 2021 and attachment.
Delegation: Committee
|
Item No. 8.2 |
Agenda (Open Portion) City Planning Committee Meeting |
Page 347 |
|
|
1/2/2021 |
|

Memorandum: City Planning Committee
Delegated Decision Report (Planning)
Attached is the delegated planning decisions report for the period 11 January 2021 to 22 January 2021.
|
That: 1. That the information be received and noted.
|
As signatory to this report, I certify that, pursuant to Section 55(1) of the Local Government Act 1993, I hold no interest, as referred to in Section 49 of the Local Government Act 1993, in matters contained in this report.
|
Neil Noye Director City Planning |
|
Date: 25 January 2021
File Reference: F21/6444
Attachment a: Delegated
Decision Report (Planning) ⇩
|
Agenda (Open Portion) City Planning Committee Meeting |
Page 350 |
|
|
|
1/2/2021 |
|
8.3 City Planning - Advertising Report
Memorandum of the Director City Planning of 27 January 2021 and attachment.
Delegation: Committee
|
Item No. 8.3 |
Agenda (Open Portion) City Planning Committee Meeting |
Page 351 |
|
|
1/2/2021 |
|

Memorandum: City Planning Committee
City Planning - Advertising Report
Attached is the advertising list for the period 11 January 2021 to 22 January 2021.
|
That: 1. That the information be received and noted.
|
As signatory to this report, I certify that, pursuant to Section 55(1) of the Local Government Act 1993, I hold no interest, as referred to in Section 49 of the Local Government Act 1993, in matters contained in this report.
|
Neil Noye Director City Planning |
|
Date: 27 January 2021
File Reference: F21/6668
Attachment a: City
Planning - Advertising Report ⇩
|
Agenda (Open Portion) City Planning Committee Meeting |
Page 356 |
|
|
|
1/2/2021 |
|
9. Motions of which Notice has been Given
9.1 Housing Supply Planning Provisions
Alderman Behrakis
Motion
“a) That a report be prepared on the possible amendments, their merits and potential consequences, to the planning regulations to implement the following recommendations made in the UTAS Report: Regulating Short-Stay Accommodation in Tasmania: Issues to consider and options for reform:
Recommendation 3: That the Tasmanian Government amend the current planning scheme to allow consideration of housing market conditions when making planning decisions.
Recommendation 4: That the current planning scheme include provisions so that it can respond to community-level housing needs in a timely manner.
b) That advice be prepared as to the merits and potential consequences of endorsing Recommendation 5 of the same report:
Recommendation 5: That the Tasmanian Government establish a Housing Supply Forecasting Council to collect and analyse housing supply and demand drivers, including the impact of the SSA sector, and provide policy recommendations.”
Rationale:
“In 2019 the City of Hobart unanimously declared a Housing and Homelessness crisis. One of the key contributors to this issue is the lack of housing supply, both affordable housing and in the broader housing market. This lack of supply, coupled with fast increasing demand has placed a disproportionate burden on those on lower incomes and the vulnerable within our community, making it more difficult to find stable housing and displacing more and more onto our social and public housing systems, placing increased stress on the sector.
Council,
as the Planning Authority, possesses one of the most powerful policy levers in
this space to increase supply. As it currently stands however, the planning
scheme does not allow for a residential development’s contribution to
housing supply to be taken as a planning consideration.
During debate regarding further regulation of the Short Stay Accommodation
sector, references were made to recommendations included in the UTAS
report: Regulating Short-Stay Accommodation in Tasmania: Issues
to consider and options for reform. This report also contained
recommendations to address the broader supply issue within the housing market,
including those referenced in the motion.
To directly quote the report:
“Pressures on Tasmania’s housing market have not abated over the past 12 months. In Greater Hobart in particular, steadily rising house prices and rents are creating significant housing affordability and access challenges, especially for low-income renters. A range of factors including strong population growth, supply constraints and growing visitor numbers have contributed to these pressures.”
The City of Hobart is attempting to address the impact growing visitor numbers are potentially having to housing stress with the motion to investigate regulatory mechanisms into short stay accommodation. We should also take seriously our role in addressing the other key issue referred to in this report: supply constraints.
Council
has the ability to implement Planning Scheme Amendments to address this issue,
however as noted by the report, “Currently, there is scope to
include community specific ‘local provisions’ in the statewide
planning scheme (Battery Point is an example). However, such provisions must be
approved by the Tasmanian Planning Commission. Its processes can be protracted
and are not suited to making time-sensitive changes to meet the housing needs
of specific communities.“ Thus, we should also investigate
the merit in calling on the State Government to insert provisions into the
Planning Scheme more broadly if it can be determined that a more positive
response in the city’s housing stocks would result.
Reference:
Insight Eight: Regulating Short-Stay Accommodation in
Tasmania:Issues to consider and options for reform, Julia Verdouw and Richard
Eccleston Institute for the Study of Social Change,
https://www.utas.edu.au/__data/assets/pdf_file/0020/1225334/UTAS-ISC-Insight-Eight-Regulating-Short-Stay-Accommodation.pdf.”
The General Manager reports:
“A response to the motion passed on the 17th December 2020, Short Stay Accommodation – Planning Directive and this motion if passed, would be combined in any report back to the Council.”
|
|
Agenda (Open Portion) City Planning Committee Meeting |
Page 357 |
|
|
1/2/2021 |
|
Section 29 of the Local Government (Meeting Procedures) Regulations 2015.
File Ref: 13-1-10
An Elected Member may ask a question without notice of the Chairman, another Elected Member, the General Manager or the General Manager’s representative, in line with the following procedures:
1. The Chairman will refuse to accept a question without notice if it does not relate to the Terms of Reference of the Council committee at which it is asked.
2. In putting a question without notice, an Elected Member must not:
(i) offer an argument or opinion; or
(ii) draw any inferences or make any imputations – except so far as may be necessary to explain the question.
3. The Chairman must not permit any debate of a question without notice or its answer.
4. The Chairman, Elected Members, General Manager or General Manager’s representative who is asked a question may decline to answer the question, if in the opinion of the respondent it is considered inappropriate due to its being unclear, insulting or improper.
5. The Chairman may require a question to be put in writing.
6. Where a question without notice is asked and answered at a meeting, both the question and the response will be recorded in the minutes of that meeting.
7. Where a response is not able to be provided at the meeting, the question will be taken on notice and
(i) the minutes of the meeting at which the question is asked will record the question and the fact that it has been taken on notice.
(ii) a written response will be provided to all Elected Members, at the appropriate time.
(iii) upon the answer to the question being circulated to Elected Members, both the question and the answer will be listed on the agenda for the next available ordinary meeting of the committee at which it was asked, where it will be listed for noting purposes only.
|
|
Agenda (Open Portion) City Planning Committee Meeting |
Page 358 |
|
|
1/2/2021 |
|