
City
of hobart
AGENDA
City Planning Committee Meeting
Open Portion
Monday, 15 June 2020
at 5:00 pm
Working together to make Hobart a better place for the community.
THE VALUES
The Council is:
|
People |
We value people – our community, our customers and colleagues. |
|
Teamwork |
We collaborate both within the organisation and with external stakeholders drawing on skills and expertise for the benefit of our community. |
|
Focus and Direction |
We have clear goals and plans to achieve sustainable social, environmental and economic outcomes for the Hobart community. |
|
Creativity and Innovation |
We embrace new approaches and continuously improve to achieve better outcomes for our community. |
|
Accountability |
We work to high ethical and professional standards and are accountable for delivering outcomes for our community. |
|
|
Agenda (Open Portion) City Planning Committee Meeting |
Page 4 |
|
|
15/6/2020 |
|
Business listed on the agenda is to be conducted in the order in which it is set out, unless the committee by simple majority determines otherwise.
APOLOGIES AND LEAVE OF ABSENCE
1. Co-Option of a Committee Member in the event of a vacancy
3. Consideration of Supplementary Items
4. Indications of Pecuniary and Conflicts of Interest
6. Planning Authority Items - Consideration of Items With Deputations
7. Committee Acting as Planning Authority
7.1 Applications under the Hobart Interim Planning Scheme 2015
7.1.1 10 Whelan Crescent, West Hobart - Partial Demolition, Alterations, Extension and Carport
7.1.2 18 Aberdeen Street, Glebe and Adjacent Road Reserve - Driveway and Associated Infrastructure
7.1.6 3 De Witt Street, Battery Point - Outbuilding (Garage and Studio)
7.1.7 Common Land of Parent Title, 211/1 Sandy Bay Road, Hobart - Change of Use to Dwelling
7.1.8 17 Beach Road, Sandy Bay - Demolition, New Public Toilets and Associated Works
7.1.9 25 Mary Street, North Hobart - Alterations (Screen)
8.1 Proposed Changes to Delegations to Determine Development Applications
8.2 Monthly Building Statistics - 1 May - 31 May 2020
8.3 Delegated Decisions Report (Planning)
8.4 City Planning - Advertising Report
9. Responses To Questions Without Notice
9.1 Royal Hobart Hospital - Smoke Free
9.2 Development / Building Activity
9.3 8 Wynyard Street - Public Path - Open Space
11. Closed Portion Of The Meeting
|
|
Agenda (Open Portion) City Planning Committee Meeting |
Page 6 |
|
|
15/6/2020 |
|
City Planning Committee Meeting (Open Portion) held Monday, 15 June 2020 at 5:00.
This meeting of the City Planning Committee is held in accordance with a Notice issued by the Premier on 3 April 2020 under section 18 of the COVID-19 Disease Emergency (Miscellaneous Provisions) Act 2020.
|
COMMITTEE MEMBERS Deputy Lord Mayor Burnet (Chairman) Briscoe Harvey Behrakis Dutta Coats
NON-MEMBERS Lord Mayor Reynolds Zucco Sexton Thomas Ewin Sherlock |
Apologies:
Leave of Absence: Nil.
|
|
The minutes of the Open Portion of the City Planning Committee meeting held on Monday, 16 March 2020, are submitted for confirming as an accurate record.
|
Ref: Part 2, Regulation 8(6) of the Local Government (Meeting Procedures) Regulations 2015.
|
That the Committee resolve to deal with any supplementary items not appearing on the agenda, as reported by the General Manager.
|
Ref: Part 2, Regulation 8(7) of the Local Government (Meeting Procedures) Regulations 2015.
Members of the committee are requested to indicate where they may have any pecuniary or conflict of interest in respect to any matter appearing on the agenda, or any supplementary item to the agenda, which the committee has resolved to deal with.
Regulation 15 of the Local Government (Meeting Procedures) Regulations 2015.
A committee may close a part of a meeting to the public where a matter to be discussed falls within 15(2) of the above regulations.
In the event that the committee transfer an item to the closed portion, the reasons for doing so should be stated.
Are there any items which should be transferred from this agenda to the closed portion of the agenda, or from the closed to the open portion of the agenda?
In accordance with the requirements of Part 2 Regulation 8(3) of the Local Government (Meeting Procedures) Regulations 2015, the General Manager is to arrange the agenda so that the planning authority items are sequential.
In accordance with Part 2 Regulation 8(4) of the Local Government (Meeting Procedures) Regulations 2015, the Committee by simple majority may change the order of any of the items listed on the agenda, but in the case of planning items they must still be considered sequentially – in other words they still have to be dealt with as a single group on the agenda.
Where deputations are to be received in respect to planning items, past practice has been to move consideration of these items to the beginning of the meeting.
RECOMMENDATION
That in accordance with Regulation 8(4) of the Local Government (Meeting Procedures) Regulations 2015, the Committee resolve to deal with any items which have deputations by members of the public regarding any planning matter listed on the agenda, to be taken out of sequence in order to deal with deputations at the beginning of the meeting.
|
|
Agenda (Open Portion) City Planning Committee Meeting |
Page 7 |
|
|
15/6/2020 |
|
In accordance with the provisions of Part 2 Regulation 25 of the Local Government (Meeting Procedures) Regulations 2015, the intention of the Committee to act as a planning authority pursuant to the Land Use Planning and Approvals Act 1993 is to be noted.
In accordance with Regulation 25, the Committee will act as a planning authority in respect to those matters appearing under this heading on the agenda, inclusive of any supplementary items.
The Committee is reminded that in order to comply with Regulation 25(2), the General Manager is to ensure that the reasons for a decision by a Council or Council Committee acting as a planning authority are recorded in the minutes.
|
Agenda (Open Portion) City Planning Committee Meeting |
Page 8 |
|
|
|
15/6/2020 |
|
7.1 Applications under the Hobart Interim Planning Scheme 2015
7.1.1 10 Whelan Crescent, West Hobart - Partial Demolition, Alterations, Extension and Carport
Address: 10 Whelan Crescent, West Hobart
Proposal: Partial Demolition, Alterations, Extension and Carport
Expiry Date: 21 July 2020
Extension of Time: Not applicable
Author: Richard Bacon
|
REcommendation That pursuant to the Hobart Interim Planning Scheme 2015, the Council refuse the application for partial demolition, alterations, extension and carport at 10 Whelan Crescent West Hobart for the following reasons:
1 The proposal does not meet the acceptable solution or the performance criterion with respect to clause 10.4.2 A3 and P3 of the Hobart Interim Planning Scheme 2015 because it would result in an unreasonable loss of amenity to the adjoining properties at Nos.12 and 8 Whelan Crescent, due to the excessive visual impact caused by the apparent scale, bulk and proportions of the dwelling extension when viewed from the adjoining lots.
|
Attachment a: PLN-19-377
- 10 WHELAN CRESCENT WEST HOBART TAS 7000 - Planning Committee or Delegated
Report ⇩ ![]()
Attachment
b: PLN-19-377
- 10 WHELAN CRESCENT WEST HOBART TAS 7000 - CPC Agenda Documents ⇩
|
Item No. 7.1.1 |
Agenda (Open Portion) City Planning Committee Meeting - 15/6/2020 |
Page 21 ATTACHMENT a |

























|
Agenda (Open Portion) City Planning Committee Meeting - 15/6/2020 |
Page 48 ATTACHMENT b |













|
Agenda (Open Portion) City Planning Committee Meeting |
Page 57 |
|
|
|
15/6/2020 |
|
7.1.2 18 Aberdeen Street, Glebe and Adjacent Road Reserve - Driveway and Associated Infrastructure
Address: 18 Aberdeen Street, Glebe and Adjacent Road Reserve
Proposal: Driveway and Associated Infrastructure
Expiry Date: 2 July 2020
Extension of Time: Not applicable
Author: Michaela Nolan
|
REcommendation That pursuant to the Hobart Interim Planning Scheme 2015, the Council refuse the application for driveway and associated infrastructure at 18 Aberdeen Street, Glebe and the adjacent Lovett Street road reservation for the following reasons:
1 The proposal does not meet the acceptable solution or the performance criterion with respect to clause E6.7.14 A1 and P1 of the Hobart Interim Planning Scheme 2015 because the driveway is not in accordance with the requirements of the road authority.
2 The proposal does not meet the acceptable solution or the performance criterion with respect to clause E13.8.1 A1 and P1 of the Hobart Interim Planning Scheme 2015 because it includes the demolition of landscape elements and vegetation that contribute to the historic cultural heritage significance of the precinct.
3 The proposal does not meet the acceptable solution or the performance criterion with respect to clause E13.8.2 A1 and P1 of the Hobart Interim Planning Scheme 2015 because it includes works that would result in detriment to the historic cultural heritage significance of the precinct.
|
Attachment a: PLN-18-536
- 18 ABERDEEN STREET GLEBE TAS 7000 - Planning Committee or Delegated Report ⇩ ![]()
Attachment
b: PLN-18-536
- 18 ABERDEEN STREET GLEBE TAS 7000 -CPC Agenda Documents ⇩ ![]()
Attachment
c: PLN-18-536
- 18 ABERDEEN STREET GLEBE TAS 7000 - Planning Referral Officer Cultural
Heritage Report ⇩ ![]()
Attachment
d: PLN-18-536
- 18 ABERDEEN STREET GLEBE TAS 7000 - Referral Officer Report - Development
Engineering Report ⇩ ![]()
Attachment
e: PLN-18-536
- 18 ABERDEEN STREET GLEBE TAS 7000 - Documentation for General Manager Consent ⇩ ![]()
Attachment
f: PLN-18-536
- 18 ABERDEEN STREET GLEBE TAS 7000 - TasWater SPAN ⇩
|
Item No. 7.1.2 |
Agenda (Open Portion) City Planning Committee Meeting - 15/6/2020 |
Page 81 ATTACHMENT a |























|
Agenda (Open Portion) City Planning Committee Meeting - 15/6/2020 |
Page 87 ATTACHMENT b |





|
Agenda (Open Portion) City Planning Committee Meeting - 15/6/2020 |
Page 101 ATTACHMENT c |






|
Agenda (Open Portion) City Planning Committee Meeting - 15/6/2020 |
Page 115 ATTACHMENT d |













|
Agenda (Open Portion) City Planning Committee Meeting - 15/6/2020 |
Page 117 ATTACHMENT e |

|
Agenda (Open Portion) City Planning Committee Meeting - 15/6/2020 |
Page 123 ATTACHMENT f |

|
Agenda (Open Portion) City Planning Committee Meeting |
Page 128 |
|
|
|
15/6/2020 |
|
7.1.3 41 Alexander Street, Sandy Bay - Partial Demolition, Alterations, Extension and Change of Use to Boarding House
Address: 41 Alexander Street, Sandy
Proposal: Partial Demolition, Alterations, Extension and Change of Use to Boarding House
Expiry Date: 23 July 2020
Extension of Time: Not applicable
Author: Richard Bacon
|
REcommendation
That pursuant to the Hobart Interim Planning Scheme 2015, the Council approve the application for partial demolition, alterations, extension and change of use to boarding house at 41 Alexander Street Sandy Bay TAS 7005 for the reasons outlined in the officer’s report and a permit containing the following conditions be issued:
GEN
The use and/or development must be substantially in accordance with the documents and drawings that comprise PLN20256 41 ALEXANDER STREET SANDY BAY TAS 7005 Final Planning Documents except where modified below.
Reason for condition
To clarify the scope of the permit.
TW
The use and/or development must comply with the requirements of TasWater as detailed in the form Submission to Planning Authority Notice, Reference No. TWDA 2020/00587HCC dated 7 May 2020 as attached to the permit.
Reason for condition
To clarify the scope of the permit.
ENG sw1
All stormwater from the proposed development (including but not limited to: roofed areas, ag drains, retaining wall ag drains and impervious surfaces such as driveways and paved areas) must be drained to the Council’s stormwater infrastructure prior to first occupation or commencement of use (whichever occurs first).
Advice:
Under section 23 of the Urban Drainage Act 2013 it is an offence for a property owner to direct stormwater onto a neighbouring property.
Reason for condition
To ensure that stormwater from the site will be discharged to a suitable Council approved outlet.
ENG 1
Any damage to council infrastructure resulting from the implementation of this permit, must, at the discretion of the Council:
1. Be met by the owner by way of reimbursement (cost of repair and reinstatement to be paid by the owner to the Council); or 2. Be repaired and reinstated by the owner to the satisfaction of the Council.
A photographic record of the Council's infrastructure adjacent to the subject site must be provided to the Council prior to any commencement of works.
A photographic record of the Council’s infrastructure (e.g. existing property service connection points, roads, buildings, stormwater, footpaths, driveway crossovers and nature strips, including if any, preexisting damage) will be relied upon to establish the extent of damage caused to the Council’s infrastructure during construction. In the event that the owner/developer fails to provide to the Council a photographic record of the Council’s infrastructure, then any damage to the Council's infrastructure found on completion of works will be deemed to be the responsibility of the owner.
Reason for condition
To ensure that any of the Council's infrastructure and/or siterelated service connections affected by the proposal will be altered and/or reinstated at the owner’s full cost.
ENV 1
Sediment and erosion control measures sufficient to prevent sediment from leaving the site must be installed prior to any disturbance of the site, and maintained until all areas of disturbance have been stabilized or revegetated.
Advice:
For further guidance in preparing a Soil and Water Management Plan – in accordance with Fact sheet 3 Derwent Estuary Program click here.
Reason for condition
To avoid the sedimentation of roads, drains, natural watercourses, Council land that could be caused by erosion and runoff from the development, and to comply with relevant State legislation.
ADVICE
The following advice is provided to you to assist in the implementation of the planning permit that has been issued subject to the conditions above. The advice is not exhaustive and you must inform yourself of any other legislation, bylaws, regulations, codes or standards that will apply to your development under which you may need to obtain an approval. Visit the Council's website for further information.
Prior to any commencement of work on the site or commencement of use the following additional permits/approval may be required from the Hobart City Council.
BUILDING PERMIT
You may need building approval in accordance with the Building Act 2016. Click here for more information.
This is a Discretionary Planning Permit issued in accordance with section 57 of the Land Use Planning and Approvals Act 1993.
PLUMBING PERMIT
You may need plumbing approval in accordance with the Building Act 2016, Building Regulations 2016 and the National Construction Code. Click here for more information.
STORMWATER
Please note that in addition to a building and/or plumbing permit, development must be in accordance with the Hobart City Council’s Infrastructure By law. Click here for more information.
FEES AND CHARGES
Click here for information on the Council's fees and charges.
DIAL BEFORE YOU DIG
Click here for dial before you dig information.
|
Attachment a: PLN-20-256
- 41 ALEXANDER STREET SANDY BAY TAS 7005 - Planning Committee or Delegated
Report ⇩ ![]()
Attachment
b: PLN-20-256
- 41 ALEXANDER STREET SANDY BAY TAS 7005 - CPC Agenda Documents ⇩ ![]()
Attachment
c: PLN-20-256
- 41 ALEXANDER STREET SANDY BAY TAS 7005 - Planning Referral Officer
Development Engineering Report ⇩ ![]()
Attachment
d: PLN-20-256
- 41 ALEXANDER STREET SANDY BAY TAS 7005 - Planning Referral Officer Cultural
Heritage Report ⇩
|
Item No. 7.1.3 |
Agenda (Open Portion) City Planning Committee Meeting - 15/6/2020 |
Page 156 ATTACHMENT a |



























|
Agenda (Open Portion) City Planning Committee Meeting - 15/6/2020 |
Page 169 ATTACHMENT b |












|
Agenda (Open Portion) City Planning Committee Meeting - 15/6/2020 |
Page 186 ATTACHMENT c |









|
Agenda (Open Portion) City Planning Committee Meeting - 15/6/2020 |
Page 188 ATTACHMENT d |

|
Agenda (Open Portion) City Planning Committee Meeting |
Page 191 |
|
|
|
15/6/2020 |
|
7.1.4 1/73 Fisher Avenue, Sandy Bay Common Land of Parent Title - Change of Use to Visitor Accommodation
Address: 1/73 Fisher Avenue, Sandy Bay Common Land of Parent Title
Proposal: Change of Use to Visitor Accommodation
Expiry Date: 23 July 2020
Extension of Time: Not applicable
Author: Richard Bacon
|
REcommendation That pursuant to the Hobart Interim Planning Scheme 2015, the Council approve the application for change of use to visitor accommodation at 1/73 Fisher Avenue Sandy Bay TAS 7005 for the reasons outlined in the officer’s report and a permit containing the following conditions be issued:
GEN
The use and/or development must be substantially in accordance with the documents and drawings that comprise PLN20246 1/73 FISHER AVENUE SANDY BAY TAS 7005 Final Planning Documents except where modified below.
Reason for condition
To clarify the scope of the permit.
PLN 18
Prior to the commencement of the approved use, a management plan for the operation of the visitor accommodation must be submitted and approved, to the satisfaction of the Council's Director City Planning. The management plan must include measures to limit, manage and mitigate unreasonable impacts upon the amenity of long term residents. These measures must include, but are not limited to, the following requirements:
1. To limit, manage, and mitigate noise generated as a result of the visitor accommodation. 2. To limit, manage, and mitigate behavioural issues caused as a result of the visitor accommodation. 3. To maintain the security of the building where the visitor accommodation would be located, including managing and/or limiting access to shared areas and facilities. 4. To specify the location and number of parking spaces provided on site (two (2)), and where occupants/visitors should park if onsite parking spaces are fully utilised. 5. To specify the maximum permitted occupancy of the visitor accommodation.
Once approved, the management plan must be implemented prior to the commencement of the approved use and must be maintained for as long as the visitor accommodation is in operation.
Reason for condition
To ensure that visitor accommodation does not cause an unreasonable loss of residential amenity.
ENG 5
The number of car parking spaces approved for use on the site is two (2).
Reason for condition
To ensure the provision of parking for the use is safe and efficient.
ADVICE
The following advice is provided to you to assist in the implementation of the planning permit that has been issued subject to the conditions above. The advice is not exhaustive and you must inform yourself of any other legislation, bylaws, regulations, codes or standards that will apply to your development under which you may need to obtain an approval. Visit the Council's website for further information.
Prior to any commencement of work on the site or commencement of use the following additional permits/approval may be required from the Hobart City Council.
BUILDING PERMIT
You may need building approval in accordance with the Building Act 2016. Click here for more information.
This is a Discretionary Planning Permit issued in accordance with section 57 of the Land Use Planning and Approvals Act 1993.
NOISE REGULATIONS
Click here for information with respect to noise nuisances in residential areas.
VISITOR ACCOMMODATION
More information on visitor accommodation, including when building approval is required, can be found here.
In all cases, check with your insurance company that you have adequate cover.
If you are in a bushfire prone area there may be a need to create/review the Bushfire Management Hazard Plan for your property.
Visitor accommodation is also considered to be a commercial use and also not eligible to residential parking permits. Under the current policy for the issuing of residential parking permits, the proposed change of use to visitor accommodation would not entitle the property to a residential parking permit, or a transferable “bed and breakfast” parking permit.
|
Attachment a: PLN-20-246
- 1/73 FISHER AVENUE SANDY BAY TAS 7005 - Planning Committee or Delegated
Report ⇩ ![]()
Attachment
b: PLN-20-246
- 173 FISHER AVENUE SANDY BAY TAS 7005 - CPC Agenda Documents ⇩
|
Item No. 7.1.4 |
Agenda (Open Portion) City Planning Committee Meeting - 15/6/2020 |
Page 205 ATTACHMENT a |













|
Agenda (Open Portion) City Planning Committee Meeting - 15/6/2020 |
Page 206 ATTACHMENT b |
|
Agenda (Open Portion) City Planning Committee Meeting |
Page 244 |
|
|
|
15/6/2020 |
|
7.1.5 64 Anglesea Street, 57 Anglesea Street South Hobart and Adjacent Road Reserve - Extension to Carpark and Associated Works
Address: 64 Anglesea Street, 57 Anglesea Street, South Hobart and Adjacent Road Reserve
Proposal: Extension to Carpark and Associated Works
Expiry Date: 4 July 2020
Extension of Time: Not applicable
Author: Victoria Maxwell
|
REcommendation That pursuant to the Hobart Interim Planning Scheme 2015, the Council approve the application for extension to car park and associated works at 64 ANGLESEA STREET SOUTH HOBART TAS 7004 and adjacent road reserve and 57 Anglesea Street Hobart for the reasons outlined in the officer’s report and a permit containing the following conditions be issued:
GEN
The use and/or development must be substantially in accordance with the documents and drawings that comprise PLN-19-837 64 ANGLESEA STREET SOUTH HOBART TAS 7004 Final Planning Documents except where modified below.
Reason for condition
To clarify the scope of the permit.
PLN 17
Any lighting of the car park must not operate outside the hours of operation for the church and must operate in accordance with Australian Standard AS4282 Control of the obtrusive effects of outdoor lighting.
Reason for condition
To ensure that the nonresidential use does not unreasonably impact residential amenity.
PLN s1
This permit approves the 28 space car park and associated works. This permit does not constitute approval of any other use or development on the site.
Reason for condition
To clarify the scope of this permit.
ENG sw1
All stormwater from the proposed development (including, but not limited to, the diverted swale, ag drains, and impervious surfaces such as driveways and paved areas) must be drained to the Council’s stormwater infrastructure prior to first occupation or commencement of use (whichever occurs first).
Reason for condition
To ensure that stormwater from the site will be discharged to a suitable Council approved outlet.
ENG sw3
The proposed development must be designed to ensure the protection and access to the Council’s stormwater network including Hobart Rivulet.
A detailed design must be submitted and approved prior to the issuing of any approval under the Building Act 2016 or commencement of works (which ever occurs first). The detailed design must demonstrate how the design will ensure the protection and provide access to the Council’s stormwater network.
All work required by this condition must be undertaken in accordance with the approved detailed design.
Advice:
The applicant is required submit detailed design documentation to satisfy this condition via the Council's planning condition endorsement process (noting there is a fee associated with condition endorsement approval of engineering drawings [see general advice on how to obtain condition endorsement and for fees and charges]). This is a separate process to any building approval under the Building Act 2016.
Failure to address condition requirements prior to submitting for building approval may result in unexpected delays.
Reason for condition
To ensure the protection of the Council’s hydraulic infrastructure.
ENG sw4
The new stormwater connection must be constructed and existing abandoned connections sealed by the Council at the owner’s expense, prior to the first occupation.
Detailed engineering drawings must be submitted and approved, prior to the issuing of any approval under the Building Act 2016 or commencement of works (which ever occurs first). The detailed engineering drawings must include:
1. the location of the proposed connection; and 2. the size of the connection appropriate to satisfy the needs of the development.
All work required by this condition must be undertaken in accordance with the approved detailed engineering drawings.
Advice:
The applicant is advised to submit detailed design drawings via a Council City Amenity Division application for a new stormwater connection. If detailed design to satisfy this condition is submitted via the planning condition endorsement process there may be fees associated with the assessment, and once approved the applicant will still need to submit an application for a new stormwater connection with Council City Amenity Division.
Where building / plumbing approval is also required, it is recommended that documentation to satisfy this condition is submitted well before submitting documentation for building/plumbing approval. Failure to address planning condition requirements prior to submitting for building/plumbing approval may result in unexpected delays.
Reason for condition
To ensure the site is drained adequately.
ENG sw5
The new stormwater main extension must be designed and constructed prior to the commencement of the use.
Engineering drawings must be submitted and approved, prior to the issuing of any approval under the Building Act 2016 or commencement of works (which ever occurs first). The engineering drawings must:
1. Be certified by a qualified and experienced civil engineer. 2. Be shown in both plan and longsection the proposed stormwater main extension and connection, including but not limited to, flows, hydraulic grade lines, clearances, cover, gradients, sizing, material and pipe class. 3. Include the associated calculations and catchment area plans. The stormwater system (including defined overland flow paths) must cater for all 1% AEP flows as at 2100 (i.e including climate change loading) from a fully developed catchment. The main itself must be sized to accommodate at least the 5% AEP flows from a fullydeveloped catchment. 4. Demonstrate the outfall has, or will have, sufficient erosion protection for the increased flows to this point. 5. Show the pit collecting the upslope swale drain within the property boundary and as privately owned and maintained. 6. Show a single public stormwater connection for these works. 7. Clearly distinguish between public and private infrastructure. 8. Be substantially in accordance with the LGAT Standard Drawings and Tasmanian Subdivision Guidelines.
All work required by this condition must be undertaken in accordance with the approved engineering drawings.
Advice:
The applicant is required submit detailed design documentation to satisfy this condition via the Council's planning condition endorsement process (noting there is a fee associated with condition endorsement approval of engineering drawings [see general advice on how to obtain condition endorsement and for fees and charges]). This is a separate process to any building approval under the Building Act 2016.
Failure to address condition endorsement requirements prior to submitting for building approval may result in unexpected delays.
Once the condition endorsement has been issued, an Application to Construct Public Infrastructure is required to carry out the works.
Reason for condition
To ensure Council’s hydraulic infrastructure meets acceptable standards.
ENG sw7
Stormwater pretreatment and detention for stormwater discharges from the development must be installed prior to first use or issue of any completion (whichever occurs first).
A stormwater management report and design must be submitted and approved, prior to commencement of work or issue of any consent under the Building Act (whichever occurs first). The stormwater management report and design must:
1. Be prepared by a suitably qualified engineer. 2. Include final detailed design of the proposed treatment train. 3. Include detailed design and supporting calculations of the detention, sized such that there is no increase in flows from the developed site for the worstcase 5% AEP storm event. All assumptions must be clearly stated. The design drawings must include the layout, the inlet and outlet (including long section), outlet size, overflow, discharge rate and emptying time. 4. Include a Stormwater Management Summary Plan that outlines the obligations for future property owners to stormwater management, including a maintenance plan which outlines the operational and maintenance measures to check and ensure the ongoing effective operation of all systems, such as: inspection frequency; cleanout procedures; descriptions and diagrams of how the installed systems operate; details of the life of assets and replacement requirements.
All work required by this condition must be undertaken and maintained in accordance with the approved stormwater management report and design.
Advice:
Once the detailed design and report has been approved Council will issue a condition endorsement (see general advice on how to obtain condition endorsement).
Where building approval is also required, it is recommended that documentation for condition endorsement be submitted well before submitting documentation for building approval. Failure to address condition endorsement requirements prior to submitting for building approval may result in unexpected delays.
Reason for condition
To avoid the possible pollution of drainage systems and natural watercourses, and to comply with relevant State legislation.
ENG tr1
Traffic management within the access driveway, circulation roadway and parking module (parking spaces and aisles) must be installed prior to the commencement of the use.
Traffic management design drawing(s) (including signage and line marking), must be submitted and approved, prior to commencement of the use. The design drawing(s) must be prepared by a suitably qualified person and include (but not be limited to):
1. Signage indicating that the car parking area is available for members of the public to turn around (if a public turning bay is not provided). 2. Delineation of pedestrian pathways along the shared vehicular circulation roadway.
All work required by this condition must be undertaken in accordance with the approved traffic management design drawings.
Advice:
Once the traffic management design drawings have been approved Council will issue a condition endorsement (see general advice on how to obtain condition endorsement).
Where building approval is also required, it is recommended that documentation for condition endorsement be submitted well before submitting documentation for building approval. Failure to address condition endorsement requirements prior to submitting for building approval may result in unexpected delays.
Reason for condition
In the interests of user safety and the amenity of the occupiers of the development.
ENG 3a
The access driveway, circulation roadways, ramps and parking module (parking spaces, aisles and manoeuvring area) must be designed and constructed in accordance with Australian Standard AS/NZS2890.1:2004 (including the requirement for vehicle safety barriers where required).
Advice:
It is advised that designers consider the detailed design of the access and parking module prior to finalising the Finished Floor Level (FFL) of the parking spaces (especially if located within a garage incorporated into the dwelling), as failure to do so may result in difficulty complying with this condition.
Reason for condition
To ensure the safety of users of the access and parking module, and compliance with the relevant Australian Standard.
ENG 4
The access driveway and parking module (car parking spaces, aisles and manoeuvring area) approved by this permit must be constructed to a sealed standard (spray seal, asphalt, concrete, pavers or equivalent Council approved) and surface drained to the Council's stormwater infrastructure prior to the commencement of use.
Reason for condition
To ensure the safety of users of the access driveway and parking module, and that it does not detract from the amenity of users, adjoining occupiers or the environment by preventing dust, mud and sediment transport.
ENG 5
The number of additional car parking spaces approved on the site is twenty eight (28). Car parking spaces in accordance with AS/NZS 2890.6 2009 are to be provided for people with a disability at a rate of 1 per 50 total car parking spaces.
All new parking spaces must be delineated by means of white or yellow lines 80mm to 100mm wide, or white or yellow pavement markers in accordance with Australian Standards AS/NZS 2890.1 2004 or AS/NZS 2890.6 2009 (where applicable), prior to commencement of use.
Reason for condition
To ensure the provision of parking for the use is safe and efficient.
ENG 1
Any damage to council infrastructure resulting from the implementation of this permit, must, at the discretion of the Council:
1. Be met by the owner by way of reimbursement (cost of repair and reinstatement to be paid by the owner to the Council); or 2. Be repaired and reinstated by the owner to the satisfaction of the Council.
Any damage must be immediately reported to Council.
A photographic record of the Council's infrastructure, including Hobart Rivulet, adjacent to the subject site must be provided to the Council prior to any commencement of works.
A photographic record of the Council’s infrastructure (e.g. existing property service connection points, roads, buildings, stormwater, footpaths, driveway crossovers and nature strips, including if any, preexisting damage) will be relied upon to establish the extent of damage caused to the Council’s infrastructure during construction. In the event that the owner/developer fails to provide to the Council a photographic record of the Council’s infrastructure, then any damage to the Council's infrastructure found on completion of works will be deemed to be the responsibility of the owner.
Reason for condition
To ensure that any of the Council's infrastructure and/or siterelated service connections affected by the proposal will be altered and/or reinstated at the owner’s full cost.
ENG r3
Prior to the commencement of use, the proposed access and other infrastructure within and adjacent the highway reservation must be designed and constructed in accordance with:
Urban TSDR09v1 – Urban Roads Driveways and TSD R14v1 Type KC vehicular crossing, or suitable alternative as approved by the Council City Amenity.
Design drawings must be submitted and approved by the City's Road unit prior to any approval to construct. The design drawings must:
1. Show the cross and long section of the driveway crossover within the highway reservation and onto the property. 2. Detail any existing services or infrastructure at or near the proposed driveway crossover. 3. Be designed for the expected vehicle loadings. A structural certificate to note that driveway is suitable for heavy vehicle loadings. 4. Show swept path templates in accordance with AS/NZS 2890.1 2004 (B99 design template). 5. Show that vehicular and pedestrian sight lines are met as per AS/NZS 1. 2890.1 2004. 6. Include a signage and linemarking plan. Note also condition ENG tr1. 7. Include a lighting plan for the street and car park in accordance with relevant Australian Standards. Note also condition PLN s1. 8. Include a design of the gate indicating how this will operate without impacting on car parking numbers. 9. Be prepared and certified by a suitable qualified person, to satisfy the above requirement.
All work required by this condition must be undertaken in accordance with the approved drawings.
Advice:
The signage plan must demonstrate how the new access will be two way, and how members of the public will be instructed to turn around (if a dedicated turning bay on the highway reservation is not provided).
The applicant is required submit detailed design documentation to satisfy this condition via Council's planning condition endorsement process (noting there is a fee associated with condition endorsement approval of engineering drawings [see general advice on how to obtain condition endorsement and for fees and charges]). This is a separate process to any building approval under the Building Act 2016.
Where triggered under the Infrastructure Bylaw, a Road Opening Permit and a Permit to Construct Public infrastructure may be required for the works Failure to address condition endorsement requirements prior to submitting for approval may result in unexpected delays.
Reason for condition
To ensure that works will comply with the Council’s standard requirements.
ENG s1
A method of allowing members of the public to safely turn around near the end of Anglesea Street must be provided prior to commencement of use of the proposed vehicular access. This may be provided by one of the following two methods:
1. A right of carriageway in favour of Hobart City Council is to be registered on CT 158319/2 to allow vehicles to safely pass from the existing gate at the southern end of Council’s road within CT 158319/100 and over the existing driveway, carpark and proposed carpark back to Council’s road. This right of way is to be the satisfaction of Council and is to be registered on CT 158319/2 prior to the commencement of works; or 2. A dedicated turning area to the satisfaction of Council City Amenity Division is to be designed and constructed within the Angelsea Street highway reservation. This turning area is to be independent of the proposed vehicular access.
Reason for condition
To ensure that works will comply with the Council’s standard requirements and that vehicles can legally turn around at the terminus of Angelsea Street.
ENV 2
Sediment and erosion control measures, sufficient to prevent sediment leaving the site and in accordance with an approved soil and water management plan (SWMP), must be installed prior to the commencement of work and maintained until such time as all disturbed areas have been stabilised and/or restored or sealed to the Council’s satisfaction.
A SWMP must be submitted prior to the issue of any approval under the Building Act 2016 or the commencement of work, whichever occurs first. The SWMP must be prepared in accordance with the Soil and Water Management on Building and Construction Sites fact sheets (Derwent Estuary Program, 2008), available here.
All work required by this condition must be undertaken in accordance with the approved SWMP.
Advice:
Once the SWMP has been approved, the Council will issue a condition endorsement (see general advice on how to obtain condition endorsement). Where building approval is also required, it is recommended that documentation for condition endorsement be submitted well before submitting documentation for building approval. Failure to address condition endorsement requirements prior to submitting for building approval may result in unexpected delays.
Reason for condition
To avoid the pollution and sedimentation of roads, drains and natural watercourses that could be caused by erosion and runoff from the development.
ADVICE
The following advice is provided to you to assist in the implementation of the planning permit that has been issued subject to the conditions above. The advice is not exhaustive and you must inform yourself of any other legislation, bylaws, regulations, codes or standards that will apply to your development under which you may need to obtain an approval. Visit the Council's website for further information.
Prior to any commencement of work on the site or commencement of use the following additional permits/approval may be required from the Hobart City Council.
BUILDING PERMIT
You may need building approval in accordance with the Building Act 2016. Click here for more information.
This is a Discretionary Planning Permit issued in accordance with section 57 of the Land Use Planning and Approvals Act 1993.
PLUMBING PERMIT
You may need plumbing approval in accordance with the Building Act 2016, Building Regulations 2016 and the National Construction Code. Click here for more information.
OCCUPATION OF THE PUBLIC HIGHWAY
You are likely to require a Permit to Open Up and Temporarily Occupy a Highway (for work in the road reserve). Click here for more information.
NEW SERVICE CONNECTION
Please contact the Hobart City Council's City Amenity Division to initiate the application process for your new stormwater connection.
STORM WATER
Please note that in addition to a building and/or plumbing permit, development must be in accordance with the Hobart City Council’s Infrastructure By law. Click here for more information.
ACCESS
Designed in accordance with LGAT IPWEA – Tasmanian standard drawings. Click here for more information.
CROSS OVER CONSTRUCTION
The construction of the crossover can be undertaken by the Council or by a private contractor, subject to Council approval of the design. Click here for more information.
WEED CONTROL
Effective measures are detailed in the Tasmanian Washdown Guidelines for Weed and Disease Control: Machinery, Vehicles and Equipment (Edition 1, 2004). The guidelines can be obtained from the Department of Primary Industries, Parks, Water and Environment website.
FEES AND CHARGES
Click here for information on the Council's fees and charges.
DIAL BEFORE YOU DIG
Click here for dial before you dig information.
|
Attachment a: PLN-19-837
- 64 ANGLESEA STREET SOUTH HOBART TAS 7004 - Planning Committee or Delegated
Report ⇩ ![]()
Attachment
b: PLN-19-837
64 ANGLESEA STREET SOUTH HOBART TAS 7004 - Attachment B - CPC Agenda Documents ⇩ ![]()
Attachment
c: PLN-19-837
- 64 ANGLESEA STREET SOUTH HOBART TAS 7004 - Planning Referral Officer Cultural
Heritage Report ⇩
|
Item No. 7.1.5 |
Agenda (Open Portion) City Planning Committee Meeting - 15/6/2020 |
Page 285 ATTACHMENT a |








































|
Agenda (Open Portion) City Planning Committee Meeting - 15/6/2020 |
Page 288 ATTACHMENT b |


|
Agenda (Open Portion) City Planning Committee Meeting - 15/6/2020 |
Page 314 ATTACHMENT c |

|
Agenda (Open Portion) City Planning Committee Meeting |
Page 321 |
|
|
|
15/6/2020 |
|
7.1.6 3 De Witt Street, Battery Point - Outbuilding (Garage and Studio)
Address: 3 De Witt Street, Battery Point
Proposal: Outbuilding (Garage and Studio)
Expiry Date: 23 June 2020
Extension of Time: Not applicable
Author: Michael McClenahan
|
REcommendation That pursuant to the Hobart Interim Planning Scheme 2015, the Council approve the application for an outbuilding (garage and studio) at 3 De Witt Street, Battery Point for the reasons outlined in the officer's report and a permit containing the following conditions be issued:
GEN
The use and/or development must be substantially in accordance with the documents and drawings that comprise PLN-20-192- 3 DE WITT STREET BATTERY POINT TAS 7004 - Final Planning Documents except where modified below.
Reason for condition
To clarify the scope of the permit.
THC
The use and/or development must comply with the requirements of the Tasmanian Heritage Council as detailed in the Notice of Heritage Decision, THC Works Ref: 6223 dated 14 May 2020, as attached to the permit.
Reason for condition
To clarify the scope of the permit.
PLN 1
The southern side of the roof terrace must be screened.
The enclosed portion of the southern side of the roof terrace must have obscure glazing (an obscure film is acceptable), or be otherwise screened, to a height of 1.7m above the finished floor level of the roof terrace, with the equivalent of no more than 25% uniform transparency.
The open portion of the southern side of the roof terrace must be screened (obscuring glazing or glazing with an obscure film is acceptable) to a height of 1.7m above the finished floor level of the terrace with a uniform transparency equivalent to no more than 25%.
The screening/obscuring glazing/obscure film must be installed prior to first use of the roof terrace, and must be maintained for the life of the roof terrace.
Prior to the issue of any approval under the Building Act 2016, revised plans must be submitted and approved demonstrating compliance with the above requirements. All work required by this condition must be undertaken in accordance with the approved revised plans.
Reason for condition
To provide reasonable opportunity for privacy for dwellings.
ENG sw1
All stormwater from the proposed development (including but not limited to: roofed areas, ag drains, retaining wall ag drains and impervious surfaces such as driveways and paved areas) must be drained to the Council's stormwater infrastructure prior to commencement of use.
All imperviuos areas which can be drained via gravity (including charged systems) must be drained via gravity. The pump system must be limited to capture stormwater only from areas which cannot be drained via gravity. All pump rising main discharges must occur to a private dispersion pit such that only gravity flow from the property to the Council kerb and gutter stormwater connection occurs.
Advice:
Under section 23 of the Urban Drainage Act 2013 it is an offence for a property owner to direct stormwater onto a neighbouring property.
Reason for condition
To ensure that stormwater from the site will be discharged to a suitable Council approved outlet.
ENG 3a
The proposed driveway and parking module (parking spaces, aisles and manoeuvring area) must be designed and constructed in accordance with Australian Standard AS/NZS2890.1 :2004 (including the requirement for vehicle safety barriers where required) with the exception that a car turntable is approved. The car turntable must have sufficient clearance to allow a 899 vehicle (5.2m long) to adequately turn around without conflicting with any structures.
Advice:
The turntable width of 4.Bm is likely to be sufficient to cater for the wheel positions of the vehicle. The clearance requirement is to ensure that vehicles that overhand the turntable width do not conflict with any structures.
Reason for condition
To ensure the safety of users of the access and parking module, and compliance with the relevant Australian Standard.
ENG4
Prior to the commencement of use:
• The proposed driveway and parking module (car parking spaces, aisles and manoeuvring area) approved by this permit must be constructed as a durable all-weather surface which does not create dust or mud generation or sediment transport. • The surface shall be drained to the Council's stormwater infrastructure.
Advice:
The existing driveway surface on the right of way is considered a durable all weather surface.
Reason for condition
To ensure the safety of users of the access driveway and parking module, and that it does not detract from the amenity of users, adjoining occupiers or the environment by preventing dust, mud and sediment transport.
ENG 5
The number of car parking spaces approved on the site is one (1 ).
Reason for condition
To ensure the provision of parking for the use is safe and efficient.
ADVICE
The following advice is provided to you to assist in the implementation of the planning permit that has been issued subject to the conditions above. The advice is not exhaustive and you must inform yourself of any other legislation, by-laws, regulations, codes or standards that will apply to your development under which you may need to obtain an approval. Visit the Council's website for further information.
Prior to any commencement of work on the site or commencement of use the following additional permits/approval may be required from the Hobart City Council.
CONDITION ENDORSEMENT ENGINEERING
All engineering drawings required to be submitted and approved by this planning permit must be submitted to the City of Hobart as a CEP (Condition Endorsement) via the City's Online Service Development Portal. When lodging a CEP, please reference the PLN number of the associated Planning Application. Each CEP must also include an estimation of the cost of works shown on the submitted engineering drawings. Once that estimation has been confirmed by the City's Engineer, the following fees are payable for each CEP submitted and must be paid prior to the City of Hobart commencing assessment of the engineering drawings in each CEP:
Value of Building Works Approved by Planning Permit Fee: • Up to $20,000: $150 per application. • Over $20,000: 2% of the value of the works as assessed by the City's Engineer per assessment.
These fees are additional to building and plumbing fees charged under the Building and Plumbing Regulations.
Once the CEP is lodged via the Online Service Development Portal, if the value of building works approved by your planning permit is over $20,000, please contact the City's Development Engineer on 6238 2715 to confirm the estimation of the cost of works shown on the submitted engineering drawings has been accepted.
Once confirmed, pleased call one of the City's Customer Service Officers on 6238 2190 to make payment, quoting the reference number (ie. CEP number) of the Condition Endorsement you have lodged. Once payment is made, your engineering drawings will be assessed.
BUILDING PERMIT
You may need building approval in accordance with the Building Act 2016. Click here for more information.
This is a Discretionary Planning Permit issued in accordance with section 57 of the Land Use Planning and Approvals Act 1993.
PLUMBING PERMIT
You may need plumbing approval in accordance with the Building Act 2016, Building Regulations 2016 and the National Construction Code. Click here for more information.
GENERAL EXEMPTION (TEMPORARY) PARKING PERMITS
You may qualify for a General Exemption permit for construction vehicles i.e. residential or meter parking/loading zones. Click here for more information.
BUILDING OVER AN EASEMENT OR DRAIN
In order to build over the service easement, you will require the written consent of the person on whose behalf the easement was created, in accordance with section 74 of the Building Act 2016. In order to build over a drain, you will require the written consent of the General Manager of Council, in accordance with section 73 of the Building Act 2016.
RIGHT OF WAY
The private right of way must not be reduced, restricted or impeded in any way, and all beneficiaries must have complete and unrestricted access at all times.
You should inform yourself as to your rights and responsibilities in respect to the private right of way particularly reducing, restricting or impeding the right during and after construction.
WORK PLACE HEALTH AND SAFETY
Appropriate occupational health and safety measures must be employed during the works to minimise direct human exposure to potentially-contaminated soil, water, dust and vapors. Click here for more information.
NOISE REGULATIONS
Click here for information with respect to noise nuisances in residential areas.
WASTE DISPOSAL
It is recommended that the developer liaise with the Council's Cleansing and Solid Waste Unit regarding reducing, reusing and recycling materials associated with demolition on the site to minimise solid waste being directed to landfill.
Further information regarding waste disposal can also be found on the Council's website.
FEES AND CHARGES
Click here for information on the Council's fees and charges.
DIAL BEFORE YOU DIG
Click here for dial before you dig information.
|
Attachment a: PLN-20-192
- 3 DE WITT STREET BATTERY POINT TAS 7004 - Planning Committee or Delegated
Report ⇩ ![]()
Attachment
b: PLN-20-192
- 3 DE WITT STREET BATTERY POINT TAS 7004 - CPC Agenda Documents ⇩ ![]()
Attachment
c: PLN-20-192
- 3 DE WITT STREET BATTERY POINT TAS 7004 - Planning Referral Officer Cultural
Heritage Report ⇩
|
Item No. 7.1.6 |
Agenda (Open Portion) City Planning Committee Meeting - 15/6/2020 |
Page 350 ATTACHMENT a |





























|
Agenda (Open Portion) City Planning Committee Meeting - 15/6/2020 |
Page 372 ATTACHMENT b |





















|
Agenda (Open Portion) City Planning Committee Meeting - 15/6/2020 |
Page 374 ATTACHMENT c |

|
Agenda (Open Portion) City Planning Committee Meeting |
Page 376 |
|
|
|
15/6/2020 |
|
7.1.7 Common Land of Parent Title, 211/1 Sandy Bay Road, Hobart - Change of Use to Dwelling
Address: Common Land of Parent Title, 211/1 Sandy Bay Road, Hobart
Proposal: Change of Use to Dwelling
Expiry Date: 27 July 2020
Extension of Time: Not applicable
Author: Deanne Lang
|
REcommendation That pursuant to the Hobart Interim Planning Scheme 2015, the Council approve the application for the change of use to dwelling at 211/1 Sandy Bay Road, Hobart for the reasons outlined in the officer’s report and a permit containing the following conditions be issued:
GEN
The use and/or development must be substantially in accordance with the documents and drawings that comprise except PLN20262 211/1 Sandy Bay Road Hobart and common land of parent title Final Planning Documents except where modified below.
Reason for condition
To clarify the scope of the permit.
ADVICE
The following advice is provided to you to assist in the implementation of the planning permit that has been issued subject to the conditions above. The advice is not exhaustive and you must inform yourself of any other legislation, bylaws, regulations, codes or standards that will apply to your development under which you may need to obtain an approval. Visit the Council's website for further information.
Prior to any commencement of work on the site or commencement of use the following additional permits/approval may be required from the Hobart City Council.
BUILDING PERMIT
You may need building approval in accordance with the Building Act 2016. Click here for more information.
This is a Discretionary Planning Permit issued in accordance with section 57 of the Land Use Planning and Approvals Act 1993.
STRATA AMENDMENT
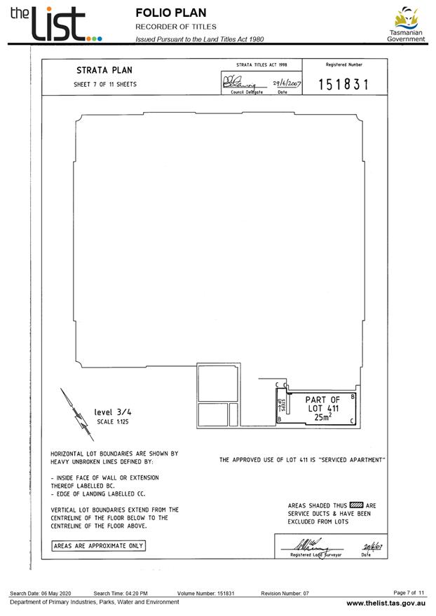
The applicant is advised to make application to the Recorder of Titles to amend the strata plan pursuant to the provisions of Part 2 Division 6 of the Strata Titles Act 1998 in order to delete the reference to lot 211 in the notation contained on sheets 4 and 5of Strata Plan 151831 “The approved use of Lot 211 is serviced apartment”. – Click here for more information.
|
Attachment a: PLN-20-262
- COMMON LAND OF PARENT TITLE - Planning Committee or Delegated Report ⇩ ![]()
Attachment
b: PLN-20-262
- 211/1 SANDY BAY ROAD HOBART TAS 7000 AND COMMON LAND OF PARENT TITLE - CPC
Agenda Documents ⇩
|
Item No. 7.1.7 |
Agenda (Open Portion) City Planning Committee Meeting - 15/6/2020 |
Page 397 ATTACHMENT a |




















|
Agenda (Open Portion) City Planning Committee Meeting - 15/6/2020 |
Page 398 ATTACHMENT b |
|
Agenda (Open Portion) City Planning Committee Meeting |
Page 427 |
|
|
|
15/6/2020 |
|
7.1.8 17 Beach Road, Sandy Bay - Demolition, New Public Toilets and Associated Works
Address: 17 Beach Road, Sandy Bay
Proposal: Demolition, New Public Toilets and Associated Works
Expiry Date: 16 July 2020
Extension of Time: Not applicable
Author: Michael McClenahan
|
REcommendation That pursuant to the Hobart Interim Planning Scheme 2015, the Council approve the application for demolition, new public toilets and associated work at 17 Beach Road, Sandy Bay for the reasons outlined in the officer’s report and a permit containing the following conditions be issued:
GEN
The use and/or development must be substantially in accordance with the documents and drawings that comprise PLN20180 17 BEACH ROAD SANDY BAY TAS 7005 Final Planning Documents except where modified below.
Reason for condition
To clarify the scope of the permit.
TW
The use and/or development must comply with the requirements of TasWater as detailed in the form Submission to Planning Authority Notice, Reference No. TWDA 2020/00407HCC dated 07/05/2020 as attached to the permit.
Reason for condition
To clarify the scope of the permit.
ENG sw1
Stormwater from the proposed development (including but not limited to: roofed areas, ag drains, retaining wall ag drains and impervious surfaces such as paved areas) must be drained to the Council’s stormwater infrastructure prior to first occupation or commencement of use (whichever occurs first).
Should onsite disposal of stormwater be required; a Site and Soil Evaluation Report, and detailed design for drainage of stormwater on the property, prepared and certified by a suitable qualified person, must be submitted to Council prior to the commencement of work, issuing of any approval under the Building Act 2016.
The Site and Soil Evaluation Report must clearly address any interaction with onsite wastewater, potential land stability or erosion risks (including dispersive soils if applicable). The detailed design of sokage trenches must include a maintenance plan, pretreatment, overflow design, trench location (including setbacks from features such as boundaries and retaining walls), dimensions, and sizing calculations for the proposed disposal system measured against all 20yr ARI rainfall events in accordance with relevant standards.
Advice:
Once the drawing has been approved the
Council will issue a condition endorsement (see general advice on how to
obtain condition endorsement). It is advised that documentation for condition endorsement is lodged well before a Building Permit is required, as failure to address design requirements until Building Application stage may result in unexpected delays.
Reason for condition
To ensure that stormwater from the site will be discharged to a suitable Council approved outlet and having regard of the suitability of the site.
ENG 1
Any damage to council infrastructure resulting from the implementation of this permit, must, at the discretion of the Council:
1. Be met by the owner by way of reimbursement (cost of repair and reinstatement to be paid by the owner to the Council); or 2. Be repaired and reinstated by the owner to the satisfaction of the Council.
A photographic record of the Council's infrastructure adjacent to the subject site must be provided to the Council prior to any commencement of works.
A photographic record of the Council’s infrastructure (e.g. existing property service connection points, roads, buildings, stormwater, footpaths, driveway crossovers and nature strips, including if any, preexisting damage) will be relied upon to establish the extent of damage caused to the Council’s infrastructure during construction. In the event that the owner/developer fails to provide to the Council a photographic record of the Council’s infrastructure, then any damage to the Council's infrastructure found on completion of works will be deemed to be the responsibility of the owner.
Reason for condition
To ensure that any of the Council's infrastructure and/or siterelated service connections affected by the proposal will be altered and/or reinstated at the owner’s full cost.
ENG s1
The installation of any proposed private stormwater soakage system must be inspected by the designer or the designer’s agent. The designer on completion of the installation must certify that the installation has been constructed in accordance with the approved certified design. A signed copy of this certification is to be forwarded to Council prior to issue of a completion certificate.
Advice:
Once the drawing has been approved the
Council will issue a condition endorsement (see general advice on how to
obtain condition endorsement). It is advised that documentation for condition endorsement is lodged well before a Building Permit is required, as failure to address design requirements until Building Application stage may result in unexpected delays.
Reason for condition
To ensure stormwater is disposed of with regard of the suitability of the site.
ENV 2
Sediment and erosion control measures, in accordance with an approved soil and water management plan (SWMP), must be installed prior to the commencement of work and maintained until such time as all disturbed areas have been stabilised and/or restored or sealed to the Council’s satisfaction.
A SWMP must be submitted prior to the issue of any approval under the Building Act 2016 or the commencement of work, whichever occurs first. The SWMP must be prepared in accordance with the Soil and Water Management on Building and Construction Sites fact sheets (Derwent Estuary Program, 2008), available here.
All work required by this condition must be undertaken in accordance with the approved SWMP.
Advice:
Once the SWMP has been approved, the Council will issue a condition endorsement (see general advice on how to obtain condition endorsement).
Where building approval is also required, it is recommended that documentation for condition endorsement be submitted well before submitting documentation for building approval. Failure to address condition endorsement requirements prior to submitting for building approval may result in unexpected delays.
Reason for condition
To avoid the pollution and sedimentation of roads, drains and natural watercourses that could be caused by erosion and runoff from the development.
ADVICE
The following advice is provided to you to assist in the implementation of the planning permit that has been issued subject to the conditions above. The advice is not exhaustive and you must inform yourself of any other legislation, bylaws, regulations, codes or standards that will apply to your development under which you may need to obtain an approval. Visit the Council's website for further information.
Prior to any commencement of work on the site or commencement of use the following additional permits/approval may be required from the Hobart City Council.
CONDITION ENDORSEMENT ENGINEERING
All engineering drawings required to be submitted and approved by this planning permit must be submitted to the City of Hobart as a CEP (Condition Endorsement) via the City’s Online Service Development Portal. When lodging a CEP, please reference the PLN number of the associated Planning Application. Each CEP must also include an estimation of the cost of works shown on the submitted engineering drawings. Once that estimation has been confirmed by the City’s Engineer, the following fees are payable for each CEP submitted and must be paid prior to the City of Hobart commencing assessment of the engineering drawings in each CEP:
Value of Building Works Approved by Planning Permit Fee: Up to $20,000: $150 per application. Over $20,000: 2% of the value of the works as assessed by the City's Engineer per assessment.
These fees are additional to building and plumbing fees charged under the Building and Plumbing Regulations.
Once the CEP is lodged via the Online Service Development Portal, if the value of building works approved by your planning permit is over $20,000, please contact the City’s Development Engineer on 6238 2715 to confirm the estimation of the cost of works shown on the submitted engineering drawings has been accepted.
Once confirmed, pleased call one of the City’s Customer Service Officers on 6238 2190 to make payment, quoting the reference number (ie. CEP number) of the Condition Endorsement you have lodged. Once payment is made, your engineering drawings will be assessed.
BUILDING PERMIT
You may need building approval in accordance with the Building Act 2016. Click here for more information.
This is a Discretionary Planning Permit issued in accordance with section 57 of the Land Use Planning and Approvals Act 1993.
PLUMBING PERMIT
You may need plumbing approval in accordance with the Building Act 2016, Building Regulations 2016 and the National Construction Code. Click here for more information.
OCCUPATION OF THE PUBLIC HIGHWAY
You may require a permit for the occupation of the public highway for construction (e.g. placement of skip bin, crane, scissor lift etc). Click here for more information.
You may require a road closure permit for construction. Click here for more information.
PERMIT TO CONSTRUCT PUBLIC INFRASTRUCTURE
You may require a permit to construct public infrastructure, with a 12 month maintenance period and bond (please contact the Hobart City Council's City Amenity Division to initiate the permit process).
WEED CONTROL
Effective measures are detailed in the Tasmanian Washdown Guidelines for Weed and Disease Control: Machinery, Vehicles and Equipment (Edition 1, 2004). The guidelines can be obtained from the Department of Primary Industries, Parks, Water and Environment website.
WORK PLACE HEALTH AND SAFETY
Appropriate occupational health and safety measures must be employed during the works to minimise direct human exposure to potentiallycontaminated soil, water, dust and vapours. Click here for more information.
WASTE DISPOSAL
It is recommended that the developer liaise with the Council’s Cleansing and Solid Waste Unit regarding reducing, reusing and recycling materials associated with demolition on the site to minimise solid waste being directed to landfill.
Further information regarding waste disposal can also be found on the Council’s website.
FEES AND CHARGES
Click here for information on the Council's fees and charges.
DIAL BEFORE YOU DIG
Click here for dial before you dig information.
ENVIRONMENTAL MANAGEMENT AND COMMUNICATION PLAN
The works within Long Point Reserve associated with this permit are to be undertaken in accordance with an Environmental Management and Communications Plan, prepared by the developer to the satisfaction of the Director City Amenity. A template for the Environmental Management and Communications Plan can be provided by the Open Space Planning Team, call 03 6238 2488. This plan must be made specific for the works that will occur within the reserve.
|
Attachment a: PLN-20-180
- 17 BEACH ROAD SANDY BAY TAS 7005 - Planning Committee or Delegated Report ⇩ ![]()
Attachment
b: PLN-20-180
- 17 BEACH ROAD SANDY BAY TAS 7005 - CPC Agenda Documents ⇩
|
Item No. 7.1.8 |
Agenda (Open Portion) City Planning Committee Meeting - 15/6/2020 |
Page 449 ATTACHMENT a |





















|
Agenda (Open Portion) City Planning Committee Meeting - 15/6/2020 |
Page 453 ATTACHMENT b |



|
Agenda (Open Portion) City Planning Committee Meeting |
Page 491 |
|
|
|
15/6/2020 |
|
7.1.9 25 Mary Street, North Hobart - Alterations (Screen)
Address: 25 Mary Street, North Hobart
Proposal: Alterations (Screen)
Expiry Date: 23 June 2020
Extension of Time: Not applicable
Author: Richard Bacon
|
REcommendation That pursuant to the Hobart Interim Planning Scheme 2015, the Council approve the application for alterations (screen) at 25 Mary Street North Hobart TAS 7000 for the reasons outlined in the officer’s report and a permit containing the following conditions be issued:
GEN
The use and/or development must be substantially in accordance with the documents and drawings that comprise PLN20269 25 MARY STREET NORTH HOBART TAS 7000 Final Planning Documents except where modified below.
Reason for condition
To clarify the scope of the permit.
ADVICE
The following advice is provided to you to assist in the implementation of the planning permit that has been issued subject to the conditions above. The advice is not exhaustive and you must inform yourself of any other legislation, bylaws, regulations, codes or standards that will apply to your development under which you may need to obtain an approval. Visit the Council's website for further information.
Prior to any commencement of work on the site or commencement of use the following additional permits/approval may be required from the Hobart City Council.
BUILDING PERMIT
You may need building approval in accordance with the Building Act 2016. Click here for more information.
This is a Discretionary Planning Permit issued in accordance with section 57 of the Land Use Planning and Approvals Act 1993.
|
Attachment a: PLN-20-269
- 25 MARY STREET NORTH HOBART TAS 7000 - Planning Committee or Delegated Report ⇩ ![]()
Attachment
b: PLN-20-269
- 25 MARY STREET NORTH HOBART TAS 7000 - CPC Agenda Documents ⇩ ![]()
Attachment
c: PLN-20-269
- 25 MARY STREET NORTH HOBART TAS 7000 - Planning Referral Officer Cultural
Heritage Report ⇩
|
Item No. 7.1.9 |
Agenda (Open Portion) City Planning Committee Meeting - 15/6/2020 |
Page 504 ATTACHMENT a |












|
Agenda (Open Portion) City Planning Committee Meeting - 15/6/2020 |
Page 507 ATTACHMENT b |


|
Agenda (Open Portion) City Planning Committee Meeting - 15/6/2020 |
Page 511 ATTACHMENT c |

|
Agenda (Open Portion) City Planning Committee Meeting |
Page 512 |
|
|
|
15/6/2020 |
|
8. Reports
8.1 Proposed Changes to Delegations to Determine Development Applications
Memorandum of the Manager Development Appraisal and the Director City Planning of 10 June 2020 and attachments.
Delegation: Council
|
Item No. 8.1 |
Agenda (Open Portion) City Planning Committee Meeting |
Page 515 |
|
|
15/6/2020 |
|
Memorandum: City Planning Committee
Proposed Changes to Delegations to Determine Development Applications
Background
Reference is made to the resolution made by the City Planning Committee on 28 October 2019, that:
2. Council
officers further investigate delegation options for planning applications in
relation to:
(i) Officer delegations;
(ii) City Planning Committee delegations; and
(iii) Council delegations.
The
current delegations have been reviewed. A table is attached which
summarises both the existing and proposed delegations to:
1. the General Manager;
2. the Director City Planning;
3. the Manager Development Appraisal;
4. the Manager Planning Policy and Heritage; and
5. the Senior Statutory Planner.
Summary of Proposed Delegations
The proposal is, in summary:
1. increase the number of representations which would trigger the consideration by Council:
(a) currently, a development application with three representations (objecting to the proposal) and recommended for approval may be determined by the City Planning Committee – it is proposed to increase this to five;
(b) currently, a development application with four or more representations opposing a proposal must be determined by the Council – it is proposed to increase this to six or more representations (objecting to the proposal);
2. applications which are made by the Council are currently all determined by the Council – it is proposed that this only occurs if there are any representations opposing the proposal;
3. applications which are made in relation to Council land are currently all determined by the Council – it is proposed that those applications which relate to the road reservation do not need to go to the Council unless there are six or more representations (objecting to the proposal); and
4. subdivisions are currently determined by the Council where there is a proposal for more than one new lot – it is proposed that this is increased to more than three lots.
5. all recommendations for refusal (where time allows) are still to be determined by the Council, and the Elected Members still maintain the right to call any application in to be determined by the Council.
The proposed new delegations are attached.
Impact of Proposed Delegations
An analysis has been carried out which suggests that this may decrease the applications considered by the Council by half. The proposed changes to the delegations is not expected to remove particularly contentious applications.
As an example, of the 7 applications determined by the Director under the expanded COVID-19 delegation over a 2 month period, 5 of those would be able to be determined under the proposed delegations:
· 2 where the Council was the applicant;
· 3 because the applications related to Council land; and
· 1 application which attracted 3 representations.
Power to Delegate
The power to make delegations is contained in s.6(3) of the Land Use Planning and Approvals Act 1993 (LUPAA), which states:
A planning authority may, by resolution, delegate any of its functions or powers under this Act other than this power of delegation to a person employed by the authority.
The relevant power which would be delegated is the power to grant a planning permit pursuant to s.57 of LUPAA (discretionary permits) and s.58 of LUPAA (permitted permits), where certain requirements are met.
|
That: 1. The Council, pursuant to section 6(3) of the Land Use Planning and Approvals Act 1993, approve the alterations to the delegations as detailed within the document titled Proposed Delegations (Attachment B) of this report.
|
As signatory to this report, I certify that, pursuant to Section 55(1) of the Local Government Act 1993, I hold no interest, as referred to in Section 49 of the Local Government Act 1993, in matters contained in this report.
|
Karen Abey Manager Development Appraisal |
Neil Noye Director City Planning |
Date: 10 June 2020
File Reference: F20/57146
Attachment a: Summary
of Current Proposed ⇩ ![]()
Attachment
b: Proposed
Delegations ⇩
|
Item No. 8.1 |
Agenda (Open Portion) City Planning Committee Meeting - 15/6/2020 |
Page 518 ATTACHMENT a |


|
Agenda (Open Portion) City Planning Committee Meeting - 15/6/2020 |
Page 521 ATTACHMENT b |


|
Agenda (Open Portion) City Planning Committee Meeting |
Page 522 |
|
|
|
15/6/2020 |
|
8.2 Monthly Building Statistics - 1 May - 31 May 2020
Memorandum of the Director City Planning of 10 June 2020 and attachments.
Delegation: Council
|
Item No. 8.2 |
Agenda (Open Portion) City Planning Committee Meeting |
Page 524 |
|
|
15/6/2020 |
|

Memorandum: City Planning Committee
Monthly Building Statistics - 1 May - 31 May 2020
Attached is the monthly building statistics
for the period 1 May – 31 May 2020.
|
That:
The Director City Planning reports:
1. During the period 1 May 2020 to 31 May 2020, 36 permits were issued to the value of $9,947,195 which included:
(i) 15 for Extensions/Alterations to Dwellings to the value of $2,056,000;
(ii) 6 New Dwellings to the value of $3,146,228; and
(iii) 0 Major Projects:
2. During the period 1 May 2019 to 31 May 2019, 16 permits were issued to the value of $16,804,671 which included:
(i) 34 for Extensions/Alterations to Dwellings to the value of $4,773,650;
(ii) 10 New Dwellings to the value of $3,935,946; and
(iii) 1 Major Projects:
(a) 218 Macquarie Street (St. Michael's Collegiate) - Alterations - Stage 1 Science Block - $4,460,000
1. In the twelve months ending 31 May 2020, 575 permits were issued to the value of $243,777,218; and
2. In the twelve months ending 30 April 2019, 618 permits were issued to the value of $336,329,552.
|
As signatory to this report, I certify that, pursuant to Section 55(1) of the Local Government Act 1993, I hold no interest, as referred to in Section 49 of the Local Government Act 1993, in matters contained in this report.
|
Neil Noye Director City Planning |
|
Date: 10 June 2020
File Reference: F20/57647
Attachment a: Number
of Building Permits Issued - 5 Year Comparison - May 2020 ⇩ ![]()
Attachment
b: Value
of Building Permits Issued - 5 Year Comparison - May 2020 ⇩
|
Item No. 8.2 |
Agenda (Open Portion) City Planning Committee Meeting - 15/6/2020 |
Page 525 ATTACHMENT a |
|
Item No. 8.2 |
Agenda (Open Portion) City Planning Committee Meeting - 15/6/2020 |
Page 526 ATTACHMENT b |
|
Item No. 8.3 |
Agenda (Open Portion) City Planning Committee Meeting |
Page 527 |
|
|
15/6/2020 |
|
8.3 Delegated Decisions Report (Planning)
Memorandum of the Director City Planning of 9 June 2020 and attachment.
Delegation: Committee
|
Item No. 8.3 |
Agenda (Open Portion) City Planning Committee Meeting |
Page 528 |
|
|
15/6/2020 |
|

Memorandum: City Planning Committee
Delegated Decisions Report (Planning)
Attached is the delegated planning decisions report for the period 9 March 2020 to 5 June 2020.
|
That: 1. That the information be received and noted.
|
As signatory to this report, I certify that, pursuant to Section 55(1) of the Local Government Act 1993, I hold no interest, as referred to in Section 49 of the Local Government Act 1993, in matters contained in this report.
|
Neil Noye Director City Planning |
|
Date: 9 June 2020
File Reference: F20/57982
Attachment a: Delegated
Decisions Report (Planning) ⇩
|
Item No. 8.3 |
Agenda (Open Portion) City Planning Committee Meeting - 15/6/2020 |
Page 535 ATTACHMENT a |






|
Agenda (Open Portion) City Planning Committee Meeting |
Page 536 |
|
|
|
15/6/2020 |
|
8.4 City Planning - Advertising Report
Memorandum of the Director City Planning of 10 June 2020 and attachment.
Delegation: Committee
|
Item No. 8.4 |
Agenda (Open Portion) City Planning Committee Meeting |
Page 537 |
|
|
15/6/2020 |
|

Memorandum: City Planning Committee
City Planning - Advertising Report
Attached is the advertising list for the period 21 May 2020 to 5 June 2020.
|
That: 1. That the information be received and noted.
|
As signatory to this report, I certify that, pursuant to Section 55(1) of the Local Government Act 1993, I hold no interest, as referred to in Section 49 of the Local Government Act 1993, in matters contained in this report.
|
Neil Noye Director City Planning |
|
Date: 10 June 2020
File Reference: F20/58037
Attachment a: City
Planning - Advertising Report ⇩
|
Item No. 8.4 |
Agenda (Open Portion) City Planning Committee Meeting - 15/6/2020 |
Page 542 ATTACHMENT a |



|
Agenda (Open Portion) City Planning Committee Meeting |
Page 543 |
|
|
|
15/6/2020 |
|
Regulation 29(3) Local Government
(Meeting Procedures) Regulations 2015.
File Ref: 13-1-10
The General Manager reports:-
“In accordance with the procedures approved in respect to Questions Without Notice, the following responses to questions taken on notice are provided to the Committee for information.
The Committee is reminded that in accordance with Regulation 29(3) of the Local Government (Meeting Procedures) Regulations 2015, the Chairman is not to allow discussion or debate on either the question or the response.”
9.1 Royal Hobart Hospital - Smoke Free
File Ref: F20/21958; 13-1-10
Memorandum of the Director City Planning of 2 June 2020.
9.2 Development / Building Activity
File Ref: F20/30657; 13-1-10
Memorandum of the Director City Planning of 2 June 2020.
9.3 8 Wynyard Street - Public Path - Open Space
File Ref: F20/55922; 13-1-10
Memorandum of the Director City Planning of 2 June 2020.
9.4 Planning / Building Data
File Ref: F20/58346; 13-1-10
Memorandum of the Director City Planning of 10 June 2020.
Delegation: Committee
|
That the information be received and noted.
|
|
Item No. 9.1 |
Agenda (Open Portion) City Planning Committee Meeting |
Page 545 |
|
|
15/6/2020 |
|
Memorandum: Lord Mayor
Deputy Lord Mayor
Elected Members
Response to Question Without Notice
Royal Hobart Hospital - Smoke Free
|
Meeting: City Planning Committee
|
Meeting date: 17 February 2020
|
|
Raised by: Deputy Lord Mayor Burnet |
|
Question:
Can the Director please advise if the Royal Hobart Hospital campus has been declared smoke-free? If not, could we please have a letter of confirmation as to when?
Response:
Advice from the Department of Health is that the Minister has not yet approved the designation of the Royal Hobart Hospital as a smoke free area. There are proposed legislative amendments to the Public Health Act (currently planned for introduction to Parliament in 2021) to make all hospitals, schools and their surrounds smoke free areas (the Public Health Amendment Bill). While the Minister has approved work to be undertaken to identify a location for the creation of a potential outdoor smoking area at the Royal Hobart Hospital, it is my understanding that this work will be deferred for the foreseeable future, due to the current challenging operational environment of the Hospital.
As signatory to this report, I certify that, pursuant to Section 55(1) of the Local Government Act 1993, I hold no interest, as referred to in Section 49 of the Local Government Act 1993, in matters contained in this report.
|
Neil Noye Director City Planning |
|
Date: 2 June 2020
File Reference: F20/21958; 13-1-10
|
Item No. 9.2 |
Agenda (Open Portion) City Planning Committee Meeting |
Page 547 |
|
|
15/6/2020 |
|
Memorandum: Lord Mayor
Deputy Lord Mayor
Elected Members
Response to Question Without Notice
Development / Building Activity
|
Meeting: City Planning Committee
|
Meeting date: 2 March 2020
|
|
Raised by: Councillor Dutta |
|
Question:
I refer to the Mercury article, Saturday 29th February 2020, attributed to Alderman Zucco, in which he states that there has been a drop of $200m, in the past year. Can the Director advice/inform the committee if there is a reason for this substantial decline in development and if so could this be the cause of the inflated value of building activity in that financial year?
Response:
The significant drop in valuation of building permits in the financial year of approximately $200m can be attributed to the major building permit for the Royal Hobart Hospital K Block which was approved in the previous 12 month period. The scale and value of projects of this nature are infrequent and when they do occur will provide anomalies in the trends of yearly valuation of building work approved by the Council.
The figures were inflated in March 2018 as there was a commercial extension at 48 Liverpool Street, Hobart (Royal Hobart Hospital) which had a value of $162,000,000. To compare the periods March 2018 - February 2019 and March 2019 - February 2020, the average for Permits were:
2017 $115,225,202
2018 $202,202,667
2019 $438,723,746
2020 $333,863,949
There were No Major Projects for the Month of February 2019.
As signatory to this report, I certify that, pursuant to Section 55(1) of the Local Government Act 1993, I hold no interest, as referred to in Section 49 of the Local Government Act 1993, in matters contained in this report.
|
Neil Noye Director City Planning |
|
Date: 2 June 2020
File Reference: F20/30657; 13-1-10
|
Item No. 9.3 |
Agenda (Open Portion) City Planning Committee Meeting |
Page 549 |
|
|
15/6/2020 |
|
Memorandum: Lord Mayor
Deputy Lord Mayor
Elected Members
Response to Question Without Notice
8 Wynyard Street - Public Path - Open Space
|
Meeting: City Planning Committee
|
Meeting date: 25 November 2019
|
|
Raised by: Councillor Harvey |
|
Question:
What happened with the planned public path to be attached to the Giameos development in South Hobart? What open space contribution was made as part of this development?
Response:
There was no public path other than standard footpath proposed to adjoin the 8 Wynyard Street development. There was also no requirement for a public open space contribution to be made as the proposal did not involve a subdivision. However through consultation with Council’s Officers, it was proposed as part of the application, that the land between the face of the levee wall and the Hobart Rivulet title boundary, as well as a turning area into the development at the end of Wynyard Street be transferred to Council. The subject area is shown indicatively below:

As signatory to this report, I certify that, pursuant to Section 55(1) of the Local Government Act 1993, I hold no interest, as referred to in Section 49 of the Local Government Act 1993, in matters contained in this report.
|
Neil Noye Director City Planning |
|
Date: 2 June 2020
File Reference: F20/55922; 13-1-10
|
Item No. 9.4 |
Agenda (Open Portion) City Planning Committee Meeting |
Page 550 |
|
|
15/6/2020 |
|
Memorandum: Lord Mayor
Deputy Lord Mayor
Elected Members
Response to Question Without Notice
Planning / Building Data
|
Meeting: City Planning Committee
|
Meeting date: 2 March 2020
|
|
Raised by: Councillor Dutta |
|
Question:
Can the Director advise if we only referred to the data on page 276 (Attachment A) to item No.19, of the City Planning Meeting of 17/2/2020, to compare the data with the current year, can it distort the planning and building data for 2019/2020?
Response:
Yes. An application at 48 Liverpool Street, Hobart (Royal Hobart Hospital), for an extension to the Hospital valued at $162,000,000 was included within this period which would have resulted in a spike of building permit value for this year.
As signatory to this report, I certify that, pursuant to Section 55(1) of the Local Government Act 1993, I hold no interest, as referred to in Section 49 of the Local Government Act 1993, in matters contained in this report.
|
Neil Noye Director City Planning |
|
Date: 10 June 2020
File Reference: F20/58346; 13-1-10
|
|
Agenda (Open Portion) City Planning Committee Meeting |
Page 551 |
|
|
15/6/2020 |
|
Section 29 of the Local Government (Meeting Procedures) Regulations 2015.
File Ref: 13-1-10
An Elected Member may ask a question without notice of the Chairman, another Elected Member, the General Manager or the General Manager’s representative, in line with the following procedures:
1. The Chairman will refuse to accept a question without notice if it does not relate to the Terms of Reference of the Council committee at which it is asked.
2. In putting a question without notice, an Elected Member must not:
(i) offer an argument or opinion; or
(ii) draw any inferences or make any imputations – except so far as may be necessary to explain the question.
3. The Chairman must not permit any debate of a question without notice or its answer.
4. The Chairman, Elected Members, General Manager or General Manager’s representative who is asked a question may decline to answer the question, if in the opinion of the respondent it is considered inappropriate due to its being unclear, insulting or improper.
5. The Chairman may require a question to be put in writing.
6. Where a question without notice is asked and answered at a meeting, both the question and the response will be recorded in the minutes of that meeting.
7. Where a response is not able to be provided at the meeting, the question will be taken on notice and
(i) the minutes of the meeting at which the question is asked will record the question and the fact that it has been taken on notice.
(ii) a written response will be provided to all Elected Members, at the appropriate time.
(iii) upon the answer to the question being circulated to Elected Members, both the question and the answer will be listed on the agenda for the next available ordinary meeting of the committee at which it was asked, where it will be listed for noting purposes only.
|
|
Agenda (Open Portion) City Planning Committee Meeting |
Page 552 |
|
|
15/6/2020 |
|