
City
of hobart
AGENDA
City Planning Committee Meeting
Open Portion
Monday, 12 August 2019
at 5:00 pm
Lady Osborne Room, Town Hall
THE MISSION
Working together to make Hobart a better place for the community.
THE VALUES
The Council is:
|
People |
We value people – our community, our customers and colleagues. |
|
Teamwork |
We collaborate both within the organisation and with external stakeholders drawing on skills and expertise for the benefit of our community. |
|
Focus and Direction |
We have clear goals and plans to achieve sustainable social, environmental and economic outcomes for the Hobart community. |
|
Creativity and Innovation |
We embrace new approaches and continuously improve to achieve better outcomes for our community. |
|
Accountability |
We work to high ethical and professional standards and are accountable for delivering outcomes for our community. |
|
|
Agenda (Open Portion) City Planning Committee Meeting |
Page 3 |
|
|
12/8/2019 |
|
Business listed on the agenda is to be conducted in the order in which it is set out, unless the committee by simple majority determines otherwise.
APOLOGIES AND LEAVE OF ABSENCE
1. Co-Option of a Committee Member in the event of a vacancy
3. Consideration of Supplementary Items
4. Indications of Pecuniary and Conflicts of Interest
6. Planning Authority Items - Consideration of Items With Deputations
7. Committee Acting as Planning Authority
7.1 Applications under the Hobart Interim Planning Scheme 2015
7.1.1 3 - 4 Montgomery Court, Sandy Bay - New Building for Five Multiple Dwellings
8.1 Building Heights - Elector Poll Results
8.2 City Planning - Advertising Report
8.3 Delegated Decisions Report (Planning)
9. Committee Action Status Report
9.1 Committee Actions - Status Report
11. Closed Portion Of The Meeting
|
|
Agenda (Open Portion) City Planning Committee Meeting |
Page 4 |
|
|
12/8/2019 |
|
City Planning Committee Meeting (Open Portion) held Monday, 12 August 2019 at 5:00 pm in the Lady Osborne Room, Town Hall.
|
COMMITTEE MEMBERS Deputy Lord Mayor Burnet (Chairman) Briscoe Denison Harvey Behrakis
NON-MEMBERS Lord Mayor Reynolds Zucco Sexton Thomas Dutta Ewin Sherlock |
Apologies:
Leave of Absence: Nil.
|
|
The minutes of the Open Portion of the City Planning Committee meeting held on Monday, 29 July 2019 and the Special City Planning Committee meeting held on Monday, 5 August 2019, are submitted for confirming as an accurate record.
|
Ref: Part 2, Regulation 8(6) of the Local Government (Meeting Procedures) Regulations 2015.
|
That the Committee resolve to deal with any supplementary items not appearing on the agenda, as reported by the General Manager.
|
Ref: Part 2, Regulation 8(7) of the Local Government (Meeting Procedures) Regulations 2015.
Members of the Committee are requested to indicate where they may have any pecuniary or conflict of interest in respect to any matter appearing on the agenda, or any supplementary item to the agenda, which the Committee has resolved to deal with.
Regulation 15 of the Local Government (Meeting Procedures) Regulations 2015.
A Committee may close a part of a meeting to the public where a matter to be discussed falls within 15(2) of the above regulations.
In the event that the committee transfer an item to the closed portion, the reasons for doing so should be stated.
Are there any items which should be transferred from this agenda to the closed portion of the agenda, or from the closed to the open portion of the agenda?
In accordance with the requirements of Part 2 Regulation 8(3) of the Local Government (Meeting Procedures) Regulations 2015, the General Manager is to arrange the agenda so that the planning authority items are sequential.
In accordance with Part 2 Regulation 8(4) of the Local Government (Meeting Procedures) Regulations 2015, the Committee by simple majority may change the order of any of the items listed on the agenda, but in the case of planning items they must still be considered sequentially – in other words they still have to be dealt with as a single group on the agenda.
Where deputations are to be received in respect to planning items, past practice has been to move consideration of these items to the beginning of the meeting.
RECOMMENDATION
That in accordance with Regulation 8(4) of the Local Government (Meeting Procedures) Regulations 2015, the Committee resolve to deal with any items which have deputations by members of the public regarding any planning matter listed on the agenda, to be taken out of sequence in order to deal with deputations at the beginning of the meeting.
|
|
Agenda (Open Portion) City Planning Committee Meeting |
Page 6 |
|
|
12/8/2019 |
|
In accordance with the provisions of Part 2 Regulation 25 of the Local Government (Meeting Procedures) Regulations 2015, the intention of the Committee to act as a planning authority pursuant to the Land Use Planning and Approvals Act 1993 is to be noted.
In accordance with Regulation 25, the Committee will act as a planning authority in respect to those matters appearing under this heading on the agenda, inclusive of any supplementary items.
The Committee is reminded that in order to comply with Regulation 25(2), the General Manager is to ensure that the reasons for a decision by a Council or Council Committee acting as a planning authority are recorded in the minutes.
|
Agenda (Open Portion) City Planning Committee Meeting |
Page 7 |
|
|
|
12/8/2019 |
|
7.1 Applications under the Hobart Interim Planning Scheme 2015
7.1.1 3 - 4 Montgomery Court, Sandy Bay - New Building for Five Multiple Dwellings
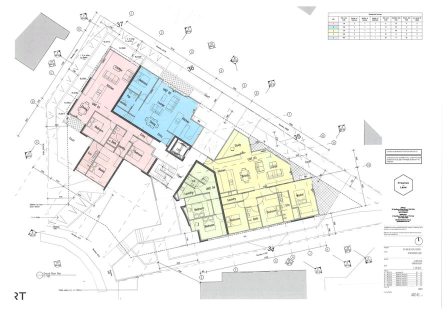
Address: 3-4 Montgomery Court, Sandy Bay
Proposal: New Building for Five Multiple Dwellings
Expiry Date: 19 September 2019
Extension of Time: Not applicable
Author: Helen Ayers
|
REcommendation That pursuant to the Hobart Interim Planning Scheme 2015, the Council approve the application for a new building for five multiple dwellings at 34 Montgomery Court, Sandy Bay for the reasons outlined in the officer’s report and a permit containing the following conditions be issued:
GEN
The use and/or development must be substantially in accordance with the documents and drawings that comprise PLN1972 34 MONTGOMERY COURT SANDY BAY TAS 7005 Final Planning Documents, except where modified below.
Reason for condition
To clarify the scope of the permit.
TW
The use and/or development must comply with the requirements of TasWater as detailed in the form Submission to Planning Authority Notice, Reference No. TWDA 2019/00205HCC dated 1 March 2019 as attached to the permit.
Reason for condition
To clarify the scope of the permit.
ENG sw1
All stormwater from the proposed development (including but not limited to: roofed areas, ag drains, retaining wall ag drains and impervious surfaces such as driveways and paved areas) must be drained to the Council’s stormwater infrastructure prior to first occupation or commencement of use (whichever occurs first).
Reason for condition
To ensure that stormwater from the site will be discharged to a suitable Council approved outlet.
ENG sw4
The new stormwater connection must be constructed and any existing connections be abandoned and sealed, by the Council at the owner’s expense, prior to the first occupation. The new connection must maximize the area of the lot which can drain via gravity and be directed down slope. The new connection must discharge stormwater by gravity and be freeflowing.
Detailed engineering drawings must be submitted and approved, prior to issue of any consent under the Building Act 2016. The detailed engineering drawings must include but not limited to:
1. Be prepared and certified by a suitable qualified and experienced engineer; 2. The location of the proposed connection clear from any potential clashes (such as the crossover wing); 3. The size and design of the connection such that it is appropriate to satisfy the needs of the development; 4. Include flow rate at kerb and gutter connection must not exceed 15 l/s.
5. Longitudinal sections of the proposed connection that clearly shows clearance from any nearby services, depth of cover, size material and delineation of public and private infrastructure. 6. Clearly distinguish between public and private stormwater infrastructure
All work required by this condition must be undertaken in accordance with the approved detailed engineering drawings.
Advice: The applicant is required to submit detailed design documentation to satisfy this condition via Council's planning condition endorsement process (noting there is a fee associated with condition endorsement approval of engineering drawings [(see general advice on how to obtain condition endorsement)]. This is a separate process to any building approval under the Building Act 2016. Please note that once the condition endorsement has been issued you will need to contact Council's City Infrastructure Division to initiate an application for new service connection.
Any proposed public stormwater infrastructure will required detailed engineering drawings, which must be checked and certified by a qualified and experienced Civil Engineer. The construction of public infrastructure will require a Permit to Construct Public Infrastructure.
Maximum permissible discharge from a single kerb and gutter outlet must not exceed 15 l/s.
Where building / plumbing approval is also required, it is recommended that documentation to satisfy this condition is submitted well before submitting documentation for building/plumbing approval. Failure to address planning condition requirements prior to submitting for building/plumbing approval may result in unexpected delays.
Reason for condition
To ensure the site is drained adequately.
ENG sw6
All stormwater from the proposed development (including hardstand runoff) must be discharged to the Council’s stormwater infrastructure with sufficient receiving capacity prior to first occupation. All stormwater which is practicable to drain to the Council's infrastructure via gravity (including suspended or charged systems) must do so. Any pumped or charged flows must be converted to freeflowing gravity within a private transition pit inside the property prior to discharging to the freeflowing gravity connection to the Council's infrastructure. All costs associated with works required by this condition are to be met by the owner.
Design drawings and calculations of the proposed stormwater drainage must be submitted and approved prior to the issue of any consent under the Building Act 2016.
The design drawings and calculations must be prepared and certified by a suitable qualified and experience engineer and include but not be limited to:
1. Plan and longitudinal section(s) showing levels, gradients, cover, sizing, material, pipe class, crossing services, connections and inspection openings; 2. Detail design of any proposed pump system which is to be in accordance with Australian Standard AS/NZS 3500.3:2015 Part 3: Stormwater Drainage Systems; and 3. Clearly distinguish between public and private stormwater infrastructure.
All work required by this condition must be undertaken in accordance with the approved design drawings and calculations.
Advice: The applicant is required to submit detailed design documentation to satisfy this condition via the Council's planning condition endorsement process (noting there is a fee associated with condition endorsement approval of engineering drawings [(see general advice on how to obtain condition endorsement and for fees and charges)]. This is a separate process to any building approval under the Building Act 2016.
Where building/plumbing approval is also required, it is recommended that documentation to satisfy this condition is submitted will before submitting documentation for building/plumbing approval. Failure to address planning condition requirements prior to submitting for building/plumbing may result in unexpected delays.
Reason for condition
To ensure that stormwater from the site will be discharged to a suitable Council approved outlet.
ENG sw7
Stormwater pre treatment and detention for stormwater discharges from the development must be installed prior to Certificate of Completion or commencement of use, whichever occurs first.
Design drawings and calculations of the proposed stormwater quantity and quality control systems must be submitted and approved, prior to the issue of any consent under the Building Act 2016. The design drawings and calculations must:
1. Be prepared and certified by a suitable qualified and experience engineer. 2. In relation to the detention tank, show the layout, the inlet and outlet (including in longsection), the overflow mechanism, emptying times, outlet size. 3. Include Water Sensitive Urban Design and stormwater treatment with detailed design of the proposed treatment train that achieves the stormwater quality targets in accordance with the State Stormwater Strategy 2010. 4. Include detailed design and supporting calculations of the detention tank, sized such that the flow from the developed site up to 5% AEP storm events are limited to 15 l/s at the kerb and gutter discharge point. All assumptions must be clearly stated.
5. Include a supporting stormwater management plan that outlines the obligations for future property owners to stormwater management, including a maintenance plan which outlines the operational and maintenance measures to check and ensure the ongoing effective operation of all systems, such as: inspection frequency, cleanout procedures; descriptions and diagrams of how the installed systems operate; details of the life of assets and replacement requirements.
All work required by this condition must be undertaken in accordance with the approved design drawings and calculations.
Advice: The applicant is required to submit detailed design documentation to satisfy this condition via the Council's planning condition endorsement process (noting there is a fee associated with condition endorsement approval of engineering drawings [see general advice on how to obtain condition endorsement and for fees and charges]). This is a separate process to any building approval under the Building Act 2016.
Where building/plumbing approval is also required, it is recommended that documentation for condition endorsement be submitted well before submitting documentation for building/plumbing approval. Failure to address condition endorsement requirements prior to submitting for building/plumbing approval may result in unexpected delays.
Reason for condition
To avoid the possible pollution of drainage systems and natural watercourses, and to comply with relevant State legislation.
ENG 3c
The access driveway, ramps and parking module (parking spaces, aisles and manoeuvring area must be constructed in accordance with the approved Planning Permit documents and conditions.
Prior to the first occupation, documentation by a suitably qualified engineer certifying that the access driveway and parking module has been constructed in accordance with the approved Planning Permit documents and conditions.
Advice: Certification may be submitted to Council as part of the Building Act 2016 approval process or via condition endorsement (see general advice on how to obtain condition endorsement).
Reason for condition
To ensure the safety of users of the access and parking module, and compliance with the relevant Australian Standard.
ENG 4
The access driveway and parking module (car parking spaces, aisles and manoeuvring area) approved by this permit must be constructed to a sealed standard (spray seal, asphalt, concrete, pavers or equivalent Council approved) and surface drained to the Council's stormwater infrastructure prior to the first occupation.
Reason for condition
To ensure the safety of users of the access driveway and parking module, and that it does not detract from the amenity of users, adjoining occupiers or the environment by preventing dust, mud and sediment transport.
ENG 5
All parking spaces must be delineated by means of white or yellow lines 80mm to 100mm wide, or white or yellow pavement markers in accordance with Australian Standards AS/NZS 2890.1 2004, prior to first occupation.
Reason for condition
To ensure the provision of parking for the use is safe and efficient.
ENG 1
Any damage to council infrastructure resulting from the implementation of this permit, must, at the discretion of the Council:
1. Be met by the owner by way of reimbursement (cost of repair and reinstatement to be paid by the owner to the Council); or 2. Be repaired and reinstated by the owner to the satisfaction of the Council.
A photographic record of the Council's infrastructure adjacent to the subject site must be provided to the Council prior to any commencement of works.
A photographic record of the Council’s infrastructure (e.g. existing property service connection points, roads, buildings, stormwater, footpaths, driveway crossovers and nature strips, including if any, preexisting damage) will be relied upon to establish the extent of damage caused to the Council’s infrastructure during construction. In the event that the owner/developer fails to provide to the Council a photographic record of the Council’s infrastructure, then any damage to the Council's infrastructure found on completion of works will be deemed to be the responsibility of the owner.
Reason for condition
To ensure that any of the Council's infrastructure and/or siterelated service connections affected by the proposal will be altered and/or reinstated at the owner’s full cost.
ENGR 3
Prior to the commencement of use, the proposed driveway crossover, replacement of footpath and kerb and channel in Montgomery Court highway reservation must be designed and constructed in accordance with:
· Urban TSDR09v1 – Urban Roads Driveways and TSD R14v1 Vee Channel vehicular crossing; · Footpath Urban Roads Footpaths TSDR11v1; and · Kerb and Channel TSD R14v1 Type KC (Kerb and Channel).
Design drawings must be submitted and approved prior to issue of any consent under the Building Act 2016. The design drawings must:
1. Show the cross and long section of the driveway crossover within the highway reservation and onto the property. 2. Show the extent of the footpath and kerb and channel to be replaced. 3. Show the end of the new footpath and kerb and channel matching neatly to the existing footpath and kerb and channel. 4. Detail any services or infrastructure (ie light poles, pits, awnings) at or near the proposed driveway crossover. 5. Be prepared and certified by a suitable qualified person, to satisfy the above requirement.
All work required by this condition must be undertaken in accordance with the approved drawings.
Advice: The applicant is required submit detailed design documentation to satisfy this condition via Council's planning condition endorsement process (noting there is a fee associated with condition endorsement approval of engineering drawings [see general advice on how to obtain condition endorsement and for fees and charges]). This is a separate process to any building approval under the Building Act 2016.
Where building/plumbing permits are also required, it is recommended that documentation for condition endorsement be submitted well before submitting documentation for building/plumbing approval. Failure to address condition endorsement requirements prior to submitting for building approval may result in unexpected delays.
Reason for condition
To ensure that works will comply with the Council’s standard requirements.
ENV 2
Sediment and erosion control measures, in accordance with an approved soil and water management plan (SWMP), must be installed prior to the commencement of work and maintained until such time as all disturbed areas have been stabilised and/or restored or sealed to the Council’s satisfaction.
A SWMP must be submitted prior to the issue of any approval under the Building Act 2016 or the commencement of work, whichever occurs first. The SWMP must be prepared in accordance with the Soil and Water Management on Building and Construction Sites fact sheets (Derwent Estuary Program, 2008), available here.
All work required by this condition must be undertaken in accordance with the approved SWMP.
Advice: Once the SWMP has been approved, the Council will issue a condition endorsement (see general advice on how to obtain condition endorsement). Where building approval is also required, it is recommended that documentation for condition endorsement be submitted well before submitting documentation for building approval. Failure to address condition endorsement requirements prior to submitting for building approval may result in unexpected delays.
Reason for condition
To avoid the pollution and sedimentation of roads, drains and natural watercourses that could be caused by erosion and runoff from the development.
SUB s1
Prior to the issue of any approval under the Building Act 2016, or the commencement of works on site, whichever occurs first, the titles comprising the development site (CT 61047/3 and CT 61047/4) must be adhered in accordance with the provisions of section 110 of the Local Government Building & Miscellaneous Provisions Act 1993, to the satisfaction of the Council.
Reason for condition
So that the titles are adhered and to ensure compliance with statutory provisions.
ADVICE
The following advice is provided to you to assist in the implementation of the planning permit that has been issued subject to the conditions above. The advice is not exhaustive and you must inform yourself of any other legislation, bylaws, regulations, codes or standards that will apply to your development under which you may need to obtain an approval. Visit the Council's website for further information.
Prior to any commencement of work on the site or commencement of use the following additional permits/approval may be required from the Hobart City Council.
CONDITION ENDORSEMENT ENGINEERING
All engineering drawings required to be submitted and approved by this planning permit must be submitted to the City of Hobart as a CEP (Condition Endorsement) via the City’s Online Service Development Portal. When lodging a CEP, please reference the PLN number of the associated Planning Application. Each CEP must also include an estimation of the cost of works shown on the submitted engineering drawings. Once that estimation has been confirmed by the City’s Engineer, the following fees are payable for each CEP submitted and must be paid prior to the City of Hobart commencing assessment of the engineering drawings in each CEP:
Value of Building Works Approved by Planning Permit Fee: Up to $20,000: $150 per application. Over $20,000: 2% of the value of the works as assessed by the City's Engineer per assessment.
These fees are additional to building and plumbing fees charged under the Building and Plumbing Regulations.
Once the CEP is lodged via the Online Service Development Portal, if the value of building works approved by your planning permit is over $20,000, please contact the City’s Development Engineer on 6238 2715 to confirm the estimation of the cost of works shown on the submitted engineering drawings has been accepted.
Once confirmed, pleased call one of the City’s Customer Service Officers on 6238 2190 to make payment, quoting the reference number (ie. CEP number) of the Condition Endorsement you have lodged. Once payment is made, your engineering drawings will be assessed.
BUILDING PERMIT
You may need building approval in accordance with the Building Act 2016. Click here for more information.
This is a Discretionary Planning Permit issued in accordance with section 57 of the Land Use Planning and Approvals Act 1993.
PLUMBING PERMIT
You may need plumbing approval in accordance with the Building Act 2016, Building Regulations 2016 and the National Construction Code. Click here for more information.
OCCUPATION OF THE PUBLIC HIGHWAY
You may require a permit for the occupation of the public highway for construction or special event (e.g. placement of skip bin, crane, scissor lift etc). Click here for more information.
You may require a road closure permit for construction or special event. Click here for more information.
You may require a Permit to Open Up and Temporarily Occupy a Highway (for work in the road reserve). Click here for more information.
GENERAL EXEMPTION (TEMPORARY) PARKING PERMITS
You may qualify for a General Exemption permit for construction vehicles i.e. residential or meter parking/loading zones. Click here for more information.
BUILDING OVER AN EASEMENT
In order to build over the service easement, you will require the written consent of the person on whose behalf the easement was created, in accordance with section 74 of the Building Act 2016.
PERMIT TO CONSTRUCT PUBLIC INFRASTRUCTURE
You may require a permit to construct public infrastructure, with a 12 month maintenance period and bond (please contact the Hobart City Council's City Amenity Division to initiate the permit process).
NEW SERVICE CONNECTION
Please contact the Hobart City Council's City Infrastructure Division to initiate the application process for your new stormwater connection.
STORMWATER
Please note that in addition to a building and/or plumbing permit, development must be in accordance with the Hobart City Council’s Hydraulic Services By law. Click here for more information.
WORK WITHIN THE HIGHWAY RESERVATION
Please note development must be in accordance with the Hobart City Council’s Highways By law. Click here for more information.
DRIVEWAY SURFACING OVER HIGHWAY RESERVATION
If a coloured or textured surface is used for the driveway access within the Highway Reservation, the Council or other service provider will not match this on any reinstatement of the driveway access within the Highway Reservation required in the future.
ACCESS
Designed in accordance with LGAT IPWEA – Tasmanian standard drawings. Click here for more information.
CROSS OVER CONSTRUCTION
The construction of the crossover can be undertaken by the Council or by a private contractor, subject to Council approval of the design. Click here for more information.
STORMWATER / ROADS / ACCESS
Services to be designed and constructed in accordance with the (IPWEA) LGAT – standard drawings. Click here for more information.
RESIDENTIAL PARKING PERMITS ELIGIBILITY
It is advised that this development will not be eligible for residential parking permits for onstreet parking.
TITLE ADHESION
An adhesion of your titles is required because a portion of your development is across one or more title boundaries. Contact your solicitor or a registered land surveyor to initiate the process.
WORK PLACE HEALTH AND SAFETY
Appropriate occupational health and safety measures must be employed during the works to minimise direct human exposure to potentiallycontaminated soil, water, dust and vapours. Click here for more information.
NOISE REGULATIONS
Click here for information with respect to noise nuisances in residential areas.
WASTE DISPOSAL
It is recommended that the developer liaise with the Council’s Cleansing and Solid Waste Unit regarding reducing, reusing and recycling materials associated with demolition on the site to minimise solid waste being directed to landfill.
Further information regarding waste disposal can also be found on the Council’s website.
FEES AND CHARGES
Click here for information on the Council's fees and charges.
DIAL BEFORE YOU DIG
Click here for dial before you dig information.
|
Attachment a: PLN-19-72
- 3-4 MONTGOMERY COURT SANDY BAY TAS 7005 - Planning Committee or Delegated
Report ⇩ ![]()
Attachment
b: DA-19-36652
PLN-19-72 - 3-4 MONTGOMERY COURT SANDY BAY TAS 7005 - CPC Agenda Documents ⇩ ![]()
Attachment
c: PLN-19-72
- 3-4 MONTGOMERY COURT SANDY BAY TAS 7005 - Resource Management and Planning
Appeals Tribunal Decision (The House Family Office Pty Ltd v J & S Morris
and Ors [2019] TASRMPAT 10) ⇩
|
Item No. 7.1.1 |
Agenda (Open Portion) City Planning Committee Meeting - 12/8/2019 |
Page 21 ATTACHMENT a |























|
Agenda (Open Portion) City Planning Committee Meeting - 12/8/2019 |
Page 45 ATTACHMENT b |






























|
Item No. 7.1.1 |
Agenda (Open Portion) City Planning Committee Meeting - 12/8/2019 |
Page 77 ATTACHMENT b |








|
Item No. 7.1.1 |
Agenda (Open Portion) City Planning Committee Meeting - 12/8/2019 |
Page 86 ATTACHMENT b |


|
Item No. 7.1.1 |
Agenda (Open Portion) City Planning Committee Meeting - 12/8/2019 |
Page 90 ATTACHMENT b |
|
Item No. 7.1.1 |
Agenda (Open Portion) City Planning Committee Meeting - 12/8/2019 |
Page 92 ATTACHMENT c |





|
Agenda (Open Portion) City Planning Committee Meeting |
Page 98 |
|
|
|
12/8/2019 |
|
7.1.2 343 Davey Street, 3A Wentworth Street, 2/3 Wentworth Street, 1/3 Wentworth Street, South Hobart - Subdivision (Boundary Adjustment)
Address: 343 Davey Street, 3A Wentworth Street, 2/3 Wentworth Street, 1/3 Wentworth Street, South Hobart
Proposal: Subdivision (Boundary Adjustment)
Expiry Date: 27 September 2019
Extension of Time: Not applicable
Author: Richard Bacon
|
REcommendation That pursuant to the Hobart Interim Planning Scheme 2015, the Council refuse the application for a subdivision (boundary adjustment) at 343 Davey Street and 3A and 3 Wentworth Street South Hobart, Tas, 7004 for the following reasons:
1. The proposal does not meet the acceptable solution or the performance criterion with respect to clause 11.5.1 A1 and P1(a) of the Hobart Interim Planning Scheme 2015 because the size of both lots requires a variance of more than 15% above the maximum permitted lot size of 400sqm (and neither lot is for a terrace housing development).
|
Attachment a: PLN-18-262
- 343 DAVEY STREET SOUTH HOBART TAS 7004 - Planning Committee or Delegated
Report ⇩ ![]()
Attachment
b: PLN-18-262
- 343 DAVEY STREET SOUTH HOBART TAS 7004 - CPC Agenda Documents ⇩ ![]()
Attachment
c: PLN-18-262
- 343 DAVEY STREET SOUTH HOBART TAS 7004 - Planning Referral Officer Cultural
Heritage Report ⇩
|
Item No. 7.1.2 |
Agenda (Open Portion) City Planning Committee Meeting - 12/8/2019 |
Page 99 ATTACHMENT a |










|
Agenda (Open Portion) City Planning Committee Meeting - 12/8/2019 |
Page 110 ATTACHMENT b |
|
Item No. 7.1.2 |
Agenda (Open Portion) City Planning Committee Meeting - 12/8/2019 |
Page 111 ATTACHMENT b |








|
Item No. 7.1.2 |
Agenda (Open Portion) City Planning Committee Meeting - 12/8/2019 |
Page 120 ATTACHMENT b |












|
Item No. 7.1.2 |
Agenda (Open Portion) City Planning Committee Meeting - 12/8/2019 |
Page 134 ATTACHMENT b |














|
Item No. 7.1.2 |
Agenda (Open Portion) City Planning Committee Meeting - 12/8/2019 |
Page 150 ATTACHMENT c |
|
Agenda (Open Portion) City Planning Committee Meeting |
Page 151 |
|
|
|
12/8/2019 |
|
7.1.3 25 Hill Street West Hobart - Alterations, Signage and Change of Use to Service Industry - PLN-17-291
Memorandum of the Manager Development Appraisal of 6 August 2019 and attachments.
Delegation: Council
|
Item No. 7.1.3 |
Agenda (Open Portion) City Planning Committee Meeting |
Page 152 |
|
|
12/8/2019 |
|

Memorandum: City Planning Committee
25 Hill Street West Hobart - Alterations, Signage and Change of Use to Service Industry - PLN-17-291
Introduction
Council is currently considering planning application PLN-17-291 proposing alterations, signage and change of use to service industry at 25 Hill Street, West Hobart.
The application broadly proposes the retrospective approval for the current Service Industry use of the site, along with associated alterations and signage.
The proposal is Prohibited under the Hobart Interim Planning Scheme 2015.
Four representations were received during the application’s public notification period raising concerns including the hours of operation, noise, streetscape impacts, light pollution, and that the use is operating without a planning permit.
The officer recommendation is for refusal of the proposal because it is Prohibited under the planning scheme.
The application was due to be considered at the meeting of the Council’s City Planning Committee on 11 June 2019, but the Committee resolved to defer the item at the request of the applicant to allow more time to prepare additional documentation in support of the proposal.
The application was then due to be considered at the meeting of the Council’s City Planning Committee on 15 July 2019, but the Committee resolved to defer the item at the request of the Applicant due to family reasons.
Use Status
Legal advice in relation to the status of the use of site has been provided by the Council’s Manager Development Compliance, and is provided below:
Council’s records identify the building was designed and constructed as a service station in the late 1950s - early 1960s. As the service station was established on the land prior to the commencement of the planning scheme on 9 December 1991, as at that date, the use of the land as a service station was a pre-existing non-confirming use right.
Section 12 of the Land Use Planning and Approvals Act 1993 states that noting in any planning scheme is to, as far as relevant:
(a) prevent the continuance of the use, of any land, in the municipal area, upon which buildings or works are not erected, for the purposes for which the land was being lawfully used immediately before the provision came into effect; or
(b) prevent –
(i) the use, of any building in the municipal area that was erected before that provision came into effect in relation to the municipal area, for any purpose for which the building was lawfully being used immediately before the provision came into effect in relation to the municipal area; or
(ii) the maintenance or repair of such a building; or
(c) prevent the use, of any works constructed in the municipal area before the provision came into effect in relation to the municipal area, for any purpose for which the works were being lawfully used immediately before the provision came into effect in relation to the municipal area; or
(d) prevent the use of any building, or works, in the municipal area, for any purpose for which it or they were being lawfully erected, or carried out, immediately before the provision came into effect in relation to the municipal area; or
(e) require the removal or alteration of any lawfully constructed buildings, or works, in the municipal area.
These provisions expressly do not apply to;
· Use of land that has stopped for a continuous period of 2 years;
· The extension or transfer from one part of a parcel of land to another of a use previously confined to the first mentioned part of that parcel; or
· Any use of land, building or work which is substantially intensified.
It is a well-established principle of law that section 12 is only engaged to protect a use of land for a particular purpose. The enquiry must focus on what the actual use is rather than the way in which it might be classified under the provisions of the planning scheme.
In Berowra RSL v Hornsby SC (2000) 114 LGERA 354 Pearlman J summarised the principles applicable to the task of characterising a use as “an existing use” (at 352-3):
(1) The proper approach is to ask what, according to ordinary terminology, is the appropriate designation of the purpose being served by the use of the site at the relevant date: Shire of Perth v O'Keefe (1964) 110 CLR 529 at 534-535; 10 LGRA 147 at 150 per Kitto J.
(2) The task should not be approached through a meticulous examination of the details of the activities: Shire of Perth v O'Keefe (at 534-535; 150).
(3) What is required is to describe the purpose of the use of the site only at that level of generality which is necessary and sufficient to cover the individual activities, transactions or processes carried on at the relevant date: Royal Agricultural Society (NSW) v Sydney City Council (1987) 61 LGRA 305 at 310 per McHugh JA.
(4) Nevertheless, the general approach is to construe the use broadly. What is required is the determination of the appropriate genus which best describes the activities in question: North Sydney Municipal Council v Boyts Radio and Electrical Pty Ltd (1989) 16 NSWLR 50 at 59; 67 LGRA 344 at 353[PDF].
(5) It is erroneous to approach the task by searching for a purpose that is comprehended by a definition in the environmental planning instrument: Shire of Perth v O'Keefe (at 534-535; 150); Royal Agricultural Society (NSW) v Sydney City Council (at 310-311).
(6) Defining the existing use depends upon a detailed examination of the facts of each case, and there will be borderline cases where minds might differ: North Sydney v Boyts (at 59-60; 353) per Kirby P; Shire of Perth v O'Keefe (at 59-60; 534-535; 150).
(7) The task of characterisation must satisfy an objective test, in the sense that it refers to the end which is served by the use of the site, rather than a subjective test, in the sense of the objects or motives in the minds of particular individuals: Shire of Perth v O'Keefe (at 533-534; 149); Woollahra Municipal Council v Minister for the Environment (1991) 23 NSWLR 710 at 714-715; 73 LGRA 379 at 382[PDF] per Gleeson CJ.
In an unreported decision of the Tribunal in C Hester and J Soldatos v. Hobart City Council and C McKibben dated 17 April 2012, the Tribunal the considered the term “service station” as it is ordinarily understood and noted that typically service stations include:
· A building with unrestricted access to the general public during trading hours;
· A forecourt;
· Fuel bowsers;
· Facilities associated with the supply of LPG gas in bottle form or otherwise; and
· A mechanical workshop.
Having regard to the above, the correct categorisation of the existing use of the land at 25 Hill Street was for the purpose of a “service station”.
The application includes a report of Mr Read from All Urban Planning Pty Ltd dated 13 April 2017. In that report Mr Read states:
In my assessment the current use of the site for the sale and changing of tyres and mechanical repairs closely resembles the mechanical repair component of the long existing use. The removal of the fuel sale activity would in my opinion only reduce the activity on site and associated traffic movements. The proposal is therefore likely to be a net reduction in visitation and traffic to the site.
It may be the case that the sale and changing of tyres and mechanical repairs closely resembles the mechanical repair component of the existing use however in my opinion this does not mean that component is protected by section 12 of the Act. The protected existing use of the land is as a service station. It is true that the use to which land may be put and the activity on it may change, increase or decrease, so long as the same purpose is served however in my opinion, using the land for the sale and changing of tyres and mechanical repairs is not the same purpose as a ‘service station’ which involves those elements set out above.
At paragraph 43-57 of Gifford’s Town Planning Law and Practice it states:
A non-confirming use may be a matter of some complexity involving a number of component activities. The mere fact that one of those activities is discontinued may not amount to a change of non-confirming use, but it can do so. A change in the proportions of the component activities may amount to a change of a non-confirming use. Whether it does so is a matter of fact and degree which therefore has to be considered in individual cases, the test being to contrast the actual existing use with the use which it is said a continuance to determine whether the change of properly be regarded as a ‘change of use of the premises as a whole’. The intention of the user is also a factor to be taken into consideration. In considering whether or not there has been a change of non-confirming use regard is to be had to the planning unit”.
Cessation of the primary components of the service station, that is fuel browsers and sale of fuel has changed the use in a material way. It is not simply a change in the proportions of the various uses but is a fundamental alteration to the purpose of the use of the land.
As the use of the service station ceased sometime between 6 April 2010 and 7 January 2011, in accordance with section 12 of the Act, the right to continue the use as an existing use right lapsed on 7 January 2013 at the latest.
Clause 9.1.1 of the planning scheme provides, as far as relevant, a discretion to approve an application to bring an existing use of land that does not conform to the scheme into conformity, or greater conformity, with the scheme.
The term existing use is not defined in the planning scheme. The term existing non-conforming use is defined in clause 4.1 to mean a use which is Prohibited under the planning scheme but is one to which ss12(1)-(7) of the Act applies. Section 12 uses the term “existing use” and in my opinion, the reference to existing use in clause 9.1.1 of the planning scheme can only refer to an existing use to which section 12 applies. As the use of the land at 25 Hill Street as service station has stopped for more than 2 years it is not protected by section 12 of the Act and therefore clause 9.1.1 of the planning scheme has no application.
The above legal advice confirms that the approach adopted in the officer’s report is correct.
|
That pursuant to the Hobart Interim Planning Scheme 2015, the Council refuse the application for alterations, signage and change of use to service industry at 25 Hill Street, West Hobart for the following reasons: 1. Service Industry is a Prohibited use in the Use Table at clause 11.2 of the Hobart Interim Planning Scheme 2015, and in accordance with clause 8.9.1 of the planning scheme, a use or development must not be granted a permit if the use is within a use class specified in the applicable Use Table as being a use which is prohibited. |
As signatory to this report, I certify that, pursuant to Section 55(1) of the Local Government Act 1993, I hold no interest, as referred to in Section 49 of the Local Government Act 1993, in matters contained in this report.
|
Rohan Probert Manager Development Appraisal |
|
Date: 6 August 2019
File Reference: F19/105188
Attachment a: PLN-17-291
- 25 HILL STREET WEST HOBART TAS 7000 - Planning Committee or Delegated Report ⇩ ![]()
Attachment
b: PLN-17-291
25 HILL STREET WEST HOBART TAS 7000 - CPC Agenda Documents ⇩
|
Item No. 7.1.3 |
Agenda (Open Portion) City Planning Committee Meeting - 12/8/2019 |
Page 157 ATTACHMENT a |












|
Agenda (Open Portion) City Planning Committee Meeting - 12/8/2019 |
Page 170 ATTACHMENT b |


|
Item No. 7.1.3 |
Agenda (Open Portion) City Planning Committee Meeting - 12/8/2019 |
Page 174 ATTACHMENT b |








|
Item No. 7.1.4 |
Agenda (Open Portion) City Planning Committee Meeting |
Page 184 |
|
|
12/8/2019 |
|
7.1.4 179 Macquarie Street, 200 Collins Street, Crowthers Lane and Adjacent Road Reserve, Hobart - Demolition and New Building for Hotel with Restaurant and Function Centre and Associated Infrastructure Works
Address: 179 Macquarie Street, 200 Collins Street, Crowthers Lane and Adjacent Road Reserve, Hobart
Proposal: Demolition and New Building for Hotel with Restaurant and Function Centre and Associated Infrastructure Works
Expiry Date: 23 August 2019
Extension of Time: Not applicable
Author: Cameron Sherriff
|
REcommendation That pursuant to the Hobart Interim Planning Scheme 2015, the Council approve the application for demolition and new building for hotel with restaurant and function centre and associated infrastructure works at 179 Macquarie Street, 200 Collins Street, Crowthers Lane and Adjacent Road Reserve, Hobart for the reasons outlined in the officer’s report and a permit containing the following conditions be issued:
GEN
The use and/or development must be substantially in accordance with the documents and drawings that comprise PLN19104 179 MACQUARIE STREET HOBART TAS 7000 Final Planning Documents except where modified below.
Reason for condition
To clarify the scope of the permit.
TW
The use and/or development must comply with the requirements of TasWater as detailed in the form Submission to Planning Authority Notice, Reference No. TWDA 2019/00448HCC dated 11/04/2019 as attached to the permit.
Reason for condition
To clarify the scope of the permit.
THC
The use and/or development must comply with the requirements of the Tasmanian Heritage Council as detailed in the Notice of Heritage Decision, THC Works Ref: 5885 dated 02 July 2019, as attached to the permit.
Reason for condition
To clarify the scope of the permit.
PLN s2
The exterior of the building must be finished to a high quality standard, substantially in accordance with that shown on the approved plans, and prior to first use.
Full details of all external materials must be submitted and approved, prior to construction works occurring (excluding construction works for demolition and excavation of the site), in accordance with the above requirement and to the satisfaction of the Council's Directory City Planning.
The documentation must:
1. Detail each external material, its form and finish, as well as detailing its longevity and maintainability, to satisfy the above requirement. 2. The colour of the curtain wall and associated glazing.
All work required by this condition must be undertaken in accordance with the approved documentation.
Advice: Once the documentation has been approved, the Council will issue a condition endorsement (see general advice on how to obtain condition endorsement).
Where building approval is also required, it is recommended that documentation for condition endorsement be submitted well before submitting documentation for building approval. Failure to address condition endorsement requirements prior to submitting for building approval may result in unexpected delays.
Reason for condition
To ensure the building is finished to a high standard ensuring a positive contribution to the streetscape and townscape.
ENG sw1
All stormwater from the proposed development (including but not limited to: roofed areas, ag drains, retaining wall ag drains and impervious surfaces such as driveways and paved areas) must be drained to the Council’s stormwater infrastructure prior to first occupation or commencement of use (whichever occurs first).
Reason for condition
To ensure that stormwater from the site will be discharged to a suitable Council approved outlet.
ENG sw2.1
A pre CCTV video of the existing Council stormwater main within the subject site (proposed to be retained) must be undertaken and submitted to Council prior to the commencement of work.
The post construction CCTV will be relied upon to establish the extent of damage caused to the Council’s infrastructure during construction. In the event that the owner/developer fails to provide to the Council pre construction CCTV video of the Council’s infrastructure, then any damage to the Council infrastructure identified in the post construction CCTV will be deemed to be the responsibility of the owner.
Reason for condition
To ensure that any of the Council infrastructure and/or siterelated service connections affected by the proposal will be altered and/or reinstated at the owner’s full cost.
ENG sw2.2
Recorded CCTV inspections and associated reports of the new public stormwater infrastructure and any other existing public stormwater infrastructure within two (2) metres of the proposed development must be undertaken and submitted to the Council:
1. Prior to commencement of the maintenance period; and 2. Within 30 days of completion of works.
The CCTV inspection must be taken no more than one month prior to commencement of the maintenance period. A maintenance period of 12 months will apply to the new pipes. The Council will perform a final inspection at the end of the maintenance period. Should any rectification works be required, these must be done at the owner's cost within a time frame specified by the Council, and an additional 12 month maintenance period may be applied.
The post construction CCTV will be relied upon to establish the extent of damage caused to the Council’s infrastructure during construction. In the event that the owner/developer fails to provide to the Council preconstruction CCTV video of the Council’s infrastructure, then any damage to the Council's infrastructure identified in the post construction CCTV will be deemed to be the responsibility of the owner.
Advice: · The CCTVs may be combined by delaying commencement of the maintenance period. · Please note that CCTV will be required for existing Council stormwater mains within the subject site together with newly constructed public stormwater mains. · A maintenance bond of 5% of the contract value of the proposed new public stormwater works will be required by the Council. Upon the expiry of the maintenance period, please contact the Council’s Project and Development Inspector on telephone 6238 2967 to arrange the final inspection prior to the release of the maintenance bond.
Reason for condition
To ensure that the Lots are serviced by adequate public infrastructure and that any Council infrastructure and connections affected by the works will be repaired at the owner's cost.
ENG sw3
The proposed works (including but not limited to footings, carpark, ramps, overhangs) within two metres of the existing and proposed Council's stormwater infrastructure, must be designed to ensure the long term protection of and access to the Council’s stormwater infrastructure.
A detailed engineering design must be submitted and approved prior to issue of any approval under the Building Act 2016 or commencement of works , whichever occurs first (excluding demolition).
The detailed design must:
1. Demonstrate how the design will maintain the overland flow path, provide adequate access to the main, impose no additional loads onto the main and that the structure will be fully independent of the main and its trenching. Adequate access is defined for this project as a minimum 2.8m vertical clearance within a 3m wide corridor, with no columns or footings within one metre of the outside of the pipe. Reduction in this access requirement is possible for the wall at the boundary with adequate structural bridging. 2. Include crosssections clearly showing the relationship both vertically and horizontally between Council’s stormwater infrastructure and the proposed works (including footings), and stating the minimum setbacks from the works to the nearest external surface of the main. 3. Include a longsection of Council's stormwater main clearly showing proposed cover. If the cover is less than 600mm, engineering details and full calculations to relevant Australian Standards (including construction traffic loading) must be submitted to demonstrate the mains can withstand the likely forces and will be adequately protected. All assumptions must be stated. 4. Be certified by a suitably qualified engineer.
Prior to first occupation under the Building Act 2016, confirmation from a suitably qualified engineer must be provided to the Council that the installation of the works within two metres of the Council’s stormwater is in accordance with the approved drawings and complies with this condition. Should any remediation works be required, these must be carried out at the developer’s cost.
All work required by this condition must be undertaken in accordance with the approved detailed design.
Advice: · The applicant is required submit detailed design documentation to satisfy this condition via Council's planning condition endorsement process (noting there is a fee associated with condition endorsement approval of engineering drawings [see general advice on how to obtain condition endorsement and for fees and charges]). This is a separate process to any building approval under the Building Act 2016. · Once the detailed design has been approved the Council will issue a condition endorsement (see general advice on how to obtain condition endorsement). · Where building approval is also required, it is recommended that documentation for condition endorsement be submitted well before submitting documentation for building approval. Failure to address condition endorsement requirements prior to submitting for building approval may result in unexpected delays.
Reason for condition
To ensure the protection of the Council’s hydraulic infrastructure.
ENG sw4
The new stormwater connection must be constructed and existing abandoned connections sealed by the Council at the owner’s expense, prior to the first occupation.
Detailed engineering drawings must be submitted and approved, prior to commencement of work. The detailed engineering drawings must include:
1. The location of the proposed connection; and 2. The size of the connection appropriate to satisfy the needs of the development.
All work required by this condition must be undertaken in accordance with the approved detailed engineering drawings.
Advice: · The applicant is required submit detailed design documentation to satisfy this condition via Council's planning condition endorsement process (noting there is a fee associated with condition endorsement approval of engineering drawings [see general advice on how to obtain condition endorsement and for fees and charges]). This is a separate process to any building approval under the Building Act 2016. · Once the detailed design has been approved the Council will issue a condition endorsement (see general advice on how to obtain condition endorsement) · Where building approval is also required, it is recommended that documentation for condition endorsement be submitted well before submitting documentation for building approval. Failure to address condition endorsement requirements prior to submitting for building approval may result in unexpected delays.
Reason for condition
To ensure the site is drained adequately.
ENG sw5
The development (including hardstand) must be drained to the Council's stormwater infrastructure with sufficient receiving capacity, in a safe and legal manner through to Collins Street. The upgraded public stormwater system must be constructed prior to first occupation.
Engineering design drawings must be submitted and approved, prior to commencement of work or the issue of any approval under the Building Act 2016 (whichever occurs first but excluding demolition). The engineering design drawings must:
1. Be certified by a qualified and experienced engineer. 2. Show in both plan and longsection the proposed stormwater mains, including but not limited to, connections, flows, velocities, hydraulic grade lines, clearances, cover, gradients, sizing, material, pipe class, adequate working platforms around manholes, easements, obstacles (such as other services or structures) and inspection openings. 3. Include adequate protection works where minimum cover cannot be achieved. 4. Include the associated calculations and catchment area plans. The stormwater system (including defined nonblocked overland flow paths) must cater for all 1% AEP flows as at 2100 (i.e. including climate change loading) from a fully developed catchment. The main itself must be sized to accommodate at least the 5% AEP flows from a fullydeveloped catchment. 5. Where overland flow paths are proposed to cater for flow in excess of the 5% AEP flows, provide detailed design of any proposed new outlets in the base of existing or proposed walls demonstrating that the outlets have sufficient capacity. All calculations must take into consideration a 50% blockage factor. 6. Identify all existing thirdparty connections to the mains to be upgraded and reconnected at the owner's cost. 7. Clearly distinguish between public and private infrastructure.
8. Be substantially in accordance with the LGAT Standard Drawings and Tasmanian Subdivision Guidelines.
All work required by this condition must be undertaken in accordance with the approved engineering design drawings.
Advice: · The applicant is required submit detailed design documentation to satisfy this condition via Council's planning condition endorsement process (noting there is a fee associated with condition endorsement approval of engineering drawings [see general advice on how to obtain condition endorsement and for fees and charges]). This is a separate process to any building approval under the Building Act 2016. · Once the detailed design has been approved the Council will issue a condition endorsement (see general advice on how to obtain condition endorsement) · Where building approval is also required, it is recommended that documentation for condition endorsement be submitted well before submitting documentation for building approval. Failure to address condition endorsement requirements prior to submitting for building approval may result in unexpected delays. · Please note that once the condition endorsement has been issued you will need to contact Council’s City Amenity Division to obtain a Permit to Construct Public Infrastructure. A maintenance period of 12 months and 5% maintenance bond will apply.
Reason for condition
To ensure Council’s hydraulic infrastructure meets acceptable standards.
ENG sw6
A construction management plan (Crowther's Lane heritage walls) must be submitted and approved, detailing the installation of the Council's upgraded stormwater infrastructure in such a way as to ensure that the condition and structural integrity of the existing heritage walls on Crowther's Lane are not compromised.
The construction management plan (Crowther's Lane heritage walls) must be submitted and approved by the Council's Director City Amenity and Director City Planning prior to commencement of work or issue of any approval under the Building Act 2016 (whichever occurs first but excluding demolition).
The construction management plan (Crowther's Lane heritage walls) must:
1. Be prepared and certified by a suitably experienced structural engineer, with input from a suitably experienced geotechnical engineer. 2. Be in accordance with any recommendations from any heritage protection report and requirements. 3. Include structural and geotechnical investigation of the heritage walls, underlying footings and existing ground conditions in Crowther's Lane. 4. Include an engineering risk analysis which demonstrates the rationale of the selected construction method for undertaking the works. Including how risk mitigation relating to design, construction, surrounding infrastructure and personnel to an acceptable level is achieved. 5. Detail construction methodology for undertaking the works, including any restrictions on machinery and access, staging of the works, critical hold points and safety management for both the general public and contractors. 6. Provide details of any monitoring controls and inspection regime that will be in place for the heritage walls or other associated infrastructure. 7. Include engineering drawings which detail any proposed permanent infrastructure (i.e. underpinning) required for undertaking the works. For any proposed temporary infrastructure (i.e. bracing), provide drawings sufficient for implementation. 8. Include engineering crosssections detailing the relationship both vertically and horizontally of the main upgrade (including trenching) to the walls and associated infrastructure. 9. Demonstrate the wall is fully independent of the main and its trenching.
Prior to first occupation or the commencement of the maintenance period on public infrastructure (whichever occurs first), confirmation from a suitably qualified engineer must be provided to the Council that the installation of the main in relation to the heritage walls is in accordance with the approved construction management plan (Crowther's Lane heritage walls), and complies with this condition. Should any remediation works be required, these must be carried out at the developer’s cost.
All work required by this condition must be undertaken in accordance with the approved construction management plan (Crowther's Lane heritage walls).
Advice: · The applicant is required submit detailed design documentation to satisfy this condition via Council's planning condition endorsement process (noting there is a fee associated with condition endorsement approval of engineering drawings [see general advice on how to obtain condition endorsement and for fees and charges]). This is a separate process to any building approval under the Building Act 2016. · Once the construction management plan (Crowther's Lane heritage walls) has been approved, the Council will issue a condition endorsement (see general advice on how to obtain condition endorsement). · Where building approval is also required, it is recommended that documentation for condition endorsement be submitted well before submitting documentation for building approval. Failure to address condition endorsement requirements prior to submitting for building approval may result in unexpected delays.
Reason for condition
To ensure
that stormwater from the site will be discharged to a suitable Council approved
outlet.
ENG sw7
Stormwater pretreatment for stormwater discharges from the development must be installed prior to commencement of use /the issue of any Completion Certificate under the Building Act 2016 (whichever occurs first).
A stormwater management report and design must be submitted and approved, prior to commencement of work (excluding demolition and excavation). The stormwater management report and design must:
1. Be prepared by a suitably qualified engineer. 2. Include detailed design of the proposed treatment train, including final estimations of contaminant removal. 3. Include a Stormwater Management Summary Plan that outlines the obligations for future property owners to stormwater management, including a maintenance plan which outlines the operational and maintenance measures to check and ensure the ongoing effective operation of all systems, such as: inspection frequency; cleanout procedures; descriptions and diagrams of how the installed systems operate; details of the life of assets and replacement requirements.
All work required by this condition must be undertaken and maintained in accordance with the approved stormwater management report and design.
Advice: · The applicant is required submit detailed design documentation to satisfy this condition via Council's planning condition endorsement process (noting there is a fee associated with condition endorsement approval of engineering drawings [see general advice on how to obtain condition endorsement and for fees and charges]). This is a separate process to any building approval under the Building Act 2016.
· Once the stormwater management report and design has been approved, the Council will issue a condition endorsement (see general advice on how to obtain condition endorsement). · Where building approval is also required, it is recommended that documentation for condition endorsement be submitted well before submitting documentation for building approval. Failure to address condition endorsement requirements prior to submitting for building approval may result in unexpected delays.
Reason for condition
To avoid the possible pollution of drainage systems and natural watercourses, and to comply with relevant State legislation.
ENG tr1
The Barrack Street access via the right of way is approved for ENTRY ONLY. The southern Macquarie Street access is approved for ENTRY ONLY. The northern Macquarie Street access is approved for EXIT ONLY.
Traffic management for the accesses and parking module must be installed prior to the commencement of use.
Traffic management design drawing(s) of the proposed traffic management for the accesses (including signage and linemarking), must be submitted and approved , prior to commencement of use. The traffic management design drawing(s) must include (but not be limited to):
1. 'No Entry' signage must be installed at the northern Macquarie Street access (within the property) generally in accordance with AS1742.2:2009 or AS1742.10:2009.
All work required by this condition must be undertaken in accordance with the approved traffic management design drawing(s).
Advice: · The applicant is required submit detailed design documentation to satisfy this condition via Council's planning condition endorsement process (noting there is a fee associated with condition endorsement approval of engineering drawings [see general advice on how to obtain condition endorsement and for fees and charges]). This is a separate process to any building approval under the Building Act 2016. · Once the traffic management design drawing(s) have been approved, the Council will issue a condition endorsement (see general advice on how to obtain condition endorsement). · Where building approval is also required, it is recommended that documentation for condition endorsement be submitted well before submitting documentation for building approval. Failure to address condition endorsement requirements prior to submitting for building approval may result in unexpected delays.
Reason for condition
In the interests of user safety and the amenity of the occupiers of the development.
ENG tr2
A construction traffic and parking management plan must be implemented prior to the commencement of work on the site (including demolition).
The construction traffic (including cars, public transport vehicles, service vehicles, pedestrians and cyclists) and parking management plan must be submitted and approved, prior to any approval under the Building Act 2016 for the relevant stage (including demolition and excavation, separate stage related plans may be provided for each stage). The construction traffic and parking management plan must:
1. Be prepared by a suitably qualified person. 2. Develop a communications plan to advise the wider community of the traffic and parking impacts during construction. 3. Include a start date and finish dates of various stages of works. 4. Include times that trucks and other traffic associated with the works will be allowed to operate. 5. Nominate a superintendent, or the like, to advise the Council of the progress of works in relation to the traffic and parking management with regular meetings during the works.
All work required by this condition must be undertaken in accordance with the approved construction traffic and parking management plan.
Advice: · The applicant is required submit detailed design documentation to satisfy this condition via Council's planning condition endorsement process (noting there is a fee associated with condition endorsement approval of engineering drawings [see general advice on how to obtain condition endorsement and for fees and charges]). This is a separate process to any building approval under the Building Act 2016. · Once the construction traffic and parking management plan has been approved, the Council will issue a condition endorsement (see general advice on how to obtain condition endorsement). · Where building approval is also required, it is recommended that documentation for condition endorsement be submitted well before submitting documentation for building approval. Failure to address condition endorsement requirements prior to submitting for building approval may result in unexpected delays.
Reason for condition
To ensure the safety of vehicles entering and leaving the development and the safety and access around the development site for the general public and adjacent businesses.
ENG 2a
Prior to first occupation or commencement of use (whichever occurs first), vehicular barriers compliant with the Australian Standard AS/NZS1170.1:2002 must be installed to prevent vehicles running off the edge of an access driveway or parking module (parking spaces, aisles and manoeuvring area) where the drop from the edge of the trafficable area to a lower level is 600mm or greater, and wheel stops (kerb) must be installed for drops between 150mm and 600mm. Barriers must not limit the width of the driveway access or parking and turning areas approved under the permit.
Advice: · The Council does not consider a slope greater than 1 in 4 to constitute a lower level as described in AS/NZS 2890.1:2004 Section 2.4.5.3. Slopes greater than 1 in 4 will require a vehicular barrier or wheel stop. · Designers are advised to consult the National Construction Code 2016 to determine if pedestrian handrails or safety barriers compliant with the NCC2016 are also required in the parking module this area may be considered as a path of access to a building.
Reason for condition
To ensure the safety of users of the access driveway and parking module and compliance with the standard.
ENG 3a
The circulation roadways, ramps and parking module (parking spaces, aisles and manoeuvring area) must be designed and constructed in accordance with Australian Standard AS/NZS2890.1:2004 (including the requirement for vehicle safety barriers where required) with the following exceptions:
Jockey or tandem car parking is permitted for car parking spaces 2324 and 3334 on drawing DA1.01 Issue DA1 provided these car parking spaces are designated for employee (AS2890.1 Class 1) or valet customer parking (AS2890.1 Class 2).
Reason for condition
To ensure the safety of users of the access and parking module, and compliance with the relevant Australian Standard.
ENG 4
The access driveway and parking module (car parking spaces, aisles and manoeuvring area) approved by this permit must be constructed to a sealed standard (spray seal, asphalt, concrete, pavers or equivalent Council approved) and surface drained to the Council's stormwater infrastructure prior to the first occupation.
Reason for condition
To ensure the safety of users of the access driveway and parking module, and that it does not detract from the amenity of users, adjoining occupiers or the environment by preventing dust, mud and sediment transport.
ENG 5
The number of parking spaces approved on the site is a maximum of sixty (60) car parking spaces consisting of:
1. Three (3) accessible car parking spaces (as shown in the Traffic Impact Assessment). 2. Fifty three AS/NZS 2890.1:2004 Class 2 car parking spaces. 3. Four (4) Class 1 (employee) or valet parking Class 2 car parking spaces (spaces 2324 and 3334 on drawing DA1.01 Issue DA1). 4. Minimum of six (6) employee bicycle parking spaces. 5. Minimum of fourteen (14) visitor bicycle parking spaces. 6. Minimum of three (3) motorcycle car parking spaces.
All car / motorcycle parking spaces must be delineated by means of white or yellow lines 80mm to 100mm wide, or white or yellow pavement markers in accordance with Australian Standards AS/NZS 2890.1 2004, prior to first occupation.
Reason for condition
To ensure the provision of parking for the use is safe and efficient.
ENG 1
Any damage to Council infrastructure resulting from the implementation of this permit, must, at the discretion of the Council:
1. Be met by the owner by way of reimbursement (cost of repair and reinstatement to be paid by the owner to the Council); or 2. Be repaired and reinstated by the owner to the satisfaction of the Council.
A photographic record of the Council's infrastructure adjacent to the subject site must be provided to the Council prior to any commencement of works.
A photographic record of the Council’s infrastructure (e.g. existing property service connection points, roads, buildings, stormwater, footpaths, driveway crossovers and nature strips, including if any, preexisting damage) will be relied upon to establish the extent of damage caused to the Council’s infrastructure during construction. In the event that the owner/developer fails to provide to the Council a photographic record of the Council’s infrastructure, then any damage to the Council's infrastructure found on completion of works will be deemed to be the responsibility of the owner.
Reason for condition
To ensure that any of the Council's infrastructure and/or siterelated service connections affected by the proposal will be altered and/or reinstated at the owner’s full cost.
ENG r3
Prior to the commencement of use, the proposed two (2) (altered or new) driveway crossovers to the Macquarie Street highway reservation must be designed and constructed generally in accordance with the following Tasmanian Standard Drawings (TSD):
1. Urban TSDR09v1 Urban Roads Driveways and TSD R14v1 Type KC vehicular crossing. 2. Commercial Urban TSDR09v1 Urban Roads Driveways and TSD R16v1 Type KCR and B1 or Type KCRB and B1. 3. Footpath Urban Roads Footpaths TSDR11v1.
Design drawings must be submitted and approved by the Council's Director City Infrastructure prior to any approval under the Building Act 2016 (excluding demolition and excavation). The design drawings must: 1. Detail any services or infrastructure (e.g. light poles, pits, awnings, parking meter boxes, parking meter pavement sensors, public parking spaces) at or near the proposed driveway crossover; including relocation/decommissioning details (including timing of relocation/decommissioning). 2. Show pedestrian sight lines for exiting vehicles in accordance with AS/NZS 2890.1:2004. 3. Show the Northern Macquarie Street access as an exit only access. 4. Be prepared and certified by a suitable qualified person, to satisfy the above requirement.
All work required by this condition must be undertaken in accordance with the approved design drawings.
Advice: · The applicant is required submit detailed design documentation to satisfy this condition via Council's planning condition endorsement process (noting there is a fee associated with condition endorsement approval of engineering drawings [see general advice on how to obtain condition endorsement and for fees and charges]). This is a separate process to any building approval under the Building Act 2016. · Once the approved design drawings have been approved, the Council will issue a condition endorsement (see general advice on how to obtain condition endorsement). · Where building approval is also required, it is recommended that documentation for condition endorsement be submitted well before submitting documentation for building approval. Failure to address condition endorsement requirements prior to submitting for building approval may result in unexpected delays. · Please note that your proposal does not include adjustment of footpath levels. Any adjustment to footpath levels necessary to suit the design of proposed floor, parking module or driveway levels will require separate agreement from Council's Road Services Engineer and may require further planning approvals. It is advised to place a note to this affect on construction drawings for the site and/or other relevant engineering drawings to ensure that contractors are made aware of this requirement.
Reason for condition
To ensure that works will comply with the Council’s standard requirements.
ENG s1
Staff bicycle parking within the basement level must be constructed to Class 1 or Class 2 security level.
Advice: · The Hobart Interim Planning Scheme 2015 defines Class 1 security level as Fully enclosed individual lockers, and Class 2 as Locked compounds with communal access using duplicate keys.
Reason for condition
To encourage cycling by providing secure, accessible and convenient bicycle parking spaces.
ENG s2
Onstreet car parking modifications between the two vehicular accesses on Macquarie Street including relocation of parking meter box must be completed prior to first occupation.
Advice: · Any changes to the existing on street parking arrangements in Macquarie Street does not form part of the planning approval and will require approval from Council's City Planning Division Manager Traffic Engineering in a process separate to the planning process. All works will be at the developer's expense. Please contact Council's City Planning Division Manager Traffic Engineering with regard to the application process for any changes to the on street parking arrangements in Macquarie Street. Once approval from the Manager Traffic Engineering has been obtained a request to temporarily or permanently remove any sensor will require a written application to be submitted to the Parking Operations Unit: https://www.hobartcity.com.au/City services/Paring/IntegratedParkingSystem/DialBeforeYouDigParking Sensors .
Reason for condition
To ensure that works will comply with the Council’s standard requirements.
ENV 2
Sediment and erosion control measures, in accordance with an approved soil and water management plan (SWMP), must be installed prior to the commencement of work and maintained until such time as all disturbed areas have been stabilised and/or restored or sealed to the Council’s satisfaction.
A SWMP must be submitted prior to the issue of any approval under the Building Act 2016 or the commencement of work, whichever occurs first. The SWMP must be prepared in accordance with the Soil and Water Management on Building and Construction Sites fact sheets (Derwent Estuary Program, 2008), available here.
All work required by this condition must be undertaken in accordance with the approved SWMP.
Advice: · Once the SWMP has been approved, the Council will issue a condition endorsement (see general advice on how to obtain condition endorsement). · Where building approval is also required, it is recommended that documentation for condition endorsement be submitted well before submitting documentation for building approval. Failure to address condition endorsement requirements prior to submitting for building approval may result in unexpected delays. · Note also the requirement to provide a soil and water management plan to satisfy condition ENV s1.
Reason for Condition
To avoid the pollution and sedimentation of roads, drains and natural watercourses that could be caused by erosion and runoff from the development.
ENV s1
An approved Demolition and Construction Environmental Management Plan, prepared by suitably qualified persons, must be implemented.
A Demolition and Construction Environmental Management Plan must be submitted and approved prior to the commencement of works and prior to the issue of any approval under the Building Act 2016.
The plan must include, but is not limited to, the following:
1. Details of the proposed construction methodology and expected likely timeframes.
2. The proposed days and hours of work and proposed hours of activities likely to generate significant noise emissions (including volume and timing of heavy vehicles entering and leaving the site).
3. Details of potential environmental impacts associated with the development works including noise, vibration, erosion and pollution (air, land and water), and including the identification and disposal of any potentially contaminated waste and asbestos.
4. Details
of proposed measures to avoid or mitigate to acceptable levelsall identified potential environmental impacts during development works
including, but not limited
to: 1. A
noise and vibration management plan generally consistent with
AS 24362010 Guide to Noise and Vibration Control on Construction, Demolition and Maintenance Sites and the Interim Construction Noise Guidelines
(New South Wales
Department of Environment and Climate Change, July 2009) including, but not limited
to: 1. Identification of potentially noisy or vibrationcausing
activities; 2. Procedures to
ensure that all
reasonable and feasible noise and vibration mitigation measures are applied during
operation of the construction management plan; and 3. Details of monitoring measures and triggers for corrective actions.
2. A soil
and water management plan including: 1. Measures to minimise erosion and the discharge of contaminated stormwater offsite;
2. Measures to minimise dust emissions from the site; 3. Measures to
manage the disposal of surface and groundwater from
excavations; and 4. Measures to prevent soil and debris being carried onto the street.
5. Proposed screening of the site and vehicular access points during work.
6. Details of proposed responsible persons, public communication protocols, compliance, recording and auditing procedures and complaint handling and response procedures.
The approved Demolition and Construction Environmental Management Plan forms part of this permit and must be complied with.
Advice: · Once the plan
has been approved the Council will
issue a condition endorsement (see general advice on how
to obtain condition endorsement). · Where building approval is also required, it is recommended that documentation for condition endorsement be submitted well before submitting documentation for building approval. Failure to address condition endorsement requirements prior to submitting for building approval may result in unexpected delays.
Reason for condition
To minimise the potential for environmental impacts from the construction works
HER 6
Should any features or deposits of an archaeological nature be discovered on the site during excavation or disturbance:
1. All excavation and/or disturbance must stop immediately; and 2. A qualified archaeologist must be engaged to attend the site and provide advice and assessment of the features and/or deposits discovered and make recommendations on further excavation and/or disturbance; and 3. All and any recommendations made by the archaeologist engaged in accordance with (2) above must be complied with in full; and 4. All features and/or deposits discovered must be reported to the Council with one (1) day of the discovery; and 5. A copy of the archaeologists advice, assessment and recommendations obtained in accordance with (2) above must be provided to the Council within 30 days of receipt of the advice, assessment and recommendations.
Excavation and/or disturbance must not recommence unless and until approval is granted from the Council.
Reason for condition
To ensure that work is planned and implemented in a manner that seeks to understand, retain, protect, preserve and manage significant archaeological evidence.
HER s1
All documentation, including the construction management plan (Crowther's Lane heritage walls) required in condition ENG sw6, must contain protocols and recommendations for all contractors working in proximity to the stone walls on either side of Crowther's Lane to be familiar with the heritage values of the heritage listed site and for the need to protect the wall at all costs whilst undertaking the proposed works to upgrade infrastructure. Prior to the commencement of works (including demolition and excavation), all workers and managers must be briefed on the importance of the cultural heritage values of the site as part of a site induction. This must be undertaken by a suitably qualified heritage practitioner.
Reason for condition
To ensure that there is no loss or damage to the heritage values or fabric of the site.
ENVHE 1
Recommendations in the report Fragrance TasHobart Pty Ltd, 179 Macquarie Street, Limited Preliminary Site Investigation dated May 2019 written by GHD must be implemented, for the duration of the development.
Reason for condition
To ensure that the risk to future occupants of the building remain low and acceptable.
PLN s1
A Landscaping Plan for the landscaped public space and other areas of planting must be submitted and approved by the Council’s Director City Planning prior to the issue of any consent under the Building Act 2016, excluding for demolition and excavation. The Landscaping Plan must include: 1. Consideration to the inclusion of some mature trees along the western boundary to delineate the new proposal from the adjacent heritage site. 2. Landscaping should extend, if possible, the full length of the western boundary.
All trees and landscaping must be planted and installed in accordance with the approved Landscaping Plan to the satisfaction of the Council's Director City Planning prior to commencement of use.
The trees and landscaping must be maintained, and replacement trees and landscaping in accordance with the approved Landscaping Plan must be planted if any is lost.
Once all trees shown on the approved Landscaping Plan have been planted in accordance with the approved plan to the satisfaction of the Council's Director City Planning, the Council will issue a statement confirming satisfactory planting of all trees and landscaping.
Reason for condition
To ensure that the development achieves a high standard of public amenity and to ensure appropriate landscaping close to the property boundary.
Part 5 1
Prior to any approval under the Building Act 2016, the owner(s) of the property must enter into an agreement with the Council pursuant to Part 5 of the Land Use Planning and Approvals Act 1993 with respect to:
1. Building over and within 1 metre of the Council’s stormwater infrastructure. The owner must agree to: 1. Provide 24hr emergency access to the Council's stormwater infrastructure. 2. Indemnify the Council against any costs or claims arising from building over the Council’s stormwater main or for damages incurred in the act of performing operation, maintenance, or replacement tasks on the stormwater main. 2. Ongoing compliance with the approved stormwater management plan for the proposed treatment system.
All costs for the preparation and registration of the Part 5 Agreement must be met by the owner.
The owner must comply with the Part 5 Agreement which will be placed on the property title.
Advice: For further information with respect to the preparation of a Part 5 agreement please contact Council Development Engineering Staff.
Reason for condition
To ensure that future owners are aware of their ongoing obligations.
ADVICE
The following advice is provided to you to assist in the implementation of the planning permit that has been issued subject to the conditions above. The advice is not exhaustive and you must inform yourself of any other legislation, bylaws, regulations, codes or standards that will apply to your development under which you may need to obtain an approval. Visit the Council's website for further information.
Prior to any commencement of work on the site or commencement of use the following additional permits/approval may be required from the Hobart City Council.
CONDITION ENDORSEMENT PLANNING
If a condition endorsement is required by a planning condition above, you will need to submit the relevant documentation to satisfy the condition via the Condition Endorsement Submission on Council's online services eplanning portal.
Where building approval is also required, it is recommended that documentation for condition endorsement be submitted well before submitting documentation for building approval. Failure to address condition endorsement requirements prior to submitting for building approval may result in unexpected delays.
Once approved, the Council will respond to you via email that the condition has been endorsed (satisfied). Detailed instructions can be found here.
CONDITION ENDORSEMENT ENGINEERING
All engineering drawings required to be submitted and approved by this planning permit must be submitted to the City of Hobart as a CEP (Condition Endorsement) via the City’s Online Service Development Portal. When lodging a CEP, please reference the PLN number of the associated Planning Application. Each CEP must also include an estimation of the cost of works shown on the submitted engineering drawings. Once that estimation has been confirmed by the City’s Engineer, the following fees are payable for each CEP submitted and must be paid prior to the City of Hobart commencing assessment of the engineering drawings in each CEP:
Value of Building Works Approved by Planning Permit Fee: Up to $20,000: $150 per application. Over $20,000: 2% of the value of the works as assessed by the City's Engineer per assessment.
These fees are additional to building and plumbing fees charged under the Building and Plumbing Regulations.
Once the CEP is lodged via the Online Service Development Portal, if the value of building works approved by your planning permit is over $20,000, please contact the City’s Development Engineer on 6238 2715 to confirm the estimation of the cost of works shown on the submitted engineering drawings has been accepted.
Once confirmed, pleased call one of the City’s Customer Service Officers on 6238 2190 to make payment, quoting the reference number (ie. CEP number) of the Condition Endorsement you have lodged. Once payment is made, your engineering drawings will be assessed.
BUILDING PERMIT
You may need building approval in accordance with the Building Act 2016. Click here for more information.
This is a Discretionary Planning Permit issued in accordance with section 57 of the Land Use Planning and Approvals Act 1993.
PLUMBING PERMIT
You may need plumbing approval in accordance with the Building Act 2016, Building Regulations 2016 and the National Construction Code. Click here for more information.
OCCUPATION OF THE PUBLIC HIGHWAY
You may require a permit for the occupation of the public highway for construction or special event (e.g. placement of skip bin, crane, scissor lift etc). Click here for more information.
You may require a Permit to Open Up and Temporarily Occupy a Highway (for work in the road reserve). Click here for more information.
URBAN DESIGN ADVISORY PANEL
The following suggestions of Council's Urban Design Advisory Panel should be considered during the preparation of documentation for condition endorsement and/or building consent:
In regard to the principal public open space on the western boundary, more consideration needs to be given to the design of the space and that the landscaping elements, such as the paving and kerbing, separating vehicular and pedestrian activity, could be improved to provide a friendlier and more successful outcome.
The vehicle driveway into the porte cochere should be treated as more of a shared entry/pedestrian space.
The landscaping and green space areas on the upper levels on the Macquarie Street side and on the western boundary side appeared to have no direct access for maintenance. Further design consideration should be given to this.
The colour of the curtain wall and associated glazing needed further deliberation.
WORK WITHIN THE HIGHWAY RESERVATION
Please note development must be in accordance with the Hobart City Council’s Highways By law. Click here for more information.
CBD AND HIGH VOLUME FOOTPATH CLOSURES
Please note that the City of Hobart does not support the extended closure of public footpaths or roads to facilitate construction on adjacent land.
It is the developer's responsibility to ensure that the proposal as designed can be constructed without reliance on such extended closures.
In special cases, where it can be demonstrated that closure of footpaths in the CBD and/or other high volume footpaths can occur for extended periods without unreasonable impact on other businesses or the general public, such closures may only be approved by the full Council.
For more information about this requirement please contact the Council's Traffic Engineering Unit on 6238 2804.
RIGHT OF WAY
The private right of way must not be reduced, restricted or impeded in any way, and all beneficiaries must have complete and unrestricted access at all times.
You should inform yourself as to your rights and responsibilities in respect to the private right of way particularly reducing, restricting or impeding the right during and after construction.
|
Attachment a: PLN-19-104
- 179 MACQUARIE STREET HOBART TAS 7000 - Planning Committee or Delegated Report ⇩ ![]()
Attachment
b: PLN-19-104
- 179 MACQUARIE STREET HOBART TAS 7000 - CPC Agenda Documents incl. Taswater
and THC ⇩ ![]()
Attachment
c: PLN-19-104
- 179 MACQUARIE STREET HOBART TAS 7000 - Planning Referral Officer Cultural
Heritage Report ⇩ ![]()
Attachment
d: PLN-19-104
- 179 MACQUARIE STREET HOBART TAS 7000 - Supplementary Height Response ⇩ ![]()
Attachment
e: PLN-19-104
- 179 MACQUARIE STREET HOBART TAS 7000 - Urban Design Advisory Panel Minutes ⇩
|
Item No. 7.1.4 |
Agenda (Open Portion) City Planning Committee Meeting - 12/8/2019 |
Page 213 ATTACHMENT a |








































































|
Agenda (Open Portion) City Planning Committee Meeting - 12/8/2019 |
Page 286 ATTACHMENT b |






|
Item No. 7.1.4 |
Agenda (Open Portion) City Planning Committee Meeting - 12/8/2019 |
Page 293 ATTACHMENT b |

|
Item No. 7.1.4 |
Agenda (Open Portion) City Planning Committee Meeting - 12/8/2019 |
Page 296 ATTACHMENT b |















|
Item No. 7.1.4 |
Agenda (Open Portion) City Planning Committee Meeting - 12/8/2019 |
Page 312 ATTACHMENT b |




















|
Item No. 7.1.4 |
Agenda (Open Portion) City Planning Committee Meeting - 12/8/2019 |
Page 334 ATTACHMENT b |
















































|
Item No. 7.1.4 |
Agenda (Open Portion) City Planning Committee Meeting - 12/8/2019 |
Page 383 ATTACHMENT b |





|
Item No. 7.1.4 |
Agenda (Open Portion) City Planning Committee Meeting - 12/8/2019 |
Page 390 ATTACHMENT b |
|
Item No. 7.1.4 |
Agenda (Open Portion) City Planning Committee Meeting - 12/8/2019 |
Page 391 ATTACHMENT b |
|
Item No. 7.1.4 |
Agenda (Open Portion) City Planning Committee Meeting - 12/8/2019 |
Page 392 ATTACHMENT b |


































































|
Item No. 7.1.4 |
Agenda (Open Portion) City Planning Committee Meeting - 12/8/2019 |
Page 459 ATTACHMENT b |






|
Item No. 7.1.4 |
Agenda (Open Portion) City Planning Committee Meeting - 12/8/2019 |
Page 467 ATTACHMENT b |












|
Item No. 7.1.4 |
Agenda (Open Portion) City Planning Committee Meeting - 12/8/2019 |
Page 480 ATTACHMENT b |


|
Item No. 7.1.4 |
Agenda (Open Portion) City Planning Committee Meeting - 12/8/2019 |
Page 484 ATTACHMENT b |





















|
Item No. 7.1.4 |
Agenda (Open Portion) City Planning Committee Meeting - 12/8/2019 |
Page 506 ATTACHMENT b |




|
Item No. 7.1.4 |
Agenda (Open Portion) City Planning Committee Meeting - 12/8/2019 |
Page 512 ATTACHMENT b |





































































|
Item No. 7.1.4 |
Agenda (Open Portion) City Planning Committee Meeting - 12/8/2019 |
Page 582 ATTACHMENT b |


|
Item No. 7.1.4 |
Agenda (Open Portion) City Planning Committee Meeting - 12/8/2019 |
Page 586 ATTACHMENT b |




|
Item No. 7.1.4 |
Agenda (Open Portion) City Planning Committee Meeting - 12/8/2019 |
Page 592 ATTACHMENT c |



|
Agenda (Open Portion) City Planning Committee Meeting - 12/8/2019 |
Page 596 ATTACHMENT d |




|
Agenda (Open Portion) City Planning Committee Meeting - 12/8/2019 |
Page 601 ATTACHMENT e |

|
Agenda (Open Portion) City Planning Committee Meeting |
Page 603 |
|
|
|
12/8/2019 |
|
8. Reports
8.1 Building Heights - Elector Poll Results
Report of the Manager Planning Policy & Heritage and the Director City Planning of 7 August 2019 and attachment.
Delegation: Council
|
Item No. 8.1 |
Agenda (Open Portion) City Planning Committee Meeting |
Page 604 |
|
|
12/8/2019 |
|
REPORT TITLE: Building Heights - Elector Poll Results
REPORT PROVIDED BY: Manager Planning Policy & Heritage
Director City Planning
1. Report Purpose and Community Benefit
1.1. The purpose of the report is to consider the results of the recent elector poll in relation to building heights conducted by the Tasmanian Electoral Commission (TEC).
2. Report Summary
2.1. This report considers the results of the recent elector poll in relation to building heights conducted by the TEC.
2.2. The key conclusion to be reached from the elector poll results is that there is a significant level of support, from those who responded, for the building height limits and other recommendations made by Council officers to the City Planning Committee on 10 December 2018.
2.3. It is proposed that the Council receive and note this report and note the matter of building heights and form in central Hobart will be considered as part of the Central Hobart Precincts Plan project.
|
That:
1. The report titled Building Heights – Elector Poll Results be received and noted.
2. The Council note the matter of building heights and form, in central Hobart, will be considered as part of the Central Hobart Precincts Plan project. |
4. Background
4.1. The Council will recall that it received a petition signed by over 1,000 electors which required the Council to conduct an elector poll on the subject matter of the petition. In accordance with s60D(1)(c) of the Local Government Act 1993 (“the Act”), the elector poll was conducted by the TEC and the polls closed at 10am on Monday 15 July 2019.
4.2. Attachment A to this report are the results of the elector poll from the TEC.
4.3. Section 60E(1) of the Act states that the Council is to discuss the result of an elector poll at its next ordinary meeting. Section 60E(2) of the Act states that the result of an elector poll is not binding on a Council.
4.4. At its meeting on 22 July 2019, the Council considered a memorandum from the General Manager in relation to the elector poll results and resolved that the matter be referred to the appropriate committee for consideration.
5. Proposal and Implementation
5.1. It is proposed that the Council receive and note this report and note the matter of building heights and form in central Hobart will be considered as part of the Central Hobart Precincts Plan project.
5.2. A total of 15,990 electors (42.4%) responded to the poll. 77.04% (12,145) of those answered yes to the principal question: Should the Council support the building height limits and other recommendations made by its planning officers?
5.3. Of those who answered yes to the principal question, 76.2% (9,200) indicted that they would prefer the building height limit in Height Area 1 to be lower than 60m.
5.4. The key conclusion to be reached from the elector poll results is that there is a significant level of support, from those who responded, for the building height limits and other recommendations made by Council officers to the City Planning Committee on 10 December 2018.
5.5. In relation to the issue of setting maximum building heights, it is noted that at its meeting on 6 May 2019, the Council reaffirmed its decision of 15 April 2019, to work with the State Government to develop a Central Hobart Precincts Plan which will include an assessment of the social, economic and environmental impacts of setting maximum height limits.
5.6. Also at its meeting on 6 May 2019, the Council did not agree to initiate the planning scheme amendments to include maximum building heights in the planning schemes as provided in Attachment B to item 8.2 of the Open City Planning Committee agenda of 10 December 2018.
5.7. The Central Hobart Precincts Plan project will also examine appropriate built form outcomes taking into account the Central Hobart Building Height Standards Review (L Woolley 2018) and the recommendations made to Council in December 2018. The Project Brief was endorsed by Council on 8 July 2019.
6. Strategic Planning and Policy Considerations
6.1. The consideration of the issue of building heights through the Central Hobart Precincts Plan project will assist in the achievement of the strategic objectives of the Capital City Strategic Plan 2015-2025 particularly in relation to Goal 2 Urban Management - 2.3 "City and regional planning ensures quality design, meets community needs...."
6.2. Consideration of building heights and form in the Central Hobart Precincts Plan project is also relevant to the community aspirations for the future of Hobart as articulated in: Hobart: A community vision for our island capital, particularly in relation to the statements in:
6.2.1. Pillar 1. Sense of Place: We are a city of unique beauty, environment, heritage and people, built on a shared sense of ownership, pride and wonder.
6.2.2. Pillar 4. City Economies: We are a city whose economies connect people, businesses, education and government to create a high-quality lifestyle in a thriving and diverse community. Our city is our workshop. We collaborate, embracing ideas, inventiveness and initiative.
6.2.3. Pillar 5. Movement and Connectivity: We are a city where everyone has effective, safe, healthy and environmentally-friendly ways to move and connect, with people, information and goods, and to and through spaces and the natural environment. We are able to maintain a pace of life that allows us to fulfil our needs, such as work, study, business, socialising, recreation, accessing services, shopping, entertainment and spending time with loved ones.
6.2.4. Pillar 7. Built Environment: We are a city that maintains our unique built and ecological character, where we all have a safe, secure and healthy place to live. We are a city where people and communities can access world-class services and infrastructure and provide for their social, cultural and economic wellbeing. We embrace change but not at the expense of our Hobart identity and character.
7. Financial Implications
7.1. Funding Source and Impact on Current Year Operating Result
7.1.1. There are no direct financial implications arising from the recommendation.
8. Legal, Risk and Legislative Considerations
8.1. The elector poll was conducted in accordance with s60D(1)(c) of the Act. Section 60E(1) of the Act requires the Council to discuss the result of an elector poll at its next ordinary meeting. Section 60E(2) of the Act states that the result of an elector poll is not binding on a Council.
9. Community and Stakeholder Engagement
9.1. The elector poll provided an opportunity for electors to express their view in relation to the building heights issue.
10. Delegation
10.1. The matter is delegated to the Council.
As signatory to this report, I certify that, pursuant to Section 55(1) of the Local Government Act 1993, I hold no interest, as referred to in Section 49 of the Local Government Act 1993, in matters contained in this report.
|
James McIlhenny Manager Planning Policy & Heritage |
Neil Noye Director City Planning |
Date: 7 August 2019
File Reference: F19/103821; 17/167
Attachment a: Elector
Poll Results ⇩
|
Item No. 8.1 |
Agenda (Open Portion) City Planning Committee Meeting - 12/8/2019 |
Page 608 ATTACHMENT a |
|
Agenda (Open Portion) City Planning Committee Meeting |
Page 609 |
|
|
|
12/8/2019 |
|
8.2 City Planning - Advertising Report
Memorandum of the Director City Planning of 7 August 2019 and attachment.
Delegation: Committee
|
Item No. 8.2 |
Agenda (Open Portion) City Planning Committee Meeting |
Page 610 |
|
|
12/8/2019 |
|

Memorandum: City Planning Committee
City Planning - Advertising Report
Attached is the advertising list of the period 20 July 2019 – 2 August 2019.
|
That the information contained in the memorandum titled ‘City Planning - Advertising Report’ 7 August 2019 be received and noted.
|
As signatory to this report, I certify that, pursuant to Section 55(1) of the Local Government Act 1993, I hold no interest, as referred to in Section 49 of the Local Government Act 1993, in matters contained in this report.
|
Neil Noye Director City Planning |
|
Date: 7 August 2019
File Reference: F19/105225
Attachment a: Advertising
Report for 20 July 2019 – 2 August 2019 ⇩
|
Item No. 8.2 |
Agenda (Open Portion) City Planning Committee Meeting - 12/8/2019 |
Page 611 ATTACHMENT a |


|
Agenda (Open Portion) City Planning Committee Meeting |
Page 615 |
|
|
|
12/8/2019 |
|
8.3 Delegated Decisions Report (Planning)
Memorandum of the Director City Planning of 7 August 2019 and attachment.
Delegation: Committee
|
Item No. 8.3 |
Agenda (Open Portion) City Planning Committee Meeting |
Page 616 |
|
|
12/8/2019 |
|

Memorandum: City Planning Committee
Delegated Decisions Report (Planning)
Attached is the delegated decisions report for the period 20 July 2019 until 2 August 2019.
|
That the information contained in the memorandum titled ‘Delegated Decisions Report (Planning)’ of 7 August 2019 be received and noted.
|
As signatory to this report, I certify that, pursuant to Section 55(1) of the Local Government Act 1993, I hold no interest, as referred to in Section 49 of the Local Government Act 1993, in matters contained in this report.
|
Neil Noye Director City Planning |
|
Date: 7 August 2019
File Reference: F19/105226
Attachment a: Delegated
Permit Report - 20 July 2019 until 2 August 2019 ⇩
|
Item No. 8.3 |
Agenda (Open Portion) City Planning Committee Meeting - 12/8/2019 |
Page 617 ATTACHMENT a |
|
Agenda (Open Portion) City Planning Committee Meeting |
Page 618 |
|
|
|
12/8/2019 |
|
9. Committee Action Status Report
A report indicating the status of current decisions is attached for the information of Elected Members.
REcommendation
That the information be received and noted.
Delegation: Committee
Attachment a: City Planning Committee Status Report - July 2019
|
Item No. 9.1 |
Agenda (Open Portion) City Planning Committee Meeting - 12/8/2019 |
Page 619 ATTACHMENT a |




|
|
Agenda (Open Portion) City Planning Committee Meeting |
Page 625 |
|
|
12/8/2019 |
|
Section 29 of the Local Government (Meeting Procedures) Regulations 2015.
File Ref: 13-1-10
An Elected Member may ask a question without notice of the Chairman, another Elected Member, the General Manager or the General Manager’s representative, in line with the following procedures:
1. The Chairman will refuse to accept a question without notice if it does not relate to the Terms of Reference of the Council committee at which it is asked.
2. In putting a question without notice, an Elected Member must not:
(i) offer an argument or opinion; or
(ii) draw any inferences or make any imputations – except so far as may be necessary to explain the question.
3. The Chairman must not permit any debate of a question without notice or its answer.
4. The Chairman, Elected Members, General Manager or General Manager’s representative who is asked a question may decline to answer the question, if in the opinion of the respondent it is considered inappropriate due to its being unclear, insulting or improper.
5. The Chairman may require a question to be put in writing.
6. Where a question without notice is asked and answered at a meeting, both the question and the response will be recorded in the minutes of that meeting.
7. Where a response is not able to be provided at the meeting, the question will be taken on notice and
(i) the minutes of the meeting at which the question is asked will record the question and the fact that it has been taken on notice.
(ii) a written response will be provided to all Elected Members, at the appropriate time.
(iii) upon the answer to the question being circulated to Elected Members, both the question and the answer will be listed on the agenda for the next available ordinary meeting of the committee at which it was asked, where it will be listed for noting purposes only.
|
|
Agenda (Open Portion) City Planning Committee Meeting |
Page 626 |
|
|
12/8/2019 |
|