
City
of hobart
Supporting Information
Planning Authority Committee Meeting
Open PORTION OF THE MEETING
Wednesday, 5 November 2025
AT 4.00 pm
VENUE: Council Chamber, Town Hall
TABLE OF CONTENTS
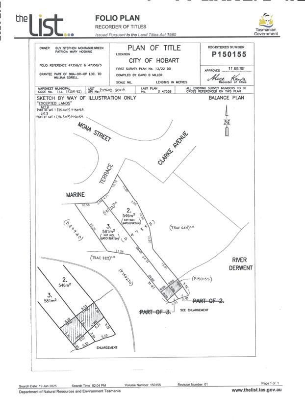
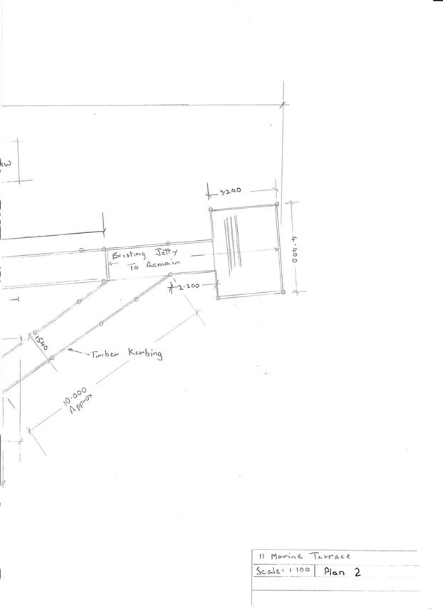
7.1.1 11 Marine Terrace, 13 Marine Terrace Battery Point - Partial Demolition and Alterations to Jetty
Attachment a PLN-HOB-2025-0291 - 11 and 13 MARINE TCE BATTERY POINT and River Derwent Foreshore - PC Agenda Report................ 3
Attachment b PLN-HOB-2025-0291 - 11 and 13 Marine Tce Battery Point - Final Planning Documents.................................................................. 25
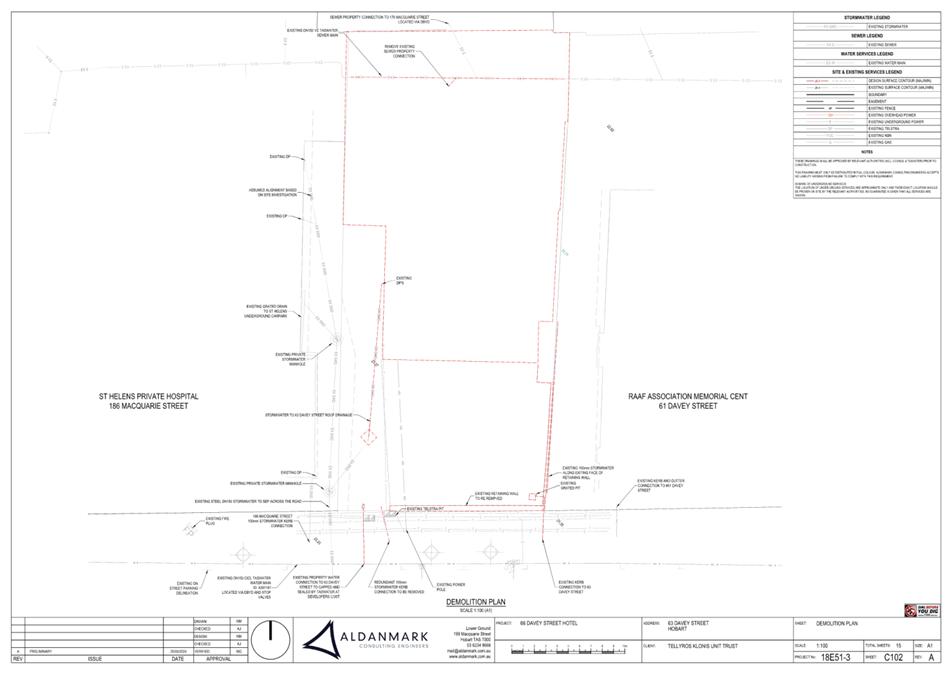
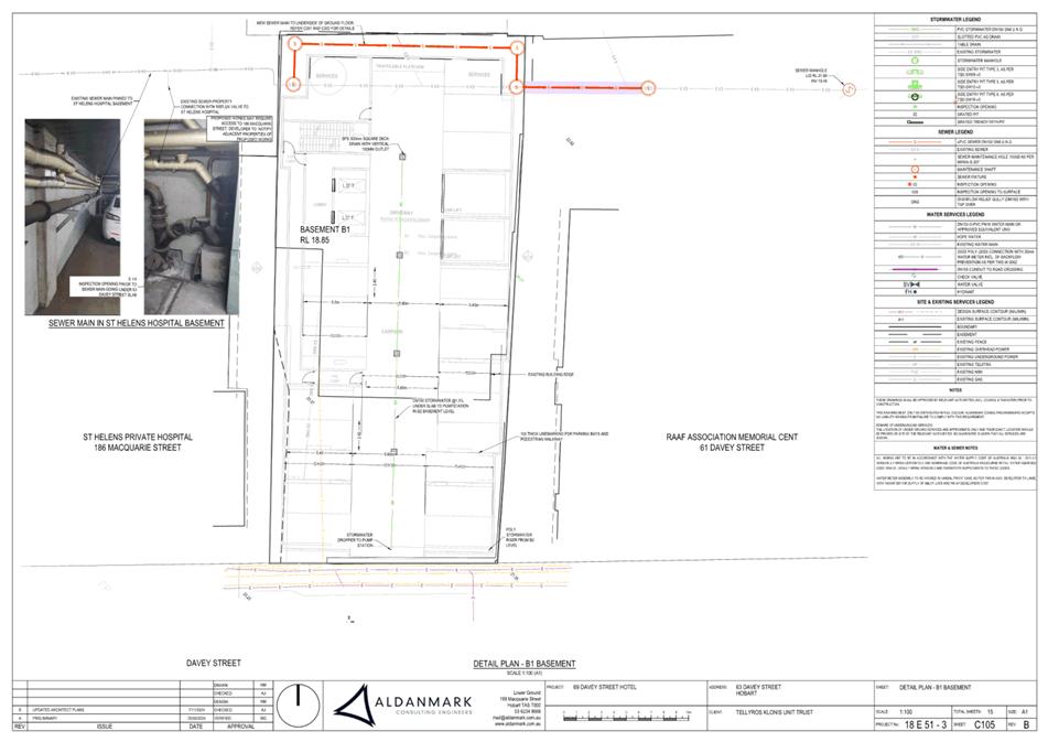
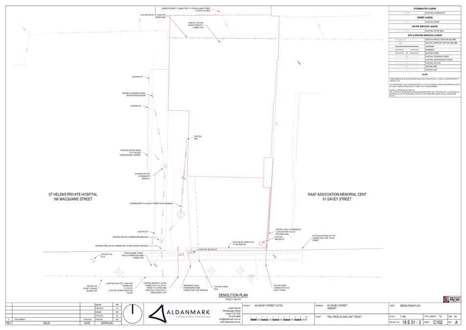
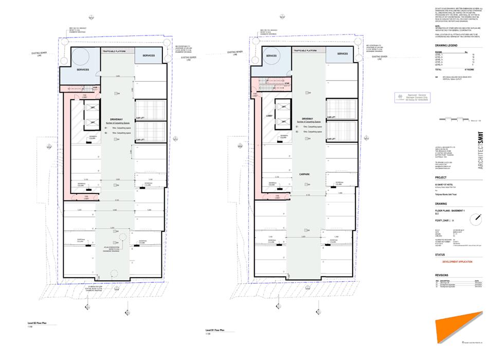
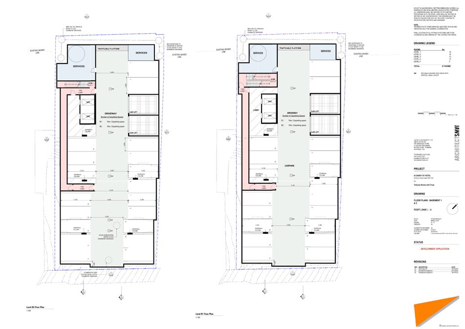
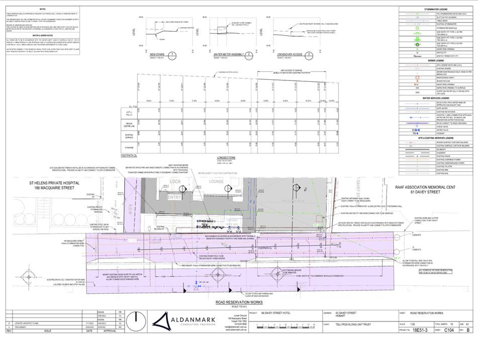
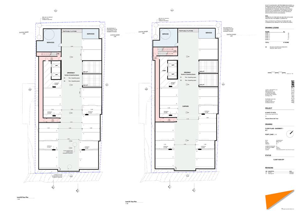
7.1.2 63 Davey Street, 61 Davey Street, 186 Macquarie Street Hobart and Adjacent Road Reserve - Demolition, New Building for Visitor Accommodation and Hotel Industry (Bar) and Associated Infrastructure Works
Attachment a PLN-HOB-2024-0621 - 63 DAVEY ST HOBART TAS 7000 - Planning Committee Report..................................................................... 128
Attachment b PLN-HOB-2024-0621 - 63 DAVEY ST HOBART TAS 7000 - Attachment B - CPC Agenda Documents............................. 186
Attachment c PLN-HOB-2024-0621 - 63 DAVEY ST HOBART TAS 7000 - Attachment C - Urban Design Advisory Panel Meeting Minutes 491
Attachment d PLN-HOB-2024-0621 - 63 DAVEY ST HOBART TAS 7000 - Attachment D - Planning Referral Officer Cultural Heritage Report 497
Attachment e PLN-HOB-2024-0621 - 63 DAVEY ST HOBART TAS 7000 - Attachment E - Planning Referral Officer Development Engineering Report......................................................................................... 503
8.1 Delegated Decision Report (Planning)
Attachment a Delegated Decision Report (Planning).................................. 530
8.2 Planning - Advertised Applications Report
Attachment a Planning - Advertised Applications Report........................... 532
|
Supporting Information Planning Authority Committee Meeting - 5/11/2025 |
Page 1 ATTACHMENT a |





















|
Supporting Information Planning Authority Committee Meeting - 5/11/2025 |
Page 1 ATTACHMENT b |



|
Supporting Information Planning Authority Committee Meeting - 5/11/2025 |
Page 1 ATTACHMENT a |

























































|
Supporting Information Planning Authority Committee Meeting - 5/11/2025 |
Page 1 ATTACHMENT b |
































































|
Supporting Information Planning Authority Committee Meeting - 5/11/2025 |
Page 1 ATTACHMENT c |





|
Supporting Information Planning Authority Committee Meeting - 5/11/2025 |
Page 1 ATTACHMENT d |





|
Supporting Information Planning Authority Committee Meeting - 5/11/2025 |
Page 1 ATTACHMENT e |


























|
Supporting Information Planning Authority Committee Meeting - 5/11/2025 |
Page 1 ATTACHMENT a |
